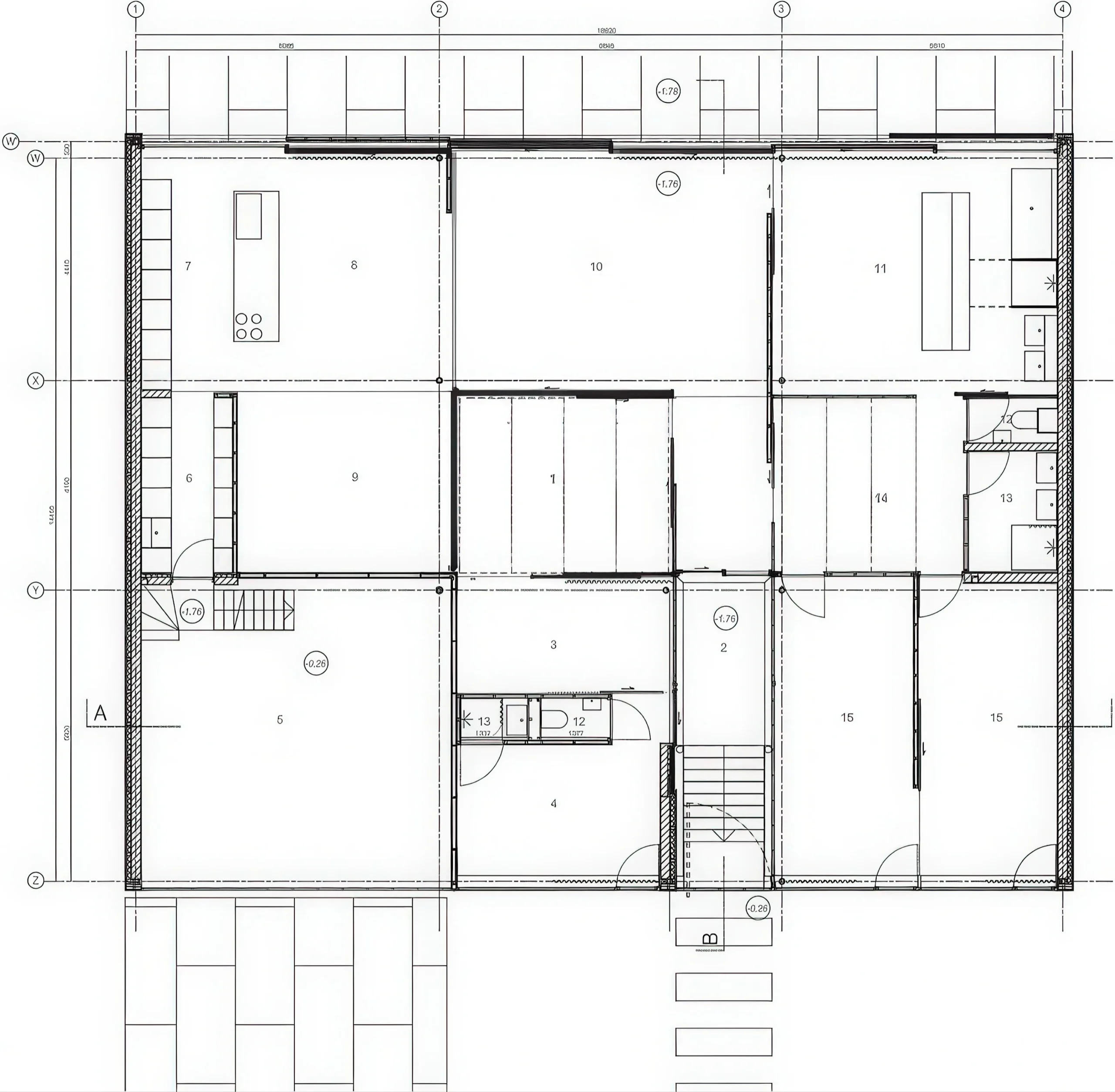
荷兰私人住宅,霍伊莱特 / Private house, Hoeilaart | Xaveer de Geyter XaveerdeGeyter • 2026-02-26 上午9:31 • 住宅建筑设计, 建筑设计, 独立住宅设计 荷兰私人住宅,霍伊莱特由Xaveer de Geyter设计,位于比利时霍伊莱特。这座独立住宅采用正交网格布局,通过固定墙体与滑动隔断的巧妙组合,实现了从刚性空间到流动迷宫的灵活转换。白色屋顶板材包裹的建筑体量与全玻璃立面,创造了与自然互动的居住体验。 设计: XaveerdeGeyter 类型: 独立住宅设计 功能: 独立住宅 风格: 当代建筑 材料: 玻璃 金属板 尺度: 微型建筑与装置 地点:霍伊莱特 时间: 1970年 项目概述 荷兰私人住宅,霍伊莱特位于比利时霍伊莱特,是一座独立住宅项目。建筑采用正交网格布局,通过固定墙体与滑动隔断的组合,实现了空间的灵活转换。项目展现了Xaveer de Geyter对当代家庭生活的创新回应。 设计理念 Xaveer de Geyter的设计理念基于正交网格系统,通过滑动隔断的巧妙运用,实现了从刚性组织到开放流动空间的即时转换。这种设计策略旨在适应当代家庭生活的混沌性、不可预测性和组织疯狂,创造一种临时、轻盈、即兴的居住形式。 空间与功能 空间组织分为私密区域与集体空间,固定墙体界定私密房间,滑动隔断处理集体区域。通过隔断的开合,房间可以被操纵、扩展或完全溶解,承担新的功能和角色。空间包括入口大厅、冬季花园、工作区、电视室、厨房和起居室等功能区域。 材料与技术 建筑采用白色屋顶板材完全包裹,形成防水外层。全玻璃立面提供与自然的接触,让光线成为塑造室内景观的关键因素。滑动隔断系统采用不同透明度材料,支持空间的即时转换与功能重组。 项目特色与启发 荷兰私人住宅,霍伊莱特的特色在于其空间的可变性设计,通过滑动隔断系统实现了居住空间的动态重组。这种设计方法为当代住宅设计提供了新思路,展示了如何通过建筑手段回应现代家庭生活的复杂需求。 设计团队 Xaveer de Geyter是一家注重空间组织和建筑创新的设计事务所,擅长通过严谨的几何逻辑创造灵活多变的建筑体验。在本项目中,团队通过创新的空间策略,重新定义了私人住宅的可能性。 项目概述 荷兰私人住宅,霍伊莱特位于比利时霍伊莱特,是一座独立住宅项目。建筑采用正交网格布局,通过固定墙体与滑动隔断的组合,实现了空间的灵活转换。项目展现了Xaveer de Geyter对当代家庭生活的创新回应。 设计理念 Xaveer de Geyter的设计理念基于正交网格系统,通过滑动隔断的巧妙运用,实现了从刚性组织到开放流动空间的即时转换。这种设计策略旨在适应当代家庭生活的混沌性、不可预测性和组织疯狂,创造一种临时、轻盈、即兴的居住形式。 空间与功能 空间组织分为私密区域与集体空间,固定墙体界定私密房间,滑动隔断处理集体区域。通过隔断的开合,房间可以被操纵、扩展或完全溶解,承担新的功能和角色。空间包括入口大厅、冬季花园、工作区、电视室、厨房和起居室等功能区域。 材料与技术 建筑采用白色屋顶板材完全包裹,形成防水外层。全玻璃立面提供与自然的接触,让光线成为塑造室内景观的关键因素。滑动隔断系统采用不同透明度材料,支持空间的即时转换与功能重组。 项目特色与启发 荷兰私人住宅,霍伊莱特的特色在于其空间的可变性设计,通过滑动隔断系统实现了居住空间的动态重组。这种设计方法为当代住宅设计提供了新思路,展示了如何通过建筑手段回应现代家庭生活的复杂需求。 设计团队 Xaveer de Geyter是一家注重空间组织和建筑创新的设计事务所,擅长通过严谨的几何逻辑创造灵活多变的建筑体验。在本项目中,团队通过创新的空间策略,重新定义了私人住宅的可能性。 本文来自 © XaveerdeGeyter, 发布于 © 建筑学院官方网站。 未经授权,禁止转载或摘编。 编辑版本版权归 © 建筑学院官方网站 所有, 设计、图纸及照片版权归设计方 © XaveerdeGeyter ↗ 所有。 查看作者在建筑学院发布的更多作品: XaveerdeGeyter @ 建筑学院官方网站 Private house HoeilaartXaveer de Geyter当代住宅比利时住宅独立住宅设计 XaveerdeGeyter事务所 & 设计师 下载原图 收藏 0 关于作者 XaveerdeGeyter事务所 & 设计师 关注私信 13 文章 0 评论 0 粉丝 XDGA(Xaveer De Geyter Architects)是1988年由Xaveer De Geyter在布鲁塞尔和巴黎创立的建筑、城市与景观设计事务所。事务所以其激进的设计方法、多元的专业团队和国际化的作品著称,曾获密斯·凡·德罗奖、Bigmat奖等多项重要奖项。XDGA主张建筑不是固定功能或解决问题,而是开启场地的潜在可能,处理不确定性,容纳多样且未预见的生活场景。其作品涵盖文化、教育、居住、商业等多种类型,遍布欧洲及全球。 国际奥委会总部 / International Olympic Committee Headquarters | Xaveer de Geyter 上一篇 2026-02-26 上午9:27 赫赫斯特大学经济学院 / Faculty of Economics, Ghent University | Xaveer de Geyter 下一篇 2026-02-27 下午1:36 猜你喜欢 弗恩斯住宅,克鲁姆赫希 / House by the Fens, Krumbach | 贝尔纳多·巴德尔|Bernardo Bader 2025-11-14 公共建筑设计 CASA ESPINAL / Spinal House | 帕琳达·坎南加拉|Palinda Kannangara 2026-01-07 住宅建筑设计 花园小屋 / Garden House | 安妮·霍尔特罗普|Anne Holtrop 2025-12-20 住宅建筑设计 克罗地亚兹戈尔单体住宅 / Single Family House in Zagreb | 德·莫拉|de Moura 2026-03-17 住宅建筑设计 奥利维尔多杜罗之家 House in Oliveira do Douro | 德莫拉建筑事务所|De Mora 2025-11-05 公共建筑设计 卢塞斯艺术学院 / Sint-Lucas School of Fine Arts | Xaveer de Geyter 2026-02-28 公共建筑设计 发表回复 请登录后评论...登录后才能评论 提交