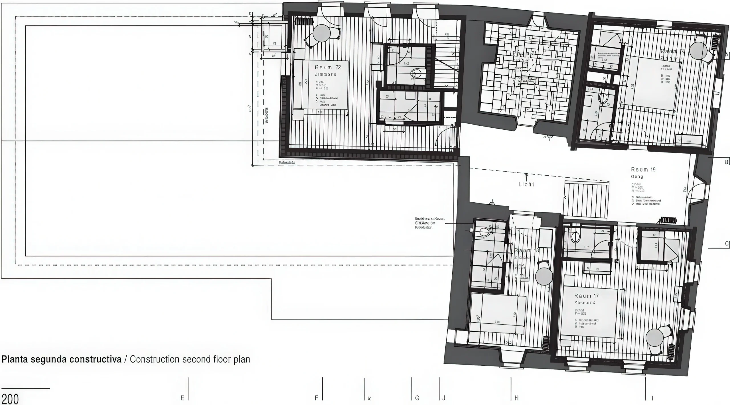
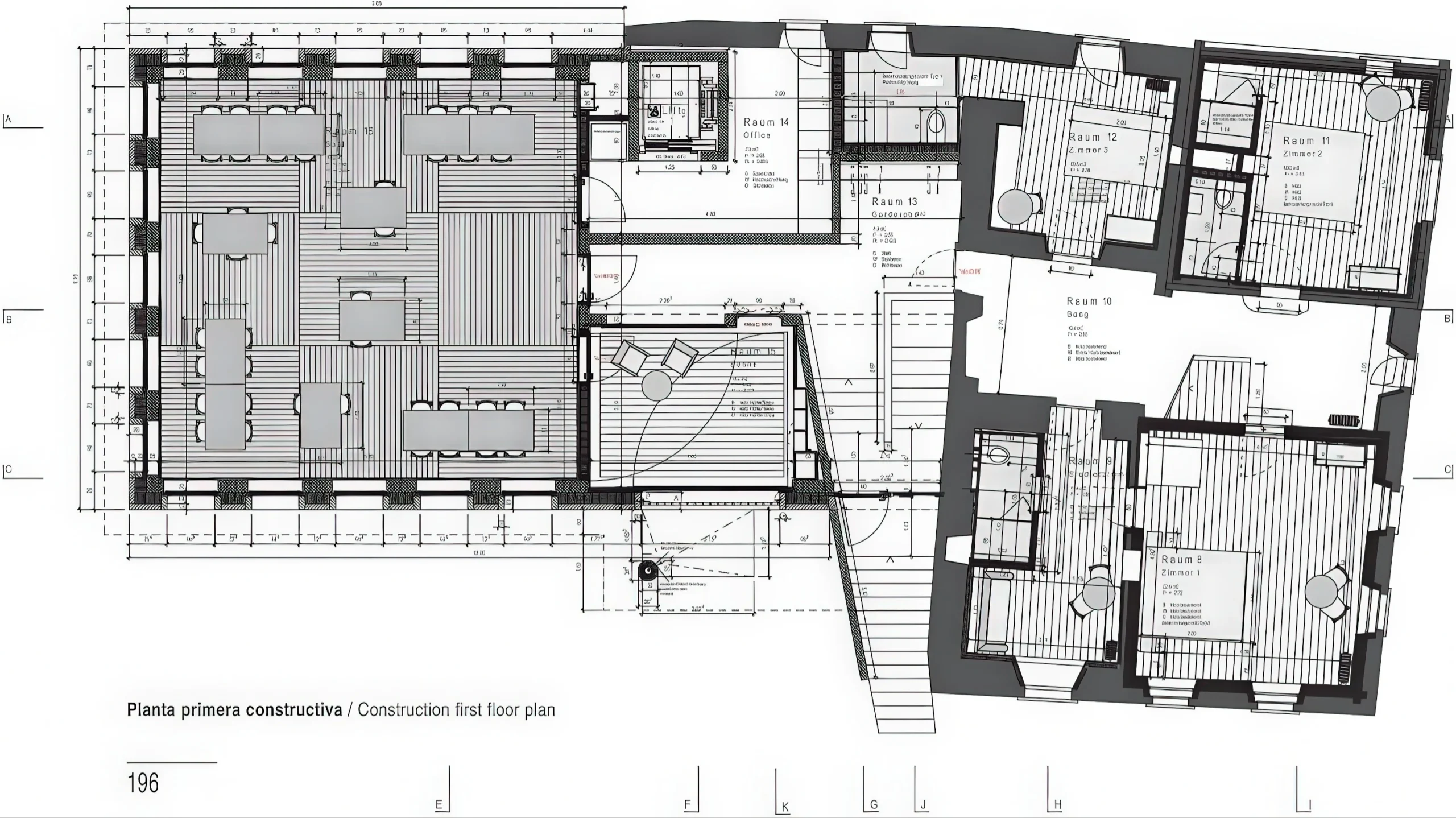
瓦尔达斯的民宿 / Guesthouse in Valendas | 吉翁·A·卡米纳达|Gion A. Caminada 吉翁·A·卡米纳达|Gion A Caminada • 2026-03-29 下午8:58 • 商业与综合建筑, 酒店建筑设计 瓦尔达斯的民宿由吉翁·A·卡米纳达设计,位于瑞士瓦伦达斯中心广场,通过改造历史建筑与新建附属空间,打造集社区活动厅、美食餐厅与八间客房于一体的综合性民宿建筑,以石灰抹面统一新旧体量,重塑村庄社区平衡。 设计: 吉翁·A·卡米纳达|Gion A Caminada 类型: 酒店建筑设计 功能: 酒店 风格: 地域主义 材料: 木材 混合材料 尺度: 小型建筑 地点:瓦伦达斯 时间: 2014年 项目概述 瓦尔达斯的民宿项目位于瑞士瓦伦达斯中心广场,由吉翁·A·卡米纳达设计,包含对历史建筑的改造与新建附属空间。项目功能涵盖社区活动厅、美食餐厅及八间客房,设计于2011年启动,2014年完工,通过建筑更新强化村庄社区功能。 设计理念 吉翁·A·卡米纳达以”村庄作为社区平台”为核心概念,旨在恢复瓦伦达斯失去的经济、社会、美学与文化平衡。设计强调新旧建筑的相互影响而非对比,通过石灰抹面统一材质,将空间与时间融合为完整建筑 ensemble,体现历史层次的延续性。 空间与功能 瓦尔达斯的民宿空间组织清晰,底层设置社区活动厅、餐厅与接待区,上层布置八间客房。新旧建筑形成功能统一体,流线设计促进不同规模社交与文化活动的开展,从私人用餐到公共聚会,空间灵活适应多样使用需求。 材料与技术 项目采用石灰抹面作为主要外墙材料,统一新旧建筑表皮。结构上保留历史建筑特征,新建部分依据原有马厩痕迹建造,施工工艺注重传统与现代结合,通过材料连续性强化建筑整体性与时间维度表达。 项目特色与启发 瓦尔达斯的民宿以社区复兴为核心价值,展示如何通过建筑更新激活乡村公共生活。吉翁·A·卡米纳达的设计为乡村更新项目提供参考,证明建筑可作为社区关系枢纽,促进传统与现代的和谐共生。 设计团队 吉翁·A·卡米纳达是瑞士知名建筑师,以乡村建筑与社区更新项目著称。其设计强调地域性、材料真实性与社会价值,在瓦尔达斯的民宿项目中成功实现了历史保护与当代功能的平衡。 项目概述 瓦尔达斯的民宿项目位于瑞士瓦伦达斯中心广场,由吉翁·A·卡米纳达设计,包含对历史建筑的改造与新建附属空间。项目功能涵盖社区活动厅、美食餐厅及八间客房,设计于2011年启动,2014年完工,通过建筑更新强化村庄社区功能。 设计理念 吉翁·A·卡米纳达以”村庄作为社区平台”为核心概念,旨在恢复瓦伦达斯失去的经济、社会、美学与文化平衡。设计强调新旧建筑的相互影响而非对比,通过石灰抹面统一材质,将空间与时间融合为完整建筑 ensemble,体现历史层次的延续性。 空间与功能 瓦尔达斯的民宿空间组织清晰,底层设置社区活动厅、餐厅与接待区,上层布置八间客房。新旧建筑形成功能统一体,流线设计促进不同规模社交与文化活动的开展,从私人用餐到公共聚会,空间灵活适应多样使用需求。 材料与技术 项目采用石灰抹面作为主要外墙材料,统一新旧建筑表皮。结构上保留历史建筑特征,新建部分依据原有马厩痕迹建造,施工工艺注重传统与现代结合,通过材料连续性强化建筑整体性与时间维度表达。 项目特色与启发 瓦尔达斯的民宿以社区复兴为核心价值,展示如何通过建筑更新激活乡村公共生活。吉翁·A·卡米纳达的设计为乡村更新项目提供参考,证明建筑可作为社区关系枢纽,促进传统与现代的和谐共生。 设计团队 吉翁·A·卡米纳达是瑞士知名建筑师,以乡村建筑与社区更新项目著称。其设计强调地域性、材料真实性与社会价值,在瓦尔达斯的民宿项目中成功实现了历史保护与当代功能的平衡。 本文来自 © 吉翁·A·卡米纳达|Gion A Caminada, 发布于 © 建筑学院官方网站。 未经授权,禁止转载或摘编。 编辑版本版权归 © 建筑学院官方网站 所有, 设计、图纸及照片版权归设计方 © 吉翁·A·卡米纳达|Gion A Caminada ↗ 所有。 查看作者在建筑学院发布的更多作品: 吉翁·A·卡米纳达|Gion A Caminada @ 建筑学院官方网站 guesthouse in valendas乡村民宿设计吉翁·A·卡米纳达瓦伦达斯建筑社区建筑更新 吉翁·A·卡米纳达|Gion A Caminada事务所 & 设计师 下载原图 收藏 0 关于作者 吉翁·A·卡米纳达|Gion A Caminada事务所 & 设计师 关注私信 22 文章 0 评论 0 粉丝 瑞士建筑师吉翁·A·卡米纳达(Gion A. Caminada)以其对传统木结构的现代诠释与乡村建筑复兴而闻名。他的官方网站 theaficionados.com 系统展示其代表作、设计哲学及对乡土文化的深刻思考。访问该站可深入了解其如何将地方传统转化为当代可持续的建筑语言。 福森豪恩的客人旅馆 / Guesthouse in Fürstenau | 吉翁·A·卡米纳达|Gion A. Caminada 上一篇 2026-03-23 上午11:25 花园餐厅 / Restaurant in a Garden | Estúdio Gustavo Utrabo 下一篇 2026-03-31 上午10:17 猜你喜欢 弗斯特纳布尔克的库伯尔之家 / Kübler House in Fürstenaubruck | 吉翁·A·卡米纳达|Gion A. Caminada 2026-03-25 住宅建筑设计 哥特式建筑 Geschinen / Girsberger House | 吉翁·A·卡米纳达|Gion A. Caminada 2025-12-22 住宅建筑设计 Tegia da Vaut – Domat的森林小屋 / Tegia da Vaut – Forest Hut in Domat | 吉翁·A·卡米纳达|Gion A. Caminada 2026-03-20 住宅建筑设计 哥特式建筑 Geschinen / Girsberger House | 吉翁·A·卡米纳达|Gion A. Caminada 2026-03-26 住宅建筑设计 VRIN 多功能厅 / Vrin Multi-purpose Hall | 吉翁·A·卡米纳达|Gion A. Caminada 2026-03-24 公共建筑设计 空气博物馆管理办公楼 / Ballenberg Open-Air Museum Administration Building | 吉翁·A·卡米纳达|Gion A. Caminada 2026-03-24 公共建筑设计 发表回复 请登录后评论...登录后才能评论 提交