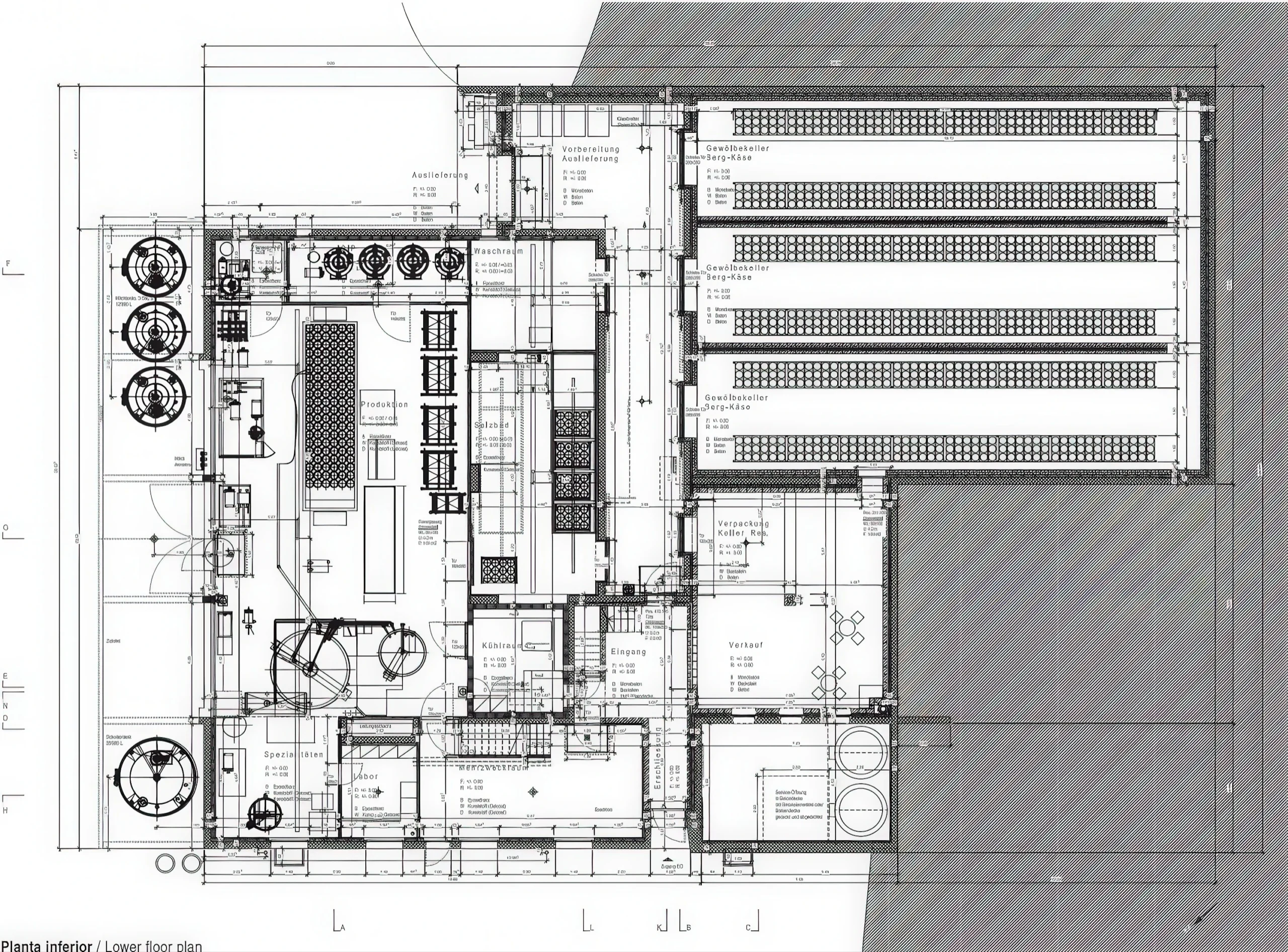
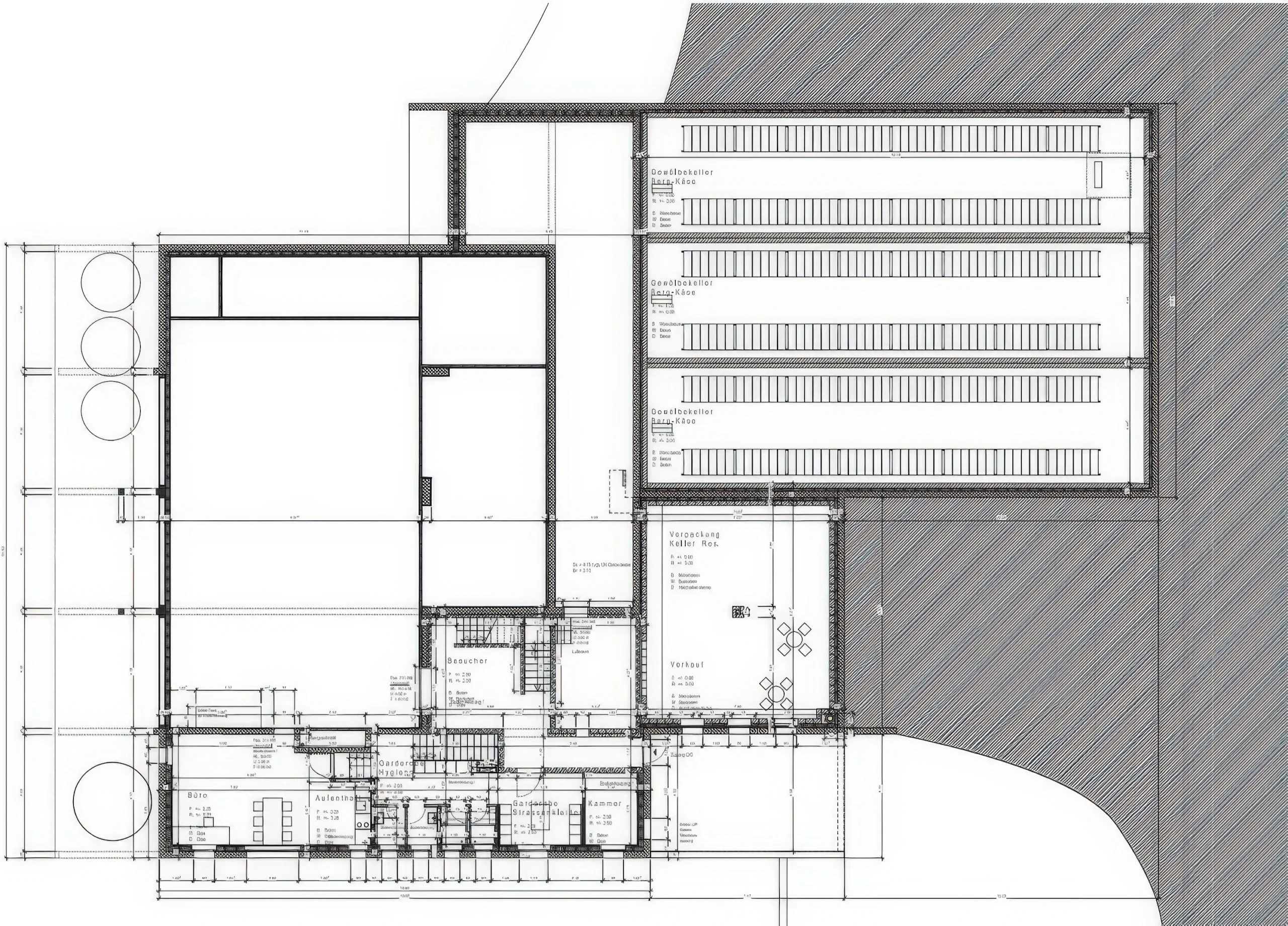
Sennaria 切奶工厂在德斯尼斯 / Cheese Factory in Disentis | 吉翁·A·卡米纳达|Gion A. Caminada 吉翁·A·卡米纳达|Gion A Caminada • 2026-03-26 下午10:20 • 工业建筑, 特殊建筑 Sennaria 切奶工厂位于瑞士德斯尼斯,由吉翁·A·卡米纳达设计,是一座融合地形与生产功能的奶酪加工厂。建筑以石质外观嵌入山坡,拱形熟成窖成为核心空间,通过回归自然生产过程的理念创造独特的农业建筑体验。 设计: 吉翁·A·卡米纳达|Gion A Caminada 类型: 特殊建筑 功能: 工业厂房 风格: 地域主义 材料: 混凝土 石材 金属板 尺度: 中型建筑 地点:德斯尼斯 时间: 2011年 项目概述 Sennaria 切奶工厂位于瑞士德斯尼斯,是一座集生产、展示与教育功能于一体的奶酪加工厂。项目由吉翁·A·卡米纳达设计,建筑面积适中,设计始于2009年,于2011年建成。 设计理念 吉翁·A·卡米纳达的设计理念源于回归自然生产过程的思考,通过石质外观与地形融合,创造具有阿尔卑斯地区传统奶酪工厂意象的建筑形式。Sennaria 切奶工厂以拱形熟成窖为核心,寻求理想的空间形态以回应特殊气候条件与奶酪熟成工艺需求。 空间与功能 Sennaria 切奶工厂内部划分为三个明确区域:公共参观区、生产加工区和地下熟成窖。大型屋顶挑檐保护奶罐免受风雨侵袭,同时与阿尔卑斯地区传统奶酪工厂形象产生关联。设计刻意降低工厂的视觉冲击力,仅向访客展示关键元素如部分熟成窖和铜制锅炉外壳。 材料与技术 建筑主要采用石材、混凝土和铜材等传统材料,拱形结构嵌入地形,使建筑成为地形的一部分。Sennaria 切奶工厂通过被动式设计策略,利用地下空间的稳定温湿度条件满足奶酪熟成的特殊气候需求。 项目特色与启发 Sennaria 切奶工厂展示了农业建筑如何超越单纯的生产功能,成为理解生产过程和体验农业经济的教育场所。吉翁·A·卡米纳达的设计为当代农业建筑提供了将传统工艺、地形融合与建筑形式完美结合的典范。 设计团队 吉翁·A·卡米纳达是瑞士著名建筑师,以其对传统建筑技艺与现代需求的融合而闻名。他的作品常常关注地域文化、材料真实性与建筑在地性,在Sennaria 切奶工厂项目中展现了将农业建筑提升至文化体验层面的设计能力。 项目概述 Sennaria 切奶工厂位于瑞士德斯尼斯,是一座集生产、展示与教育功能于一体的奶酪加工厂。项目由吉翁·A·卡米纳达设计,建筑面积适中,设计始于2009年,于2011年建成。 设计理念 吉翁·A·卡米纳达的设计理念源于回归自然生产过程的思考,通过石质外观与地形融合,创造具有阿尔卑斯地区传统奶酪工厂意象的建筑形式。Sennaria 切奶工厂以拱形熟成窖为核心,寻求理想的空间形态以回应特殊气候条件与奶酪熟成工艺需求。 空间与功能 Sennaria 切奶工厂内部划分为三个明确区域:公共参观区、生产加工区和地下熟成窖。大型屋顶挑檐保护奶罐免受风雨侵袭,同时与阿尔卑斯地区传统奶酪工厂形象产生关联。设计刻意降低工厂的视觉冲击力,仅向访客展示关键元素如部分熟成窖和铜制锅炉外壳。 材料与技术 建筑主要采用石材、混凝土和铜材等传统材料,拱形结构嵌入地形,使建筑成为地形的一部分。Sennaria 切奶工厂通过被动式设计策略,利用地下空间的稳定温湿度条件满足奶酪熟成的特殊气候需求。 项目特色与启发 Sennaria 切奶工厂展示了农业建筑如何超越单纯的生产功能,成为理解生产过程和体验农业经济的教育场所。吉翁·A·卡米纳达的设计为当代农业建筑提供了将传统工艺、地形融合与建筑形式完美结合的典范。 设计团队 吉翁·A·卡米纳达是瑞士著名建筑师,以其对传统建筑技艺与现代需求的融合而闻名。他的作品常常关注地域文化、材料真实性与建筑在地性,在Sennaria 切奶工厂项目中展现了将农业建筑提升至文化体验层面的设计能力。 本文来自 © 吉翁·A·卡米纳达|Gion A Caminada, 发布于 © 建筑学院官方网站。 未经授权,禁止转载或摘编。 编辑版本版权归 © 建筑学院官方网站 所有, 设计、图纸及照片版权归设计方 © 吉翁·A·卡米纳达|Gion A Caminada ↗ 所有。 查看作者在建筑学院发布的更多作品: 吉翁·A·卡米纳达|Gion A Caminada @ 建筑学院官方网站 cheese-factorysennaria农业建筑设计吉翁·A·卡米纳达瑞士建筑 吉翁·A·卡米纳达|Gion A Caminada事务所 & 设计师 下载原图 收藏 0 关于作者 吉翁·A·卡米纳达|Gion A Caminada事务所 & 设计师 关注私信 22 文章 0 评论 0 粉丝 瑞士建筑师吉翁·A·卡米纳达(Gion A. Caminada)以其对传统木结构的现代诠释与乡村建筑复兴而闻名。他的官方网站 theaficionados.com 系统展示其代表作、设计哲学及对乡土文化的深刻思考。访问该站可深入了解其如何将地方传统转化为当代可持续的建筑语言。 科琳斯多杜罗葡萄酒庄园 / Colinas do Douro Winery | 德·莫拉建筑事务所 上一篇 2026-03-20 上午9:24 奥勒里克森体育和游泳中心 / Oerlikon Sports and Swimming Center | Roger Boltshauser 下一篇 2026-03-27 下午9:18 猜你喜欢 空气博物馆管理办公楼 / Ballenberg Open-Air Museum Administration Building | 吉翁·A·卡米纳达|Gion A. Caminada 2026-03-24 公共建筑设计 VRIN 多功能厅 / Vrin Multi-purpose Hall | 吉翁·A·卡米纳达|Gion A. Caminada 2026-03-24 公共建筑设计 钢屋案例研究 / Steel House Case Study | Roger Boltshauser 2026-03-15 商业与综合建筑 迪森尼斯修道院农场 / Disentis Monastery Farm | 吉翁·A·卡米纳达|Gion A. Caminada 2025-12-25 公共建筑设计 迪森尼斯修道院农场 / Disentis Monastery Farm | 吉翁·A·卡米纳达|Gion A. Caminada 2026-03-25 公共空间设计 里索河三角洲上的瞭望塔 / Lookout Tower on the Reuss Delta | 吉翁·A·卡米纳达|Gion A. Caminada 2025-12-26 城市与景观 发表回复 请登录后评论...登录后才能评论 提交