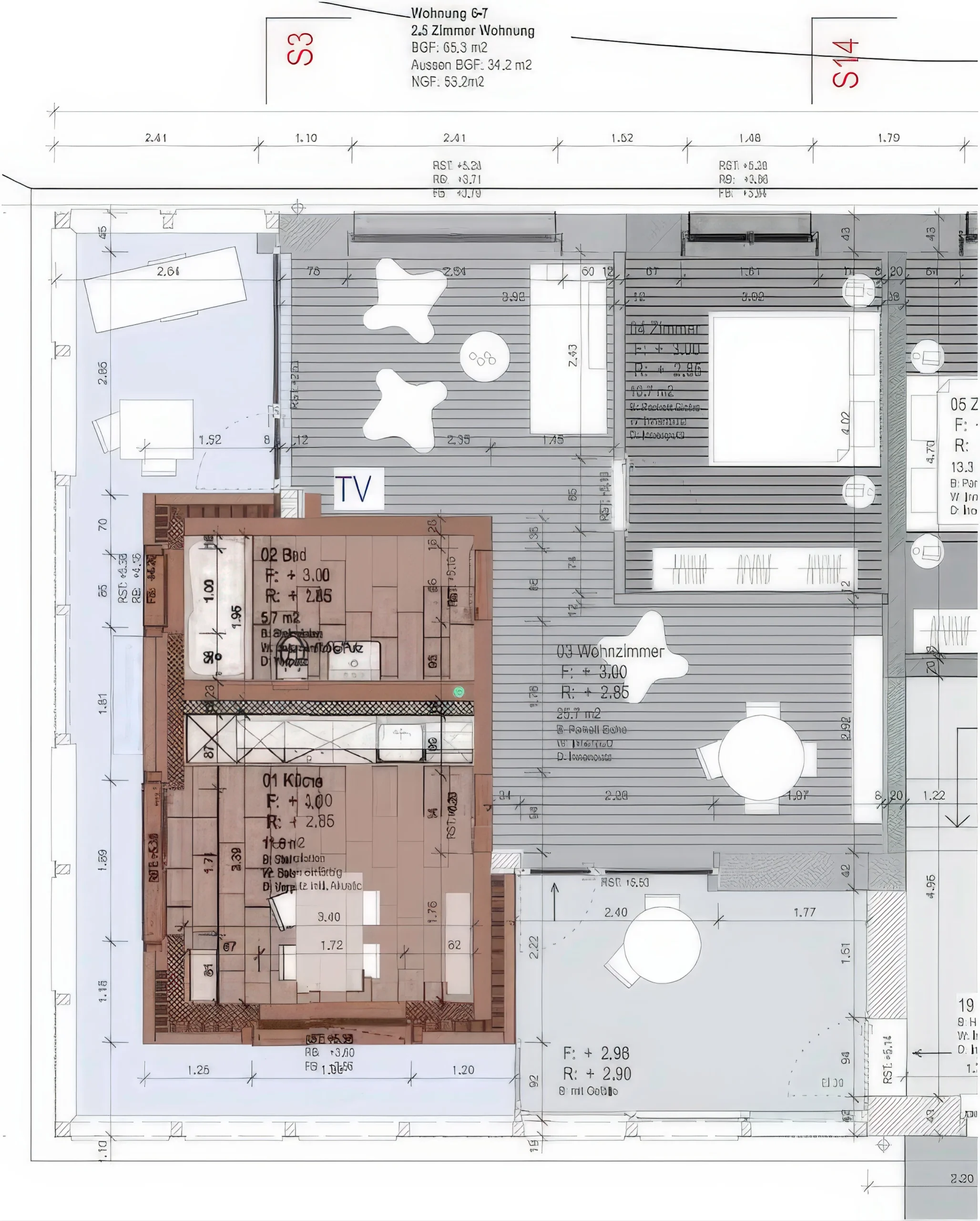
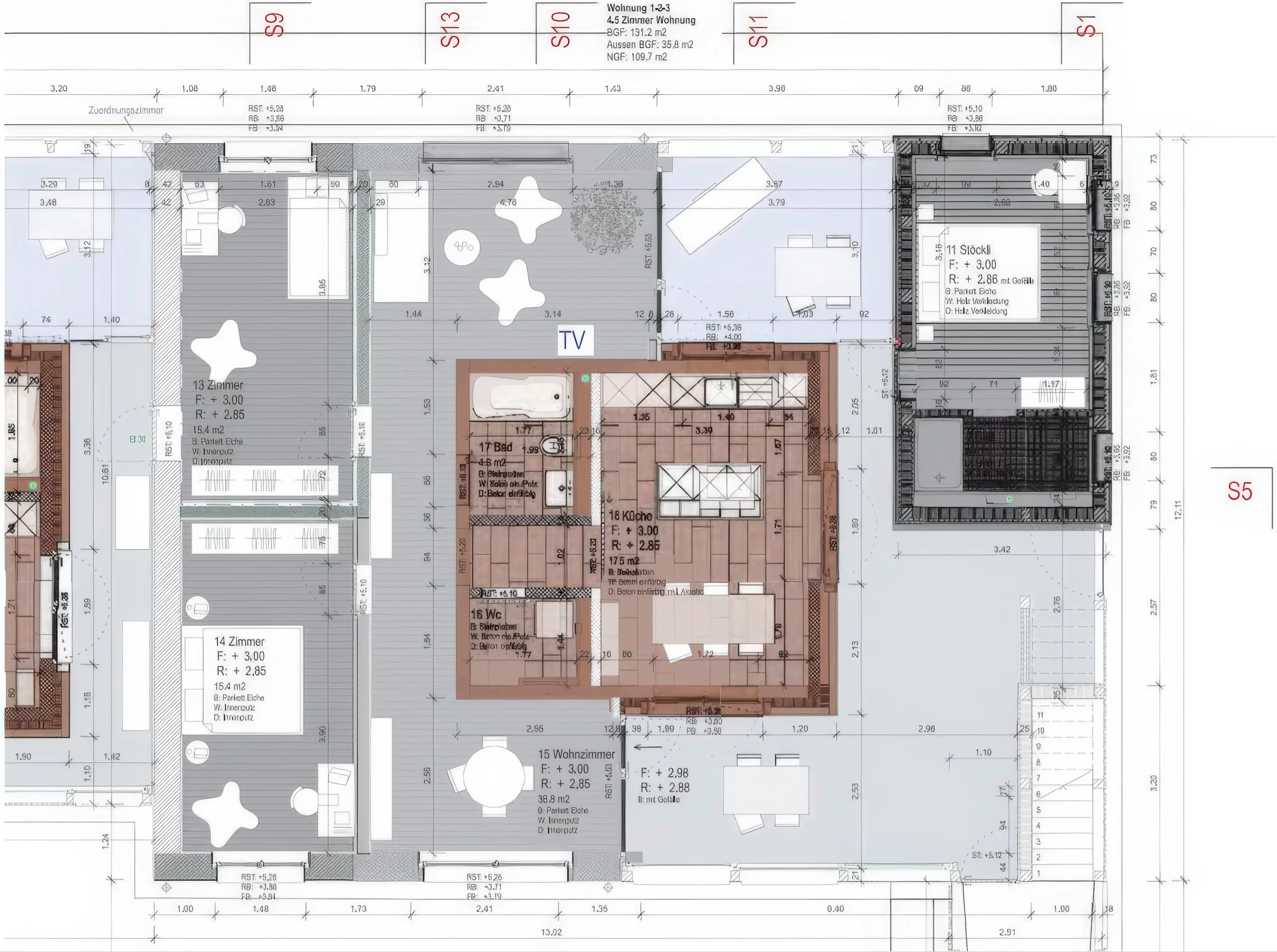
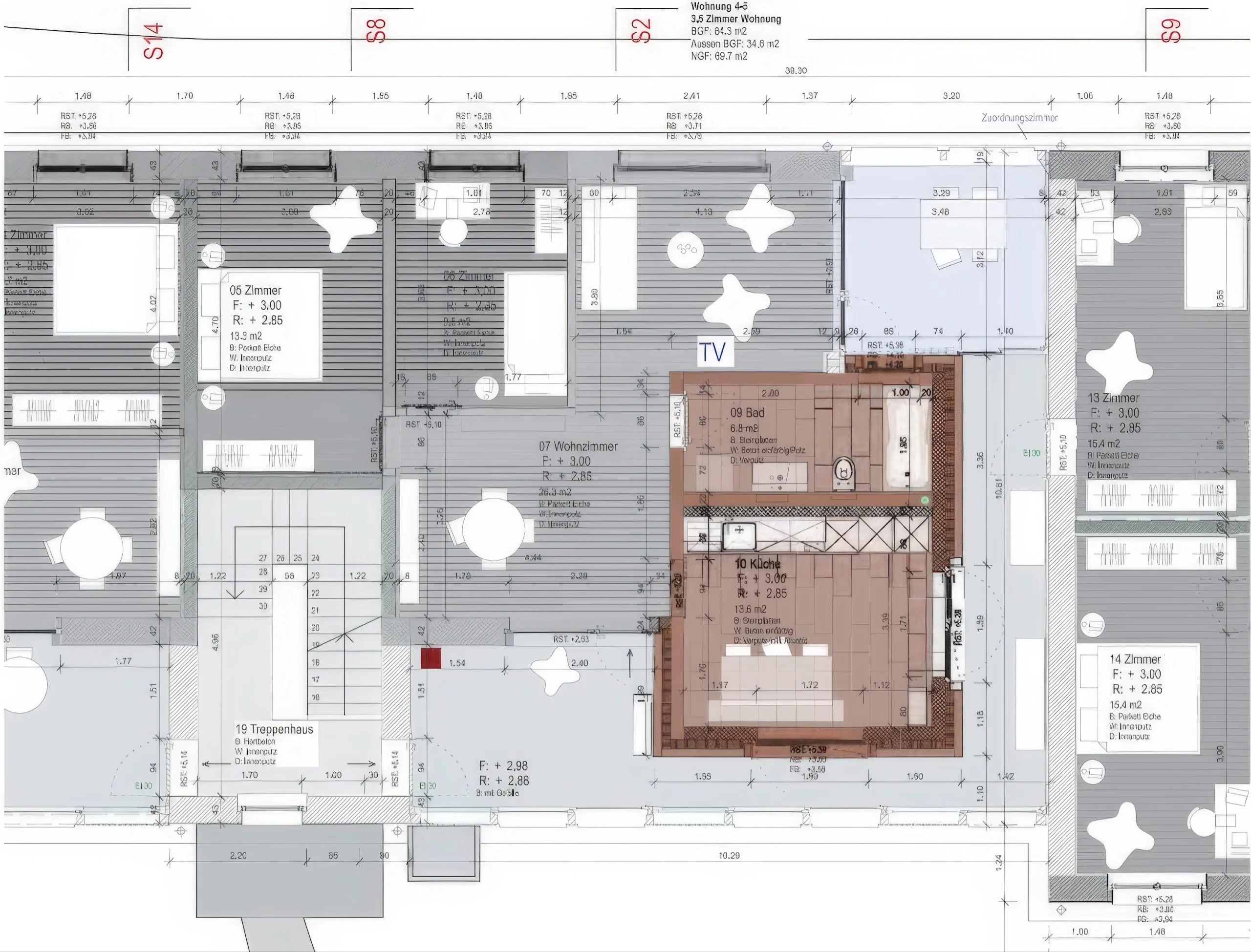
瓦拉兰斯住宅区 / Housing Complex in Valendas | 吉翁·A·卡米纳达|Gion A. Caminada 吉翁·A·卡米纳达|Gion A Caminada • 2026-03-29 下午9:08 • 住宅建筑设计, 公寓住宅设计, 建筑设计 瓦拉兰斯住宅区由吉翁·A·卡米纳达设计,位于瑞士莱茵峡谷右岸的瓦拉兰斯小镇。该项目通过创新的集合住宅形式,探索建筑与自然环境、社区关系的和谐共生,以可持续设计策略回应气候变化挑战。 设计: 吉翁·A·卡米纳达|Gion A Caminada 类型: 建筑设计 功能: 公寓住宅 风格: 现代主义 材料: 混凝土 木材 尺度: 中型建筑 地点:瓦拉兰斯 时间: 1970年 项目概述 瓦拉兰斯住宅区位于瑞士瓦拉兰斯小镇,莱茵峡谷右岸,是一个集合住宅项目。该项目由吉翁·A·卡米纳达设计,包含多种户型的公寓单元,设计周期为2018年至2020年,旨在为小镇提供替代独立住宅的可持续居住方案。 设计理念 吉翁·A·卡米纳达的设计理念聚焦于重新定义建筑与自然环境的关系。面对气候变化和生态失衡,该项目摒弃传统独立住宅的资源消耗模式,转而强调建筑与树木、风、温度等自然元素的互动,以及居民之间的社区联系。设计团队提出”我与房屋共生,房屋与我共生”的理念,追求建筑与使用者的动态适应关系。 空间与功能 瓦拉兰斯住宅区包含单卧室、双卧室和三卧室等多种户型,空间布局灵活多变。建筑通过半地下室、地面层和多层楼面的组合,创造了丰富的空间层次。内部庭院花园和不同朝向的立面设计,优化了采光通风和景观视野,促进了居民间的社交互动。功能分区清晰,同时保持空间使用的灵活性和适应性。 材料与技术 项目采用木材等可持续材料,结合当地传统工艺与现代建造技术。建筑外围护系统经过精心设计,包含多种类型的立面构造,确保良好的热工性能和能源效率。结构体系兼顾稳定性和灵活性,支持空间的动态变化和使用需求的演变。 项目特色与启发 瓦拉兰斯住宅区的核心特色在于其对可持续社区模式的探索。吉翁·A·卡米纳达通过这个项目展示了集合住宅在资源节约、社区营造和环境响应方面的潜力,为高能耗的独立住宅提供了可行的替代方案。该项目对当代住宅设计具有重要参考价值,特别是在生态敏感地区的居住区规划方面。 设计团队 吉翁·A·卡米纳达是瑞士著名建筑师,以其对传统建筑技艺的现代表达和对地域文化的深刻理解而闻名。他的作品常常融合当地材料、工艺与现代设计语言,在保持文化连续性的同时实现建筑创新。在瓦拉兰斯住宅区项目中,他延续了对社区建筑和可持续设计的深入探索。 项目概述 瓦拉兰斯住宅区位于瑞士瓦拉兰斯小镇,莱茵峡谷右岸,是一个集合住宅项目。该项目由吉翁·A·卡米纳达设计,包含多种户型的公寓单元,设计周期为2018年至2020年,旨在为小镇提供替代独立住宅的可持续居住方案。 设计理念 吉翁·A·卡米纳达的设计理念聚焦于重新定义建筑与自然环境的关系。面对气候变化和生态失衡,该项目摒弃传统独立住宅的资源消耗模式,转而强调建筑与树木、风、温度等自然元素的互动,以及居民之间的社区联系。设计团队提出”我与房屋共生,房屋与我共生”的理念,追求建筑与使用者的动态适应关系。 空间与功能 瓦拉兰斯住宅区包含单卧室、双卧室和三卧室等多种户型,空间布局灵活多变。建筑通过半地下室、地面层和多层楼面的组合,创造了丰富的空间层次。内部庭院花园和不同朝向的立面设计,优化了采光通风和景观视野,促进了居民间的社交互动。功能分区清晰,同时保持空间使用的灵活性和适应性。 材料与技术 项目采用木材等可持续材料,结合当地传统工艺与现代建造技术。建筑外围护系统经过精心设计,包含多种类型的立面构造,确保良好的热工性能和能源效率。结构体系兼顾稳定性和灵活性,支持空间的动态变化和使用需求的演变。 项目特色与启发 瓦拉兰斯住宅区的核心特色在于其对可持续社区模式的探索。吉翁·A·卡米纳达通过这个项目展示了集合住宅在资源节约、社区营造和环境响应方面的潜力,为高能耗的独立住宅提供了可行的替代方案。该项目对当代住宅设计具有重要参考价值,特别是在生态敏感地区的居住区规划方面。 设计团队 吉翁·A·卡米纳达是瑞士著名建筑师,以其对传统建筑技艺的现代表达和对地域文化的深刻理解而闻名。他的作品常常融合当地材料、工艺与现代设计语言,在保持文化连续性的同时实现建筑创新。在瓦拉兰斯住宅区项目中,他延续了对社区建筑和可持续设计的深入探索。 本文来自 © 吉翁·A·卡米纳达|Gion A Caminada, 发布于 © 建筑学院官方网站。 未经授权,禁止转载或摘编。 编辑版本版权归 © 建筑学院官方网站 所有, 设计、图纸及照片版权归设计方 © 吉翁·A·卡米纳达|Gion A Caminada ↗ 所有。 查看作者在建筑学院发布的更多作品: 吉翁·A·卡米纳达|Gion A Caminada @ 建筑学院官方网站 Housing Complex in Valendas可持续社区吉翁·A·卡米纳达瑞士住宅建筑集合住宅设计 吉翁·A·卡米纳达|Gion A Caminada事务所 & 设计师 下载原图 收藏 0 关于作者 吉翁·A·卡米纳达|Gion A Caminada事务所 & 设计师 关注私信 22 文章 0 评论 0 粉丝 瑞士建筑师吉翁·A·卡米纳达(Gion A. Caminada)以其对传统木结构的现代诠释与乡村建筑复兴而闻名。他的官方网站 theaficionados.com 系统展示其代表作、设计哲学及对乡土文化的深刻思考。访问该站可深入了解其如何将地方传统转化为当代可持续的建筑语言。 丹佛展馆 / Pavilion in Denver | Pezo Von Ellrichshausen 上一篇 2026-03-28 下午3:17 伊维萨与福门特拉音乐舞蹈学院 / Music and Dance Conservatory of Ibiza and Formentera | 阿尔弗雷多·帕亚|Alfredo Payá 下一篇 2026-03-29 下午9:17 猜你喜欢 布列塔尼街14套住宅 14 Housing Units on Rue des Bergers | 布鲁瑟建筑事务所|Bruther 2025-11-28 公共建筑设计 迪森尼斯修道院农场 / Disentis Monastery Farm | 吉翁·A·卡米纳达|Gion A. Caminada 2026-03-25 公共空间设计 哥特式建筑 Geschinen / Girsberger House | 吉翁·A·卡米纳达|Gion A. Caminada 2025-12-22 住宅建筑设计 里索河三角洲上的瞭望塔 / Lookout Tower on the Reuss Delta | 吉翁·A·卡米纳达|Gion A. Caminada 2025-12-26 城市与景观 瓦尔达斯的民宿 / Guesthouse in Valendas | 吉翁·A·卡米纳达|Gion A. Caminada 2026-03-29 商业与综合建筑 弗斯特纳布尔克的库伯尔之家 / Kübler House in Fürstenaubruck | 吉翁·A·卡米纳达|Gion A. Caminada 2026-03-25 住宅建筑设计 发表回复 请登录后评论...登录后才能评论 提交