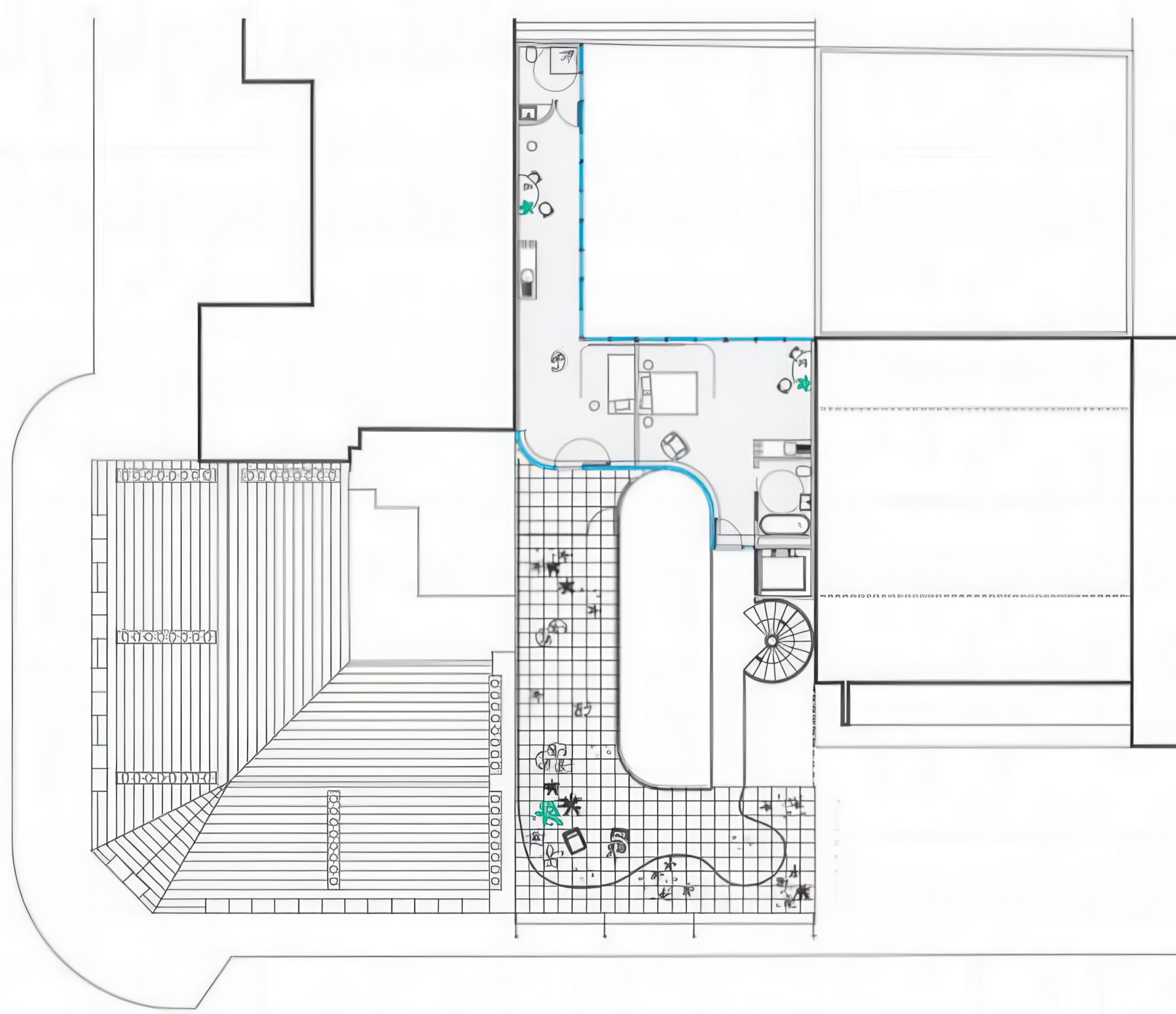
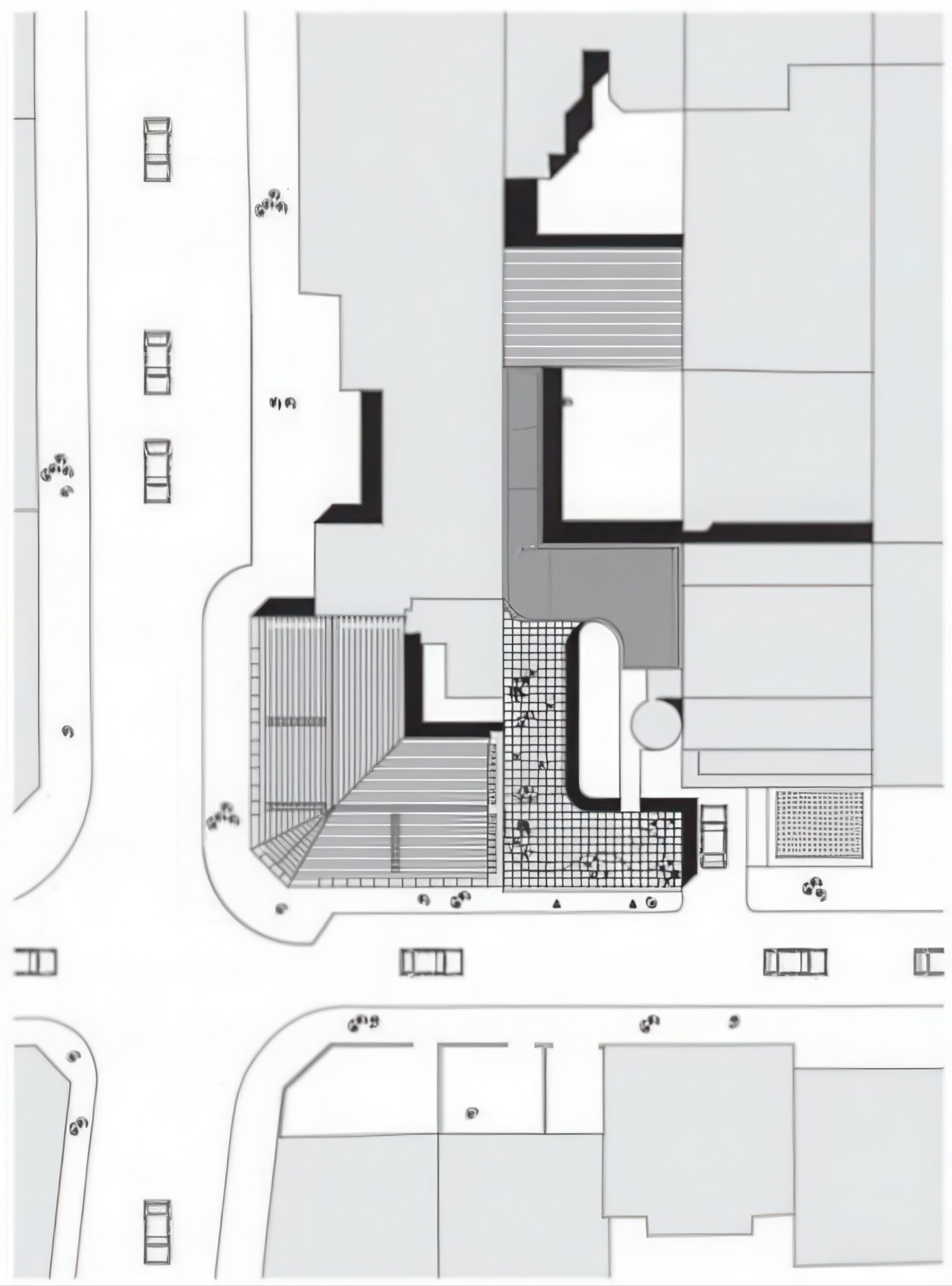
布列塔尼街14套住宅 14 Housing Units on Rue des Bergers | 布鲁瑟建筑事务所|Bruther 布鲁瑟建筑事务所|Bruther • 3天前 • 公共建筑设计, 建筑师, 建筑设计, 文化建筑设计 布列塔尼街14套住宅是布鲁瑟建筑事务所在巴黎第15区设计的住宅项目。该项目占地939平方米,包含14个住宅单元,于2017年建成。设计核心特色是围绕椭圆形中央庭院组织空间,采用Kalwall半透明幕墙系统,为密集城市环境中的住宅提供了创新的空间体验。 设计: 布鲁瑟建筑事务所|Bruther 类型: 文化建筑设计 功能: 公寓住宅 风格: 当代建筑 材料: 混凝土 钢材 玻璃 尺度: 中型建筑 地点:巴黎 时间: 2017年 项目简介 布列塔尼街14套住宅位于法国巴黎第15区,是一座集合住宅建筑,建筑面积939平方米,包含14个住宅单元,于2017年建成。 设计理念 设计团队以创造与周边标准化建筑截然不同的建筑形态为目标,通过引入椭圆形中央庭院作为空间核心,打破传统巴黎住宅的布局模式,为居民提供独特的空间体验。 空间与功能 建筑围绕椭圆形中央庭院组织空间,标准层包含面向街道的三卧室公寓和面向花园的四卧室公寓。滑动门窗系统确保空间灵活性,中央庭院作为建筑的”呼吸空间”连接各功能区域。 材料与技术 项目采用Kalwall半透明幕墙系统包裹中央庭院,结构主要依靠相邻建筑承重,辅以轻质金属柱支撑。立面采用连续轨道的大型滑动窗系统,兼顾结构经济性与空间品质。 设计团队 布鲁瑟建筑事务所是法国知名建筑设计团队,以创新住宅设计和城市更新项目著称,擅长在严格规范限制下创造独特的建筑空间体验。 项目简介 布列塔尼街14套住宅位于法国巴黎第15区,是一座集合住宅建筑,建筑面积939平方米,包含14个住宅单元,于2017年建成。 设计理念 设计团队以创造与周边标准化建筑截然不同的建筑形态为目标,通过引入椭圆形中央庭院作为空间核心,打破传统巴黎住宅的布局模式,为居民提供独特的空间体验。 空间与功能 建筑围绕椭圆形中央庭院组织空间,标准层包含面向街道的三卧室公寓和面向花园的四卧室公寓。滑动门窗系统确保空间灵活性,中央庭院作为建筑的”呼吸空间”连接各功能区域。 材料与技术 项目采用Kalwall半透明幕墙系统包裹中央庭院,结构主要依靠相邻建筑承重,辅以轻质金属柱支撑。立面采用连续轨道的大型滑动窗系统,兼顾结构经济性与空间品质。 设计团队 布鲁瑟建筑事务所是法国知名建筑设计团队,以创新住宅设计和城市更新项目著称,擅长在严格规范限制下创造独特的建筑空间体验。 本文来自 © 布鲁瑟建筑事务所|Bruther, 发布于 © 建筑学院官方网站。 未经授权,禁止转载或摘编。 编辑版本版权归 © 建筑学院官方网站 所有, 设计、图纸及照片版权归设计方 © 布鲁瑟建筑事务所|Bruther ↗ 所有。 查看作者在建筑学院发布的更多作品: 布鲁瑟建筑事务所|Bruther @ 建筑学院官方网站 Kalwall幕墙巴黎住宅布列塔尼街14套住宅布鲁瑟建筑事务所集合住宅设计 布鲁瑟建筑事务所|Bruther事务所 & 设计师 下载原图 收藏 0 关于作者 布鲁瑟建筑事务所|Bruther事务所 & 设计师 关注私信 21 文章 0 评论 0 粉丝 布鲁瑟建筑事务所(Bruther)由亚历克西斯·博德与斯蒂芬妮·布鲁诺创立于巴黎,是当代极具前瞻性的先锋建筑团队。他们以“动态功能”与“空间灵活性”为核心,作品横跨文化、教育及研究建筑领域,以前瞻性思维与技术精确性,创造出开放、适应性强且充满张力的建筑,持续拓展建筑实践的边界,重新定义当代建筑语言。 乌德米勒喷射塔博物馆 Windermere Jetty Museum | 卡莫迪·格罗克建筑事务所|Carmody Groarke 上一篇 4天前 Campbell体育中心 / Campbell Sports Center | 霍尔 Steven Holl 下一篇 3天前 猜你喜欢 巴黎瑞吉大厦 Rise Building, Paris | 布鲁瑟建筑事务所|Bruther 2025-11-09 公共建筑设计 Good Life, Public Facility | 布鲁瑟建筑事务所|Bruther 2025-11-11 公共建筑设计 Blaise Blaise | 布鲁瑟建筑事务所|Bruther 2025-11-20 公共建筑设计 赫尔辛基中央图书馆 Central Library, Helsinki | 布鲁瑟建筑事务所|Bruther 2025-11-10 公共建筑设计 勒哈弗多功能社会文化体育设施 Multifunction Sociocultural and Sports Facility, Le Havre | 布鲁瑟建筑事务所|Bruther 2025-11-24 公共建筑设计 卢米埃大学Lyon 2大学校园学习中心 Learning Centre in Lumière Lyon 2 University campus | 布鲁瑟建筑事务所|Bruther 2025-11-23 公共建筑设计 发表回复 请登录后评论...登录后才能评论 提交