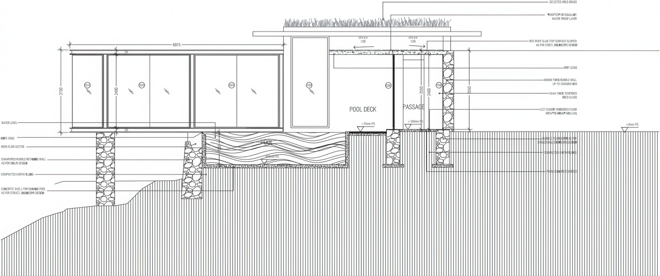
假日小木屋 葡萄花娜那 / Holiday Bungalow in Ginigathhena | 帕琳达·坎南加拉|Palinda Kannangara 帕琳达·坎南加拉|Palinda Kannangara • 2026-04-09 上午9:39 • 住宅建筑设计, 建筑设计, 独立住宅设计 假日小木屋 葡萄花娜那由帕琳达·坎南加拉设计,位于斯里兰卡吉尼加瑟纳山谷,是一座为水电综合体高管提供度假住宿的独立住宅。建筑以三个矩形体量错落布局,通过玻璃连廊连接,屋顶覆草伪装,深灰色外墙与自然环境融为一体,最大化森林与河流景观视野。 设计: 帕琳达·坎南加拉|Palinda Kannangara 类型: 独立住宅设计 功能: 独立住宅 风格: 当代建筑 材料: 混凝土 钢材 木材 玻璃 尺度: 小型建筑 地点:吉尼加瑟纳 时间: 1970年 项目概述 假日小木屋 葡萄花娜那位于斯里兰卡吉尼加瑟纳,是一座为水电综合体访客高管设计的度假住宅。建筑坐落于山谷坡地,俯瞰森林与河流,包含客厅、餐厅、三间卧室及配套卫浴,设计于2000年,建成于2004年。 设计理念 帕琳达·坎南加拉以“最大限度体验自然生活”为核心概念,将建筑伪装于环境之中。通过覆草屋顶、深灰外墙和体量错动,实现建筑与山谷、森林的视觉融合,营造隐居自然的度假体验。 空间与功能 建筑由三个矩形体量组成,分别容纳客厅、餐厅和卧室区,体量微倾以优化森林视野。主区块通过玻璃连廊连接,中央餐厅作为“玻璃盒子”悬挑于无边泳池之上,形成半水半空的漂浮感。卧室采用洞穴式设计,水泥饰面营造质朴氛围,将森林景致引入室内。 材料与技术 主要采用混凝土结构、钢材、木材与玻璃。混凝土楼板呈现漂浮效果,钢结构支撑玻璃餐厅,木地板与木饰面天花板增强空间轻盈感。覆草屋顶与深灰涂料实现建筑伪装,无边泳池延伸视觉边界,强化与自然环境的连续性。 项目特色与启发 假日小木屋 葡萄花娜那展示了如何通过简约体量、材料选择与景观整合,在自然环境中创造沉浸式居住体验。其伪装策略、视野优化与空间流动设计,为山地度假建筑提供了可持续且人性化的设计范式。 设计团队 帕琳达·坎南加拉是斯里兰卡知名建筑师,以回应地域环境、融合自然与建筑的简约设计著称。其作品注重材料真实性、空间体验与可持续性,在住宅与文化建筑领域具有广泛影响力。 项目概述 假日小木屋 葡萄花娜那位于斯里兰卡吉尼加瑟纳,是一座为水电综合体访客高管设计的度假住宅。建筑坐落于山谷坡地,俯瞰森林与河流,包含客厅、餐厅、三间卧室及配套卫浴,设计于2000年,建成于2004年。 设计理念 帕琳达·坎南加拉以“最大限度体验自然生活”为核心概念,将建筑伪装于环境之中。通过覆草屋顶、深灰外墙和体量错动,实现建筑与山谷、森林的视觉融合,营造隐居自然的度假体验。 空间与功能 建筑由三个矩形体量组成,分别容纳客厅、餐厅和卧室区,体量微倾以优化森林视野。主区块通过玻璃连廊连接,中央餐厅作为“玻璃盒子”悬挑于无边泳池之上,形成半水半空的漂浮感。卧室采用洞穴式设计,水泥饰面营造质朴氛围,将森林景致引入室内。 材料与技术 主要采用混凝土结构、钢材、木材与玻璃。混凝土楼板呈现漂浮效果,钢结构支撑玻璃餐厅,木地板与木饰面天花板增强空间轻盈感。覆草屋顶与深灰涂料实现建筑伪装,无边泳池延伸视觉边界,强化与自然环境的连续性。 项目特色与启发 假日小木屋 葡萄花娜那展示了如何通过简约体量、材料选择与景观整合,在自然环境中创造沉浸式居住体验。其伪装策略、视野优化与空间流动设计,为山地度假建筑提供了可持续且人性化的设计范式。 设计团队 帕琳达·坎南加拉是斯里兰卡知名建筑师,以回应地域环境、融合自然与建筑的简约设计著称。其作品注重材料真实性、空间体验与可持续性,在住宅与文化建筑领域具有广泛影响力。 本文来自 © 帕琳达·坎南加拉|Palinda Kannangara, 发布于 © 建筑学院官方网站。 未经授权,禁止转载或摘编。 编辑版本版权归 © 建筑学院官方网站 所有, 设计、图纸及照片版权归设计方 © 帕琳达·坎南加拉|Palinda Kannangara ↗ 所有。 查看作者在建筑学院发布的更多作品: 帕琳达·坎南加拉|Palinda Kannangara @ 建筑学院官方网站 holiday-bungalow-ginigathhena帕琳达·坎南加拉度假住宅设计斯里兰卡建筑自然融合建筑 帕琳达·坎南加拉|Palinda Kannangara事务所 & 设计师 下载原图 收藏 0 关于作者 帕琳达·坎南加拉|Palinda Kannangara事务所 & 设计师 关注私信 21 文章 0 评论 0 粉丝 帕琳达·坎南加拉(Palinda Kannangara)是斯里兰卡最具影响力的当代建筑师之一,以其创新的热带现代主义设计而闻名。他的作品深刻诠释了建筑与自然、光线的对话,擅长运用本地材料与现代工艺,创造出既具私密性又开放于景观的空间。其官方网站 www.palindakannangara.com 全面展示了他的住宅、酒店与文化项目,是了解其设计哲学、完整作品集及所获国际奖项的重要窗口。 假日别墅,阿维什瓦拉 / Holiday Bungalow in Avissawella | 帕琳达·坎南加拉|Palinda Kannangara 上一篇 2026-04-09 上午9:31 S House / S House | HArquitectes 下一篇 2026-04-11 下午9:20 猜你喜欢 城市切片住宅 / Urban Slice House | 帕琳达·坎南加拉|Palinda Kannangara 2025-12-19 住宅建筑设计 五幢松间房 / FIVE HOMES AMONG PINES | Taller Héctor Barroso 2026-02-19 住宅建筑设计 The Frame – 假日度假屋 / The Frame – Holiday Retreat in Imaduwa | 帕琳达·坎南加拉|Palinda Kannangara 2026-04-04 住宅建筑设计 艺术家避暑所 帕特鲁加纳拉 / Artists’ Retreat in Pittugala | 帕琳达·坎南加拉|Palinda Kannangara 2025-12-25 住宅建筑设计 城市切片住宅 / Urban Slice House | 帕琳达·坎南加拉|Palinda Kannangara 2026-04-04 住宅建筑设计 健康疗养在哈巴纳 / Wellness Retreat in Habarana | 帕琳达·坎南加拉|Palinda Kannangara 2025-12-26 商业与综合建筑 发表回复 请登录后评论...登录后才能评论 提交