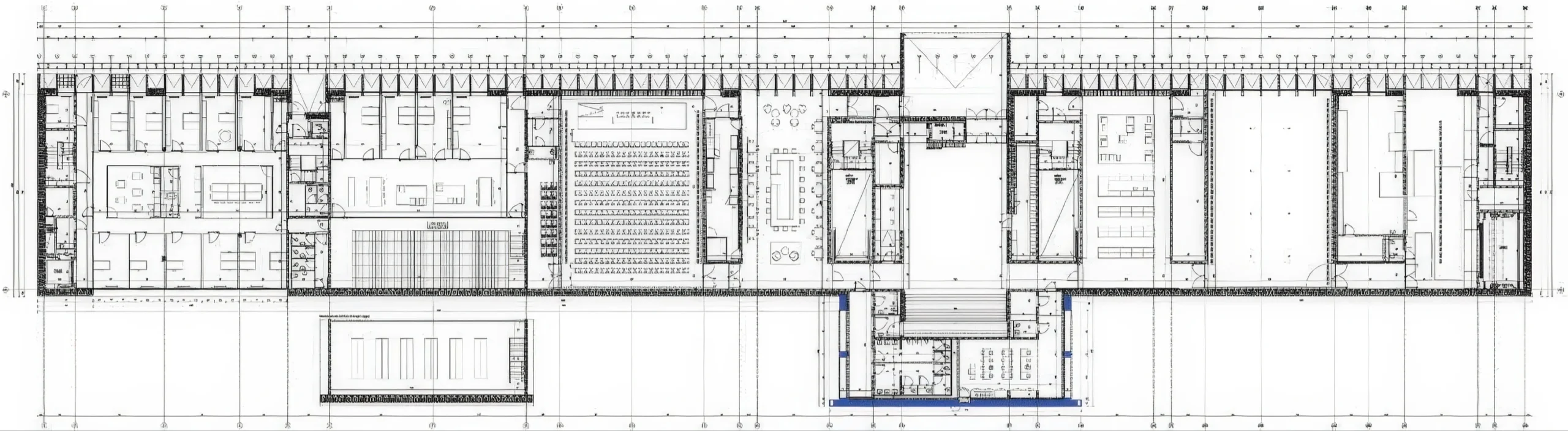
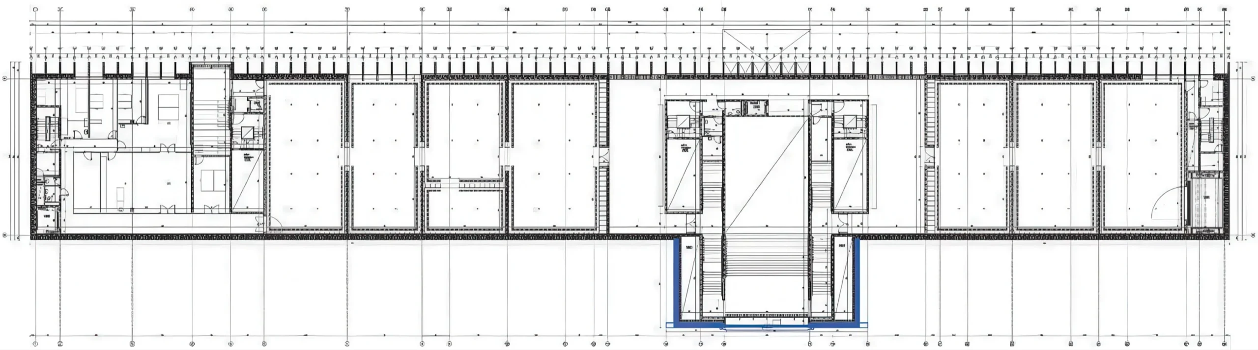
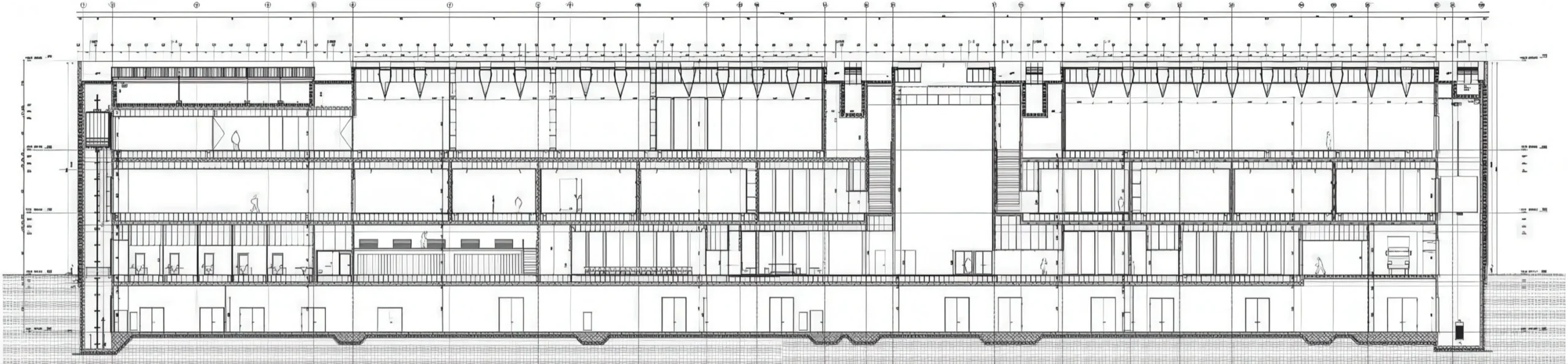
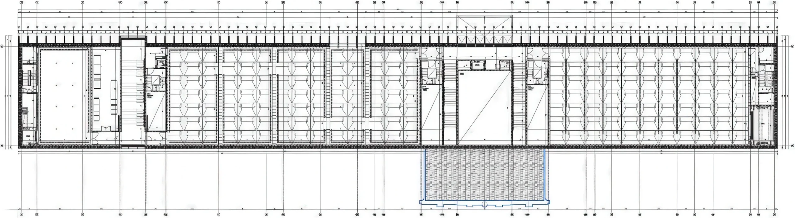
洛桑艺术博物馆 / Fine Arts Museum, Lausanne | 巴罗齐与维加建筑事务所什切青 巴罗齐与维加建筑事务所|Barozzi Veiga • 2026-04-15 下午10:55 • 公共建筑设计, 建筑设计, 文化建筑设计 设计: 巴罗齐与维加建筑事务所|Barozzi Veiga 类型: 文化建筑设计 功能: 博物馆 风格: 当代建筑 材料: 混凝土 钢材 玻璃 尺度: 中型建筑 地点:洛桑 时间: 1970年 项目概述 洛桑艺术博物馆位于瑞士洛桑市,是一座重要的文化建筑,作为城市艺术区改造的核心组成部分。该项目由巴罗齐与维加建筑事务所设计,始于2011年,旨在将废弃铁路区域转变为集三大博物馆于一体的艺术社区。 设计理念 洛桑艺术博物馆的设计理念围绕城市记忆与当代功能的平衡展开。设计团队通过保留历史工业建筑片段,如旧仓库立面,将其作为建筑的核心元素,既回应了场地历史,又创造了新的城市公共空间。这种策略使建筑在保持形式自主性的同时,与城市脉络建立深层联系。 空间与功能 洛桑艺术博物馆的空间组织以中央大厅为核心,围绕历史立面展开展览流线。建筑内部延续外部空间逻辑,形成连续的空间体验。主要功能包括永久展览区、临时展览空间、教育区域和公共服务设施,通过精确的动线设计实现各功能区块的高效连接。 材料与技术 洛桑艺术博物馆采用混凝土、钢材和玻璃等材料,体现工业遗产与现代建筑的融合。结构体系强调清晰性,外墙设计如防护墙体,精确划分工业区域与公共空间。天窗系统提供自然采光,展现对可持续性和建筑性能的细致考量。 项目特色与启发 洛桑艺术博物馆的独特之处在于其对历史片段的创造性转化,为城市更新项目提供了新范式。该项目展示了如何在复杂城市环境中平衡保护与创新,对当代文化建筑设计和城市再生实践具有重要参考价值。 设计团队 巴罗齐与维加建筑事务所是西班牙知名建筑设计团队,以文化建筑和城市更新项目著称。事务所在处理历史语境与当代需求方面具有丰富经验,其作品强调建筑与城市的对话,洛桑艺术博物馆充分体现了这一设计理念。 项目概述 洛桑艺术博物馆位于瑞士洛桑市,是一座重要的文化建筑,作为城市艺术区改造的核心组成部分。该项目由巴罗齐与维加建筑事务所设计,始于2011年,旨在将废弃铁路区域转变为集三大博物馆于一体的艺术社区。 设计理念 洛桑艺术博物馆的设计理念围绕城市记忆与当代功能的平衡展开。设计团队通过保留历史工业建筑片段,如旧仓库立面,将其作为建筑的核心元素,既回应了场地历史,又创造了新的城市公共空间。这种策略使建筑在保持形式自主性的同时,与城市脉络建立深层联系。 空间与功能 洛桑艺术博物馆的空间组织以中央大厅为核心,围绕历史立面展开展览流线。建筑内部延续外部空间逻辑,形成连续的空间体验。主要功能包括永久展览区、临时展览空间、教育区域和公共服务设施,通过精确的动线设计实现各功能区块的高效连接。 材料与技术 洛桑艺术博物馆采用混凝土、钢材和玻璃等材料,体现工业遗产与现代建筑的融合。结构体系强调清晰性,外墙设计如防护墙体,精确划分工业区域与公共空间。天窗系统提供自然采光,展现对可持续性和建筑性能的细致考量。 项目特色与启发 洛桑艺术博物馆的独特之处在于其对历史片段的创造性转化,为城市更新项目提供了新范式。该项目展示了如何在复杂城市环境中平衡保护与创新,对当代文化建筑设计和城市再生实践具有重要参考价值。 设计团队 巴罗齐与维加建筑事务所是西班牙知名建筑设计团队,以文化建筑和城市更新项目著称。事务所在处理历史语境与当代需求方面具有丰富经验,其作品强调建筑与城市的对话,洛桑艺术博物馆充分体现了这一设计理念。 本文来自 © 巴罗齐与维加建筑事务所|Barozzi Veiga, 发布于 © 建筑学院官方网站。 未经授权,禁止转载或摘编。 编辑版本版权归 © 建筑学院官方网站 所有, 设计、图纸及照片版权归设计方 © 巴罗齐与维加建筑事务所|Barozzi Veiga ↗ 所有。 查看作者在建筑学院发布的更多作品: 巴罗齐与维加建筑事务所|Barozzi Veiga @ 建筑学院官方网站 Fine Arts Museum Lausanne城市更新巴罗齐与维加建筑事务所洛桑文化建筑艺术博物馆设计 巴罗齐与维加建筑事务所|Barozzi Veiga事务所 & 设计师 下载原图 收藏 0 关于作者 巴罗齐与维加建筑事务所|Barozzi Veiga事务所 & 设计师 关注私信 9 文章 0 评论 0 粉丝 巴罗齐与维加建筑事务所(Barozzi Veiga)是2004年由Fabrizio Barozzi和Alberto Veiga在巴塞罗那创立的事务所,专注于文化、公民和教育类公共建筑。他们以理性而诗意的极简美学著称,作品强调场地的历史文脉与建构的清晰逻辑。其代表作波兰什切青爱乐音乐厅荣获2015年欧盟当代建筑奖——密斯·凡·德·罗奖,瑞士洛桑美术馆等项目则体现了他们对光线、材料与公共空间塑造的深刻探索。 斯克茨恩歌剧院 / Philharmonic Hall In Szczecin | 巴罗齐与维加建筑事务所 上一篇 2026-04-15 下午10:48 上海美术馆 / Fine Arts Museum, Chur | 巴罗齐与维加建筑事务所|Barozzi Veiga 下一篇 2026-04-17 下午8:05 猜你喜欢 红坊要拆了!软妹币最终还是压垮了情怀 2017-07-20 办公建筑设计 曾宪梓纪念馆 / GWP新作 2022-03-16 公共建筑设计 成都彭州龙兴寺区域城市更新 / BIAD-ASA筑景工作室 2024-02-29 城市规划 Z31商业改造,获选2020伦敦设计奖”国际商业改造”银奖 / 王川,易伟,滕树杰,虞舜超 2020-11-30 商业建筑设计 先锋巍山崇正书院 / 迹·建筑事务所(TAO) 2024-05-27 公共建筑设计 工业遗存的保护与活用:宝地合肥钢铁五厂改造项目 / UA尤安设计 2022-08-15 工业建筑 发表回复 请登录后评论...登录后才能评论 提交