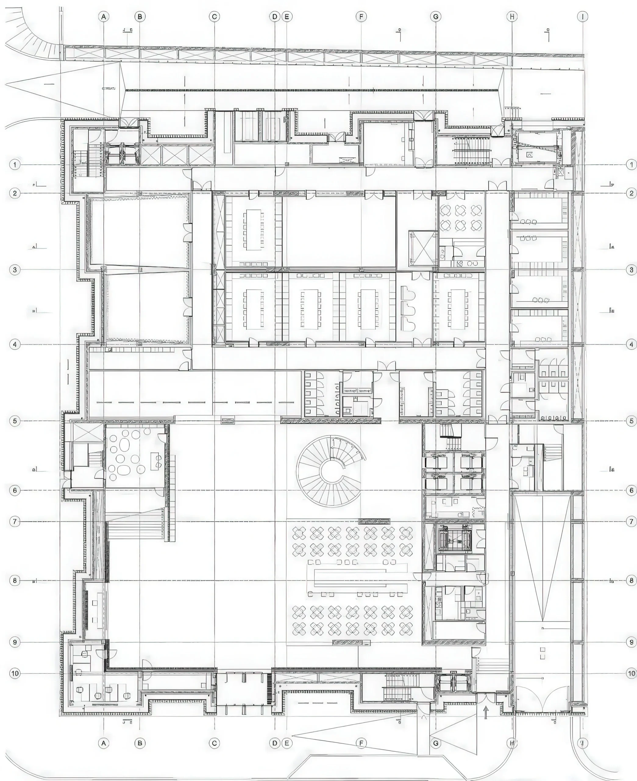
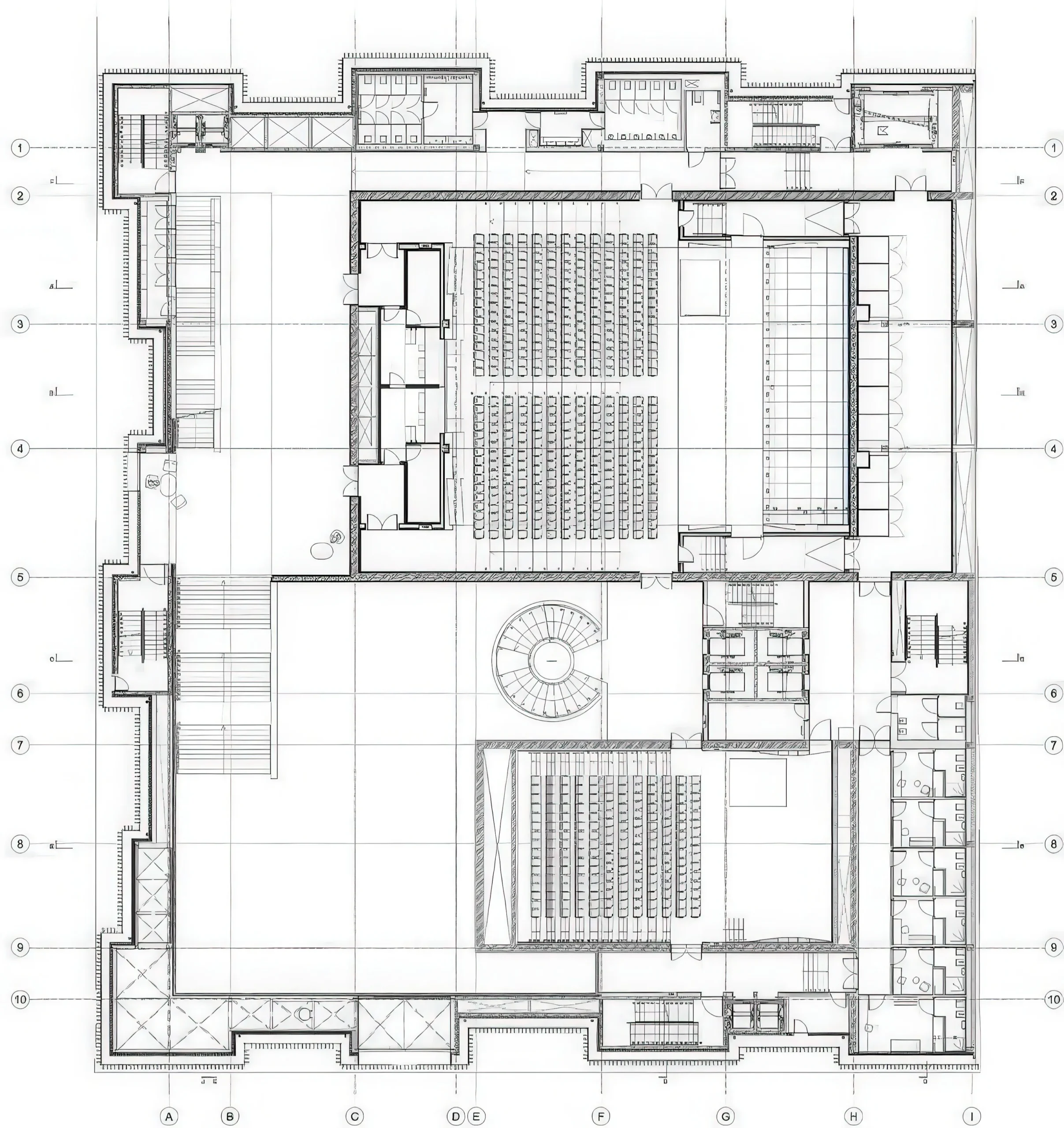
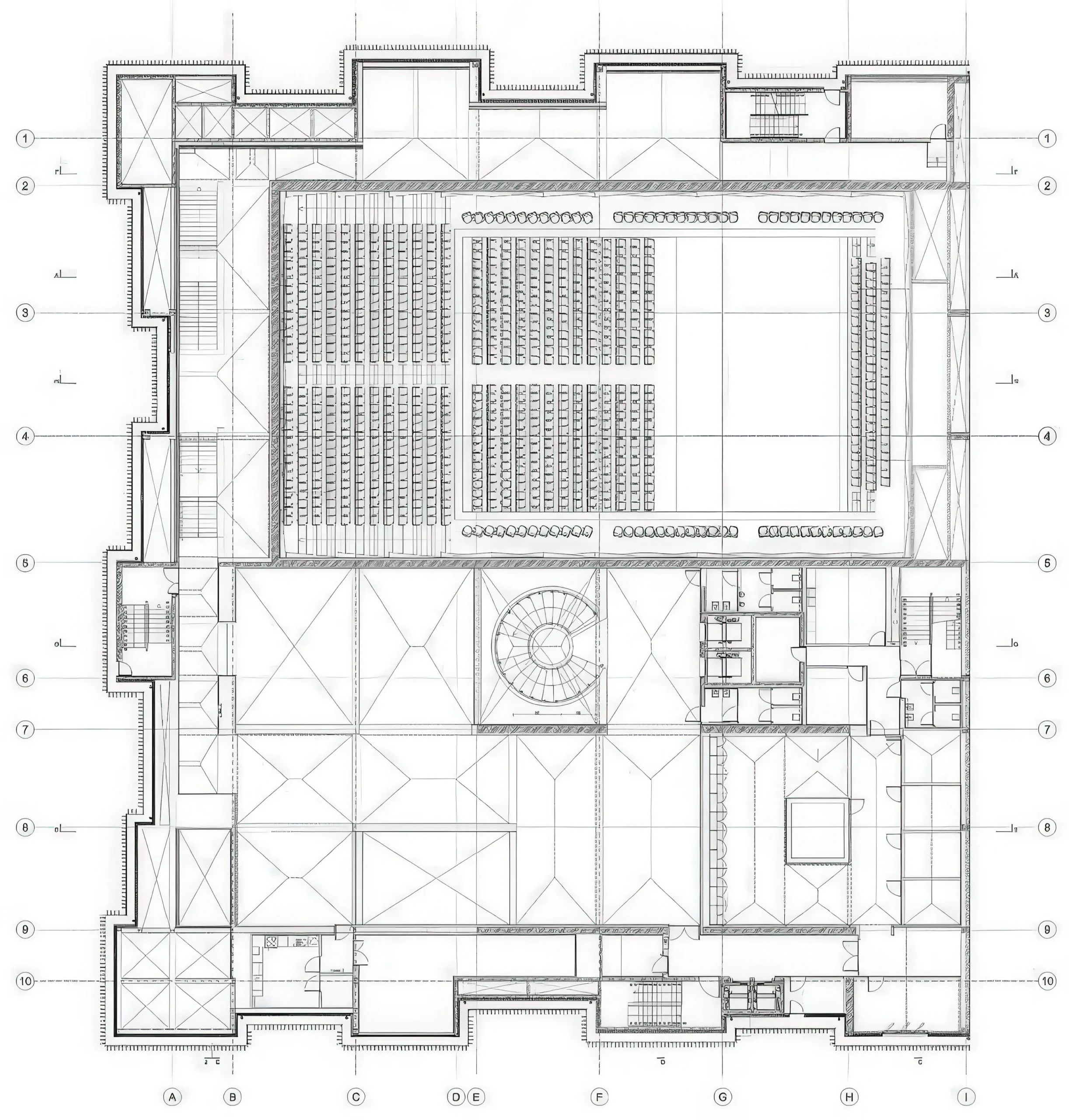
斯克茨恩歌剧院 / Philharmonic Hall In Szczecin | 巴罗齐与维加建筑事务所 巴罗齐与维加建筑事务所|Barozzi Veiga • 2025-11-13 上午8:50 • 公共建筑设计, 建筑设计, 文化建筑设计 斯克茨恩歌剧院由巴罗齐与维加建筑事务所设计,位于波兰什切青市,是一座集交响乐厅与室内乐厅于一体的文化建筑。该项目荣获2015年密斯·凡·德罗奖,通过现代建筑语言重新诠释中欧表现主义传统,创造出既融入城市文脉又具自主性的标志性建筑。 设计: 巴罗齐与维加建筑事务所|Barozzi Veiga 类型: 文化建筑设计 功能: 文化中心 风格: 当代建筑 材料: 混凝土 钢材 玻璃 金属板 尺度: 大型建筑 地点: 什切青 时间: 2014年 项目概述 斯克茨恩歌剧院位于波兰什切青市,是一座集交响乐厅与室内乐厅于一体的文化建筑。项目在原音乐厅旧址上重建,设计始于2007年,于2014年完工,总建筑面积约10,000平方米。这座建筑不仅延续了场地历史记忆,更以当代建筑语言重新定义了文化空间的可能性。 设计理念 巴罗齐与维加建筑事务所以中欧表现主义建筑为灵感,创造出既与城市文脉对话又具形式自主性的建筑。设计团队通过研究场地历史与城市肌理,将传统建筑元素如体量感、垂直性与屋顶形式转化为现代建筑语言,使斯克茨恩歌剧院成为连接过去与未来的文化桥梁。 空间与功能 斯克茨恩歌剧院内部空间组织清晰,服务空间与交通核沿建筑周边布置,为中心的音乐厅创造开阔自由的区域。交响乐厅可容纳近1000名观众,室内乐厅规模较小,两个厅堂通过精心的声学设计确保最佳音响效果。建筑流线设计使观众在进入厅堂前能体验城市景观,强化内外空间的连续性。 材料与技术 建筑外立面采用玻璃幕墙系统,通过透明与半透明的变化创造丰富的视觉效果。内部音乐厅墙面采用金箔覆盖的装饰元素,其碎片化程度遵循斐波那契数列,既满足声学需求又体现工艺美学。结构系统采用钢框架与混凝土核心筒结合,确保建筑稳定性与灵活性。 项目特色与启发 斯克茨恩歌剧院项目展示了文化建筑如何平衡传统与现代、地域性与普适性。其获得密斯·凡·德罗奖2015年殊荣,证明了设计在建筑创新与文化表达方面的卓越成就。该项目为当代文化建筑设计提供了重要参考,特别是在城市更新背景下如何通过建筑重塑城市 identity。 设计团队 巴罗齐与维加建筑事务所由Fabrizio Barozzi和Alberto Veiga于2004年在巴塞罗那创立,专注于文化、教育与公共建筑领域。事务所以严谨的研究方法与精致的建筑语言著称,擅长通过现代手法诠释传统建筑元素,创造具有深度文化内涵的建筑作品。 项目概述 斯克茨恩歌剧院位于波兰什切青市,是一座集交响乐厅与室内乐厅于一体的文化建筑。项目在原音乐厅旧址上重建,设计始于2007年,于2014年完工,总建筑面积约10,000平方米。这座建筑不仅延续了场地历史记忆,更以当代建筑语言重新定义了文化空间的可能性。 设计理念 巴罗齐与维加建筑事务所以中欧表现主义建筑为灵感,创造出既与城市文脉对话又具形式自主性的建筑。设计团队通过研究场地历史与城市肌理,将传统建筑元素如体量感、垂直性与屋顶形式转化为现代建筑语言,使斯克茨恩歌剧院成为连接过去与未来的文化桥梁。 空间与功能 斯克茨恩歌剧院内部空间组织清晰,服务空间与交通核沿建筑周边布置,为中心的音乐厅创造开阔自由的区域。交响乐厅可容纳近1000名观众,室内乐厅规模较小,两个厅堂通过精心的声学设计确保最佳音响效果。建筑流线设计使观众在进入厅堂前能体验城市景观,强化内外空间的连续性。 材料与技术 建筑外立面采用玻璃幕墙系统,通过透明与半透明的变化创造丰富的视觉效果。内部音乐厅墙面采用金箔覆盖的装饰元素,其碎片化程度遵循斐波那契数列,既满足声学需求又体现工艺美学。结构系统采用钢框架与混凝土核心筒结合,确保建筑稳定性与灵活性。 项目特色与启发 斯克茨恩歌剧院项目展示了文化建筑如何平衡传统与现代、地域性与普适性。其获得密斯·凡·德罗奖2015年殊荣,证明了设计在建筑创新与文化表达方面的卓越成就。该项目为当代文化建筑设计提供了重要参考,特别是在城市更新背景下如何通过建筑重塑城市 identity。 设计团队 巴罗齐与维加建筑事务所由Fabrizio Barozzi和Alberto Veiga于2004年在巴塞罗那创立,专注于文化、教育与公共建筑领域。事务所以严谨的研究方法与精致的建筑语言著称,擅长通过现代手法诠释传统建筑元素,创造具有深度文化内涵的建筑作品。 本文来自 © 巴罗齐与维加建筑事务所|Barozzi Veiga, 发布于 © 建筑学院官方网站。 未经授权,禁止转载或摘编。 编辑版本版权归 © 建筑学院官方网站 所有, 设计、图纸及照片版权归设计方 © 巴罗齐与维加建筑事务所|Barozzi Veiga ↗ 所有。 查看作者在建筑学院发布的更多作品: 巴罗齐与维加建筑事务所|Barozzi Veiga @ 建筑学院官方网站 Philharmonic Hall In Szczecin什切青文化建筑巴罗齐与维加建筑事务所文化建筑 巴罗齐与维加建筑事务所|Barozzi Veiga事务所 & 设计师 下载原图 收藏 0 关于作者 巴罗齐与维加建筑事务所|Barozzi Veiga事务所 & 设计师 关注私信 9 文章 0 评论 0 粉丝 巴罗齐与维加建筑事务所(Barozzi Veiga)是2004年由Fabrizio Barozzi和Alberto Veiga在巴塞罗那创立的事务所,专注于文化、公民和教育类公共建筑。他们以理性而诗意的极简美学著称,作品强调场地的历史文脉与建构的清晰逻辑。其代表作波兰什切青爱乐音乐厅荣获2015年欧盟当代建筑奖——密斯·凡·德·罗奖,瑞士洛桑美术馆等项目则体现了他们对光线、材料与公共空间塑造的深刻探索。 水网编织的未来聚落 | CROX闊合 上一篇 2025-11-12 下午12:59 开罗住宅 House in Keremma | 拉卡东与瓦萨尔建筑师事务所|Lacaton & Vassal 下一篇 2025-11-13 下午12:50 猜你喜欢 沃尔特会议和文化中心 Würth Conference and Culture Centre | 大卫·奇珀菲尔德建筑事务所|David 2025-11-23 公共建筑设计 奥斯特鲁姆的套房和别墅 / Suites and Villas, Estremoz | 阿尔瓦罗·西扎|Álvaro Siza 2025-12-20 公共建筑设计 伯格曼中心基金会 Bergman Center Foundation | 谭姆与维德高德建筑事务所|Tham & Videgård 2025-11-16 公共建筑设计 巴林王国国家馆 / National Pavilion of the Kingdom of Bahrain | 安妮·霍尔特罗普|Anne Holtrop 2025-12-21 公共建筑设计 巴林王国国家馆 / National Pavilion of the Kingdom of Bahrain | 安妮·霍尔特罗普|Anne Holtrop 2026-03-10 公共建筑设计 诺贝尔中心 Nobel Center | 大卫·奇珀菲尔德建筑事务所|David Chipperfield 2025-11-13 公共建筑设计 发表回复 请登录后评论...登录后才能评论 提交