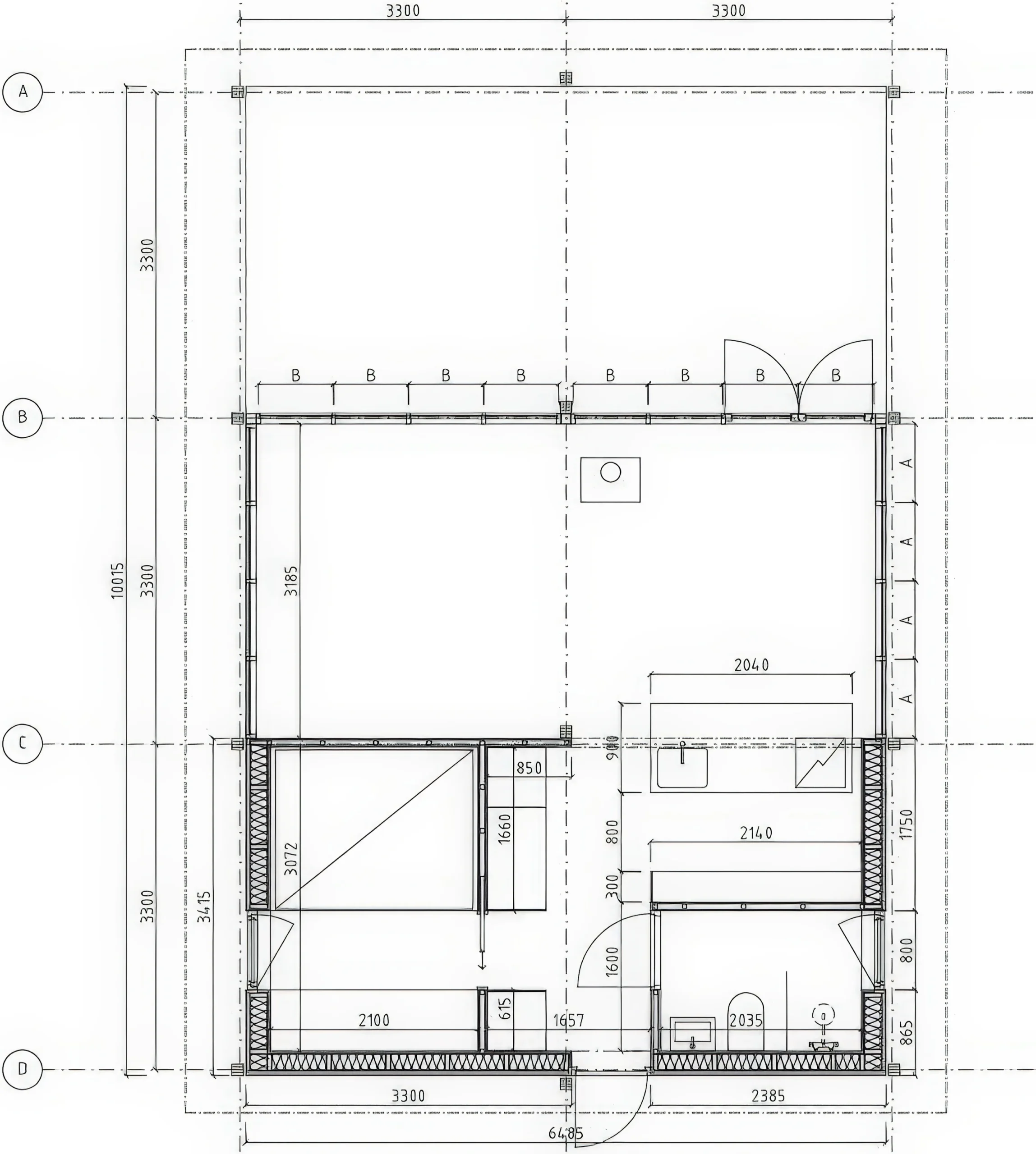
viggsö 楼屋 / House in Viggsö | Arrhov Frick Arrhov Frick • 2026-01-23 上午9:19 • 住宅建筑设计, 建筑设计, 独立住宅设计 viggsö 楼屋由 Arrhov Frick 建筑事务所设计,位于斯德哥尔摩群岛的维格索小岛上。这座独立住宅采用层压木框架结构,巧妙融入岩石与松树林的自然景观,通过精密的物流规划解决了偏远岛屿建设的挑战。 设计: Arrhov Frick 类型: 独立住宅设计 功能: 独立住宅 风格: 当代建筑 材料: 木材 玻璃 尺度: 小型建筑 地点:斯德哥尔摩群岛 时间: 2016年 项目概述 viggsö 楼屋位于瑞典斯德哥尔摩群岛的维格索小岛上,是一座独立住宅建筑。项目采用创新的层压木结构体系,设计团队通过精密的物流规划解决了偏远岛屿建设的特殊挑战。 设计理念 Arrhov Frick 建筑事务所的设计理念源于对场地自然景观的深度尊重。设计师通过绳索在地面绘制可能的建筑足迹,经过两年时间才确定最佳位置,确保建筑与周围的岩石、松树和石楠植被和谐共存。 空间与功能 viggsö 楼屋采用三重空间布局:从封闭的生活区开始,包括客人及儿童使用的阁楼空间,过渡到玻璃围合的客厅,最终延伸至宽敞的开放式露台。这种布局创造了从私密到开放的渐进式空间体验。 材料与技术 建筑主要采用层压木材框架结构,所有材料和构件都经过精确计算,便于客户从50米外的海岸线运输。木框架在三天内搭建完成,并作为后续施工的脚手架,体现了高效的建设策略。 项目特色与启发 viggsö 楼屋展示了在偏远环境中实现精致建筑的可能性,为类似场地条件的住宅设计提供了重要参考。Arrhov Frick 建筑事务所在本项目中的创新物流解决方案值得建筑师学习借鉴。 设计团队 Arrhov Frick 是一家瑞典建筑事务所,以其对材料、结构和场地的敏感处理而闻名。事务所在住宅设计中注重建筑与自然环境的对话,viggsö 楼屋充分体现了他们的设计哲学。 项目概述 viggsö 楼屋位于瑞典斯德哥尔摩群岛的维格索小岛上,是一座独立住宅建筑。项目采用创新的层压木结构体系,设计团队通过精密的物流规划解决了偏远岛屿建设的特殊挑战。 设计理念 Arrhov Frick 建筑事务所的设计理念源于对场地自然景观的深度尊重。设计师通过绳索在地面绘制可能的建筑足迹,经过两年时间才确定最佳位置,确保建筑与周围的岩石、松树和石楠植被和谐共存。 空间与功能 viggsö 楼屋采用三重空间布局:从封闭的生活区开始,包括客人及儿童使用的阁楼空间,过渡到玻璃围合的客厅,最终延伸至宽敞的开放式露台。这种布局创造了从私密到开放的渐进式空间体验。 材料与技术 建筑主要采用层压木材框架结构,所有材料和构件都经过精确计算,便于客户从50米外的海岸线运输。木框架在三天内搭建完成,并作为后续施工的脚手架,体现了高效的建设策略。 项目特色与启发 viggsö 楼屋展示了在偏远环境中实现精致建筑的可能性,为类似场地条件的住宅设计提供了重要参考。Arrhov Frick 建筑事务所在本项目中的创新物流解决方案值得建筑师学习借鉴。 设计团队 Arrhov Frick 是一家瑞典建筑事务所,以其对材料、结构和场地的敏感处理而闻名。事务所在住宅设计中注重建筑与自然环境的对话,viggsö 楼屋充分体现了他们的设计哲学。 本文来自 © Arrhov Frick, 发布于 © 建筑学院官方网站。 未经授权,禁止转载或摘编。 编辑版本版权归 © 建筑学院官方网站 所有, 设计、图纸及照片版权归设计方 © Arrhov Frick ↗ 所有。 查看作者在建筑学院发布的更多作品: Arrhov Frick @ 建筑学院官方网站 Arrhov Frickhouse-in-viggso当代木结构建筑斯德哥尔摩群岛建筑独立住宅设计 Arrhov Frick事务所 & 设计师 下载原图 收藏 0 关于作者 Arrhov Frick事务所 & 设计师 关注私信 16 文章 0 评论 1 粉丝 Arrhov Frick 是由 Johan Arrhov 和 Henrik Frick 于2010年在斯德哥尔摩创立的建筑事务所。他们以清晰的建造逻辑、实用的空间规划和极简的美学著称,设计涵盖私人住宅、集合住宅及文化建筑。其官网 arrhovfrick.se 完整展示了他们的作品与实践理念。 格里丝尔海姆诺别墅 / Grisslehamn House | Arrhov Frick 上一篇 2026-01-23 上午9:18 别墅托维诺森 / Villa Toivonen | Arrhov Frick 下一篇 2026-01-24 上午9:55 猜你喜欢 巴西贝萨雷斯保护区两座房子 | 曼努埃尔·塞万提斯|Manuel Cervantes 2025-12-07 公共建筑设计 圣皮埃德拉帕斯的房屋 / House in San Pedro de la Paz | Pezo Von Ellrichshausen 2026-02-03 住宅建筑设计 Casa de Navidad / House in Navidad | Pezo Von Ellrichshausen 2026-02-05 住宅建筑设计 克拉多伊村屋 House in Campolide | 艾雷斯·马特乌斯建筑事务所|Aires Mateus 2025-10-30 公共建筑设计 乌尔斯塔雷之家 / House in Ullastret | HArquitectes 2026-04-06 住宅建筑设计 小拉格哈姆的房子 / House in Lilla Rågholmen | Arrhov Frick 建筑事务所 2025-12-23 住宅建筑设计 发表回复 请登录后评论...登录后才能评论 提交