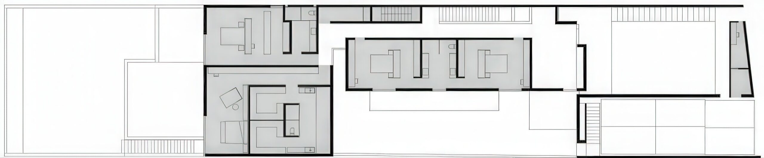
阿马特佩克的房子 House in Amatepec | 曼努埃尔·塞万提斯|Manuel Cervantes 曼努埃尔·塞万提斯|Manuel Cervantes • 2025-12-04 上午8:50 • 公共建筑设计, 建筑师, 建筑设计, 文化建筑设计 阿马特佩克的房子位于墨西哥城边缘的峡谷地带,由曼努埃尔·塞万提斯设计。这座独立住宅巧妙利用77米深的狭长地形,通过白色陶瓷立面与光影互动,将绿色空间延伸至每个功能区,实现室内外空间的无缝融合。设计充分尊重原始地形高差,创造出多层次的生活体验。 设计: 曼努埃尔·塞万提斯|Manuel Cervantes 类型: 文化建筑设计 功能: 独立住宅 风格: 当代建筑 材料: 混凝土 玻璃 石材 陶瓷 尺度: 小型建筑 地点:墨西哥 时间: 2020年 项目简介 阿马特佩克的房子位于墨西哥城,是一座独立住宅项目。建筑占地面积约1078平方米,设计充分利用77米深的狭长地块,于近年设计建成。项目巧妙应对峡谷边缘的复杂地形条件。 设计理念 设计团队以尊重自然地形为核心策略,通过白色陶瓷立面的体量组合创造丰富的光影效果。项目将绿色空间作为各功能区域的延伸,实现建筑与自然的深度对话,展现当代建筑的地域性表达。 空间与功能 建筑分为三层空间组织:地面层设置多功能社交区,通过走廊连接各个绿色区域;上层包含四间卧室,分别面向中央花园和峡谷景观;地下层配备健身房和多用途空间。入口处利用现有蓝花楹树营造芳香花园。 材料与技术 主要采用白色陶瓷立面材料、钢筋混凝土结构、北极白克林克砖隔墙和大理石饰面。建筑通过精密的防水系统和排水设计应对峡谷环境,同时运用嵌入式照明和干式天花板技术。 设计团队 曼努埃尔·塞万提斯建筑事务所专注于住宅设计和城市项目,以对地形、光线和材料的细腻处理著称,在墨西哥当代建筑界具有重要影响力。 项目简介 阿马特佩克的房子位于墨西哥城,是一座独立住宅项目。建筑占地面积约1078平方米,设计充分利用77米深的狭长地块,于近年设计建成。项目巧妙应对峡谷边缘的复杂地形条件。 设计理念 设计团队以尊重自然地形为核心策略,通过白色陶瓷立面的体量组合创造丰富的光影效果。项目将绿色空间作为各功能区域的延伸,实现建筑与自然的深度对话,展现当代建筑的地域性表达。 空间与功能 建筑分为三层空间组织:地面层设置多功能社交区,通过走廊连接各个绿色区域;上层包含四间卧室,分别面向中央花园和峡谷景观;地下层配备健身房和多用途空间。入口处利用现有蓝花楹树营造芳香花园。 材料与技术 主要采用白色陶瓷立面材料、钢筋混凝土结构、北极白克林克砖隔墙和大理石饰面。建筑通过精密的防水系统和排水设计应对峡谷环境,同时运用嵌入式照明和干式天花板技术。 设计团队 曼努埃尔·塞万提斯建筑事务所专注于住宅设计和城市项目,以对地形、光线和材料的细腻处理著称,在墨西哥当代建筑界具有重要影响力。 本文来自 © 曼努埃尔·塞万提斯|Manuel Cervantes, 发布于 © 建筑学院官方网站。 未经授权,禁止转载或摘编。 编辑版本版权归 © 建筑学院官方网站 所有, 设计、图纸及照片版权归设计方 © 曼努埃尔·塞万提斯|Manuel Cervantes ↗ 所有。 查看作者在建筑学院发布的更多作品: 曼努埃尔·塞万提斯|Manuel Cervantes @ 建筑学院官方网站 墨西哥城曼努埃尔·塞万提斯独立住宅设计阿马特佩克的房子陶瓷立面 曼努埃尔·塞万提斯|Manuel Cervantes事务所 & 设计师 下载原图 收藏 0 关于作者 曼努埃尔·塞万提斯|Manuel Cervantes事务所 & 设计师 关注私信 19 文章 0 评论 0 粉丝 曼努埃尔·塞万提斯是墨西哥极具影响力的新生代建筑师。他的事务所以对材料、光线与构造的深刻理解和娴熟运用而闻名,尤其擅长运用夯土、木材和混凝土等本土材料,创造出与场地和环境紧密相连的现代建筑。其作品涵盖住宅、文化及商业项目,展现了简洁、宁静而富有 tactile 质感的设计美学。 郑州的高层建筑 Highrise in Zhengzhou 2 | 克里斯蒂安·凯雷兹|Christian Kerez 上一篇 2025-12-03 上午8:50 伊维萨与福门特拉音乐舞蹈学院 / Music and Dance Conservatory of Ibiza and Formentera | 阿尔弗雷多·帕亚|Alfredo Payá 下一篇 2025-12-04 上午9:50 猜你喜欢 阿赫玛德巴德住宅 Ahmedabad Residence | 孟买工作室(Studio Mumbai)|Studio Mumbai 2026-01-15 住宅室内设计 荷兰私人住宅,霍伊莱特 / Private house, Hoeilaart | Xaveer de Geyter 2026-02-26 住宅建筑设计 珊瑚岛住宅 Archipelago House | 谭姆与维德高德建筑事务所|Tham & Videgård 2025-11-09 住宅室内设计 圣弗朗西斯科文化公园花园 / Jardim Sao Francisco Cultural Centre | Estúdio Gustavo Utrabo 2026-01-03 住宅建筑设计 海岛住宅 Island Houses | 谭姆与维德高德建筑事务所|Tham & Videgård 2025-11-12 公共建筑设计 阿尔泰罗尼海岸上的房子 / House on the Alentejo Coast | 艾雷斯·马特乌斯建筑事务所 2025-11-09 公共建筑设计 发表回复 请登录后评论...登录后才能评论 提交