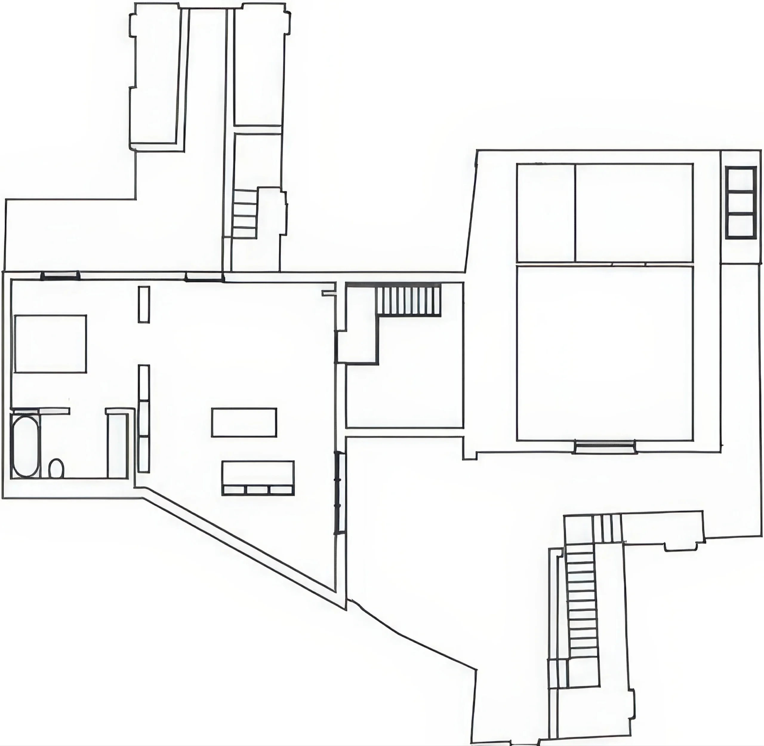
六号奥斯特塔 / 6a OHSt | 6a 建筑事务所|6a architects 6a 建筑事务所|6a architects • 2026-04-22 下午9:29 • 住宅建筑设计, 建筑设计, 独立住宅设计 六号奥斯特塔由+6a建筑事务所设计,将两座拥有200年历史的旧车间改造为住宅与工作室混合空间。项目通过新增木结构屋顶连接两栋建筑,创造双层高入口大厅,并引入丹·皮尔逊设计的围墙花园,展现历史建筑与现代生活的有机融合。 设计: 6a 建筑事务所|6a architects 类型: 独立住宅设计 功能: 独立住宅 风格: 当代建筑 材料: 木材 玻璃 砖材 尺度: 小型建筑 地点:伦敦 时间: 1970年 项目概述 六号奥斯特塔项目位于伦敦,由+6a建筑事务所将两座原为马车房和工坊的200年历史建筑改造为住宅与工作室混合空间。项目通过精心设计保留了建筑的历史痕迹,同时注入现代功能需求,形成独特的居住工作环境。 设计理念 设计理念强调对历史建筑的尊重与延续,保留了两个世纪以来持续小规模改造的痕迹。+6a建筑事务所借鉴弗兰克·盖里在圣莫尼卡自宅的手法,采用”永久未完成”的设计哲学,让建筑在时间中自然演进,形成有机的空间叙事。 空间与功能 空间组织围绕三个主要区域展开,大型天窗和采光井定义主要空间,辅助房间面向狭窄的围墙花园。新建的木结构屋顶创造双层高入口大厅和楼梯间,巧妙连接两栋建筑。功能在工作室、住宅和办公室之间灵活转换,形成复合使用模式。 材料与技术 项目大量使用木材、胶合板、屋面防水毡等原始材料,结合专有楼梯系统和砖砌修复。新建木屋顶采用与相邻两层建筑相似的构造和天窗设计,保持了建筑群的视觉连贯性。材料的选择体现了对历史建筑的延续性思考。 项目特色与启发 六号奥斯特塔项目展示了历史建筑适应性再利用的典范,+6a建筑事务所通过最小干预实现最大效果,为类似的城市更新项目提供了参考。项目证明了历史建筑可以通过恰当改造满足当代生活需求,同时保留其独特的时间印记。 设计团队 +6a建筑事务所是英国知名建筑设计团队,以文化建筑、教育建筑和城市更新项目著称。事务所擅长在历史语境中创造当代建筑语言,注重材料真实性和空间体验,在六号奥斯特塔项目中展现了其对历史建筑改造的深厚功底。 项目概述 六号奥斯特塔项目位于伦敦,由+6a建筑事务所将两座原为马车房和工坊的200年历史建筑改造为住宅与工作室混合空间。项目通过精心设计保留了建筑的历史痕迹,同时注入现代功能需求,形成独特的居住工作环境。 设计理念 设计理念强调对历史建筑的尊重与延续,保留了两个世纪以来持续小规模改造的痕迹。+6a建筑事务所借鉴弗兰克·盖里在圣莫尼卡自宅的手法,采用”永久未完成”的设计哲学,让建筑在时间中自然演进,形成有机的空间叙事。 空间与功能 空间组织围绕三个主要区域展开,大型天窗和采光井定义主要空间,辅助房间面向狭窄的围墙花园。新建的木结构屋顶创造双层高入口大厅和楼梯间,巧妙连接两栋建筑。功能在工作室、住宅和办公室之间灵活转换,形成复合使用模式。 材料与技术 项目大量使用木材、胶合板、屋面防水毡等原始材料,结合专有楼梯系统和砖砌修复。新建木屋顶采用与相邻两层建筑相似的构造和天窗设计,保持了建筑群的视觉连贯性。材料的选择体现了对历史建筑的延续性思考。 项目特色与启发 六号奥斯特塔项目展示了历史建筑适应性再利用的典范,+6a建筑事务所通过最小干预实现最大效果,为类似的城市更新项目提供了参考。项目证明了历史建筑可以通过恰当改造满足当代生活需求,同时保留其独特的时间印记。 设计团队 +6a建筑事务所是英国知名建筑设计团队,以文化建筑、教育建筑和城市更新项目著称。事务所擅长在历史语境中创造当代建筑语言,注重材料真实性和空间体验,在六号奥斯特塔项目中展现了其对历史建筑改造的深厚功底。 本文来自 © 6a 建筑事务所|6a architects, 发布于 © 建筑学院官方网站。 未经授权,禁止转载或摘编。 编辑版本版权归 © 建筑学院官方网站 所有, 设计、图纸及照片版权归设计方 © 6a 建筑事务所|6a architects ↗ 所有。 查看作者在建筑学院发布的更多作品: 6a 建筑事务所|6a architects @ 建筑学院官方网站 +6a建筑事务所6a OHSt伦敦住宅改造历史建筑改造混合功能建筑 6a 建筑事务所|6a architects事务所 & 设计师 下载原图 收藏 0 关于作者 6a 建筑事务所|6a architects事务所 & 设计师 关注私信 35 文章 1 评论 0 粉丝 6a architects(6a建筑事务所)是英国知名的建筑设计团队,以其对文化、艺术及教育类建筑的深刻理解而闻名。他们的作品擅长运用精巧的材料与细致的构造,在历史与现代的对话中创造宁静而富有感染力的空间。其代表作包括South London Gallery、MK Gallery改造及剑桥大学校园建筑等。 克鲁威尔法院,丘吉尔学院 / Cowan Court, Churchill College | +6a 建筑事务所|6a architects 上一篇 2026-04-22 下午9:15 罗马尼工作室 / Romney’s Studio | 6a 建筑事务所|6a architects 下一篇 2026-04-23 下午8:53 猜你喜欢 皇家咖啡馆酒店 Hotel Café Royal | 大卫·奇珀菲尔德建筑事务所|David Chipperfield 2025-11-08 商业与综合建筑 Use Building Use Building | 卡鲁索·圣约翰建筑事务所|Caruso St John 2025-12-10 公共建筑设计 阿布达佩德皮多拉斯市政博物馆 / Abade Pedrosa Municipal Museum [MMAP] | 德·莫拉建筑事务所 2026-03-19 公共建筑设计 维多利亚与阿伯特博物馆时尚画廊 / V&A Fashion Galleries | +6a 建筑事务所|6a architects 2026-04-21 住宅建筑设计 树屋 Tree House | +6a 建筑事务所|6a architects 2025-11-02 公共建筑设计 Forum Museumsinsel | 大卫·奇普菲尔德 2025-10-14 公共建筑设计 发表回复 请登录后评论...登录后才能评论 提交