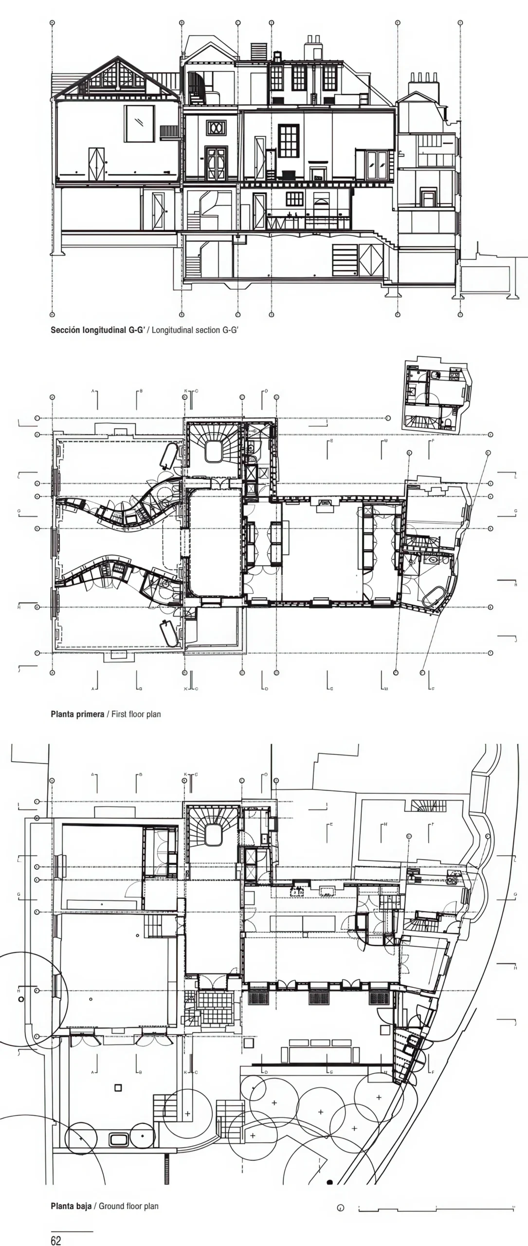
罗马尼工作室 / Romney’s Studio | +6a 建筑事务所|6a architects 6a 建筑事务所|6a architects • 2025-12-11 上午8:50 • 公共建筑设计, 建筑师, 建筑设计, 文化建筑设计 罗马尼工作室由+6a建筑事务所设计,位于伦敦汉普斯特德村,是一座具有200多年历史的文化建筑改造项目。设计通过精心修复与当代介入,重新激活了这座乔治亚时期建筑,保留了原始空间特征的同时融入现代生活功能。 设计: 6a 建筑事务所|6a architects 类型: 文化建筑设计 功能: 文化中心 风格: 当代建筑 材料: 木材 玻璃 石材 金属板 尺度: 小型建筑 地点:伦敦 时间: 2018年 项目概述 罗马尼工作室位于伦敦汉普斯特德村,是一座始建于1796年的历史建筑改造项目。原为画家乔治·罗马尼的工作室与住宅,历经多次功能转变,+6a建筑事务所通过当代设计手法对其进行了全面更新,恢复了建筑的历史特征同时适应现代使用需求。 设计理念 设计团队以”历史层叠”为核心理念,尊重建筑200多年的历史积淀,通过精心介入展现不同时期的建筑痕迹。设计既保留了乔治亚时期的建筑比例与细节,又通过当代元素创造新旧对话,让历史建筑在现代语境中重获新生。 空间与功能 项目重新组织了五米高的工作室空间与画廊区域,通过弧形全高隔断将原有的舞厅空间划分为两个卧室。新建的铅包覆楼梯塔楼连接各楼层直至屋顶露台,蜿蜒的橡木踏步与石灰砂浆墙面营造出丰富的空间体验,同时保留了原始窗户的多层次视野。 材料与技术 设计采用木材作为主要结构材料,移除了过大的钢结构,引入多样化的木支柱与木柱恢复空间高度与比例。铅包覆的楼梯塔楼、弯曲的橡木窗棂、弧形抹灰饰面等细节处理,既呼应了乔治亚时期的建筑语言,又展现了当代工艺的精湛技艺。 项目特色与启发 罗马尼工作室项目展示了历史建筑改造的精细平衡艺术,如何在尊重历史文脉的同时注入当代生活品质。该项目为建筑师在处理历史建筑更新时提供了重要参考,特别是在材料选择、空间重组与历史元素保护方面的创新实践。 设计团队 +6a建筑事务所是一家位于伦敦的建筑实践工作室,以对历史文脉的敏感回应和精致细节处理著称。事务所在文化建筑、教育建筑和住宅项目领域有着丰富经验,擅长通过深入研究与创新设计解决复杂的设计挑战。 项目概述 罗马尼工作室位于伦敦汉普斯特德村,是一座始建于1796年的历史建筑改造项目。原为画家乔治·罗马尼的工作室与住宅,历经多次功能转变,+6a建筑事务所通过当代设计手法对其进行了全面更新,恢复了建筑的历史特征同时适应现代使用需求。 设计理念 设计团队以”历史层叠”为核心理念,尊重建筑200多年的历史积淀,通过精心介入展现不同时期的建筑痕迹。设计既保留了乔治亚时期的建筑比例与细节,又通过当代元素创造新旧对话,让历史建筑在现代语境中重获新生。 空间与功能 项目重新组织了五米高的工作室空间与画廊区域,通过弧形全高隔断将原有的舞厅空间划分为两个卧室。新建的铅包覆楼梯塔楼连接各楼层直至屋顶露台,蜿蜒的橡木踏步与石灰砂浆墙面营造出丰富的空间体验,同时保留了原始窗户的多层次视野。 材料与技术 设计采用木材作为主要结构材料,移除了过大的钢结构,引入多样化的木支柱与木柱恢复空间高度与比例。铅包覆的楼梯塔楼、弯曲的橡木窗棂、弧形抹灰饰面等细节处理,既呼应了乔治亚时期的建筑语言,又展现了当代工艺的精湛技艺。 项目特色与启发 罗马尼工作室项目展示了历史建筑改造的精细平衡艺术,如何在尊重历史文脉的同时注入当代生活品质。该项目为建筑师在处理历史建筑更新时提供了重要参考,特别是在材料选择、空间重组与历史元素保护方面的创新实践。 设计团队 +6a建筑事务所是一家位于伦敦的建筑实践工作室,以对历史文脉的敏感回应和精致细节处理著称。事务所在文化建筑、教育建筑和住宅项目领域有着丰富经验,擅长通过深入研究与创新设计解决复杂的设计挑战。 本文来自 © 6a 建筑事务所|6a architects, 发布于 © 建筑学院官方网站。 未经授权,禁止转载或摘编。 编辑版本版权归 © 建筑学院官方网站 所有, 设计、图纸及照片版权归设计方 © 6a 建筑事务所|6a architects ↗ 所有。 查看作者在建筑学院发布的更多作品: 6a 建筑事务所|6a architects @ 建筑学院官方网站 6a建筑事务所Romney's Studio伦敦文化建筑历史建筑改造 6a 建筑事务所|6a architects事务所 & 设计师 下载原图 收藏 0 关于作者 6a 建筑事务所|6a architects事务所 & 设计师 关注私信 20 文章 1 评论 0 粉丝 6a architects(6a建筑事务所)是英国知名的建筑设计团队,以其对文化、艺术及教育类建筑的深刻理解而闻名。他们的作品擅长运用精巧的材料与细致的构造,在历史与现代的对话中创造宁静而富有感染力的空间。其代表作包括South London Gallery、MK Gallery改造及剑桥大学校园建筑等。 伊克塔帕半岛上的房子 House in Punta Ixtapa | 曼努埃尔·塞万提斯|Manuel Cervantes 上一篇 2025-12-10 上午8:50 麦昆阿历山大系列项目 Alexander McQueen Project | 斯米里扬·拉迪奇|Smiljan Radić 下一篇 2025-12-11 上午8:50 猜你喜欢 MK美术馆 MK Gallery | 6a 建筑事务所 2025-10-23 公共建筑设计 Obernau村酒店 / Guesthouse in Obernau | 吉翁·A·卡米纳达|Gion A. Caminada 6天前 商业与综合建筑 弗雷纳尔德萨米酒店 Hotel in Fregenal de la Sierra | MGM 建筑师事务所|MGM 2025-10-31 公共建筑设计 伯纳达修道院改建项目 Conversion of Bernardas Convent | 德莫拉建筑事务所|De Mora 2025-11-22 公共建筑设计 摄影工作室,Juergen Teller 设计 / Photography Studio for Juergen Teller | +6a 建筑事务所|6a architects 2025-11-02 公共建筑设计 奥利文扎旅店 Tourist Inn in Olivenza | 何塞·玛丽亚·桑切斯·加西亚|José María Sánchez García 2025-12-02 公共建筑设计 发表回复 请登录后评论...登录后才能评论 提交