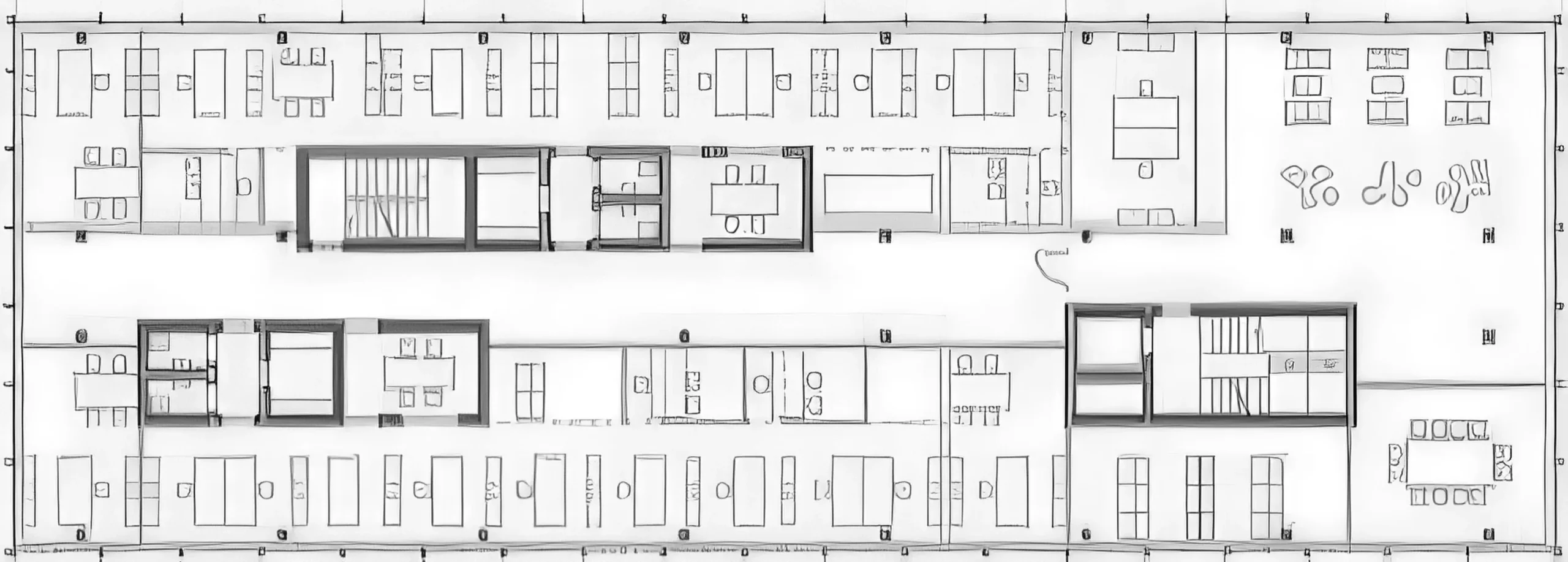
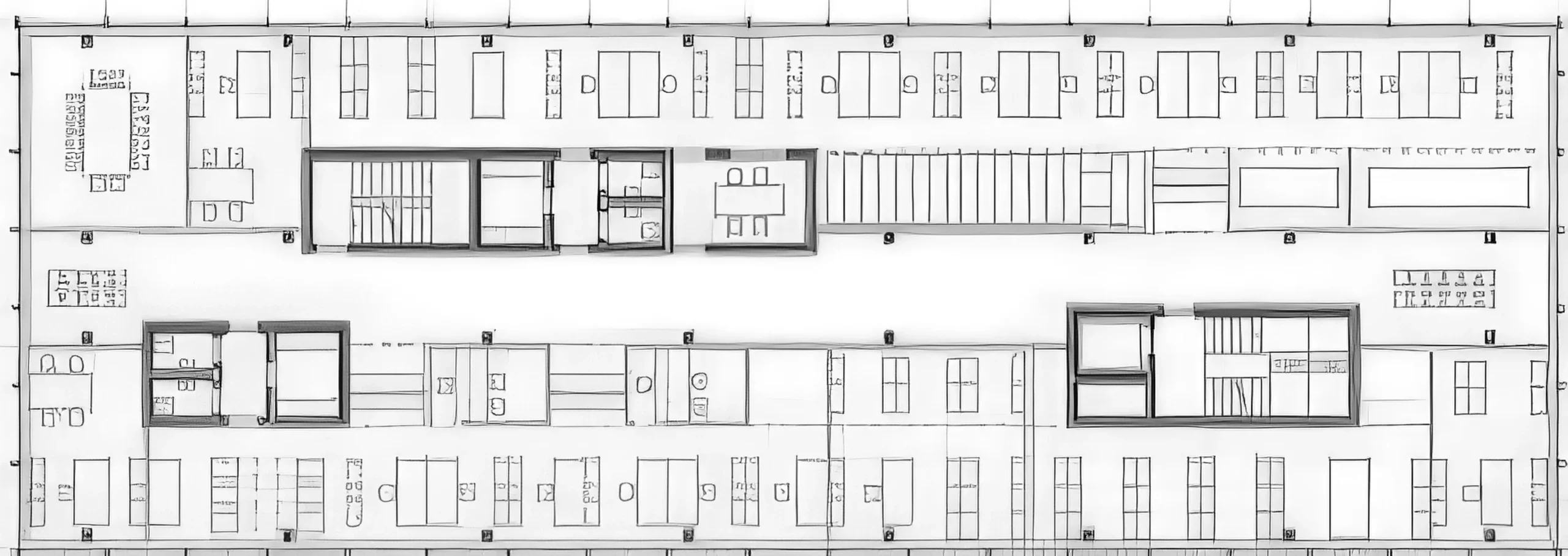
坡上的房子 / House on a Slope | Karamuk Kuo 建筑事务所 Karamuk Kuo 建筑事务所 • 2026-04-26 上午9:30 • 住宅建筑设计, 公寓住宅设计, 建筑设计 坡上的房子由 Karamuk Kuo 建筑事务所设计,位于瑞士楚格州楚利孔的一处山坡上。这座多代共居住宅通过独特的坡地适应策略,将六种不同户型整合在单一山形屋顶下,以现浇混凝土打造出与地形完美融合的现代居住空间。 设计: Karamuk Kuo 建筑事务所 类型: 建筑设计 功能: 公寓住宅 风格: 现代主义 材料: 混凝土 钢材 金属板 尺度: 小型建筑 地点:楚利孔 时间: 1970年 项目概述 坡上的房子位于瑞士楚格州楚利孔的山坡住宅区,是一座多代共居的公寓住宅项目。建筑总面积未公开,设计始于2017年,目前仍在建设中。该项目通过创新的空间组织回应了山坡地形特征。 设计理念 Karamuk Kuo 建筑事务所以”隐形密度”为核心理念,将六种不同户型整合在单一山形屋顶下,既保持了与周边独栋住宅区的协调,又实现了更高的居住密度。设计通过屋顶脊线严格跟随地形坡度,最大化可利用体积,同时突出的南向悬挑屋檐为建筑赋予独特特征。 空间与功能 坡上的房子内部空间采用错层设计,跟随地形坡度形成丰富的空间层次。六种户型包括从单人到家庭的不同规模,每个单元都拥有私人户外空间。多样的窗户类型提供了与周围环境的不同关系,同时巧妙地掩饰了建筑的实际尺度。 材料与技术 项目采用现浇混凝土建造,使建筑从地面无缝升起,呈现整体式表达。温暖的色素和纹理减少了混凝土的常规冷感,唤起更原始、接地气的材料质感。不锈钢窗框和薄金属屋顶为其赋予现代边缘,体现了材料与技术的精心结合。 项目特色与启发 坡上的房子展示了如何在保留场地特征的同时实现高密度居住的创新方案。Karamuk Kuo 建筑事务所在坡上的房子中的设计为经济适用房和山坡建筑提供了重要参考,体现了当代住宅设计中形式与功能的完美平衡。 设计团队 Karamuk Kuo 建筑事务所是一家专注于建筑与城市设计的瑞士事务所,以其创新的设计方法和细致的材料处理闻名。事务所在住宅和文化建筑领域有着丰富经验,坡上的房子体现了他们对地形适应和社区营造的深入研究。 项目概述 坡上的房子位于瑞士楚格州楚利孔的山坡住宅区,是一座多代共居的公寓住宅项目。建筑总面积未公开,设计始于2017年,目前仍在建设中。该项目通过创新的空间组织回应了山坡地形特征。 设计理念 Karamuk Kuo 建筑事务所以”隐形密度”为核心理念,将六种不同户型整合在单一山形屋顶下,既保持了与周边独栋住宅区的协调,又实现了更高的居住密度。设计通过屋顶脊线严格跟随地形坡度,最大化可利用体积,同时突出的南向悬挑屋檐为建筑赋予独特特征。 空间与功能 坡上的房子内部空间采用错层设计,跟随地形坡度形成丰富的空间层次。六种户型包括从单人到家庭的不同规模,每个单元都拥有私人户外空间。多样的窗户类型提供了与周围环境的不同关系,同时巧妙地掩饰了建筑的实际尺度。 材料与技术 项目采用现浇混凝土建造,使建筑从地面无缝升起,呈现整体式表达。温暖的色素和纹理减少了混凝土的常规冷感,唤起更原始、接地气的材料质感。不锈钢窗框和薄金属屋顶为其赋予现代边缘,体现了材料与技术的精心结合。 项目特色与启发 坡上的房子展示了如何在保留场地特征的同时实现高密度居住的创新方案。Karamuk Kuo 建筑事务所在坡上的房子中的设计为经济适用房和山坡建筑提供了重要参考,体现了当代住宅设计中形式与功能的完美平衡。 设计团队 Karamuk Kuo 建筑事务所是一家专注于建筑与城市设计的瑞士事务所,以其创新的设计方法和细致的材料处理闻名。事务所在住宅和文化建筑领域有着丰富经验,坡上的房子体现了他们对地形适应和社区营造的深入研究。 本文来自 © Karamuk Kuo 建筑事务所, 发布于 © 建筑学院官方网站。 未经授权,禁止转载或摘编。 编辑版本版权归 © 建筑学院官方网站 所有, 设计、图纸及照片版权归设计方 © Karamuk Kuo 建筑事务所 ↗ 所有。 查看作者在建筑学院发布的更多作品: Karamuk Kuo 建筑事务所 @ 建筑学院官方网站 house-on-a-slopeKaramuk Kuo公寓住宅设计现代主义住宅瑞士住宅建筑 Karamuk Kuo 建筑事务所事务所 & 设计师 下载原图 收藏 0 关于作者 Karamuk Kuo 建筑事务所事务所 & 设计师 关注私信 17 文章 0 评论 0 粉丝 兰登贝格豪斯剧院 / Landenberghaus Theater | Karamuk Kuo 建筑事务所 上一篇 2026-04-26 上午9:24 体育运动催化城市生活:桐乡市全民健身中心暨李宁体育园 / PTD柏涛设计 下一篇 2023-03-03 上午8:30 猜你喜欢 加拉尔特住宅小区 / Residential Complex in Gallarate | 阿尔瓦罗·西扎|Álvaro Siza 2025-12-21 住宅建筑设计 上海石库沟住宅 / Shochikucho House | SANAA 2026-02-23 住宅建筑设计 国际体育科学研究所 International Sports Sciences Institute | Karamuk Kuo 建筑事务所|Karamuk Kuo 2025-10-26 公共建筑设计 Bülach公共工程仓库 / Bülach Public Works Depot | Karamuk Kuo 建筑事务所 2026-04-25 工业建筑 沃尔彭之家 / Walpen House | 吉翁·A·卡米纳达|Gion A. Caminada 2025-12-20 住宅建筑设计 Lapidus工作室 / Atelier Lapidus | Arrhov Frick 2026-01-21 住宅建筑设计 发表回复 请登录后评论...登录后才能评论 提交