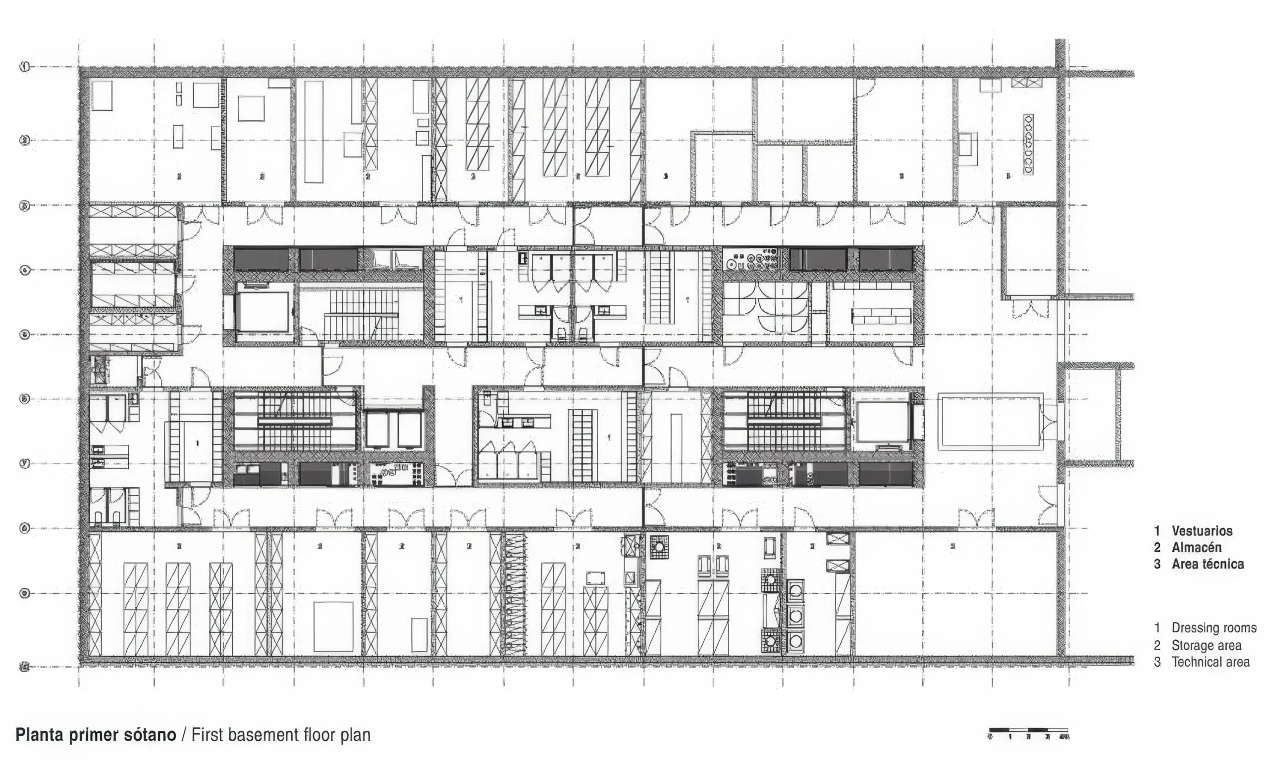
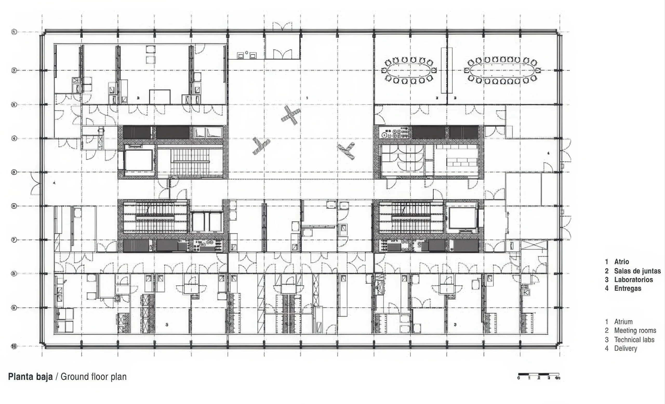
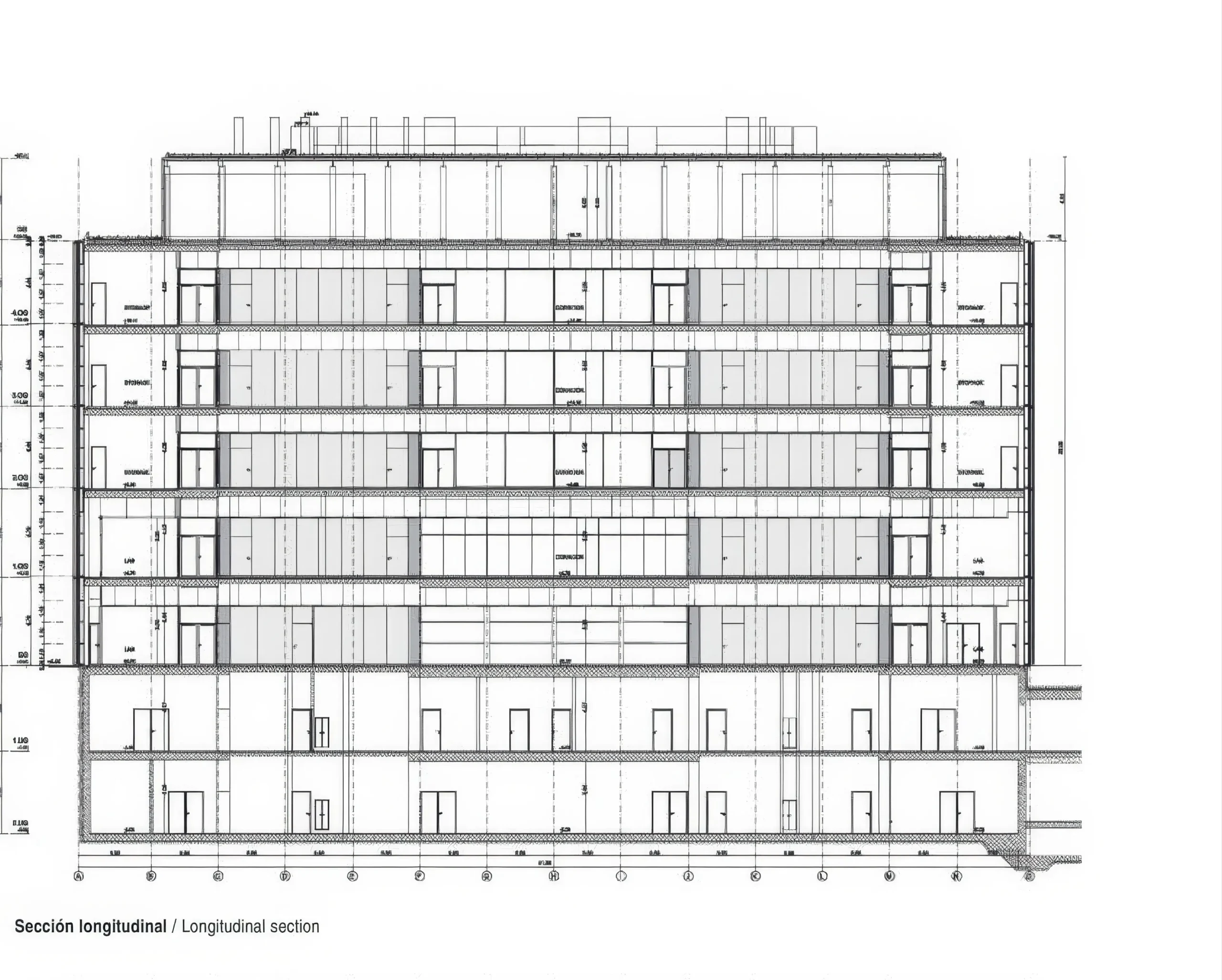
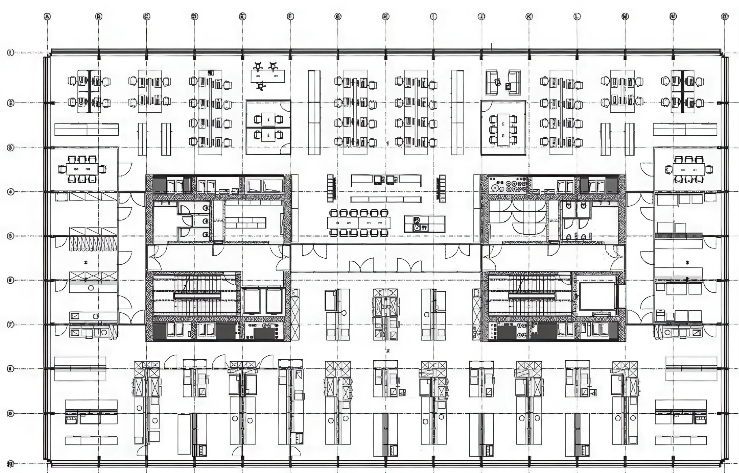
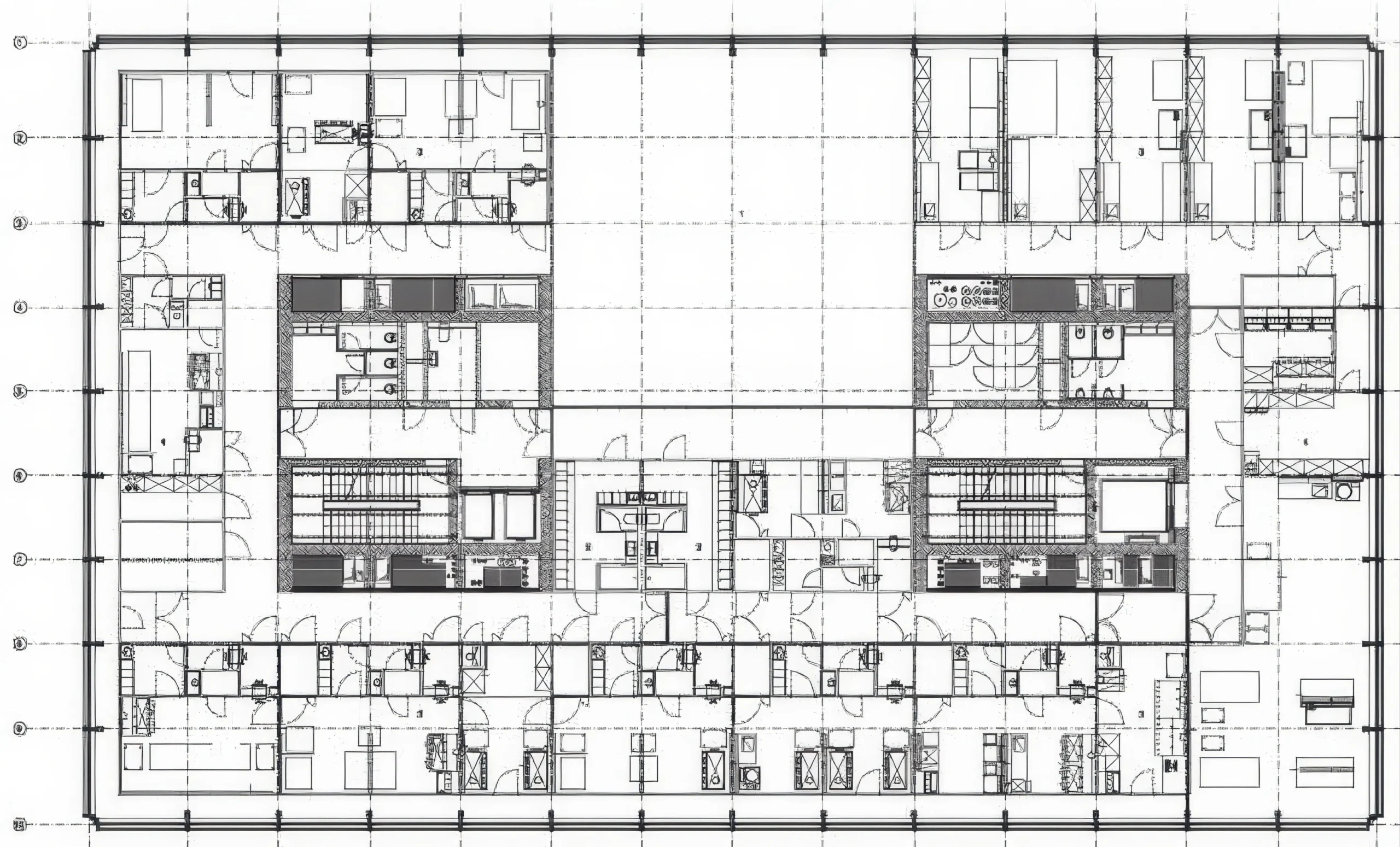
巴塞尔诺华园区 WSJ-177 实验室与办公楼 | 德·莫拉 Eduardo Souto de Moura • 2025-09-22 下午1:00 • 公共建筑设计, 办公建筑设计, 建筑师设计, 建筑设计 诺华园区 WSJ-177 实验室与办公楼以钢结构与双核心筒布局,采用可调节玻璃幕墙,实现科研与办公空间的灵活与透明。 设计:Eduardo Souto de Moura 类型:办公建筑设计 风格:现代主义 材料:钢材, 玻璃 地点:瑞士 项目简介 诺华园区 WSJ-177 实验室与办公楼位于瑞士巴塞尔诺华新园区内。建筑共有七层(地上五层,地下两层),体量约长 53.1 米、宽 31.2 米、高 23 米。项目以“科技化与美学并重”的园区理念为背景,旨在促进科研与人员交流。 设计理念 设计以透明性、灵活性与简洁性为核心,采用“钢结构盒子+双核心筒”模式,将垂直交通与机电集中于核心筒,从而释放自由平面,满足多样化功能需求。空间布局强调高效与互动,体现科研环境的开放性。 空间与功能 地上一层为入口与会议区,设双层通高大厅,并展示葡萄牙艺术家 Pedro Cabrita Reis 的砖塔雕塑。二层为技术实验室,向大厅开放可见;上部三层为标准实验室与办公区,南侧布置实验室,北侧设办公空间面向广场。地下层配置仓储与机电设备。各层核心区布置公共休闲与服务空间。 材料与技术 外立面采用双层玻璃幕墙:内层为固定透明玻璃,外层为可电动升降的彩色玻璃板,调节日照并赋予建筑不断变化的外观。内部以玻璃隔断保持通透感,环氧树脂地坪营造统一效果,实验室顶棚裸露设备以突出技术特征。 设计团队 德莫拉以现代科研办公需求为导向,在高密度园区内通过灵活结构与幕墙系统实现科技建筑的功能性与视觉标识。 本文来自 © Eduardo Souto de Moura, 发布于 © 建筑学院官方网站。 未经授权,禁止转载或摘编。 编辑版本版权归 © 建筑学院官方网站 所有, 设计、图纸及照片版权归设计方 © Eduardo Souto de Moura ↗ 所有。 查看作者在建筑学院发布的更多作品: Eduardo Souto de Moura @ 建筑学院官方网站 实验室建筑巴塞尔科研办公 Eduardo Souto de Moura事务所 & 设计师 下载原图 收藏 0 关于作者 Eduardo Souto de Moura事务所 & 设计师 关注私信 5 文章 0 评论 0 粉丝 广州海大科学园 / NBBJ 上一篇 2025-09-22 上午8:30 2025日本大阪世博会中国馆 / 中国院+中国建研院 下一篇 2025-09-23 上午8:30 猜你喜欢 物理花园3实验室楼 ‘Physic Garden 3’Laboratory Building | 德莫拉建筑事务所|De Mora 2025-11-24 公共建筑设计 贝耶勒基金会 Beyeler Foundation | 斯米里扬·拉迪奇|Smiljan Radić 2025-11-07 公共建筑设计 诺华展览馆 Novartis Exhibition Pavilion | 斯米里扬·拉迪奇|Smiljan Radić 2025-12-09 公共建筑设计 发表回复 请登录后评论...登录后才能评论 提交