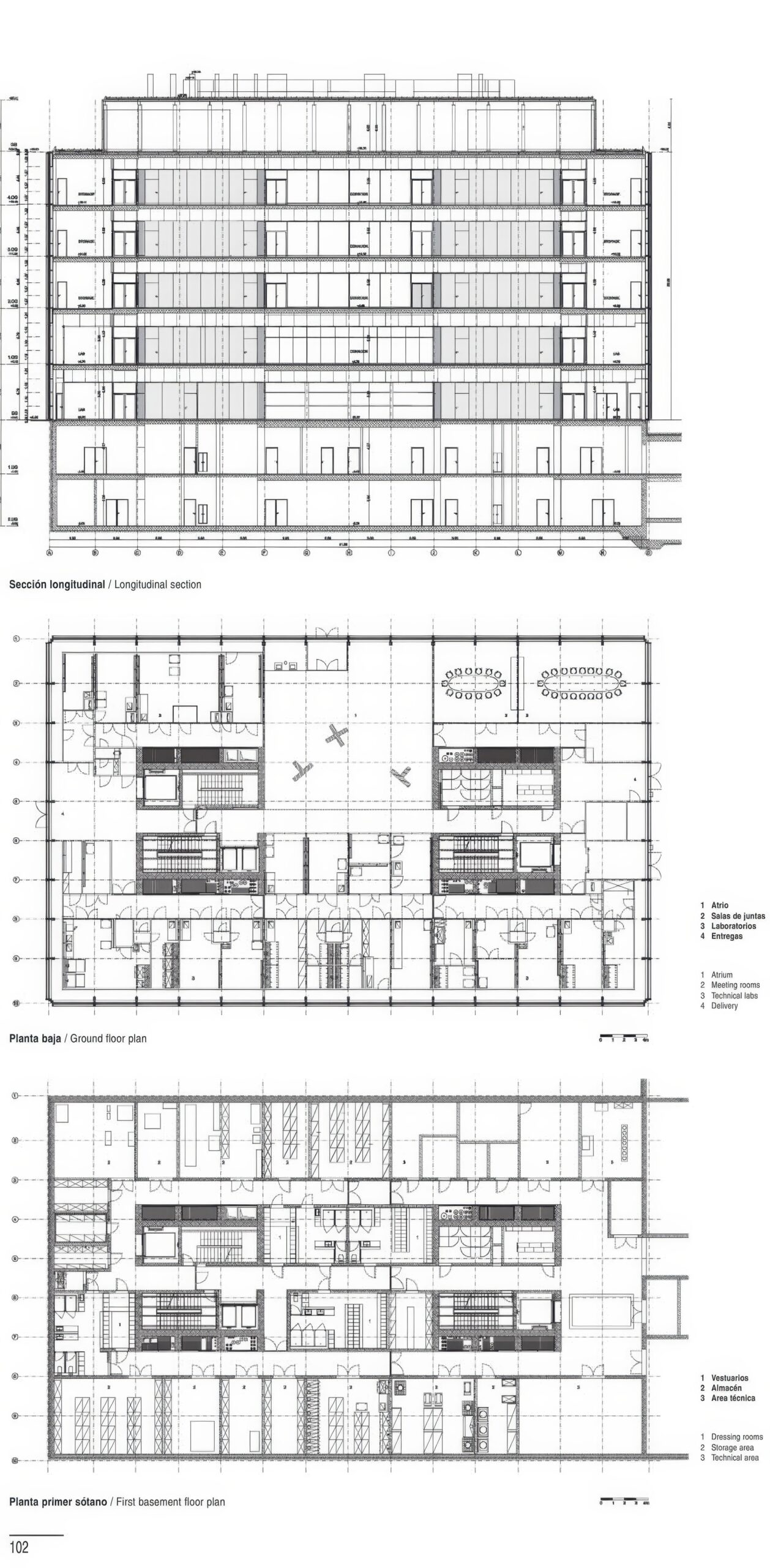
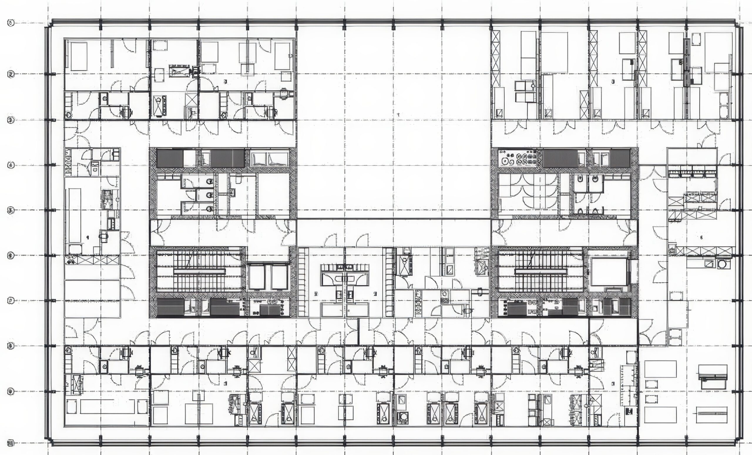
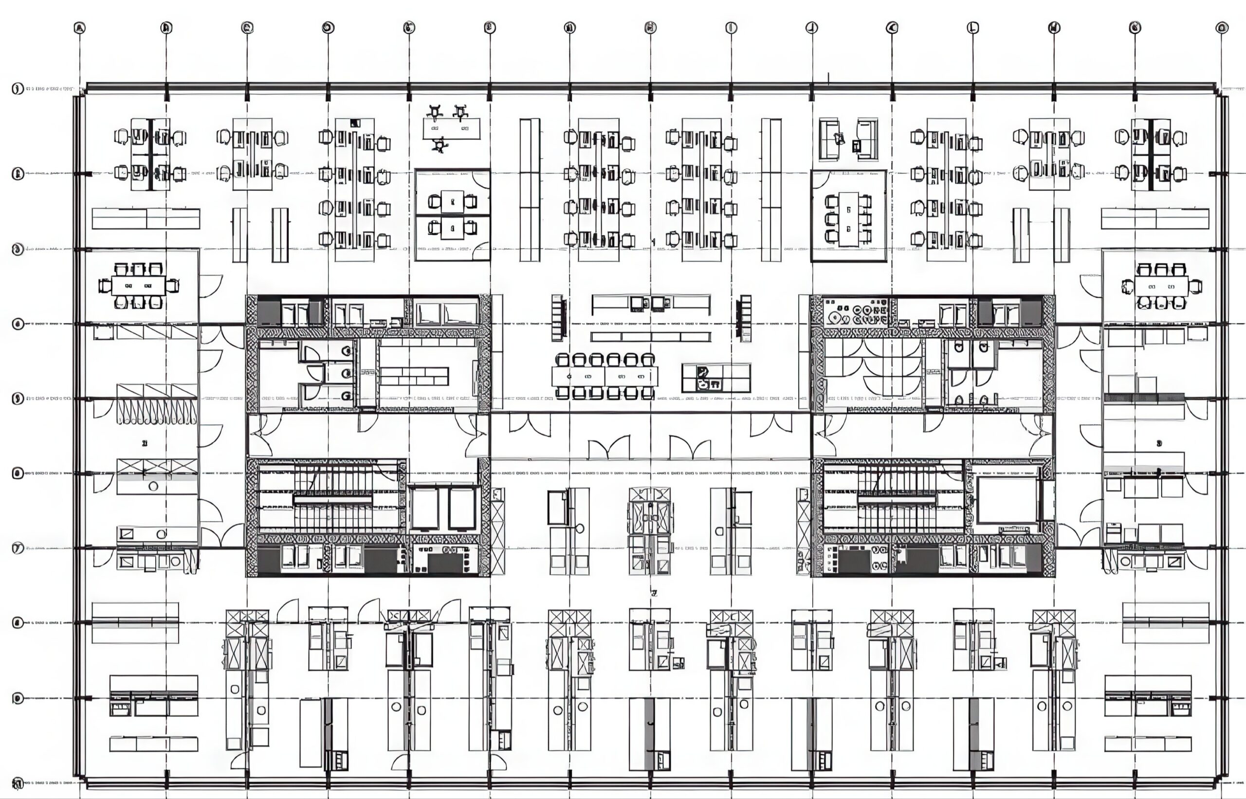
物理花园3实验室楼 ‘Physic Garden 3’Laboratory Building | 德莫拉建筑事务所|De Mora Eduardo Souto de Moura • 2025-11-24 下午12:50 • 公共建筑设计, 建筑师, 建筑设计, 文化建筑设计 物理花园3实验室楼位于瑞士巴塞尔诺华园区,是一座集实验室与办公功能于一体的科研建筑。德莫拉建筑事务所以透明性、灵活性和简洁性为核心设计理念,采用钢结构与混凝土核心筒技术,创造了模块化、无柱的内部空间。建筑通过双层玻璃幕墙系统实现光线调控,营造高效科研环境。 设计: 德莫拉建筑事务所|De Mora 类型: 文化建筑设计 功能: 办公楼 风格: 高技派 材料: 混凝土 钢材 玻璃 金属板 尺度: 中型建筑 地点:瑞士 时间: 2022年 项目简介 物理花园3实验室楼位于瑞士巴塞尔诺华园区,是一座集实验室与办公功能于一体的科研建筑。建筑面积约5300平方米,共7层(地上5层、地下2层),建筑高度23米,设计于当代。 设计理念 设计基于透明性、灵活性和简洁性三大核心理念,通过钢结构与混凝土核心筒的完美结合,创造了一个技术性与美学并重的科研空间。建筑旨在促进科研人员之间的交流互动,同时提供高度灵活的使用配置。 空间与功能 建筑采用对称布局,两个混凝土核心筒集中了垂直交通和设备管线,创造了无柱的模块化空间。首层设有双层高入口大厅和会议室,一层为技术实验室,上部楼层南侧布置标准实验室,北侧为办公区,可俯瞰广场景观。 材料与技术 建筑采用钢结构与混凝土核心筒组合体系,外立面为模块化玻璃幕墙系统,内部分隔采用玻璃隔断。地面使用环氧树脂铺装,办公区设金属网格吊顶,实验室区域设备管线裸露展示,强化建筑技术特征。 设计团队 德莫拉建筑事务所是葡萄牙知名建筑设计机构,以严谨的结构逻辑、简洁的建筑语言和对材料本质的探索著称,在科研建筑、文化建筑等领域具有丰富经验。 项目简介 物理花园3实验室楼位于瑞士巴塞尔诺华园区,是一座集实验室与办公功能于一体的科研建筑。建筑面积约5300平方米,共7层(地上5层、地下2层),建筑高度23米,设计于当代。 设计理念 设计基于透明性、灵活性和简洁性三大核心理念,通过钢结构与混凝土核心筒的完美结合,创造了一个技术性与美学并重的科研空间。建筑旨在促进科研人员之间的交流互动,同时提供高度灵活的使用配置。 空间与功能 建筑采用对称布局,两个混凝土核心筒集中了垂直交通和设备管线,创造了无柱的模块化空间。首层设有双层高入口大厅和会议室,一层为技术实验室,上部楼层南侧布置标准实验室,北侧为办公区,可俯瞰广场景观。 材料与技术 建筑采用钢结构与混凝土核心筒组合体系,外立面为模块化玻璃幕墙系统,内部分隔采用玻璃隔断。地面使用环氧树脂铺装,办公区设金属网格吊顶,实验室区域设备管线裸露展示,强化建筑技术特征。 设计团队 德莫拉建筑事务所是葡萄牙知名建筑设计机构,以严谨的结构逻辑、简洁的建筑语言和对材料本质的探索著称,在科研建筑、文化建筑等领域具有丰富经验。 本文来自 © Eduardo Souto de Moura, 发布于 © 建筑学院官方网站。 未经授权,禁止转载或摘编。 编辑版本版权归 © 建筑学院官方网站 所有, 设计、图纸及照片版权归设计方 © Eduardo Souto de Moura ↗ 所有。 查看作者在建筑学院发布的更多作品: Eduardo Souto de Moura @ 建筑学院官方网站 办公建筑实验室建筑巴塞尔德莫拉建筑事务所物理花园3实验室楼 Eduardo Souto de Moura事务所 & 设计师 下载原图 收藏 0 关于作者 Eduardo Souto de Moura事务所 & 设计师 关注私信 5 文章 0 评论 0 粉丝 乔阿奇姆斯特大街校园 Joachimstrasse Campus | 大卫·奇珀菲尔德建筑事务所|David Chipperfield 上一篇 2025-11-24 上午8:50 Bötzow啤酒厂的改造 Conversion of Bötzow Brewery | 大卫·奇珀菲尔德建筑事务所|David Chipperfield 下一篇 2025-11-25 上午12:50 猜你喜欢 诺华展览馆 Novartis Exhibition Pavilion | 斯米里扬·拉迪奇|Smiljan Radić 2025-12-09 公共建筑设计 律动的曲面,流动的中庭——韩国CJ新总部 2017-07-19 办公建筑设计 良渚邱家坞大师村 / 中联·左右建筑 2021-01-07 住宅建筑设计 版权云工作基地——国内首发国家数字音像传播服务平台 / 上海华都建筑规划设计 2020-10-14 办公建筑设计 苏南民营企业发展的建筑样本:航亚科技总部办公楼 / 米丈建筑 2023-07-21 办公建筑设计 贝亲办公改造:关乎情感与心灵的设计 / COLORFULL 昱景设计 2021-01-05 办公建筑设计 发表回复 请登录后评论...登录后才能评论 提交