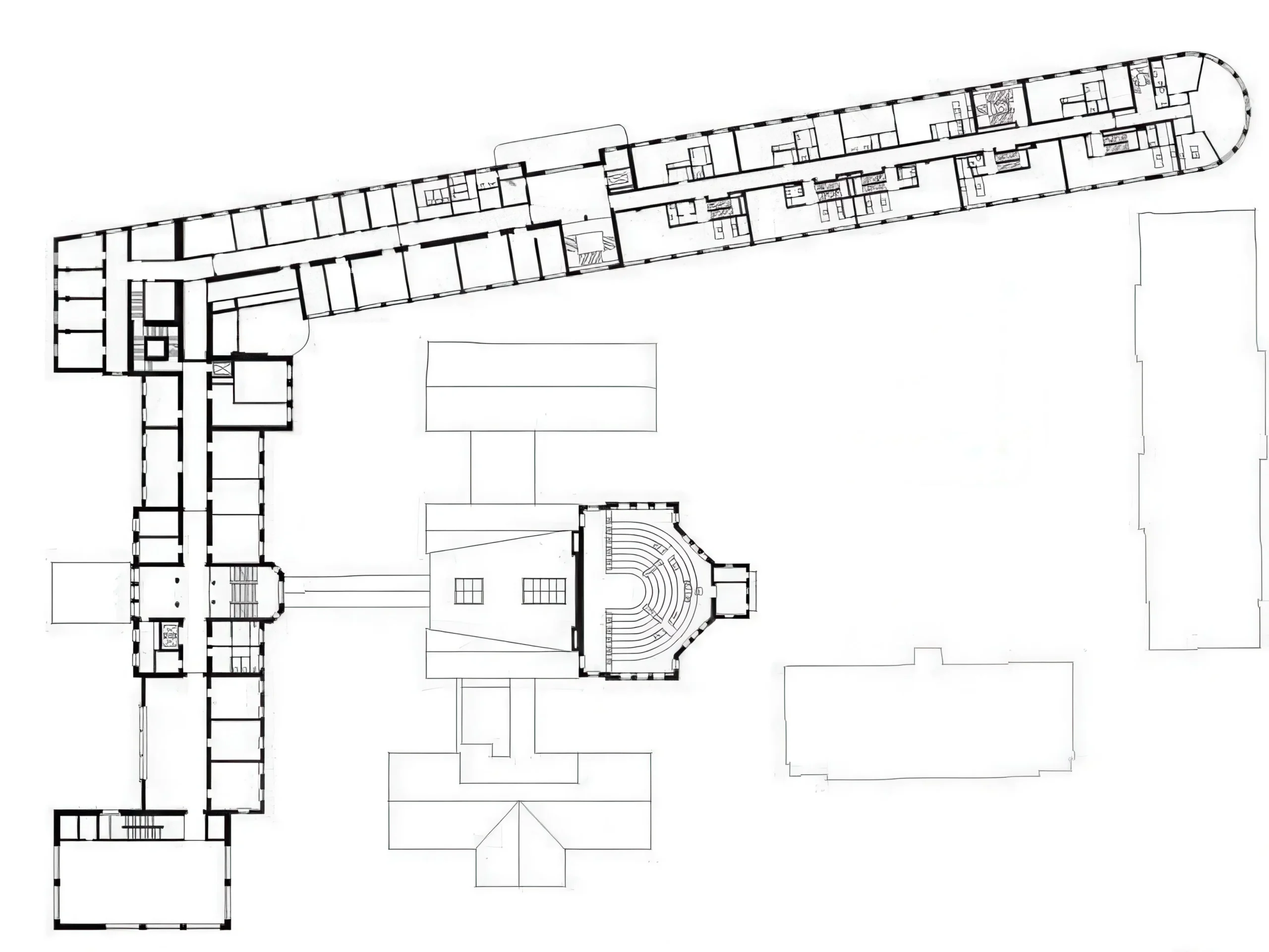
Forum Museumsinsel | 大卫·奇普菲尔德 建筑学院 • 2025-10-14 上午8:30 • 公共建筑设计, 建筑师设计, 建筑设计, 文化建筑设计 Forum Museumsinsel 是柏林施普雷河畔的历史建筑改造项目,结合博物馆岛的文化氛围,修缮与扩建并举,打造新型城市综合体。 设计:David Chipperfield 类型:公共建筑设计 风格:现代主义 材料:混凝土,砖石, 铁 地点:德国 尺度:中型建筑 项目简介 Forum Museumsinsel(博物馆岛论坛)位于德国柏林施普雷河畔,对面是博德博物馆。基地涵盖八座历史保护建筑,时间跨度达三百年,包括柏林最古老的旅馆、旧电报总局及三座前医院。项目计划改造为办公、住宅、学院及酒店,事务所负责三座医院的翻新与扩建。 设计理念 设计团队在保留历史文脉的基础上,强调与河流和博物馆岛的对话。通过填补因战损和拆除而形成的空隙,重建原有轴线秩序,并以当代建筑语汇回应Gropius与Schmieden的19世纪方案,形成新旧融合的立面构图。 空间与功能 主医院原建于1880年,设有花园庭院与连廊,连接后部的手术剧场。1930年代加建的北翼带有包豪斯特征。修缮中,原有功能被重新分配:办公、居住与教育功能嵌入历史建筑,酒店与学院则在新体量中获得空间。 材料与技术 设计保留裸露砖石、穹顶、天窗及铸铁柱等历史元素,同时对包豪斯翼楼进行粉刷更新。新建部分延续拱形落地窗语汇,并在南侧增设一层,获得施普雷河与博物馆岛的广阔景观。整体采用修复与补充结合的策略,强调历史连续性与当代适应性。 设计团队 该修缮与扩建项目由DCA所负责,专注于历史建筑保护与城市更新。团队注重文化遗产与现代功能的平衡,擅长通过细节修复与新体量设计延续场所精神。 本文来自 © 建筑学院, 发布于 © 建筑学院官方网站。 未经授权,禁止转载或摘编。 编辑版本版权归 © 建筑学院官方网站 所有, 设计、图纸及照片版权归设计方 © 建筑学院 ↗ 所有。 查看作者在建筑学院发布的更多作品: 建筑学院 @ 建筑学院官方网站 Forum Museumsinsel包豪斯历史建筑改造文化综合体柏林 建筑学院编辑 下载原图 收藏 0 关于作者 建筑学院编辑 关注私信 9.0K 文章 202 评论 12 粉丝 建筑学院(ArchCollege)是中国领先的建筑师移动垂直社区,成立于2012年,超过 70% 的年轻建筑师正在使用我们的产品。我们致力于通过建筑设计新媒体与在线教育平台,连接教育、行业与科技,为建筑师提供灵感与成长支持,陪伴并见证每一位青年建筑师的专业进阶与时代探索。 「汤瀚钦:跨越中美欧三洲的90后建筑师,在伯克利与WRNS的探索之路 | 建世界 05」 上一篇 2025-10-13 下午2:50 中国国家会议中心二期 / 包赞巴克 下一篇 2025-10-15 上午8:30 猜你喜欢 罗马尼工作室 / Romney’s Studio | +6a 建筑事务所|6a architects 2025-12-11 公共建筑设计 递进立面,柏林上城综合体UP! Berlin / JASPER ARCHITECTS 2021-05-27 办公建筑设计 多内塞尔大厦 Donceles Building | 曼努埃尔·塞万提斯|Manuel Cervantes 2025-12-09 公共建筑设计 兰登贝格豪斯剧院 Landenberghaus Theater | Karamuk Kuo 建筑事务所 2025-10-29 公共建筑设计 六号奥斯特塔 / 6a OHSt | +6a 建筑事务所|6a architects 2025-11-04 公共建筑设计 为阿曼马斯喀特打造全新高尔夫体验及现代生活方式目的地:LA VIE / 10 Design 2024-05-08 建筑设计 发表回复 请登录后评论...登录后才能评论 提交