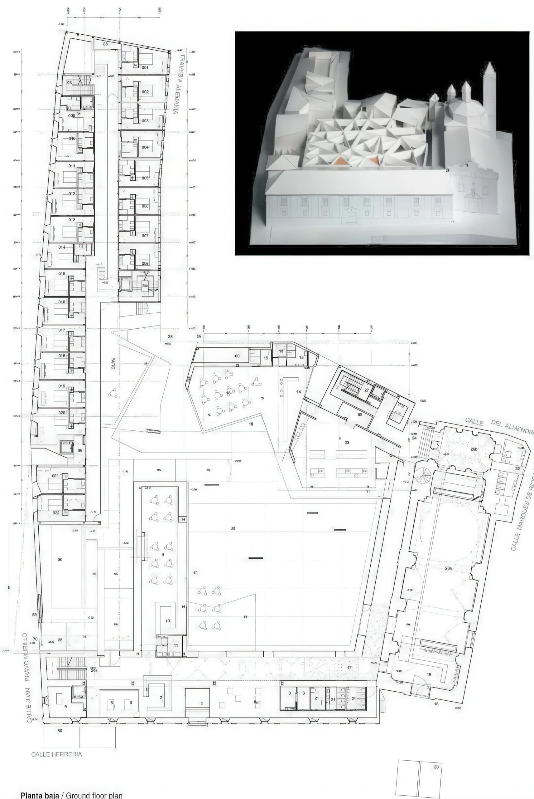
弗雷纳尔德萨米酒店 Hotel in Fregenal de la Sierra | MGM 建筑师事务所|MGM MGM 建筑师事务所|MGM • 2025-10-31 下午12:50 • 公共建筑设计, 建筑师设计, 建筑设计, 文化建筑设计 弗雷纳尔德萨米酒店位于西班牙弗雷纳尔德萨米镇,是一座融合历史建筑改造与现代设计的精品酒店。项目巧妙整合了原有教堂、耶稣会学院及历史住宅,通过创新的”筛网”屋顶设计,营造出独特的室内外过渡空间。MGM建筑师事务所将传统建筑元素与现代材料相结合,打造出既尊重历史又充满当代气息的旅居体验。 设计: MGM 建筑师事务所|MGM 类型: 文化建筑设计 功能: 酒店 风格: 当代建筑 材料: 混凝土 木材 玻璃 石材 尺度: 微型建筑与装置 地点:西班牙 时间: 2023年 项目简介 弗雷纳尔德萨米酒店位于西班牙弗雷纳尔德萨米镇,是一座历史建筑改造型精品酒店。项目建筑面积约2000平方米,通过对原有历史建筑群的更新改造,于2023年建成并投入使用。 设计理念 设计灵感源自当地传统庄园住宅的内外空间对比,通过创造”筛网”式屋顶空间,巧妙连接修复后的历史建筑群。设计团队关注历史文脉与现代功能的平衡,在紧凑的城市肌理中营造出丰富的空间层次。 空间与功能 项目包含酒店客房、餐厅、咖啡厅及庆典大厅等功能空间。核心区域采用开放式布局,通过”筛网”屋顶连接各个功能区,形成自然通风采光的室内庭院。空间组织充分考虑历史建筑的保护与再利用,创造出流畅的动线体验。 材料与技术 主要采用清水混凝土肋梁结构,结合当地传统建筑材料进行现代化演绎。”筛网”屋顶系统不仅支撑植被生长,还调节室内微气候,体现了可持续设计理念。结构设计充分考虑新旧建筑的衔接与荷载传递。 设计团队 MGM建筑师事务所是西班牙知名建筑设计机构,专注于历史建筑改造与当代建筑设计。事务所以尊重文脉、创新技术著称,在酒店设计与城市更新领域具有丰富经验。 项目简介 弗雷纳尔德萨米酒店位于西班牙弗雷纳尔德萨米镇,是一座历史建筑改造型精品酒店。项目建筑面积约2000平方米,通过对原有历史建筑群的更新改造,于2023年建成并投入使用。 设计理念 设计灵感源自当地传统庄园住宅的内外空间对比,通过创造”筛网”式屋顶空间,巧妙连接修复后的历史建筑群。设计团队关注历史文脉与现代功能的平衡,在紧凑的城市肌理中营造出丰富的空间层次。 空间与功能 项目包含酒店客房、餐厅、咖啡厅及庆典大厅等功能空间。核心区域采用开放式布局,通过”筛网”屋顶连接各个功能区,形成自然通风采光的室内庭院。空间组织充分考虑历史建筑的保护与再利用,创造出流畅的动线体验。 材料与技术 主要采用清水混凝土肋梁结构,结合当地传统建筑材料进行现代化演绎。”筛网”屋顶系统不仅支撑植被生长,还调节室内微气候,体现了可持续设计理念。结构设计充分考虑新旧建筑的衔接与荷载传递。 设计团队 MGM建筑师事务所是西班牙知名建筑设计机构,专注于历史建筑改造与当代建筑设计。事务所以尊重文脉、创新技术著称,在酒店设计与城市更新领域具有丰富经验。 本文来自 © MGM 建筑师事务所|MGM, 发布于 © 建筑学院官方网站。 未经授权,禁止转载或摘编。 编辑版本版权归 © 建筑学院官方网站 所有, 设计、图纸及照片版权归设计方 © MGM 建筑师事务所|MGM ↗ 所有。 查看作者在建筑学院发布的更多作品: MGM 建筑师事务所|MGM @ 建筑学院官方网站 MGM建筑师事务所历史建筑改造弗雷纳尔德萨米酒店精品酒店设计西班牙酒店 MGM 建筑师事务所|MGM事务所 & 设计师 下载原图 收藏 0 关于作者 MGM 建筑师事务所|MGM事务所 & 设计师 关注私信 5 文章 0 评论 0 粉丝 屋顶公寓扩展项目,鹿特丹 Rooftop House Extension, Rotterdam | MVRDV 建筑事务所 上一篇 2025-10-31 下午12:50 克鲁贝什霍姆学校第一分校 School No. 1, Krabbesholm Højskole | MOS 建筑事务所 下一篇 2025-10-31 下午12:50 猜你喜欢 奥利文扎旅店 Tourist Inn in Olivenza | 何塞·玛丽亚·桑切斯·加西亚|José María Sánchez García 2025-12-02 公共建筑设计 皇家咖啡馆酒店 Hotel Café Royal | 大卫·奇珀菲尔德建筑事务所|David Chipperfield 2025-11-08 商业与综合建筑 阿尔坎波查屋 / House in Alcobaça | 艾雷斯·马特乌斯建筑事务所 2025-11-02 公共建筑设计 兰登贝格豪斯剧院 Landenberghaus Theater | Karamuk Kuo 建筑事务所 2025-10-29 公共建筑设计 Obernau村酒店 / Guesthouse in Obernau | 吉翁·A·卡米纳达|Gion A. Caminada 2026-03-23 商业与综合建筑 兰登贝格豪斯剧院 Landenberghaus Theater | Karamuk Kuo 建筑事务所|Karamuk Kuo 2025-12-16 公共建筑设计 发表回复 请登录后评论...登录后才能评论 提交