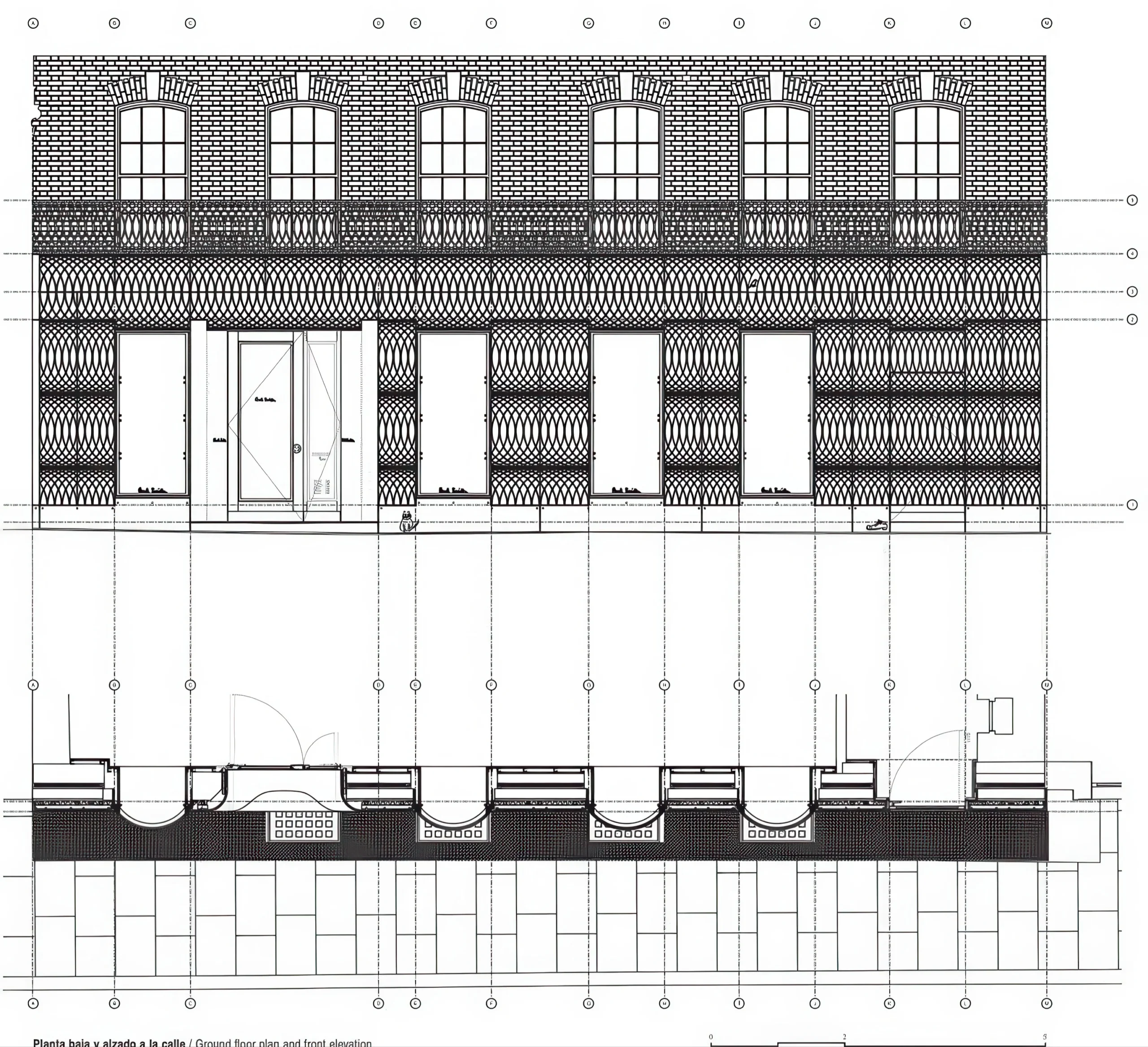
保罗·史密斯商店前脸 | 6a 建筑事务所 6a 建筑事务所|6a architects • 2025-10-31 上午8:50 • 公共建筑设计, 建筑师设计, 建筑设计, 文化建筑设计 保罗·史密斯商店前脸是6a建筑事务所在伦敦梅菲尔区设计的商业建筑立面改造项目。设计重新诠释了18世纪摄政风格的装饰语言,采用相互连接的铸铁圆环图案,创造出富有光学深度的表面纹理。项目巧妙融合传统铸造工艺与现代制造技术,展现了伦敦城市肌理中铸铁材料的独特表现力。 设计: 6a 建筑事务所|6a architects 类型: 文化建筑设计 功能: 商场 风格: 当代建筑 材料: 玻璃 金属板 尺度: 小型建筑 地点:伦敦 时间: 2016年 项目简介 保罗·史密斯商店前脸位于英国伦敦梅菲尔区,是一座商业建筑立面改造项目。建筑面积约50平方米,设计于2015年,2016年建成。 设计理念 设计团队从伦敦传统铸铁装饰中汲取灵感,重新诠释摄政时期的装饰语言,通过相互连接的铸铁圆环图案,创造出既具历史传承又富现代感的建筑表皮。 空间与功能 项目包含商店入口、展示橱窗和防护栏杆等功能。弧形展示窗向外突出,形成明亮的展示空间,为商品陈列提供最佳视觉效果。 材料与技术 采用传统砂模铸造工艺制作铸铁面板,表面保留铸造痕迹和自然铜绿。边缘采用斜角处理增强刚性,弧形玻璃由汽车挡风玻璃制造商定制。 设计团队 6a建筑事务所是伦敦知名建筑设计工作室,专注于文化、商业和住宅项目,以对材料、工艺和历史文脉的细致处理而闻名。 项目简介 保罗·史密斯商店前脸位于英国伦敦梅菲尔区,是一座商业建筑立面改造项目。建筑面积约50平方米,设计于2015年,2016年建成。 设计理念 设计团队从伦敦传统铸铁装饰中汲取灵感,重新诠释摄政时期的装饰语言,通过相互连接的铸铁圆环图案,创造出既具历史传承又富现代感的建筑表皮。 空间与功能 项目包含商店入口、展示橱窗和防护栏杆等功能。弧形展示窗向外突出,形成明亮的展示空间,为商品陈列提供最佳视觉效果。 材料与技术 采用传统砂模铸造工艺制作铸铁面板,表面保留铸造痕迹和自然铜绿。边缘采用斜角处理增强刚性,弧形玻璃由汽车挡风玻璃制造商定制。 设计团队 6a建筑事务所是伦敦知名建筑设计工作室,专注于文化、商业和住宅项目,以对材料、工艺和历史文脉的细致处理而闻名。 本文来自 © 6a 建筑事务所|6a architects, 发布于 © 建筑学院官方网站。 未经授权,禁止转载或摘编。 编辑版本版权归 © 建筑学院官方网站 所有, 设计、图纸及照片版权归设计方 © 6a 建筑事务所|6a architects ↗ 所有。 查看作者在建筑学院发布的更多作品: 6a 建筑事务所|6a architects @ 建筑学院官方网站 6a建筑事务所伦敦建筑保罗·史密斯商店前脸商业建筑立面铸铁材料 6a 建筑事务所|6a architects事务所 & 设计师 下载原图 收藏 0 关于作者 6a 建筑事务所|6a architects事务所 & 设计师 关注私信 20 文章 1 评论 0 粉丝 6a architects(6a建筑事务所)是英国知名的建筑设计团队,以其对文化、艺术及教育类建筑的深刻理解而闻名。他们的作品擅长运用精巧的材料与细致的构造,在历史与现代的对话中创造宁静而富有感染力的空间。其代表作包括South London Gallery、MK Gallery改造及剑桥大学校园建筑等。 芝加哥当代艺术博物馆 Museum of Contemporary Art Chicago | MARKLEE 建筑事务所|MARKLEE 上一篇 2025-10-31 上午12:35 金顶 The Golden Dome | AMID.cero9 建筑事务所|AMID.cero9 下一篇 2025-10-31 上午8:50 猜你喜欢 南伦敦美术馆 South London Gallery | 6a 建筑事务所|6a architects 2025-10-28 公共建筑设计 格林威治设计区 A2_B2 | 6a 建筑事务所|6a architects 2025-10-26 公共建筑设计 Haddon Baptist Church巴士站 / Bus Stop for Haddon Baptist Church | 安妮·霍尔特罗普|Anne Holtrop 2026-01-04 交通建筑 维多利亚与阿尔伯特博物馆 E20 / Victoria & Albert Museum E20 | 6a 建筑事务所 2025-11-04 公共建筑设计 A Mews Collection A Mews Collection | 6a 建筑事务所|6a architects 2025-12-11 公共建筑设计 皇家咖啡馆酒店 Hotel Café Royal | 大卫·奇珀菲尔德建筑事务所|David Chipperfield 2025-11-08 商业与综合建筑 发表回复 请登录后评论...登录后才能评论 提交