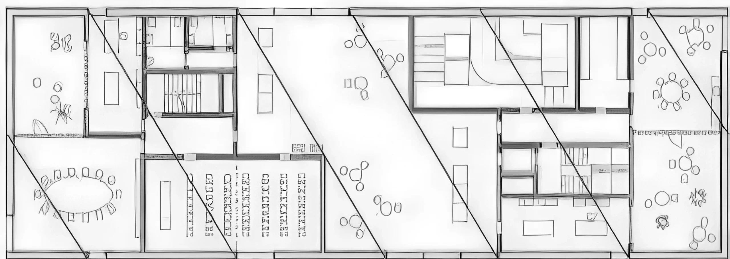
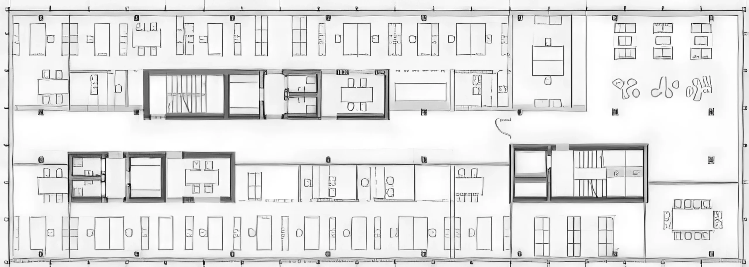
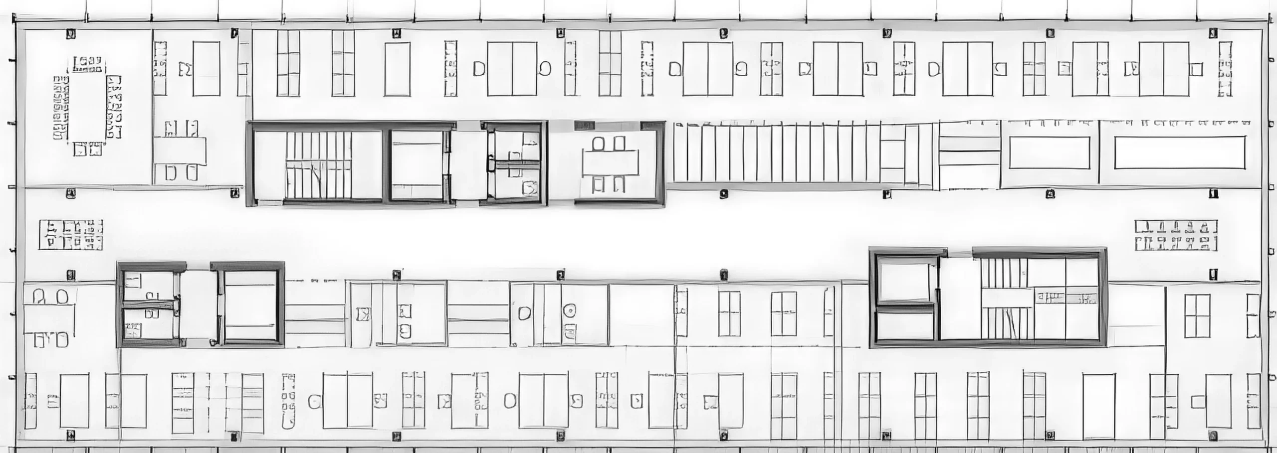
坡上的房子 House on a Slope | Karamuk Kuo 建筑事务所|Karamuk Kuo Karamuk Kuo 建筑事务所 • 2025-10-26 下午12:55 • 公共建筑设计, 建筑师设计, 建筑设计, 文化建筑设计 坡上的房子是Karamuk Kuo建筑事务所在瑞士楚格设计的独立住宅项目。这座多代同堂社区住宅采用独特的斜坡地形设计,通过错层布局和多样化公寓类型,在单幅地块上实现了高密度居住。建筑采用现浇混凝土结构,结合不锈钢窗框与金属屋顶,创造出与地形完美融合的现代居住空间。 设计: Karamuk Kuo 建筑事务所 类型: 文化建筑设计 功能: 独立住宅 风格: 当代建筑 材料: 混凝土 钢材 金属板 尺度: 小型建筑 地点:瑞士 时间: 2017年 项目简介 坡上的房子位于瑞士楚格,是一座独立住宅项目,建筑面积约450平方米,设计于2017年并建成使用。项目巧妙利用斜坡地形,容纳了六种不同类型的居住单元。 设计理念 设计团队以”隐形密度”为核心概念,在单幅地块上创造多代同堂的紧凑社区。建筑形式通过双坡屋顶与地形坡度严格对应,最大化可利用体积,同时保持与周边独栋住宅区的协调。 空间与功能 内部空间采用错层布局,跟随地形坡度形成丰富的空间层次。每个公寓单元都拥有私人户外空间,多样化的窗户类型提供了与周围环境的不同关系,同时巧妙掩饰了建筑的真实尺度。 材料与技术 项目采用现浇混凝土结构,从地面无缝升起形成整体表达。温暖的色素和纹理减少了混凝土的常规冷感,唤起更原始、接地气的材料质感。不锈钢窗框和薄金属屋顶赋予建筑现代边缘。 设计团队 Karamuk Kuo建筑事务所是一家专注于建筑设计与研究的瑞士事务所,以其对场地条件敏感的设计方法和创新的空间策略而闻名,在住宅和公共建筑领域有着丰富经验。 项目简介 坡上的房子位于瑞士楚格,是一座独立住宅项目,建筑面积约450平方米,设计于2017年并建成使用。项目巧妙利用斜坡地形,容纳了六种不同类型的居住单元。 设计理念 设计团队以”隐形密度”为核心概念,在单幅地块上创造多代同堂的紧凑社区。建筑形式通过双坡屋顶与地形坡度严格对应,最大化可利用体积,同时保持与周边独栋住宅区的协调。 空间与功能 内部空间采用错层布局,跟随地形坡度形成丰富的空间层次。每个公寓单元都拥有私人户外空间,多样化的窗户类型提供了与周围环境的不同关系,同时巧妙掩饰了建筑的真实尺度。 材料与技术 项目采用现浇混凝土结构,从地面无缝升起形成整体表达。温暖的色素和纹理减少了混凝土的常规冷感,唤起更原始、接地气的材料质感。不锈钢窗框和薄金属屋顶赋予建筑现代边缘。 设计团队 Karamuk Kuo建筑事务所是一家专注于建筑设计与研究的瑞士事务所,以其对场地条件敏感的设计方法和创新的空间策略而闻名,在住宅和公共建筑领域有着丰富经验。 本文来自 © Karamuk Kuo 建筑事务所, 发布于 © 建筑学院官方网站。 未经授权,禁止转载或摘编。 编辑版本版权归 © 建筑学院官方网站 所有, 设计、图纸及照片版权归设计方 © Karamuk Kuo 建筑事务所 ↗ 所有。 查看作者在建筑学院发布的更多作品: Karamuk Kuo 建筑事务所 @ 建筑学院官方网站 Karamuk Kuo坡上的房子楚格独立住宅设计现浇混凝土瑞士 Karamuk Kuo 建筑事务所事务所 & 设计师 下载原图 收藏 0 关于作者 Karamuk Kuo 建筑事务所事务所 & 设计师 关注私信 15 文章 0 评论 0 粉丝 碳质森林 Carboniferous Forest | AMID.cero9 建筑事务所|AMID.cero9 上一篇 2025-10-26 上午8:45 格林威治设计区 A2_B2 | 6a 建筑事务所|6a architects 下一篇 2025-10-26 下午12:55 猜你喜欢 圣达霍拉的房子 House in Sra. da Hora | 德莫拉建筑事务所|De Mora 2025-11-24 公共建筑设计 Bülach公共工程仓库 / Bülach Public Works Depot | Karamuk Kuo 建筑事务所 2025-11-07 公共建筑设计 Porch House / Porch House | MARKLEE 建筑事务所 2025-11-02 公共建筑设计 面朝大海 春暖花开—用天然石材砌筑的石室 2018-10-15 住宅建筑设计 哥特式建筑 Geschinen / Girsberger House | 吉翁·A·卡米纳达|Gion A. Caminada 2025-12-22 住宅建筑设计 阿尔泰罗尼海岸上的房子 / House on the Alentejo Coast | 艾雷斯·马特乌斯建筑事务所 2025-11-09 公共建筑设计 发表回复 请登录后评论...登录后才能评论 提交