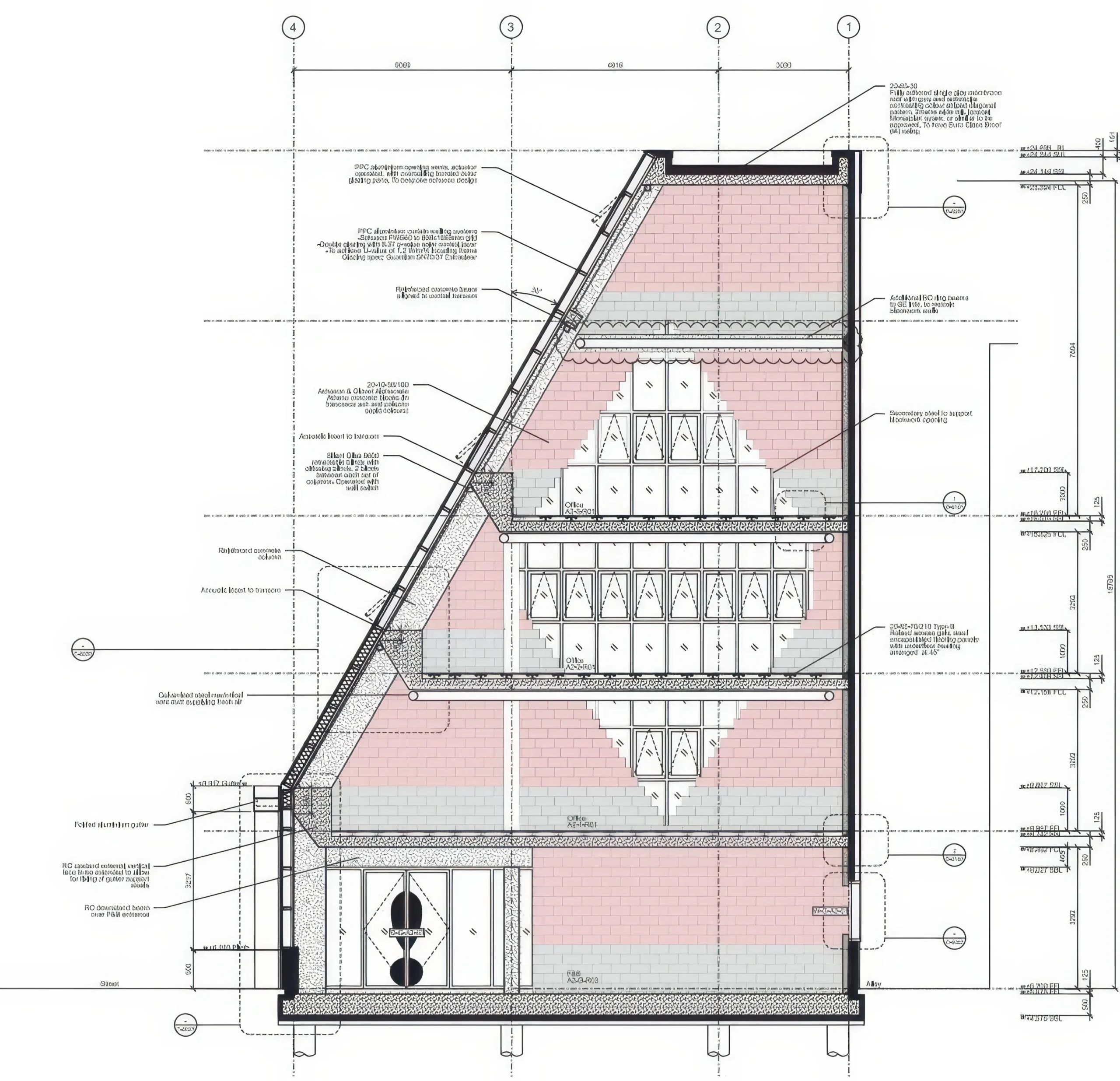
格林威治设计区 A2_B2 | 6a 建筑事务所|6a architects 6a 建筑事务所|6a architects • 2025-10-26 下午12:55 • 公共建筑设计, 建筑师设计, 建筑设计, 文化建筑设计 格林威治设计区 A2_B2 是位于伦敦格林威治半岛的一对非对称双子建筑,由 6a 建筑事务所设计。项目为创意产业提供三层轻工业空间,采用独特的倾斜造型和菱形玻璃石材幕墙,巧妙回应密集城市环境并优化视野。 设计: 6a 建筑事务所|6a architects 类型: 文化建筑设计 功能: 办公楼 风格: 当代建筑 材料: 玻璃 石材 金属板 尺度: 中型建筑 地点:伦敦 时间: 2008年 项目简介 格林威治设计区 A2_B2 位于英国伦敦格林威治半岛,是创意产业园区内的轻工业建筑,包含两栋非对称双子楼,提供三层工作空间,设计于2018年建成。 设计理念 6a 建筑事务所从艺术家 Richard Artschwager 的精确图形雕塑中汲取灵感,通过倾斜体量和菱形幕墙图案,在密集城市肌理中创造视觉通透性,将现代建筑规范转化为富有表现力的表面语言。 空间与功能 建筑包含三层矩形平面,每层面积逐层收窄,形成不同比例的空间特征。首层设置工作室和零售空间,上层为轻工业工作区,通过合理的动线组织满足创意产业灵活使用需求。 材料与技术 外立面采用菱形图案的玻璃与石材幕墙系统,结合夸张的金属排水沟、通风管道等外露构件,形成粗糙与光滑表面的戏剧性对比,展现当代商业建筑的多层构造特性。 设计团队 6a 建筑事务所是伦敦知名建筑实践,以文化建筑和城市更新项目著称,擅长通过材料实验和细致构造回应场地文脉,作品兼具艺术敏感性与建造精确性。 项目简介 格林威治设计区 A2_B2 位于英国伦敦格林威治半岛,是创意产业园区内的轻工业建筑,包含两栋非对称双子楼,提供三层工作空间,设计于2018年建成。 设计理念 6a 建筑事务所从艺术家 Richard Artschwager 的精确图形雕塑中汲取灵感,通过倾斜体量和菱形幕墙图案,在密集城市肌理中创造视觉通透性,将现代建筑规范转化为富有表现力的表面语言。 空间与功能 建筑包含三层矩形平面,每层面积逐层收窄,形成不同比例的空间特征。首层设置工作室和零售空间,上层为轻工业工作区,通过合理的动线组织满足创意产业灵活使用需求。 材料与技术 外立面采用菱形图案的玻璃与石材幕墙系统,结合夸张的金属排水沟、通风管道等外露构件,形成粗糙与光滑表面的戏剧性对比,展现当代商业建筑的多层构造特性。 设计团队 6a 建筑事务所是伦敦知名建筑实践,以文化建筑和城市更新项目著称,擅长通过材料实验和细致构造回应场地文脉,作品兼具艺术敏感性与建造精确性。 本文来自 © 6a 建筑事务所|6a architects, 发布于 © 建筑学院官方网站。 未经授权,禁止转载或摘编。 编辑版本版权归 © 建筑学院官方网站 所有, 设计、图纸及照片版权归设计方 © 6a 建筑事务所|6a architects ↗ 所有。 查看作者在建筑学院发布的更多作品: 6a 建筑事务所|6a architects @ 建筑学院官方网站 6a建筑事务所伦敦建筑创意产业建筑格林威治设计区 A2_B2玻璃石材幕墙 6a 建筑事务所|6a architects事务所 & 设计师 下载原图 收藏 0 关于作者 6a 建筑事务所|6a architects事务所 & 设计师 关注私信 20 文章 1 评论 0 粉丝 6a architects(6a建筑事务所)是英国知名的建筑设计团队,以其对文化、艺术及教育类建筑的深刻理解而闻名。他们的作品擅长运用精巧的材料与细致的构造,在历史与现代的对话中创造宁静而富有感染力的空间。其代表作包括South London Gallery、MK Gallery改造及剑桥大学校园建筑等。 杭州剧院和美术馆 Hangzhou Performing Arts Center and Art Museum | Steven Holl 上一篇 2025-10-26 下午12:55 赫恩格博物馆 HEART Herning Museum of Contemporary Art | Steven Holl 下一篇 2025-10-26 下午12:55 猜你喜欢 纽约街艺术博物馆 Newport Street Gallery | 卡鲁索·圣约翰建筑事务所|Caruso St John 2025-12-02 公共建筑设计 黑石大厦 Black Stone Building | 6a 建筑事务所|6a architects 2025-10-31 公共建筑设计 伦敦新金融城 One New Change, London | 让·努维尔建筑事务所|Jean Nouvel 2025-11-30 公共建筑设计 肯辛顿私人住宅 Private House in Kensington | 大卫·奇珀菲尔德建筑事务所|David Chipperfield 2025-11-28 公共建筑设计 MK美术馆 MK Gallery | 6a 建筑事务所 2025-10-23 公共建筑设计 南伦敦美术馆 South London Gallery | 6a 建筑事务所|6a architects 2025-10-28 公共建筑设计 发表回复 请登录后评论...登录后才能评论 提交