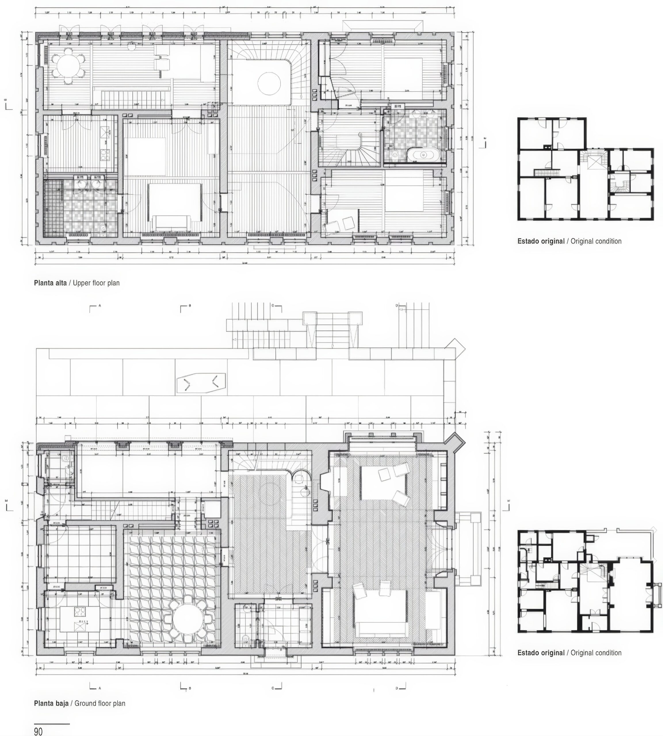
柏林艺术家之家 House for an Artist, Berlin | 卡鲁索·圣约翰建筑事务所|Caruso St John 卡鲁索·圣约翰建筑事务所|Caruso St John • 2025-11-22 下午12:50 • 公共建筑设计, 建筑师, 建筑设计, 文化建筑设计 柏林艺术家之家是卡鲁索·圣约翰建筑事务所在柏林设计的一座独立住宅。项目位于柏林东北部的赫尔穆勒历史湖区,通过对1930年代纳粹时期建筑改造的精心修复,实现了历史保护与现代居住需求的平衡。设计保留了原有建筑特色,同时通过新建花园房和车库,创造了与自然环境和谐共生的艺术居住空间。 设计: 卡鲁索·圣约翰建筑事务所|Caruso St John 类型: 文化建筑设计 功能: 独立住宅 风格: 当代建筑 材料: 混凝土 木材 石材 尺度: 小型建筑 地点:柏林 时间: 2010年 项目简介 柏林艺术家之家位于德国柏林东北部赫尔穆勒湖区,是一座独立住宅建筑。项目建筑面积约300平方米,设计于2010年代,是对1930年代历史建筑的改造更新。 设计理念 设计团队在尊重历史建筑保护要求的前提下,巧妙平衡了纳粹时期建筑改造的保存与业主对休闲乡村住宅的需求。通过抽象化处理新中世纪建筑元素,使建筑在保留历史痕迹的同时获得新的身份认同。 空间与功能 室内空间组织为一系列丰富多样的房间序列,通过内置家具和细腻的细节处理,营造出英式工艺美术运动风格的居住氛围。新建的花园房提供了通往大型花园和湖景的物理通道,增强了室内外空间的连续性。 材料与技术 项目采用铸混凝土制作新开口和窗户,精确模仿原有建筑的轮廓和色调。外部修复保留了木结构、灰泥和石材的原始材料特性,通过色彩调和使建筑形象更加抽象统一。 设计团队 卡鲁索·圣约翰建筑事务所是英国知名建筑事务所,以其对历史建筑改造和文化建筑设计的深刻理解而闻名,作品注重材料质感和空间体验的营造。 项目简介 柏林艺术家之家位于德国柏林东北部赫尔穆勒湖区,是一座独立住宅建筑。项目建筑面积约300平方米,设计于2010年代,是对1930年代历史建筑的改造更新。 设计理念 设计团队在尊重历史建筑保护要求的前提下,巧妙平衡了纳粹时期建筑改造的保存与业主对休闲乡村住宅的需求。通过抽象化处理新中世纪建筑元素,使建筑在保留历史痕迹的同时获得新的身份认同。 空间与功能 室内空间组织为一系列丰富多样的房间序列,通过内置家具和细腻的细节处理,营造出英式工艺美术运动风格的居住氛围。新建的花园房提供了通往大型花园和湖景的物理通道,增强了室内外空间的连续性。 材料与技术 项目采用铸混凝土制作新开口和窗户,精确模仿原有建筑的轮廓和色调。外部修复保留了木结构、灰泥和石材的原始材料特性,通过色彩调和使建筑形象更加抽象统一。 设计团队 卡鲁索·圣约翰建筑事务所是英国知名建筑事务所,以其对历史建筑改造和文化建筑设计的深刻理解而闻名,作品注重材料质感和空间体验的营造。 本文来自 © 卡鲁索·圣约翰建筑事务所|Caruso St John, 发布于 © 建筑学院官方网站。 未经授权,禁止转载或摘编。 编辑版本版权归 © 建筑学院官方网站 所有, 设计、图纸及照片版权归设计方 © 卡鲁索·圣约翰建筑事务所|Caruso St John ↗ 所有。 查看作者在建筑学院发布的更多作品: 卡鲁索·圣约翰建筑事务所|Caruso St John @ 建筑学院官方网站 卡鲁索·圣约翰历史建筑改造柏林建筑柏林艺术家之家独立住宅设计 卡鲁索·圣约翰建筑事务所|Caruso St John事务所 & 设计师 下载原图 收藏 0 关于作者 卡鲁索·圣约翰建筑事务所|Caruso St John事务所 & 设计师 关注私信 20 文章 0 评论 0 粉丝 卡鲁索·圣约翰建筑事务所(Caruso St John)是成立于1990年的英国知名建筑事务所,由亚当·卡鲁索(Adam Caruso)和彼得·圣约翰(Peter St John)合伙创立。该事务所以其深刻的概念思考、对历史文脉的尊重及精湛的材料运用而闻名于世,致力于创造“可随岁月流转缓慢感知的、拥有情感内容的建筑”。其代表作——伦敦纽波特街美术馆(Newport Street Gallery)曾荣获2016年英国斯特林建筑奖,砖屋(Brick House)和沃尔索尔新艺术画廊等项目也曾入围该奖项。 蒙彼利埃市政厅 City Hall, Montpellier | 让·努维尔建筑事务所|Jean Nouvel 上一篇 2025-11-22 上午8:50 带植物的房子 House with Plants | 石上纯也建筑事务所|Junya Ishigami 下一篇 2025-11-22 下午8:50 猜你喜欢 别墅托维诺森 / Villa Toivonen | Arrhov Frick 2026-01-05 住宅建筑设计 House at the Bäumle / Vertical Living | 贝尔纳多·巴德尔|Bernardo Bader 2026-01-18 住宅建筑设计 komazawa之家 / House in Komazawa | 长谷川豪建筑事务所 2025-11-24 公共建筑设计 CASA EN FONTINHA / House in Fontinha | 艾雷斯·马特乌斯建筑事务所|Aires Mateus 2025-11-14 公共建筑设计 重构斯德哥尔摩市图书馆项目 Restructuring Stockholm City Library | 卡鲁索·圣约翰建筑事务所|Caruso St John 2025-12-07 公共建筑设计 马略阿的房子 / House in Maia | 阿尔瓦罗·西扎 & 安东尼奥·马杜雷拉 2026-03-05 住宅建筑设计 发表回复 请登录后评论...登录后才能评论 提交