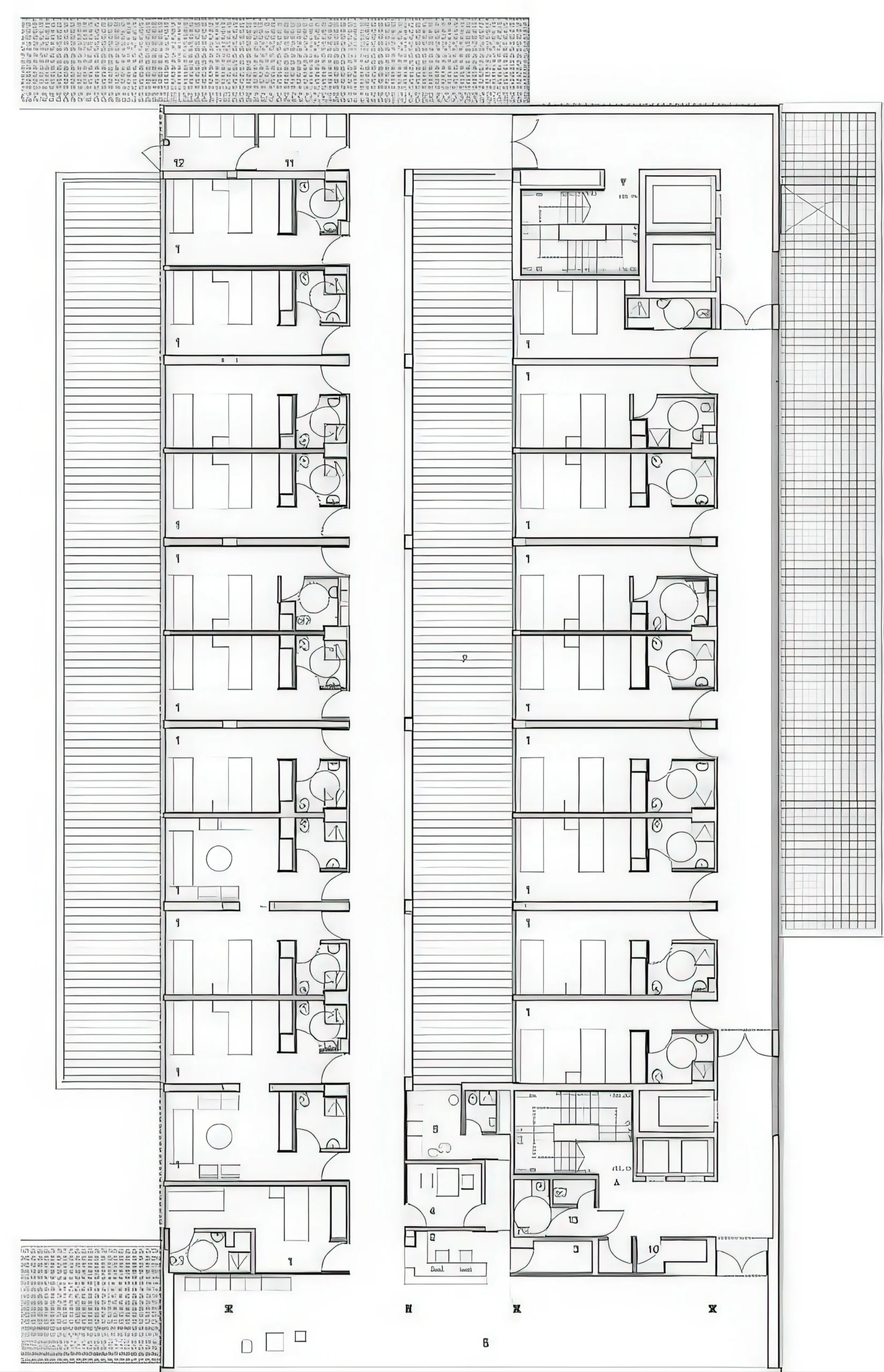
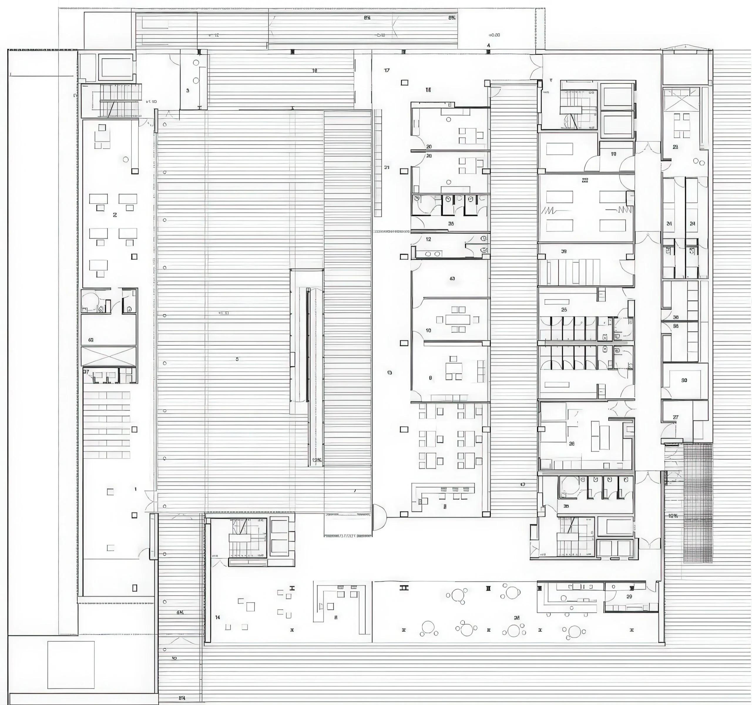
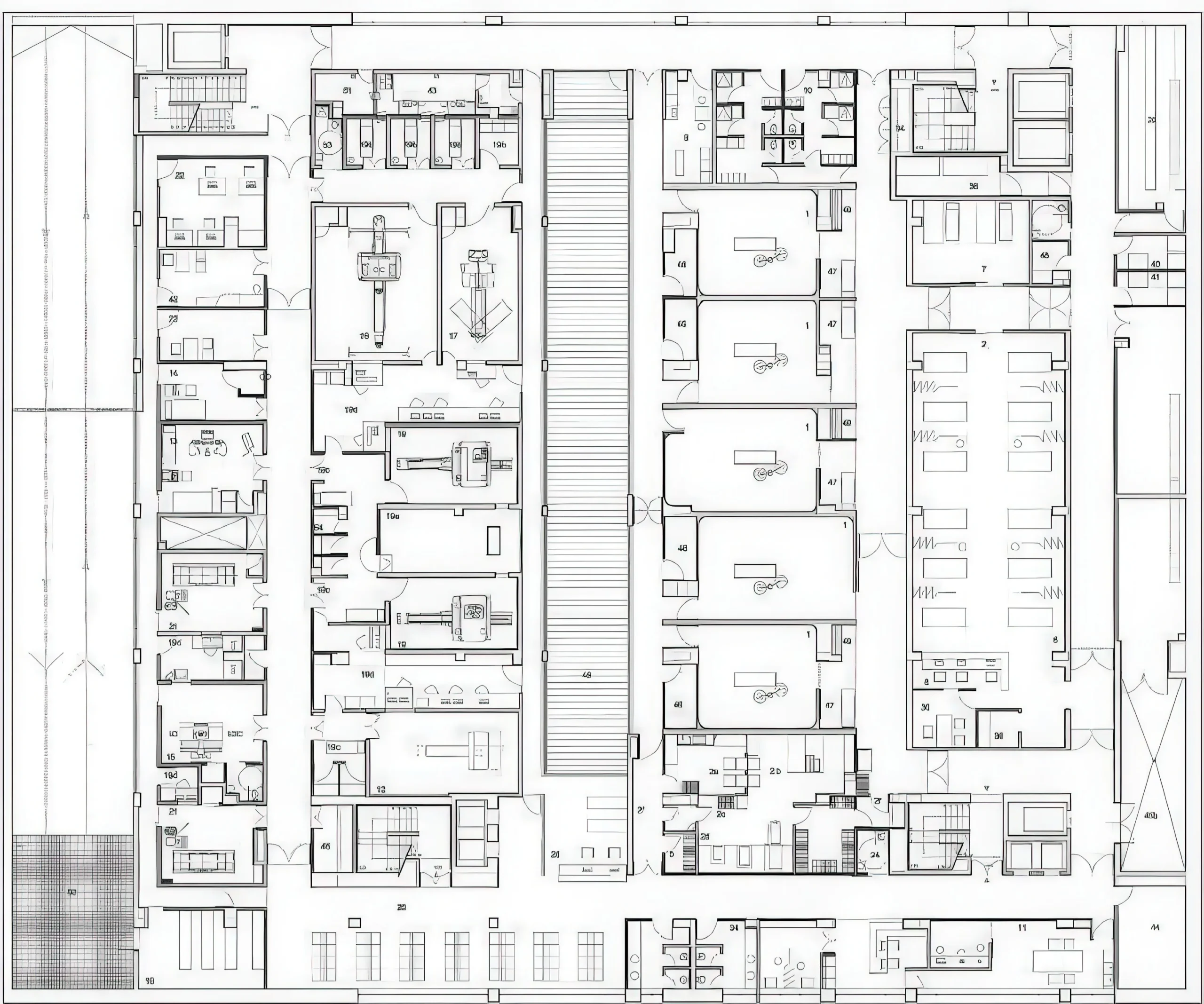
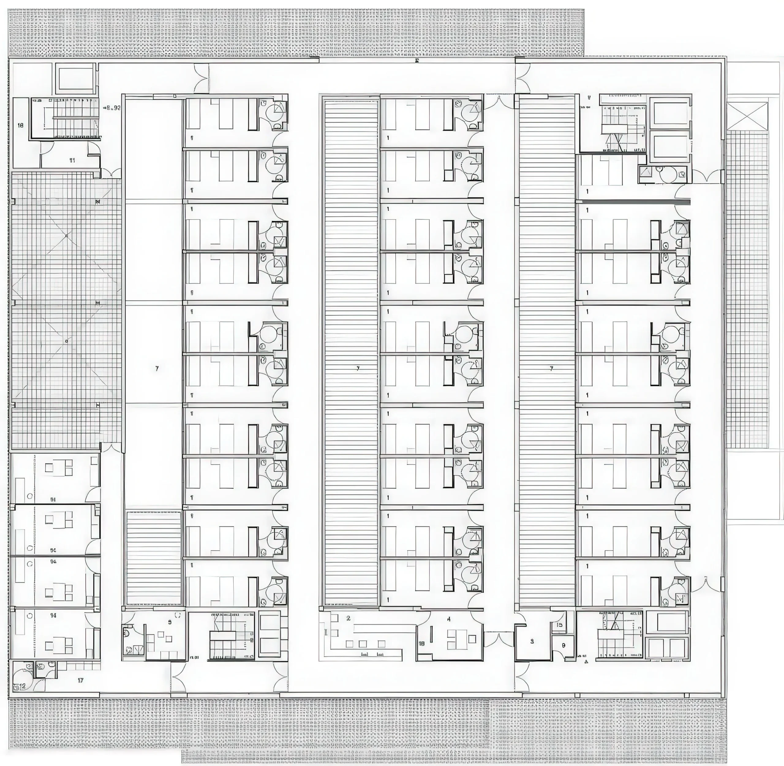
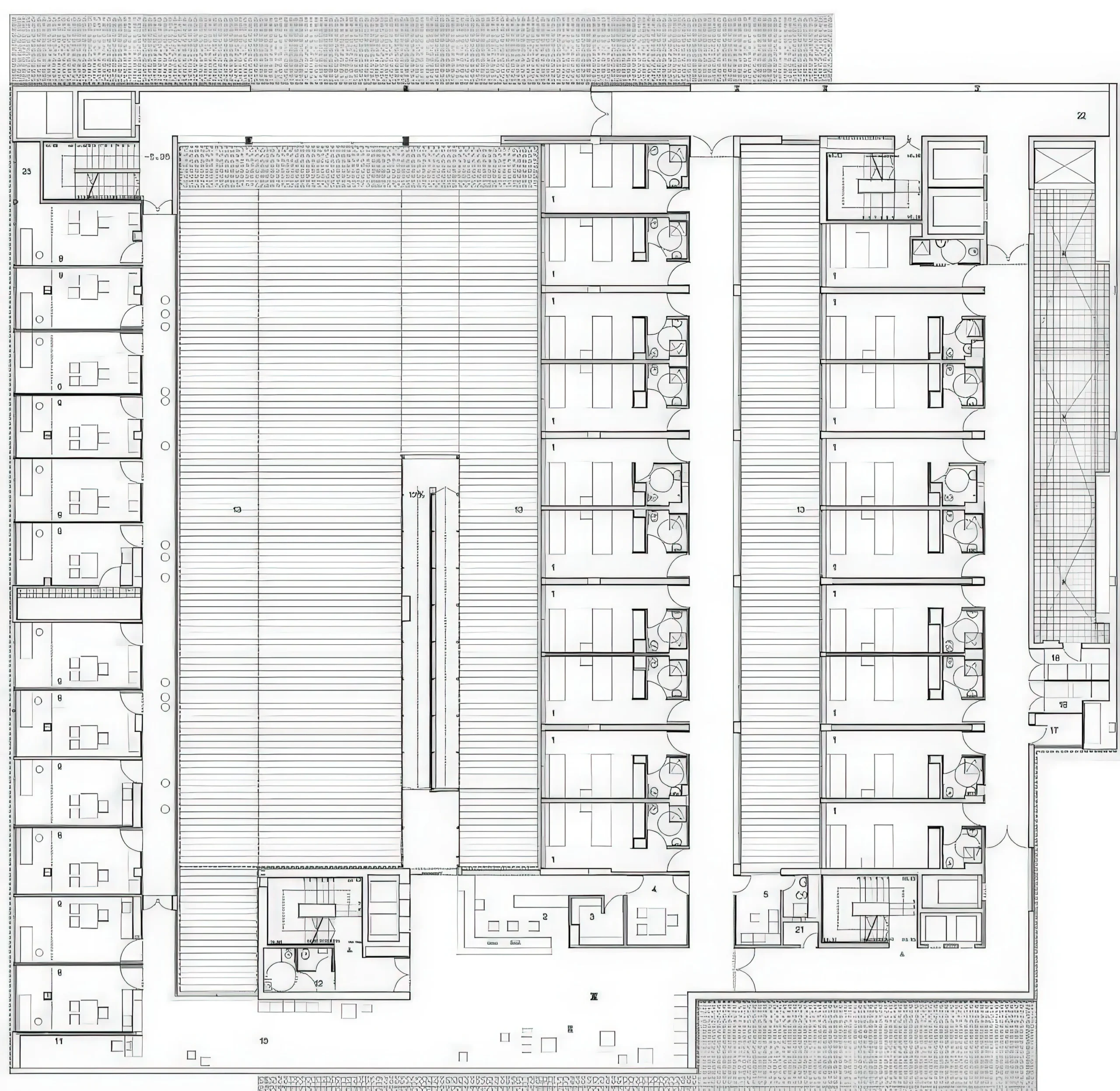
ICTAM Hospital | MGM 建筑师事务所|MGM MGM 建筑师事务所|MGM • 2025-10-29 上午8:50 • 公共建筑设计, 建筑师设计, 建筑设计, 文化建筑设计 ICTAM Hospital 是位于西班牙塞维利亚的一座现代化医疗建筑,由 MGM 建筑师事务所设计并于2012年建成。该项目以”城市中的医院”为核心理念,通过内部街道系统连接复杂功能空间,所有病房朝南布局确保充足阳光,创造舒适的治疗环境。 设计: MGM 建筑师事务所|MGM 类型: 文化建筑设计 功能: 医院 风格: 现代主义 材料: 混凝土 钢材 玻璃 尺度: 大型建筑 地点:西班牙 时间: 2012年 项目简介 ICTAM Hospital 位于西班牙塞维利亚,是一座综合性医疗建筑,设计于2008年,2012年建成。项目规模宏大,采用水平延展的建筑形态,通过理性的功能分区满足现代化医疗需求。 设计理念 设计团队将医院视为城市的有机组成部分,提出”城市中的医院”概念。核心策略是创建一条内部主街道,作为连接各功能区的骨架,同时设置多个层次的休息厅作为战略观景点,连接城市景观与医疗空间。 空间与功能 建筑围绕三个纵向庭院组织,主入口连接内部街道作为室外休息厅。功能分区清晰,包括急诊区、手术室、重症监护、病房区等。所有病房朝南布局,确保最佳采光,同时优化动线设计减少行走距离。 材料与技术 项目注重室内空间的质量与光线处理,采用理性结构体系。材料选择强调温暖与轻盈感,通过水平延展的建筑形态与周边景观建立和谐关系,体现医疗建筑的人性化关怀。 设计团队 MGM 建筑师事务所是西班牙知名建筑设计机构,专注于公共建筑与医疗设施设计,以理性功能布局与空间品质著称,曾获2013年西班牙建筑奖CSCAE。 项目简介 ICTAM Hospital 位于西班牙塞维利亚,是一座综合性医疗建筑,设计于2008年,2012年建成。项目规模宏大,采用水平延展的建筑形态,通过理性的功能分区满足现代化医疗需求。 设计理念 设计团队将医院视为城市的有机组成部分,提出”城市中的医院”概念。核心策略是创建一条内部主街道,作为连接各功能区的骨架,同时设置多个层次的休息厅作为战略观景点,连接城市景观与医疗空间。 空间与功能 建筑围绕三个纵向庭院组织,主入口连接内部街道作为室外休息厅。功能分区清晰,包括急诊区、手术室、重症监护、病房区等。所有病房朝南布局,确保最佳采光,同时优化动线设计减少行走距离。 材料与技术 项目注重室内空间的质量与光线处理,采用理性结构体系。材料选择强调温暖与轻盈感,通过水平延展的建筑形态与周边景观建立和谐关系,体现医疗建筑的人性化关怀。 设计团队 MGM 建筑师事务所是西班牙知名建筑设计机构,专注于公共建筑与医疗设施设计,以理性功能布局与空间品质著称,曾获2013年西班牙建筑奖CSCAE。 本文来自 © MGM 建筑师事务所|MGM, 发布于 © 建筑学院官方网站。 未经授权,禁止转载或摘编。 编辑版本版权归 © 建筑学院官方网站 所有, 设计、图纸及照片版权归设计方 © MGM 建筑师事务所|MGM ↗ 所有。 查看作者在建筑学院发布的更多作品: MGM 建筑师事务所|MGM @ 建筑学院官方网站 ICTAM HospitalMGM建筑师事务所医疗建筑塞维利亚混凝土 MGM 建筑师事务所|MGM事务所 & 设计师 下载原图 收藏 0 关于作者 MGM 建筑师事务所|MGM事务所 & 设计师 关注私信 5 文章 0 评论 0 粉丝 兰登贝格豪斯剧院 Landenberghaus Theater | Karamuk Kuo 建筑事务所 上一篇 2025-10-29 上午8:50 陶瓦画廊 Am Tacheles | 布兰德胡伯建筑事务所|Brandlhuber 下一篇 2025-10-29 下午12:31 猜你喜欢 温德尔斯特兰德湖畔社区中心 / Snøhetta 2025-07-18 公共建筑设计 荒山翠谷间,公共与私密交融 — 阿富汗巴米扬省医院 2018-07-30 医疗建筑 Maggies中心,克劳瑟布鲁克医院 Maggie’s Centre at Clatterbridge Hospital | 卡莫迪·格罗克建筑事务所|Carmody Groarke 2025-11-26 公共建筑设计 船舰内镶套的船只 — 玛吉中心 2018-07-23 医疗建筑 Zwinger 公交站 Zwing Bus Stop | 斯米里扬·拉迪奇|Smiljan Radić 2026-01-17 交通建筑 安格莱特工程学校伊斯兰建筑大楼 Isalab Building,Engineering School in Anglet | 布鲁瑟建筑事务所 2025-11-20 公共建筑设计 发表回复 请登录后评论...登录后才能评论 提交