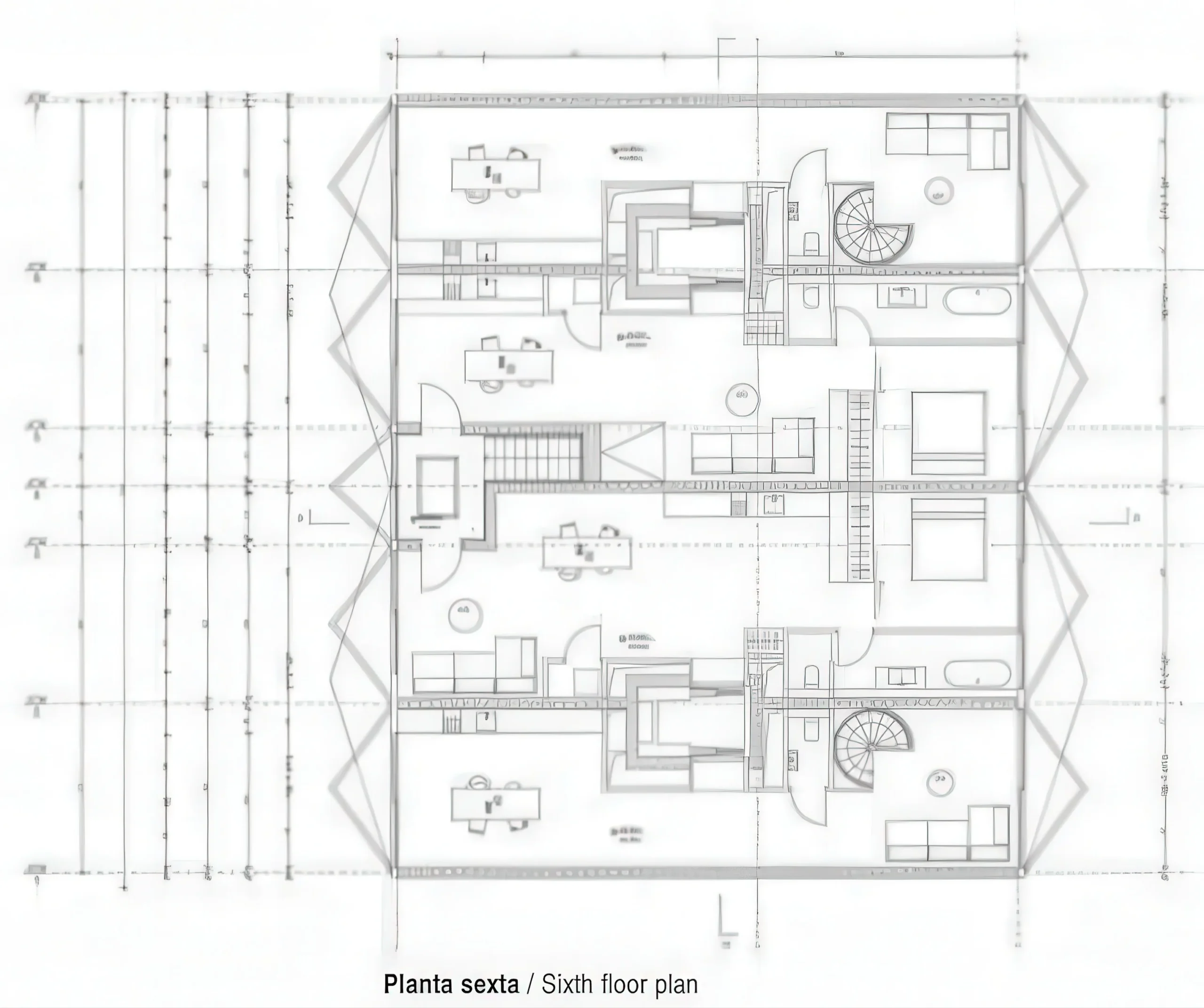
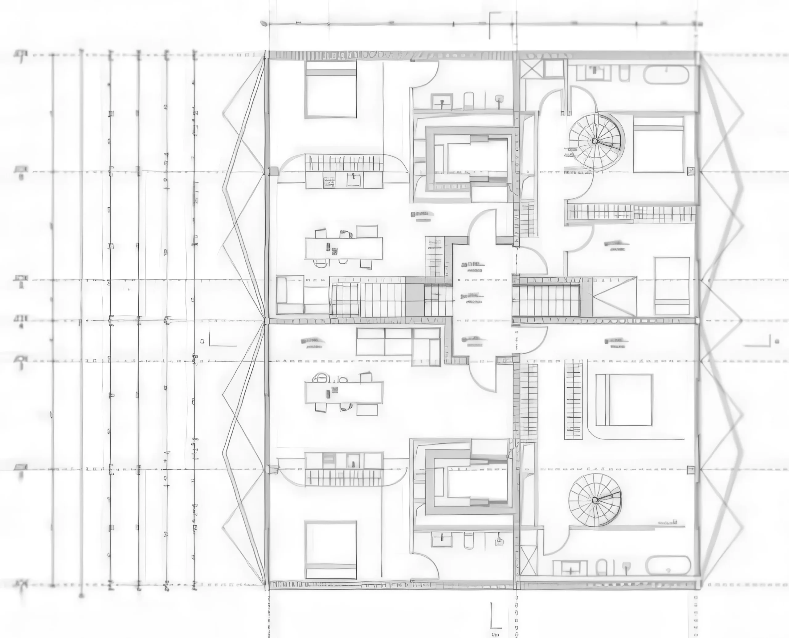
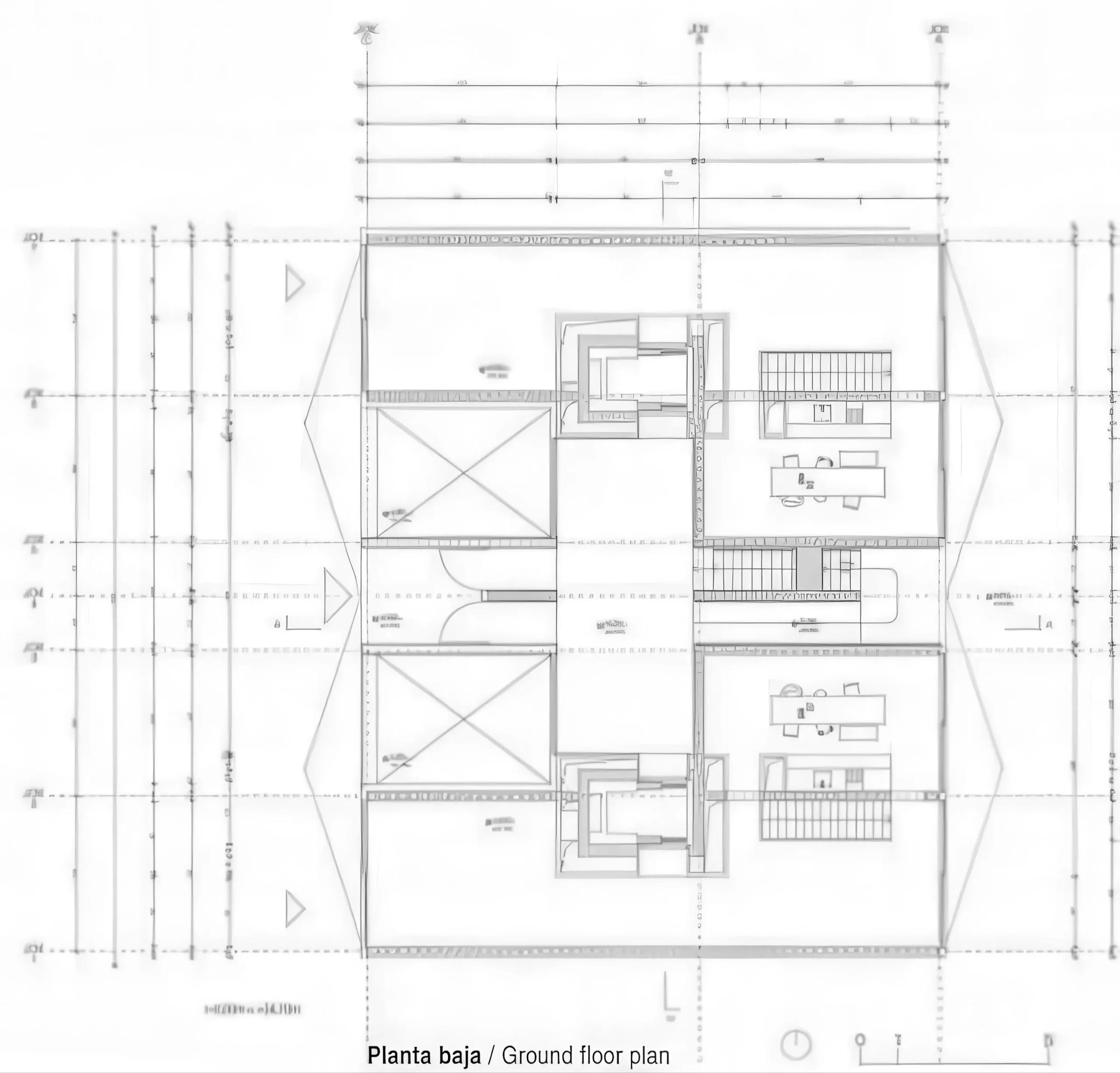
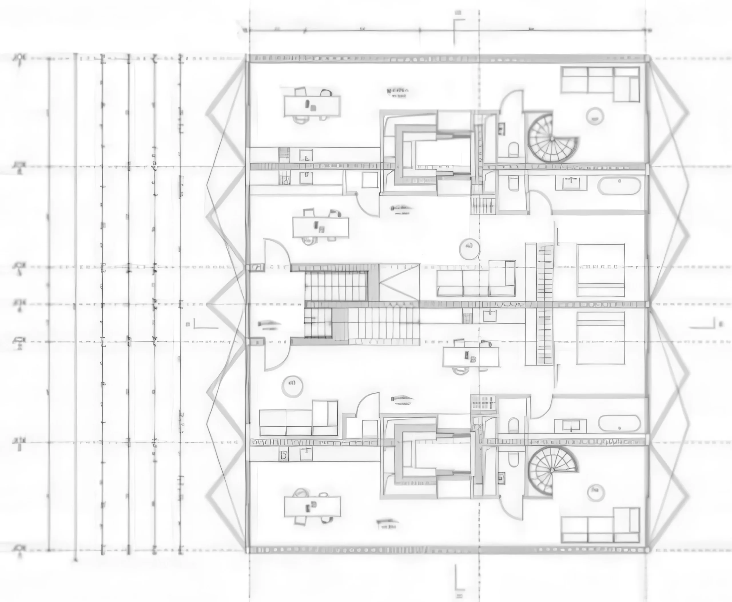
陶瓦画廊 Am Tacheles | 布兰德胡伯建筑事务所|Brandlhuber 布兰德胡伯建筑事务所|Brandlhuber • 2025-10-29 下午12:31 • 公共建筑设计, 建筑师设计, 建筑设计, 文化建筑设计 陶瓦画廊 Am Tacheles 是位于柏林历史中心的城市更新项目,由布兰德胡伯建筑事务所设计。该项目包含Leika和Joux两栋建筑,通过创新的空间策略回应复杂的场地条件,提供灵活的工作室公寓和复式住宅,满足柏林日益增长的单人住房需求。 设计: 布兰德胡伯建筑事务所|Brandlhuber 类型: 文化建筑设计 功能: 公寓住宅 风格: 当代建筑 材料: 混凝土 木材 玻璃 金属板 尺度: 中型建筑 地点:柏林 时间: 2016年 项目简介 陶瓦画廊 Am Tacheles 位于德国柏林历史中心弗里德里希大街,是一个集住宅与商业功能于一体的城市更新项目。项目总建筑面积未公开,包含Leika工作室公寓楼和Joux复式住宅楼,设计始于2014年,预计2016年后建成。 设计理念 设计团队以回应复杂场地限制为核心策略,通过创新的空间组织重新定义柏林典型住宅模式。项目巧妙利用建筑退线规范,创造独特的三角形体量和阳台系统,实现高密度城市环境中的居住品质提升。 空间与功能 Leika楼提供29平方米的灵活工作室公寓,采用镜面隔墙系统实现空间多功能转换;Joux楼设计为复式单元,明确区分公共活动区与私密生活区。两栋建筑均设有公共功能空间,包括地面层商业区和屋顶露台,促进社区互动。 材料与技术 项目主要采用混凝土框架结构,结合镜面玻璃隔墙、铝板和天然材料。Leika楼的镜面墙系统可全方位开启,实现空间灵活重组;Joux楼运用落地推拉门连接室内外,最大化利用小型三角形阳台。 设计团队 布兰德胡伯建筑事务所是德国知名建筑实践,以应对复杂城市环境和创新居住模式著称。事务所擅长通过精准的建筑策略解决高密度城市中的居住挑战,作品注重空间灵活性与材料真实性。 项目简介 陶瓦画廊 Am Tacheles 位于德国柏林历史中心弗里德里希大街,是一个集住宅与商业功能于一体的城市更新项目。项目总建筑面积未公开,包含Leika工作室公寓楼和Joux复式住宅楼,设计始于2014年,预计2016年后建成。 设计理念 设计团队以回应复杂场地限制为核心策略,通过创新的空间组织重新定义柏林典型住宅模式。项目巧妙利用建筑退线规范,创造独特的三角形体量和阳台系统,实现高密度城市环境中的居住品质提升。 空间与功能 Leika楼提供29平方米的灵活工作室公寓,采用镜面隔墙系统实现空间多功能转换;Joux楼设计为复式单元,明确区分公共活动区与私密生活区。两栋建筑均设有公共功能空间,包括地面层商业区和屋顶露台,促进社区互动。 材料与技术 项目主要采用混凝土框架结构,结合镜面玻璃隔墙、铝板和天然材料。Leika楼的镜面墙系统可全方位开启,实现空间灵活重组;Joux楼运用落地推拉门连接室内外,最大化利用小型三角形阳台。 设计团队 布兰德胡伯建筑事务所是德国知名建筑实践,以应对复杂城市环境和创新居住模式著称。事务所擅长通过精准的建筑策略解决高密度城市中的居住挑战,作品注重空间灵活性与材料真实性。 本文来自 © 布兰德胡伯建筑事务所|Brandlhuber, 发布于 © 建筑学院官方网站。 未经授权,禁止转载或摘编。 编辑版本版权归 © 建筑学院官方网站 所有, 设计、图纸及照片版权归设计方 © 布兰德胡伯建筑事务所|Brandlhuber ↗ 所有。 查看作者在建筑学院发布的更多作品: 布兰德胡伯建筑事务所|Brandlhuber @ 建筑学院官方网站 工作室公寓设计布兰德胡伯建筑事务所柏林城市更新混凝土框架结构陶瓦画廊 Am Tacheles 布兰德胡伯建筑事务所|Brandlhuber事务所 & 设计师 下载原图 收藏 0 关于作者 布兰德胡伯建筑事务所|Brandlhuber事务所 & 设计师 关注私信 8 文章 0 评论 0 粉丝 布兰德胡伯建筑事务所(Brandlhuber+)由阿尔诺·布兰德胡伯(Arno Brandlhuber)于2006年在柏林创立。事务所以其协作性、研究驱动的实践而闻名,工作涵盖建筑、研究项目、展览、出版物及政治介入。其标志性项目“Antivilla”(由废弃内衣工厂改造而成)体现了其对现有建筑改造、可持续性及成本效益的独特探索,并擅长运用混凝土等材料创造灵活、开放的空间。 ICTAM Hospital | MGM 建筑师事务所|MGM 上一篇 2025-10-29 上午8:50 瑞士洛桑艺术博物馆 Fine Arts Museum, Lausanne | 巴罗齐与维加建筑事务所|Barozzi Veiga 下一篇 2025-10-29 下午12:31 猜你喜欢 Art Collection Siedle / COLECCION DE ARTE SIEDLE | 布兰德胡伯建筑事务所|Brandlhuber 2025-11-08 公共建筑设计 Art Collection Siedle / COLECCION DE ARTE SIEDLE | 布兰德胡伯建筑事务所|Brandlhuber 2025-12-25 公共建筑设计 格塞尔斯特大街,工作室与庭院式住宅 Geisselstrasse, Atelier and Courtyard House | 布兰德胡伯建筑事务所|Brandlhuber 2025-10-30 公共建筑设计 尼安德特人博物馆 / Neanderthal Museum | 布兰德胡伯建筑事务所|Brandlhuber 2025-11-05 公共建筑设计 科隆壁板公寓和办公楼 / Kölner Brett, Apartment and Office Building | 布兰德胡伯建筑事务所|Brandlhuber 2025-11-09 住宅室内设计 乔阿奇姆斯特大街校园 Joachimstrasse Campus | 大卫·奇珀菲尔德建筑事务所|David Chipperfield 2025-11-24 公共建筑设计 发表回复 请登录后评论...登录后才能评论 提交