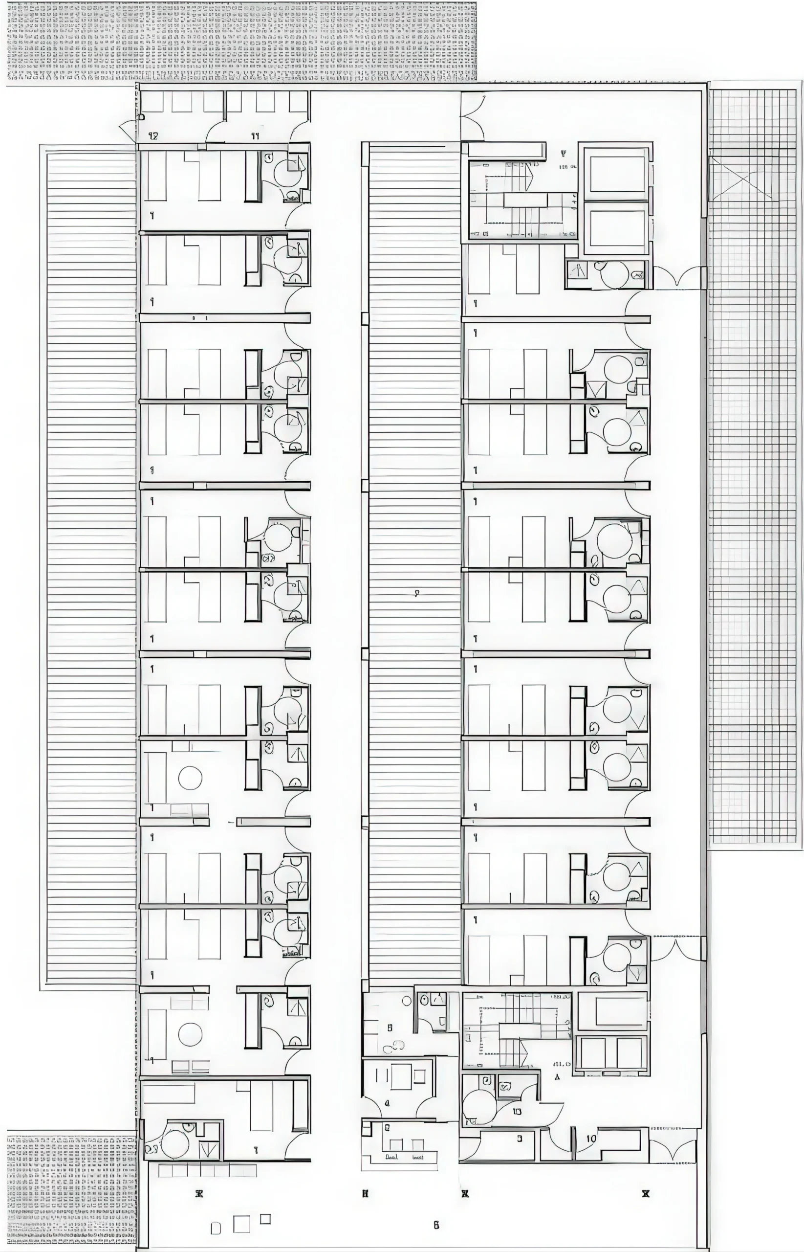
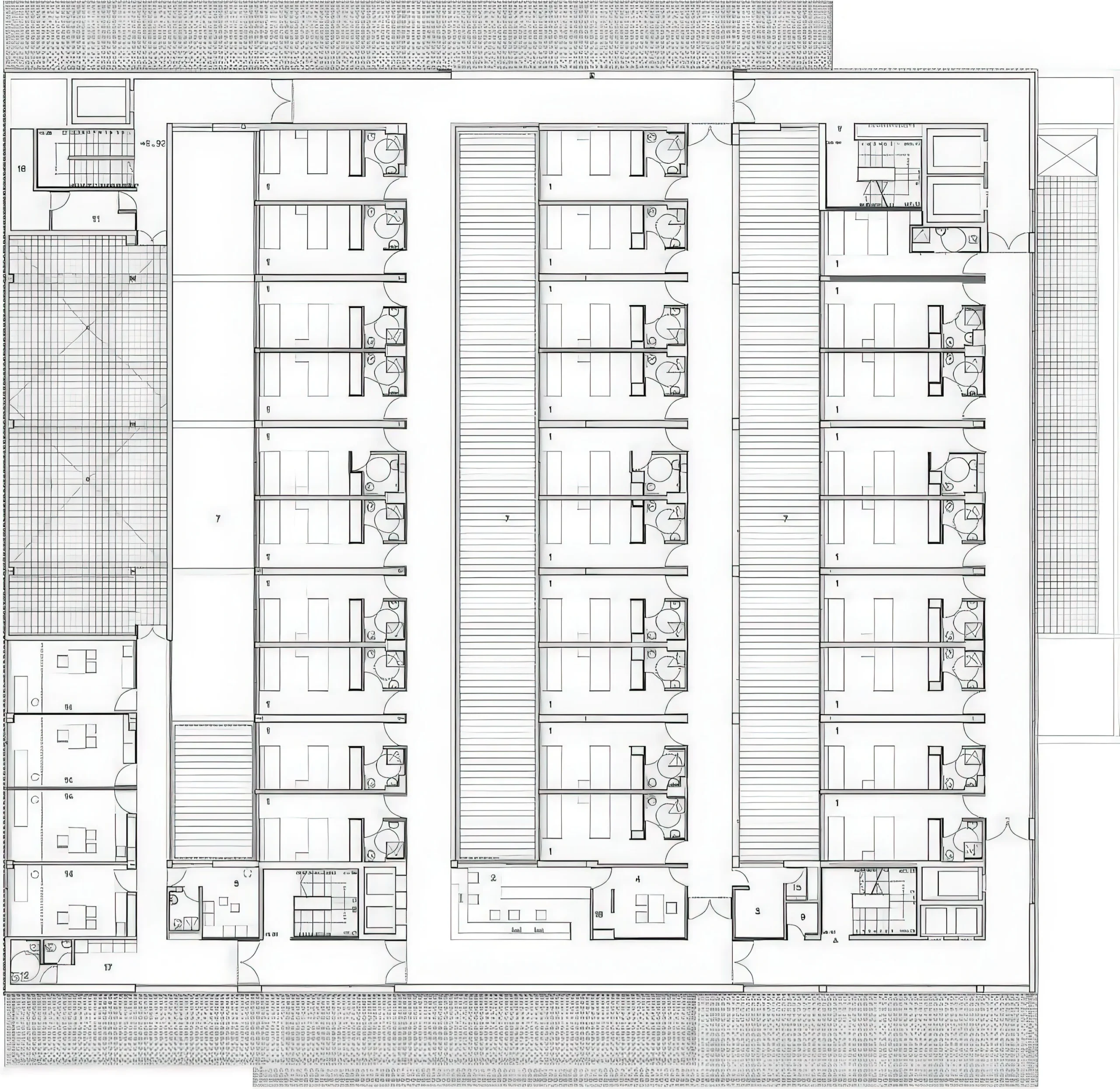
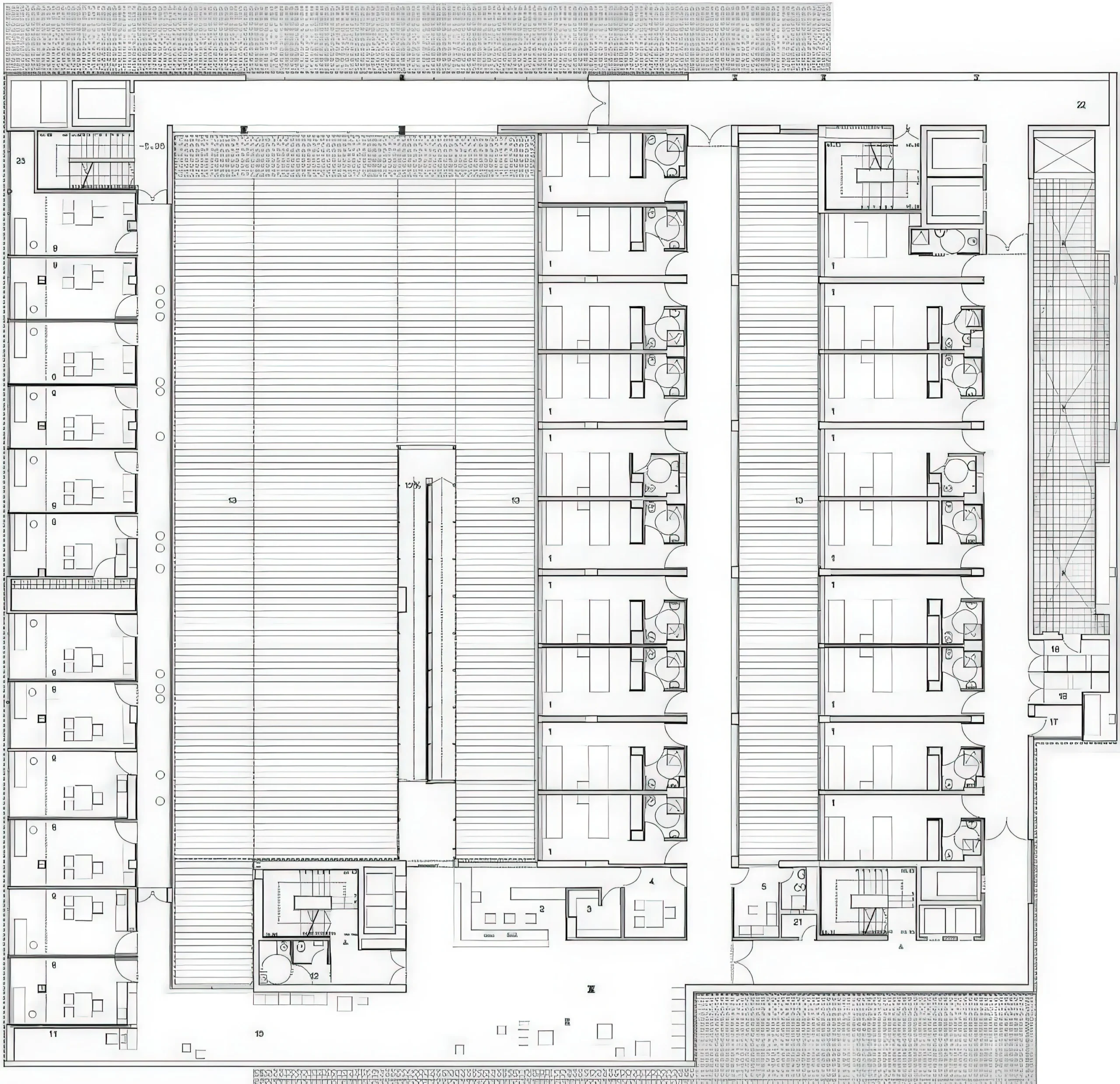
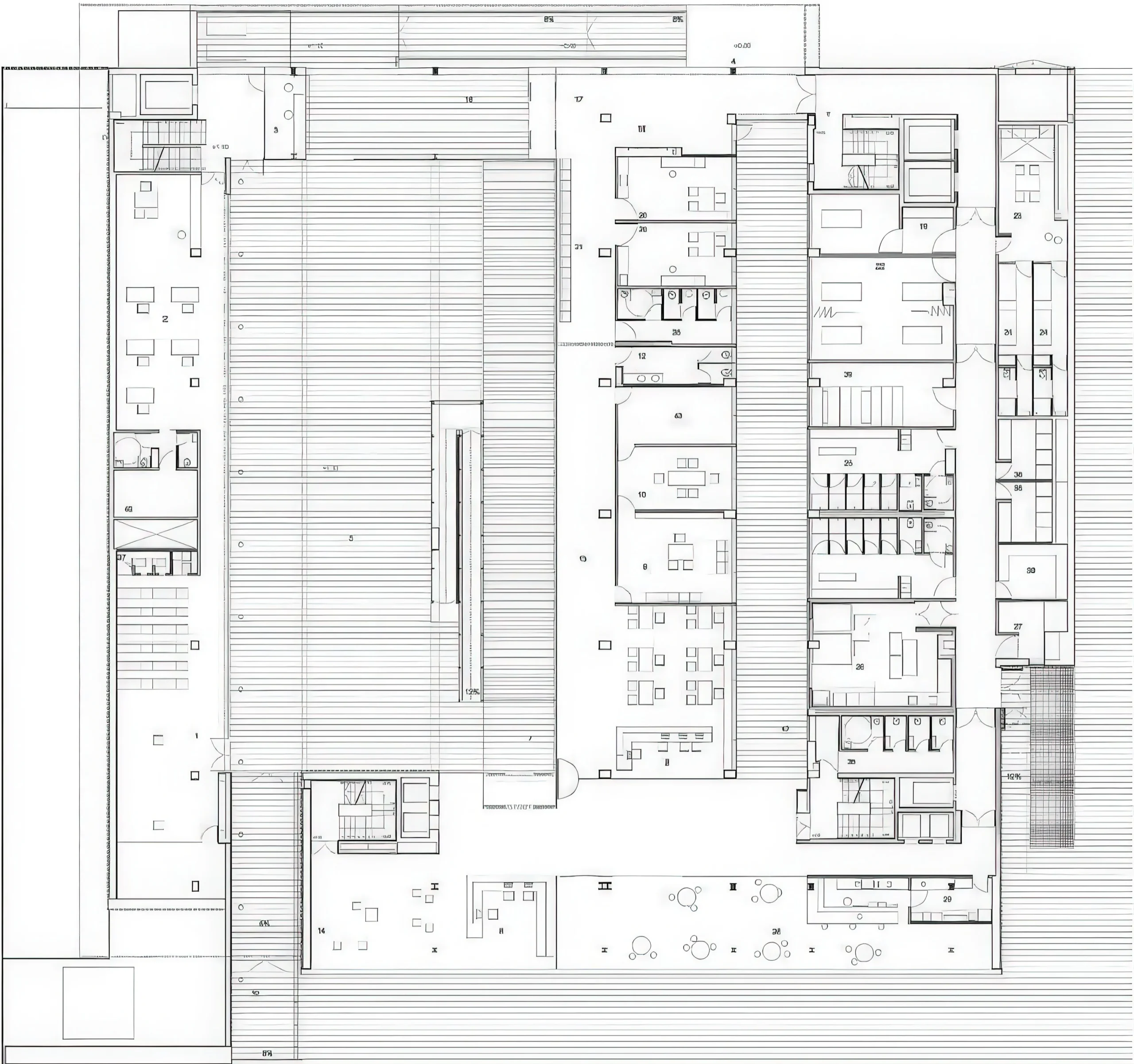
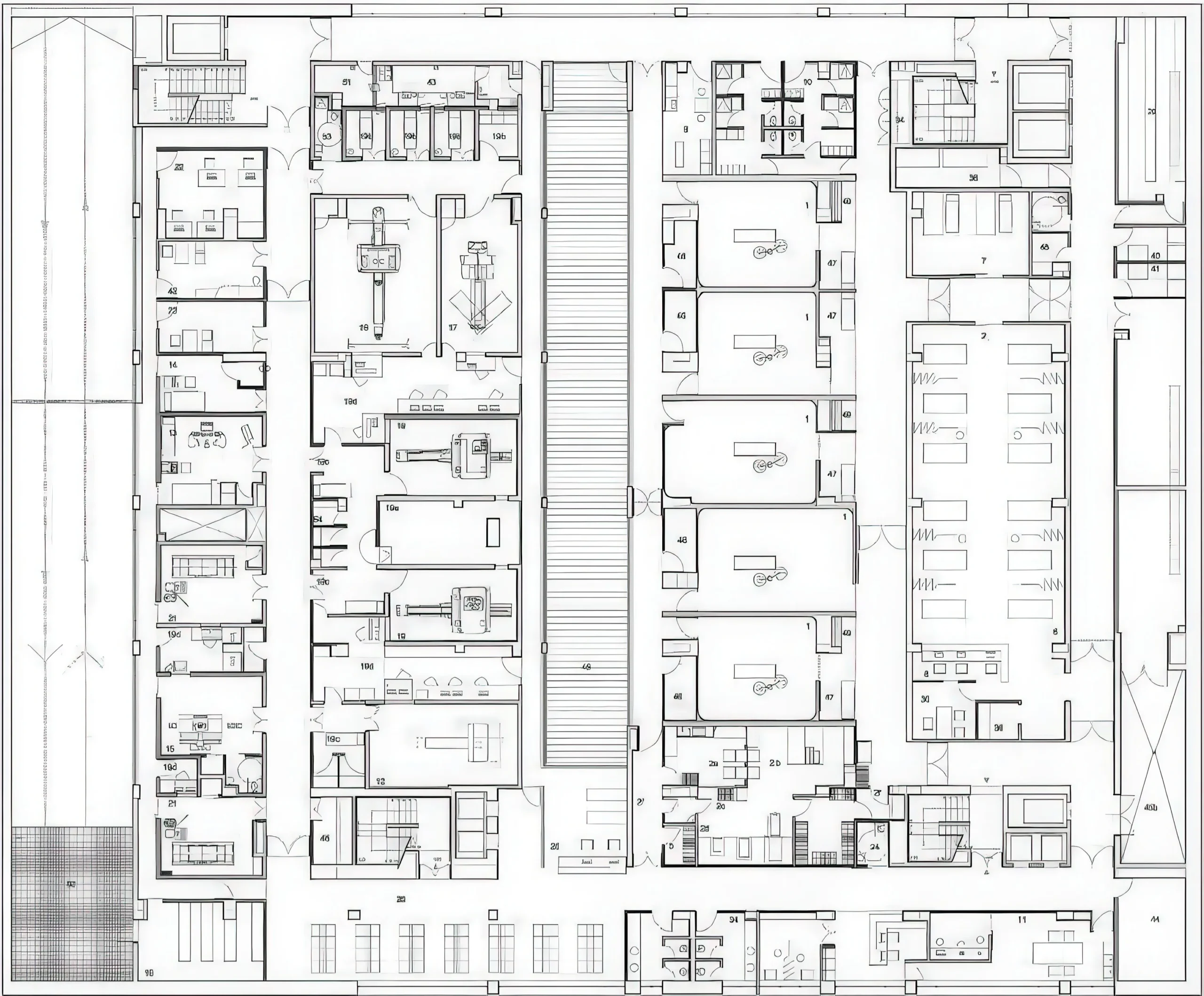
ICTAM 医院 / ICTAM Hospital | MGM 建筑师事务所 MGM 建筑师事务所|MGM • 2026-04-27 上午9:17 • 公共空间设计, 医疗空间设计 ICTAM 医院由 +MGM 建筑师事务所设计,位于西班牙塞维利亚,是一座现代化医疗建筑。该项目通过创新的城市整合策略,将大型医院设施融入城市肌理,以内部街道组织复杂功能空间,创造宜人的医疗环境与高效的工作流程。 设计: MGM 建筑师事务所|MGM 类型: 医疗空间设计 功能: 独立住宅 风格: 当代建筑 材料: 混凝土 钢材 玻璃 尺度: 大型建筑 地点:塞维利亚 时间: 1970年 项目概述 ICTAM 医院位于西班牙塞维利亚,是一座综合性医疗建筑,设计于2008年,建成于2012年。该项目荣获2013年西班牙建筑奖CSCAE,体现了现代医疗建筑在城市环境中的创新整合。 设计理念 ICTAM 医院设计基于城市融合理念,将大型医疗设施视为城市有机组成部分。+MGM 建筑师事务所以内部街道为核心组织空间,创造连接城市与建筑的治疗性环境,回应塞维利亚的历史文脉与当代医疗需求。 空间与功能 ICTAM 医院采用理性功能布局,围绕三个纵向庭院组织空间。内部街道作为主要交通轴线,连接各功能区域,同时设置多个观景平台,为患者、家属和医护人员提供面向城市与乡村景观的治疗性视野。 材料与技术 ICTAM 医院采用混凝土、钢材和玻璃等现代建筑材料,强调空间的温暖与光感。所有病房朝南布局,最大化自然采光,结合高效的流线设计和环境控制系统,创造舒适宜人的医疗空间。 项目特色与启发 ICTAM 医院展示了大型医疗建筑与城市环境的有机融合,其内部街道概念为医疗建筑设计提供了新思路。+MGM 建筑师事务所的设计体现了医疗空间人性化与功能效率的平衡,对当代医疗建筑设计具有重要参考价值。 设计团队 +MGM 建筑师事务所是西班牙知名建筑设计团队,专注于公共建筑与医疗设施设计。事务所以创新的空间策略和严谨的功能组织著称,在ICTAM 医院项目中展现了将复杂医疗功能与城市环境完美结合的设计能力。 项目概述 ICTAM 医院位于西班牙塞维利亚,是一座综合性医疗建筑,设计于2008年,建成于2012年。该项目荣获2013年西班牙建筑奖CSCAE,体现了现代医疗建筑在城市环境中的创新整合。 设计理念 ICTAM 医院设计基于城市融合理念,将大型医疗设施视为城市有机组成部分。+MGM 建筑师事务所以内部街道为核心组织空间,创造连接城市与建筑的治疗性环境,回应塞维利亚的历史文脉与当代医疗需求。 空间与功能 ICTAM 医院采用理性功能布局,围绕三个纵向庭院组织空间。内部街道作为主要交通轴线,连接各功能区域,同时设置多个观景平台,为患者、家属和医护人员提供面向城市与乡村景观的治疗性视野。 材料与技术 ICTAM 医院采用混凝土、钢材和玻璃等现代建筑材料,强调空间的温暖与光感。所有病房朝南布局,最大化自然采光,结合高效的流线设计和环境控制系统,创造舒适宜人的医疗空间。 项目特色与启发 ICTAM 医院展示了大型医疗建筑与城市环境的有机融合,其内部街道概念为医疗建筑设计提供了新思路。+MGM 建筑师事务所的设计体现了医疗空间人性化与功能效率的平衡,对当代医疗建筑设计具有重要参考价值。 设计团队 +MGM 建筑师事务所是西班牙知名建筑设计团队,专注于公共建筑与医疗设施设计。事务所以创新的空间策略和严谨的功能组织著称,在ICTAM 医院项目中展现了将复杂医疗功能与城市环境完美结合的设计能力。 本文来自 © MGM 建筑师事务所|MGM, 发布于 © 建筑学院官方网站。 未经授权,禁止转载或摘编。 编辑版本版权归 © 建筑学院官方网站 所有, 设计、图纸及照片版权归设计方 © MGM 建筑师事务所|MGM ↗ 所有。 查看作者在建筑学院发布的更多作品: MGM 建筑师事务所|MGM @ 建筑学院官方网站 +MGM建筑师事务所ICTAM Hospital医疗建筑设计塞维利亚医院现代医疗建筑 MGM 建筑师事务所|MGM事务所 & 设计师 下载原图 收藏 0 关于作者 MGM 建筑师事务所|MGM事务所 & 设计师 关注私信 7 文章 0 评论 0 粉丝 XSING原生公园遮阳棚 / Canopies for Xingu Indigenous Park | Estúdio Gustúdio Gustavo Utrabo 上一篇 2026-03-31 上午10:00 编织式悬索木制屋顶,孩子们的课后学校 — 日本自然科学寺子屋 下一篇 2018-07-06 上午8:30 猜你喜欢 ICTAM Hospital | MGM 建筑师事务所|MGM 2025-10-29 公共建筑设计 弗雷赫纳尔德拉谢拉酒店 / Hotel in Fregenal de la Sierra | +MGM 建筑师事务所|MGM 2026-04-27 商业与综合建筑 Care Home, Wingene Care Home, Wingene | Sergison Bates Architects 2026-02-09 公共建筑设计 圣巴特斯马格丽达中心 / Maggie’s Centre at St. Barts | 霍尔 Steven Holl 2025-11-30 公共建筑设计 发表回复 请登录后评论...登录后才能评论 提交