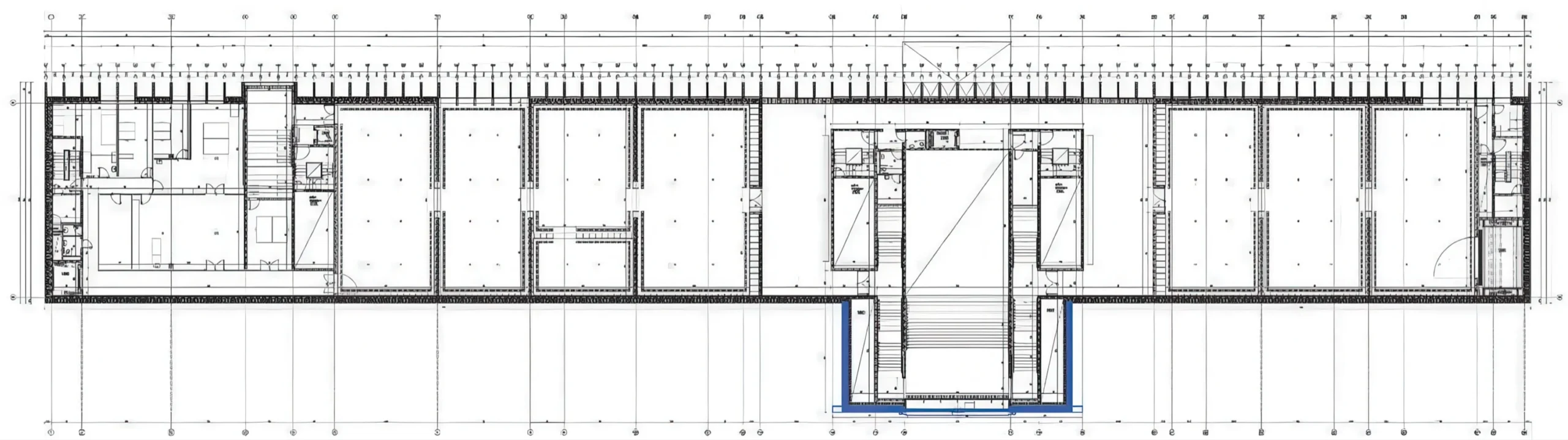
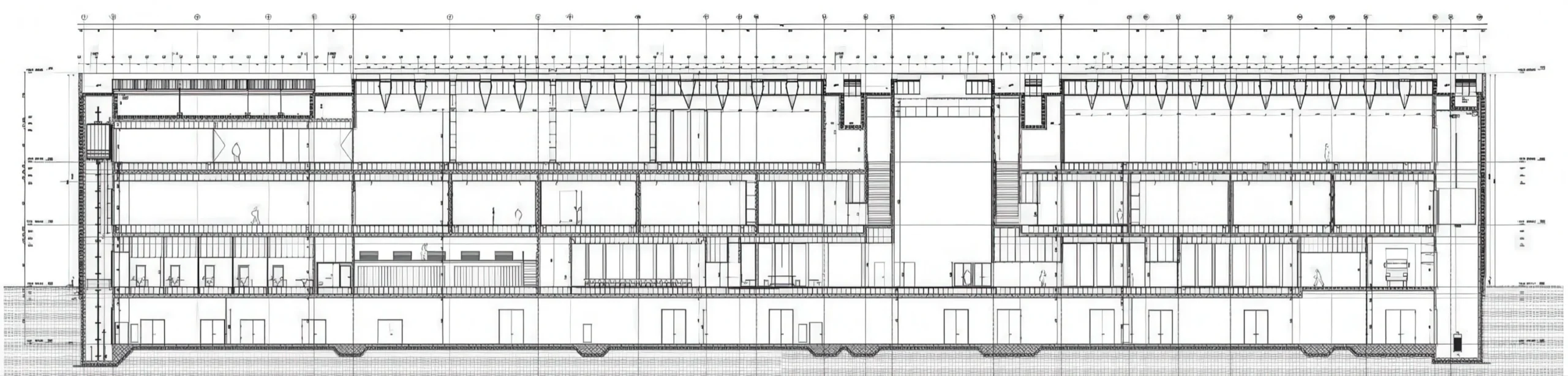
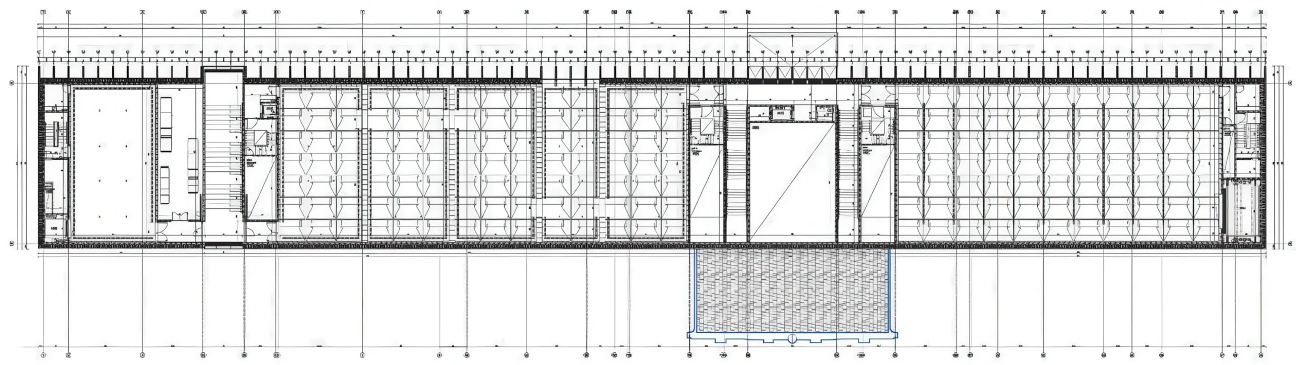
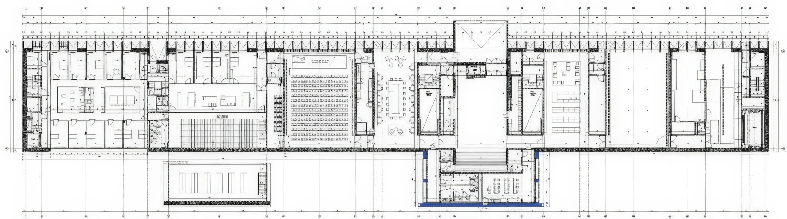
瑞士洛桑艺术博物馆 Fine Arts Museum, Lausanne | 巴罗齐与维加建筑事务所|Barozzi Veiga 巴罗齐与维加建筑事务所|Barozzi Veiga • 2025-10-29 下午12:31 • 公共建筑设计, 建筑师设计, 建筑设计, 文化建筑设计 瑞士洛桑艺术博物馆位于瑞士洛桑,由巴罗齐与维加建筑事务所设计,是城市艺术区改造的核心项目。该项目将废弃铁路区域转化为集美术、摄影与装饰艺术博物馆于一体的文化综合体,通过保留历史建筑片段与创造新公共空间,实现了工业记忆与现代功能的平衡。 设计: 巴罗齐与维加建筑事务所|Barozzi Veiga 类型: 文化建筑设计 功能: 文化中心 风格: 现代主义 材料: 混凝土 钢材 玻璃 尺度: 中型建筑 地点:瑞士 时间: 2011年 项目简介 瑞士洛桑艺术博物馆位于瑞士洛桑市,是一座文化建筑,作为城市艺术区改造的核心组成部分,设计始于2011年并荣获设计竞赛一等奖。项目将废弃铁路区域重新规划,整合三大博物馆功能。 设计理念 设计团队以城市再生策略为核心,通过拆除部分19世纪建筑创造新公共空间,同时保留历史片段如旧仓库立面作为记忆载体。建筑被构想为工业背景下的”居住墙”,平衡场所特异性与形式自主性。 空间与功能 博物馆空间围绕中央大厅组织,以发现的旧建筑片段作为构图核心。内部序列延续外部公共空间,主要楼梯连接各层展厅,包括永久展览、临时展览区域,空间布局强调工业结构与艺术展示的融合。 材料与技术 采用混凝土结构体系,立面以精确的墙体划分回应工业语境。天窗细节提供自然采光,施工工艺注重历史元素与新建筑的整合,体现可持续的城市更新策略。 设计团队 巴罗齐与维加建筑事务所是西班牙-瑞士建筑实践,以文化建筑和城市更新项目著称,擅长通过简洁几何与场地文脉对话,作品强调建筑与公共空间的整合。 项目简介 瑞士洛桑艺术博物馆位于瑞士洛桑市,是一座文化建筑,作为城市艺术区改造的核心组成部分,设计始于2011年并荣获设计竞赛一等奖。项目将废弃铁路区域重新规划,整合三大博物馆功能。 设计理念 设计团队以城市再生策略为核心,通过拆除部分19世纪建筑创造新公共空间,同时保留历史片段如旧仓库立面作为记忆载体。建筑被构想为工业背景下的”居住墙”,平衡场所特异性与形式自主性。 空间与功能 博物馆空间围绕中央大厅组织,以发现的旧建筑片段作为构图核心。内部序列延续外部公共空间,主要楼梯连接各层展厅,包括永久展览、临时展览区域,空间布局强调工业结构与艺术展示的融合。 材料与技术 采用混凝土结构体系,立面以精确的墙体划分回应工业语境。天窗细节提供自然采光,施工工艺注重历史元素与新建筑的整合,体现可持续的城市更新策略。 设计团队 巴罗齐与维加建筑事务所是西班牙-瑞士建筑实践,以文化建筑和城市更新项目著称,擅长通过简洁几何与场地文脉对话,作品强调建筑与公共空间的整合。 本文来自 © 巴罗齐与维加建筑事务所|Barozzi Veiga, 发布于 © 建筑学院官方网站。 未经授权,禁止转载或摘编。 编辑版本版权归 © 建筑学院官方网站 所有, 设计、图纸及照片版权归设计方 © 巴罗齐与维加建筑事务所|Barozzi Veiga ↗ 所有。 查看作者在建筑学院发布的更多作品: 巴罗齐与维加建筑事务所|Barozzi Veiga @ 建筑学院官方网站 博物馆设计巴罗齐与维加文化建筑洛桑瑞士洛桑艺术博物馆 巴罗齐与维加建筑事务所|Barozzi Veiga事务所 & 设计师 下载原图 收藏 0 关于作者 巴罗齐与维加建筑事务所|Barozzi Veiga事务所 & 设计师 关注私信 5 文章 0 评论 0 粉丝 巴罗齐与维加建筑事务所(Barozzi Veiga)是2004年由Fabrizio Barozzi和Alberto Veiga在巴塞罗那创立的事务所,专注于文化、公民和教育类公共建筑。他们以理性而诗意的极简美学著称,作品强调场地的历史文脉与建构的清晰逻辑。其代表作波兰什切青爱乐音乐厅荣获2015年欧盟当代建筑奖——密斯·凡·德·罗奖,瑞士洛桑美术馆等项目则体现了他们对光线、材料与公共空间塑造的深刻探索。 陶瓦画廊 Am Tacheles | 布兰德胡伯建筑事务所|Brandlhuber 上一篇 2025-10-29 下午12:31 新经济学家协会办公室装修工程 Renovations for New Economists’ Guild Offices | 阿尔弗雷多·帕亚|Alfredo Payá 下一篇 2025-10-29 下午12:32 猜你喜欢 天津滨海新区文化中心滨海美术馆 / gmp Architects 2018-10-22 建筑设计 悉尼新建“鱼市场”——有望成为城市标志性建筑! 2018-11-12 建筑设计 陶仓艺术中心/裸筑更新 2021-06-16 建筑设计 Snøhetta 公布上海大歌剧院方案,‘扇子’动态展开在黄浦江岸 2019-04-09 公共建筑设计 南非德班基督教中心 / Elphick Proome Architects 2022-08-06 建筑设计 沈阳红梅文创园 / 青木宏+东京如是建筑设计事务所 2020-07-31 公共建筑设计 发表回复 请登录后评论...登录后才能评论 提交