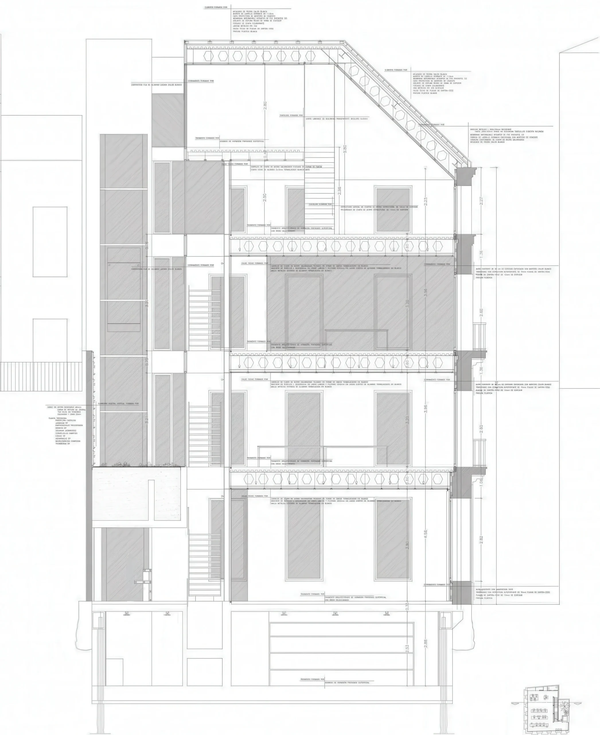
新经济学家协会办公室装修工程 Renovations for New Economists’ Guild Offices | 阿尔弗雷多·帕亚|Alfredo Payá 阿尔弗雷多·帕亚|Alfredo Payá • 2025-10-29 下午12:32 • 公共建筑设计, 建筑师设计, 建筑设计, 文化建筑设计 新经济学家协会办公室装修工程是阿尔弗雷多·帕亚在西班牙阿利坎特完成的建筑改造项目。该项目将原有分隔式建筑改造为开放式办公空间,通过引入庭院、创造连续空间和采用灵活布局,实现了建筑功能的重塑。设计强调空间流动性与自然采光,展现了现代办公空间改造的典范。 设计: 类型: 文化建筑设计 功能: 办公楼 风格: 当代建筑 材料: 混凝土 钢材 玻璃 石材 砖材 尺度: 中型建筑 地点:西班牙 时间: 2008年 本文来自 © 阿尔弗雷多·帕亚|Alfredo Payá, 发布于 © 建筑学院官方网站。 未经授权,禁止转载或摘编。 编辑版本版权归 © 建筑学院官方网站 所有, 设计、图纸及照片版权归设计方 © 阿尔弗雷多·帕亚|Alfredo Payá ↗ 所有。 查看作者在建筑学院发布的更多作品: 阿尔弗雷多·帕亚|Alfredo Payá @ 建筑学院官方网站 阿尔弗雷多·帕亚|Alfredo Payá事务所 & 设计师 下载原图 收藏 0 关于作者 阿尔弗雷多·帕亚|Alfredo Payá事务所 & 设计师 关注私信 10 文章 0 评论 0 粉丝 阿尔弗雷多·帕亚(Alfredo Payá)是西班牙知名建筑师,1988年在阿利坎特成立工作室,后于2005年创立noame 29事务所。其作品深植于地中海地域文脉,强调消除公共与私有、室内与室外之间的界限。帕亚秉持“设计建筑使它像一座山”而非“设计一座像山的建筑”的深层概念性理念,避免表面隐喻。他注重建筑的物质一致性而非具体材料选择,代表作包括迈格莫山住宅、阿里坎特大学博物馆及32间公共住宅等,融合环境、气候与功能,展现其将建筑延伸至周边环境的独特哲学。 瑞士洛桑艺术博物馆 Fine Arts Museum, Lausanne | 巴罗齐与维加建筑事务所|Barozzi Veiga 上一篇 2025-10-29 下午12:31 河边小屋 Huts on the River | 艾雷斯·马特乌斯建筑事务所 Aires Mateus 下一篇 2025-10-29 下午12:32 猜你喜欢 粗野主义,禅宗花园——沙漠中的精致住宅 2019-06-24 建筑设计 漂浮在空中区、摇曳于水面,与环境共融的垂直社区 — 成都麒麟荟 2018-06-13 住宅建筑设计 破而立:严谨之中,流露自由——瑞士教育大楼“Torre D’Angolo” 2019-11-14 公共建筑设计 从初学者到引领者,三益城市综合体的成长之路 / 三益中国 2021-12-01 城市综合体 为了纪念扎哈女王,建筑师用掉头发的代价画了篇漫画,脑洞真的很大! 2018-04-12 建筑设计 舍得文化中心 / 非常建筑 2019-06-30 建筑设计 发表回复 请登录后评论...登录后才能评论 提交