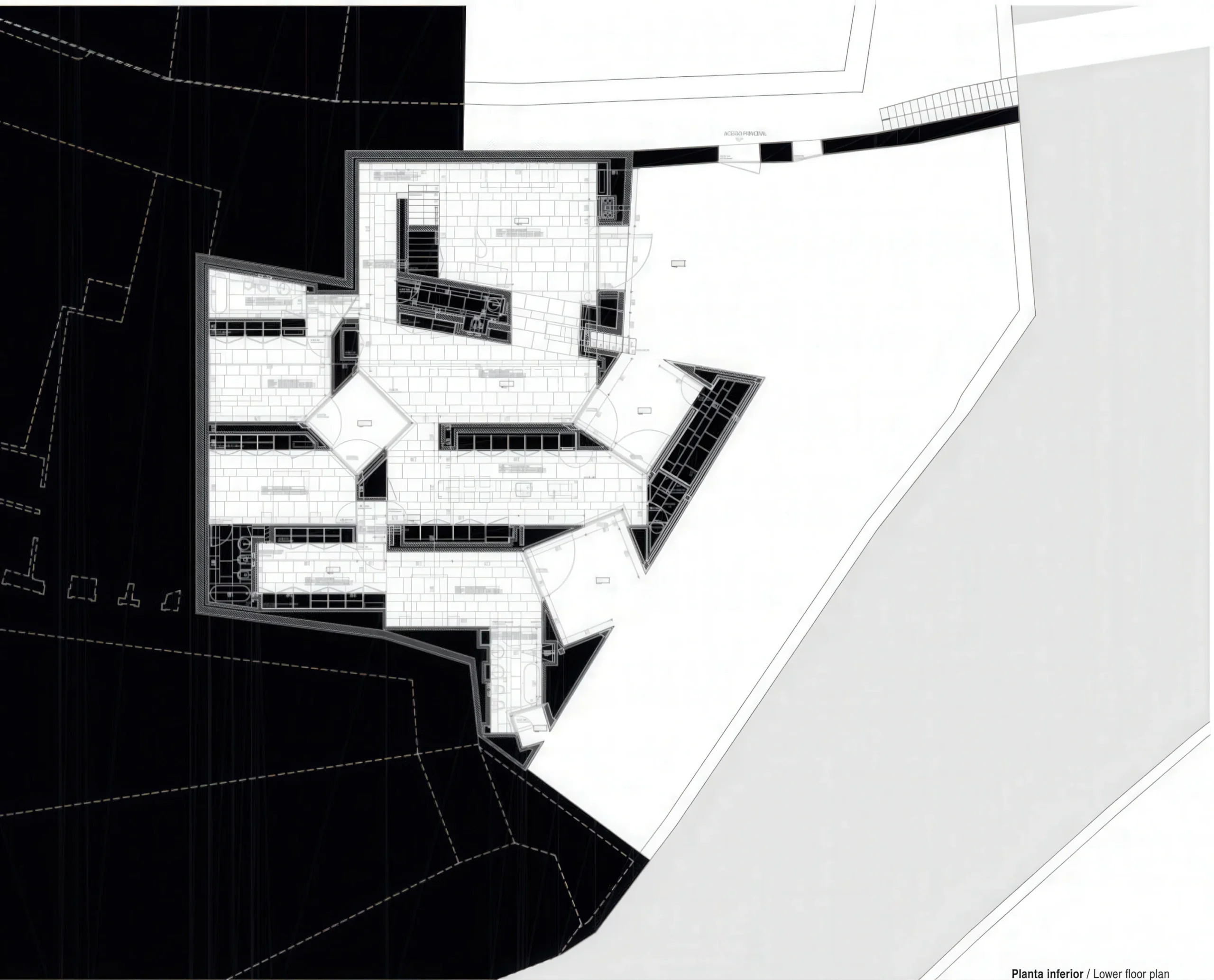
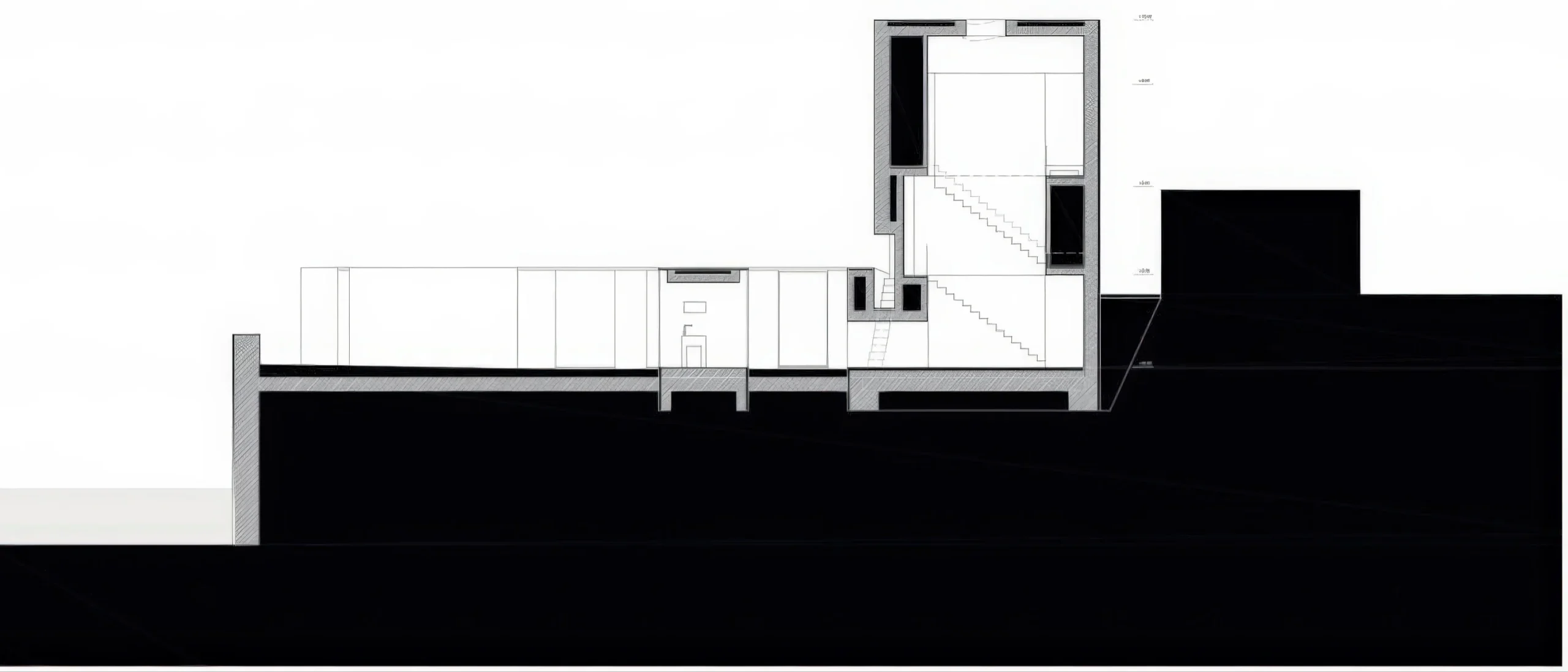
阿尔坎波查屋 / House in Alcobaça | 艾雷斯·马特乌斯建筑事务所 艾雷斯·马特乌斯建筑事务所|Aires Mateus • 2025-11-02 上午8:50 • 公共建筑设计, 建筑师设计, 建筑设计, 文化建筑设计 阿尔坎波查屋由艾雷斯·马特乌斯建筑事务所设计,位于葡萄牙阿尔坎波查历史中心,是一座通过改造重建的小型住宅。项目通过新增墙体与庭院空间,巧妙回应场地高差与河流关系,以现代手法延续 vernacular 建筑语言。 设计: 艾雷斯·马特乌斯建筑事务所|Aires Mateus 类型: 文化建筑设计 功能: 独立住宅 风格: 极简主义 材料: 混凝土 钢材 木材 玻璃 尺度: 小型建筑 地点:葡萄牙 时间: 2011年 项目概述 阿尔坎波查屋位于葡萄牙阿尔坎波查历史中心,是一座小型住宅改造项目。项目由艾雷斯·马特乌斯建筑事务所设计,于2007年设计,2011年建成,通过重建与扩建延续 vernacular 建筑传统。 设计理念 设计团队以”时间叠加记录”为核心理念,通过重建 vernacular 建筑语言回应历史文脉。新增墙体与庭院空间巧妙利用街道与花园的高差关系,建立建筑与巴萨河的视觉联系,形成内外空间的对话。 空间与功能 阿尔坎波查屋通过 perimeter 墙体厚度创造内部虚空,引入天窗采光形成私密氛围。社交区域作为连续空间在改造的两个元素间延伸扩散,重新诠释的立面开窗建立与外部环境的连接,创造意想不到的内部空间体验。 材料与技术 项目采用 reinforced concrete 结构体系,保留原有墙体并采用石灰砂浆修复。新材料包括 laminated glass 天窗、solid steel 窗框、double glazing 以及 plywood 百叶窗,通过现代施工技术实现传统与现代的融合。 项目特色与启发 阿尔坎波查屋展示了如何在历史环境中通过 minimalist 介入实现建筑更新,为历史城区住宅改造提供了创新范例,对 vernacular 建筑当代转译具有重要参考价值。 设计团队 艾雷斯·马特乌斯建筑事务所由 Manuel 和 Francisco Aires Mateus 兄弟创立,以极简主义建筑语言著称,擅长通过几何纯净性与空间复杂性创造具有场所精神的建筑作品。 项目概述 阿尔坎波查屋位于葡萄牙阿尔坎波查历史中心,是一座小型住宅改造项目。项目由艾雷斯·马特乌斯建筑事务所设计,于2007年设计,2011年建成,通过重建与扩建延续 vernacular 建筑传统。 设计理念 设计团队以”时间叠加记录”为核心理念,通过重建 vernacular 建筑语言回应历史文脉。新增墙体与庭院空间巧妙利用街道与花园的高差关系,建立建筑与巴萨河的视觉联系,形成内外空间的对话。 空间与功能 阿尔坎波查屋通过 perimeter 墙体厚度创造内部虚空,引入天窗采光形成私密氛围。社交区域作为连续空间在改造的两个元素间延伸扩散,重新诠释的立面开窗建立与外部环境的连接,创造意想不到的内部空间体验。 材料与技术 项目采用 reinforced concrete 结构体系,保留原有墙体并采用石灰砂浆修复。新材料包括 laminated glass 天窗、solid steel 窗框、double glazing 以及 plywood 百叶窗,通过现代施工技术实现传统与现代的融合。 项目特色与启发 阿尔坎波查屋展示了如何在历史环境中通过 minimalist 介入实现建筑更新,为历史城区住宅改造提供了创新范例,对 vernacular 建筑当代转译具有重要参考价值。 设计团队 艾雷斯·马特乌斯建筑事务所由 Manuel 和 Francisco Aires Mateus 兄弟创立,以极简主义建筑语言著称,擅长通过几何纯净性与空间复杂性创造具有场所精神的建筑作品。 本文来自 © 艾雷斯·马特乌斯建筑事务所|Aires Mateus, 发布于 © 建筑学院官方网站。 未经授权,禁止转载或摘编。 编辑版本版权归 © 建筑学院官方网站 所有, 设计、图纸及照片版权归设计方 © 艾雷斯·马特乌斯建筑事务所|Aires Mateus ↗ 所有。 查看作者在建筑学院发布的更多作品: 艾雷斯·马特乌斯建筑事务所|Aires Mateus @ 建筑学院官方网站 House in Alcobaça历史建筑改造极简主义住宅葡萄牙住宅设计 艾雷斯·马特乌斯建筑事务所|Aires Mateus事务所 & 设计师 下载原图 收藏 0 关于作者 艾雷斯·马特乌斯建筑事务所|Aires Mateus事务所 & 设计师 关注私信 14 文章 0 评论 0 粉丝 艾雷斯·马特乌斯建筑事务所(Aires Mateus)由葡萄牙建筑师Manuel Aires Mateus和Francisco Aires Mateus兄弟于1988年在里斯本创立。该事务所以极简主义风格著称,强调建筑的精神表达和永恒品质,作品关注物质与文化世界的关系,追求抽象形式和空间平衡。其项目涵盖住宅、度假屋等,在全球获奖无数,并在哈佛大学等多所高校任教,塑造了葡萄牙当代建筑的深刻影响力。 上海美术馆 / Fine Arts Museum, Chur | 巴罗齐与维加建筑事务所|Barozzi Veiga 上一篇 2025-11-02 上午8:50 Menil绘画学院 / Menil Drawing Institute | MARKLEE 建筑事务所 下一篇 2025-11-02 下午12:50 猜你喜欢 多内塞尔大厦 Donceles Building | 曼努埃尔·塞万提斯|Manuel Cervantes 2025-12-09 公共建筑设计 兰登贝格豪斯剧院 Landenberghaus Theater | Karamuk Kuo 建筑事务所 2025-10-29 公共建筑设计 Obernau村酒店 / Guesthouse in Obernau | 吉翁·A·卡米纳达|Gion A. Caminada 2026-03-23 商业与综合建筑 奥利文扎旅店 Tourist Inn in Olivenza | 何塞·玛丽亚·桑切斯·加西亚|José María Sánchez García 2025-12-02 公共建筑设计 弗雷纳尔德萨米酒店 Hotel in Fregenal de la Sierra | MGM 建筑师事务所|MGM 2025-10-31 公共建筑设计 洛杉矶四座房子 / FOUR HOUSES IN LOS HELECHOS | Taller Héctor Barroso 2026-02-18 住宅建筑设计 发表回复 请登录后评论...登录后才能评论 提交