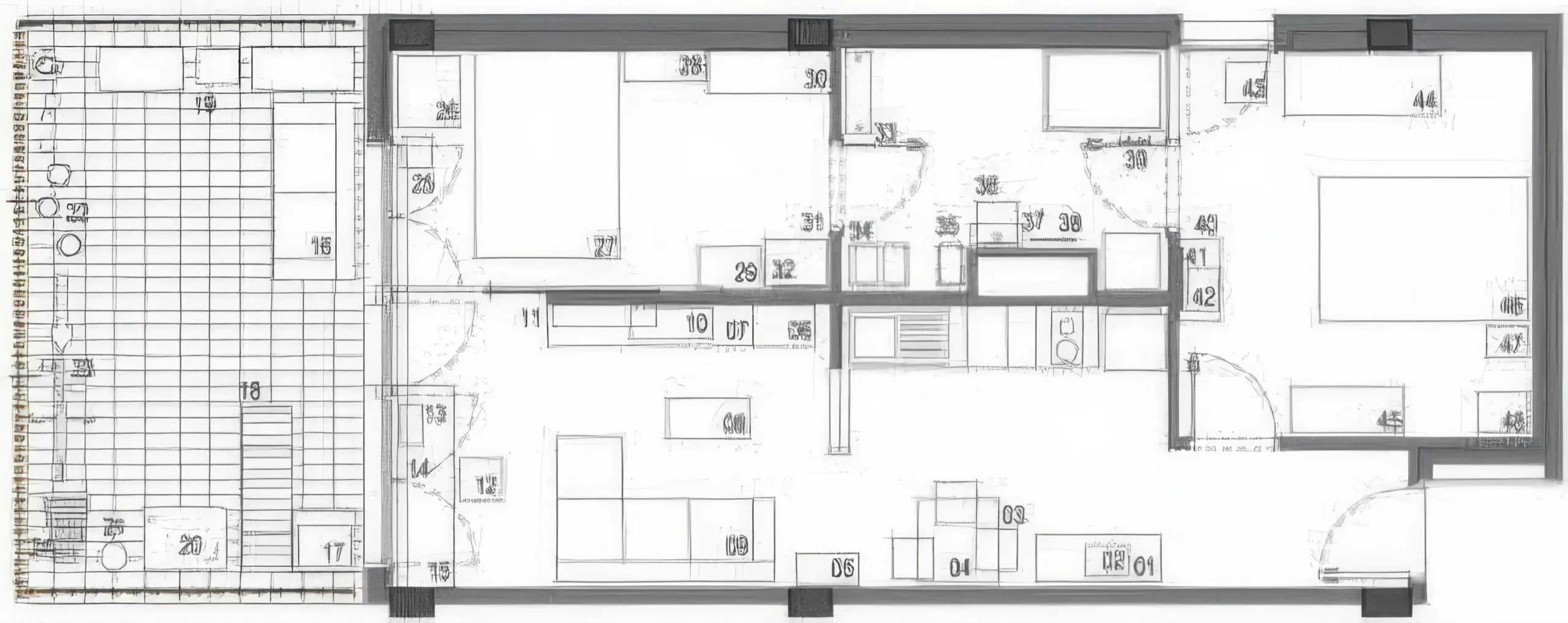
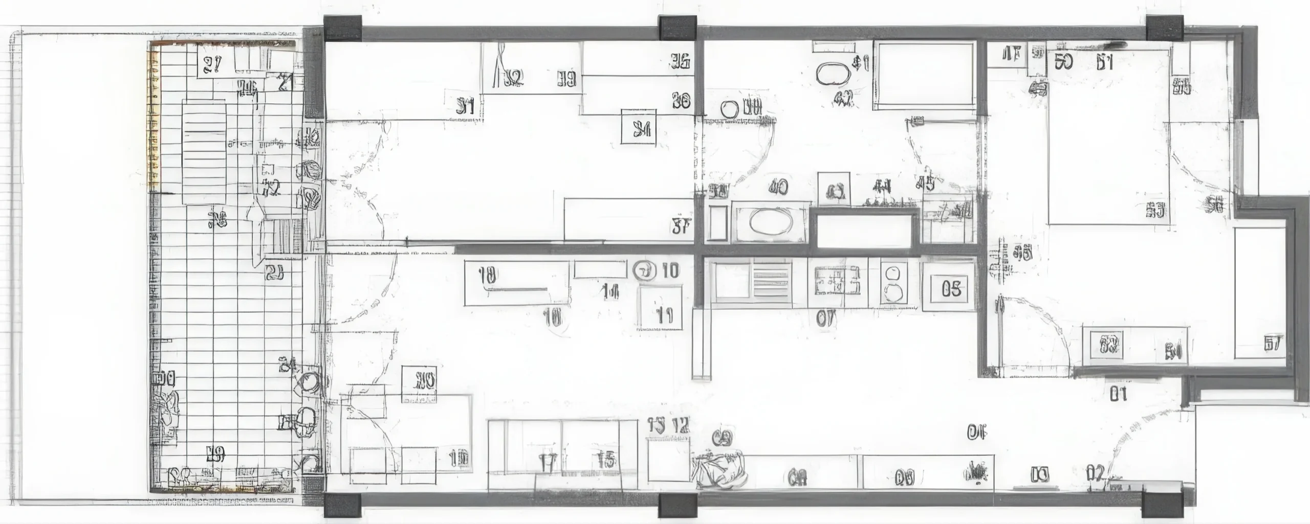
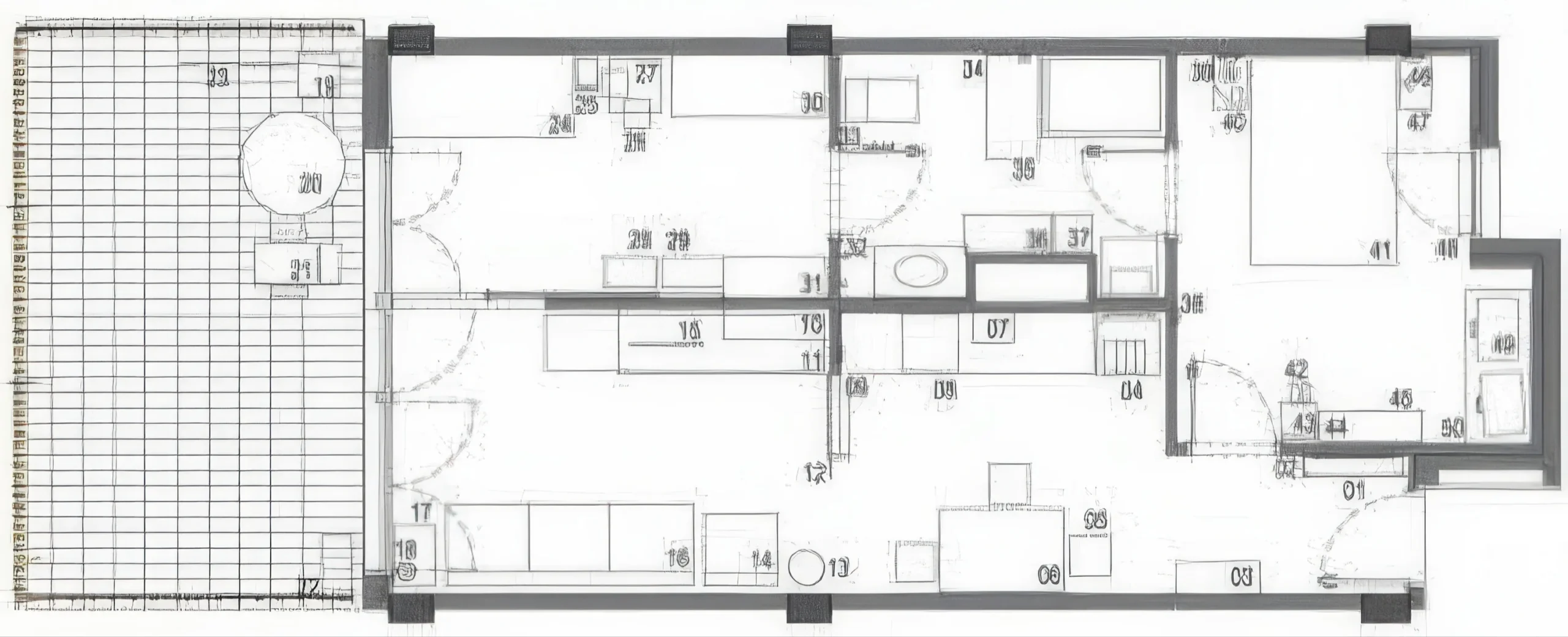
80 社区住宅在萨洛 / 80 Social Dwellings in Salou | 托尼·希罗内斯|Toni Gironès 托尼·希罗内斯|Toni Gironès • 2025-11-03 上午8:50 • 公共建筑设计, 建筑师设计, 建筑设计, 文化建筑设计 80 社区住宅在萨洛由托尼·希罗内斯建筑事务所设计,位于西班牙塔拉戈纳省萨洛市,是一个社会住宅项目。设计通过创新的空间过渡与自然互动策略,在农业景观与城市扩张之间建立和谐连接,展现了当代社会住宅的可持续性与社区价值。 设计: 托尼·希罗内斯|Toni Gironès 类型: 文化建筑设计 功能: 公寓住宅 风格: 地域主义 材料: 混凝土 钢材 木材 玻璃 尺度: 中型建筑 地点:洛萨 时间: 2009年 项目概述 80 社区住宅在萨洛项目位于西班牙塔拉戈纳省萨洛市,是一个社会住宅开发项目。该项目由两栋地面+3层建筑组成,每层包含10套住宅单元,总建筑面积约8000平方米,设计于2007年,建成于2009年。 设计理念 托尼·希罗内斯建筑事务所在80 社区住宅在萨洛项目中,以农业景观逻辑与自然循环为灵感,通过中间空间、过渡区域和阈值的精心设计,在不同现实之间建立连续性。设计团队致力于打破城市增长模式与自然环境之间的界限,创造开放而连贯的居住体验。 空间与功能 80 社区住宅在萨洛采用标准化住宅单元设计,每套住宅享有两个相对朝向,形成走廊、居住空间与露台的横向序列。入口和社区空间被设计为互动场所,连接住宅与外部环境。轻微斜坡引入自然光线和空气到停车场,而波纹钢网走道则根据功能需求调整密度,容纳植物生长并与杨树林共同在炎热季节提供遮阳降温。 材料与技术 项目选用经济、低维护的材料,包括混凝土结构、钢材、木材和玻璃。波纹钢网用于走道栏杆和遮阳系统,结合滴灌技术支持垂直绿化。建筑采用交叉通风和自然采光策略, inverted屋顶和钢筋混凝土悬挑结构增强环境性能,展现了社会住宅在材料表达与被动式气候控制方面的创新。 项目特色与启发 80 社区住宅在萨洛通过空间序列与材料诚实性,重新定义了社会住宅的设计标准。项目在有限的预算内实现了高度的适应性与可持续性,为经济适用房项目提供了如何在社区构建、环境响应与用户现实之间取得平衡的重要参考。 设计团队 托尼·希罗内斯建筑事务所专注于建筑与环境的融合设计,以简洁的材料语言和细致的空间处理著称。事务所在住宅与公共项目中强调社会价值与可持续性,80 社区住宅在萨洛体现了其对用户需求与场地文脉的深入理解。 项目概述 80 社区住宅在萨洛项目位于西班牙塔拉戈纳省萨洛市,是一个社会住宅开发项目。该项目由两栋地面+3层建筑组成,每层包含10套住宅单元,总建筑面积约8000平方米,设计于2007年,建成于2009年。 设计理念 托尼·希罗内斯建筑事务所在80 社区住宅在萨洛项目中,以农业景观逻辑与自然循环为灵感,通过中间空间、过渡区域和阈值的精心设计,在不同现实之间建立连续性。设计团队致力于打破城市增长模式与自然环境之间的界限,创造开放而连贯的居住体验。 空间与功能 80 社区住宅在萨洛采用标准化住宅单元设计,每套住宅享有两个相对朝向,形成走廊、居住空间与露台的横向序列。入口和社区空间被设计为互动场所,连接住宅与外部环境。轻微斜坡引入自然光线和空气到停车场,而波纹钢网走道则根据功能需求调整密度,容纳植物生长并与杨树林共同在炎热季节提供遮阳降温。 材料与技术 项目选用经济、低维护的材料,包括混凝土结构、钢材、木材和玻璃。波纹钢网用于走道栏杆和遮阳系统,结合滴灌技术支持垂直绿化。建筑采用交叉通风和自然采光策略, inverted屋顶和钢筋混凝土悬挑结构增强环境性能,展现了社会住宅在材料表达与被动式气候控制方面的创新。 项目特色与启发 80 社区住宅在萨洛通过空间序列与材料诚实性,重新定义了社会住宅的设计标准。项目在有限的预算内实现了高度的适应性与可持续性,为经济适用房项目提供了如何在社区构建、环境响应与用户现实之间取得平衡的重要参考。 设计团队 托尼·希罗内斯建筑事务所专注于建筑与环境的融合设计,以简洁的材料语言和细致的空间处理著称。事务所在住宅与公共项目中强调社会价值与可持续性,80 社区住宅在萨洛体现了其对用户需求与场地文脉的深入理解。 本文来自 © 托尼·希罗内斯|Toni Gironès, 发布于 © 建筑学院官方网站。 未经授权,禁止转载或摘编。 编辑版本版权归 © 建筑学院官方网站 所有, 设计、图纸及照片版权归设计方 © 托尼·希罗内斯|Toni Gironès ↗ 所有。 查看作者在建筑学院发布的更多作品: 托尼·希罗内斯|Toni Gironès @ 建筑学院官方网站 80 Social Dwellings in SalouSalou architecturesocial housingToni Gironès 托尼·希罗内斯|Toni Gironès事务所 & 设计师 下载原图 收藏 0 关于作者 托尼·希罗内斯|Toni Gironès事务所 & 设计师 关注私信 8 文章 4 评论 0 粉丝 托尼·希罗内斯是西班牙加泰罗尼亚地区备受瞩目的建筑师与教授。他的作品深深植根于当地环境,擅长运用本土材料与可持续策略,创造性地处理边界、光线与中间空间的过渡,以此提升空间的可居住性。其代表作如塞罗巨石陵墓文化服务空间、巴达洛纳35住宅等,都体现了对场地历史的尊重与现代的转译,展现出一种诗意的、缓慢的建筑叙事。 森林里的房子 / House in a Forest | 长谷川豪建筑事务所 上一篇 2025-11-03 上午8:50 森林里的Pilotis / Pilotis in a Forest | 长谷川豪建筑事务所 下一篇 2025-11-03 上午8:50 猜你喜欢 塞维利亚文化中心和教室 / Cultural Centre and Classrooms in Ceuta | 托尼·希罗内斯|Toni Gironès 2025-11-07 公共建筑设计 发表回复 请登录后评论...登录后才能评论 提交