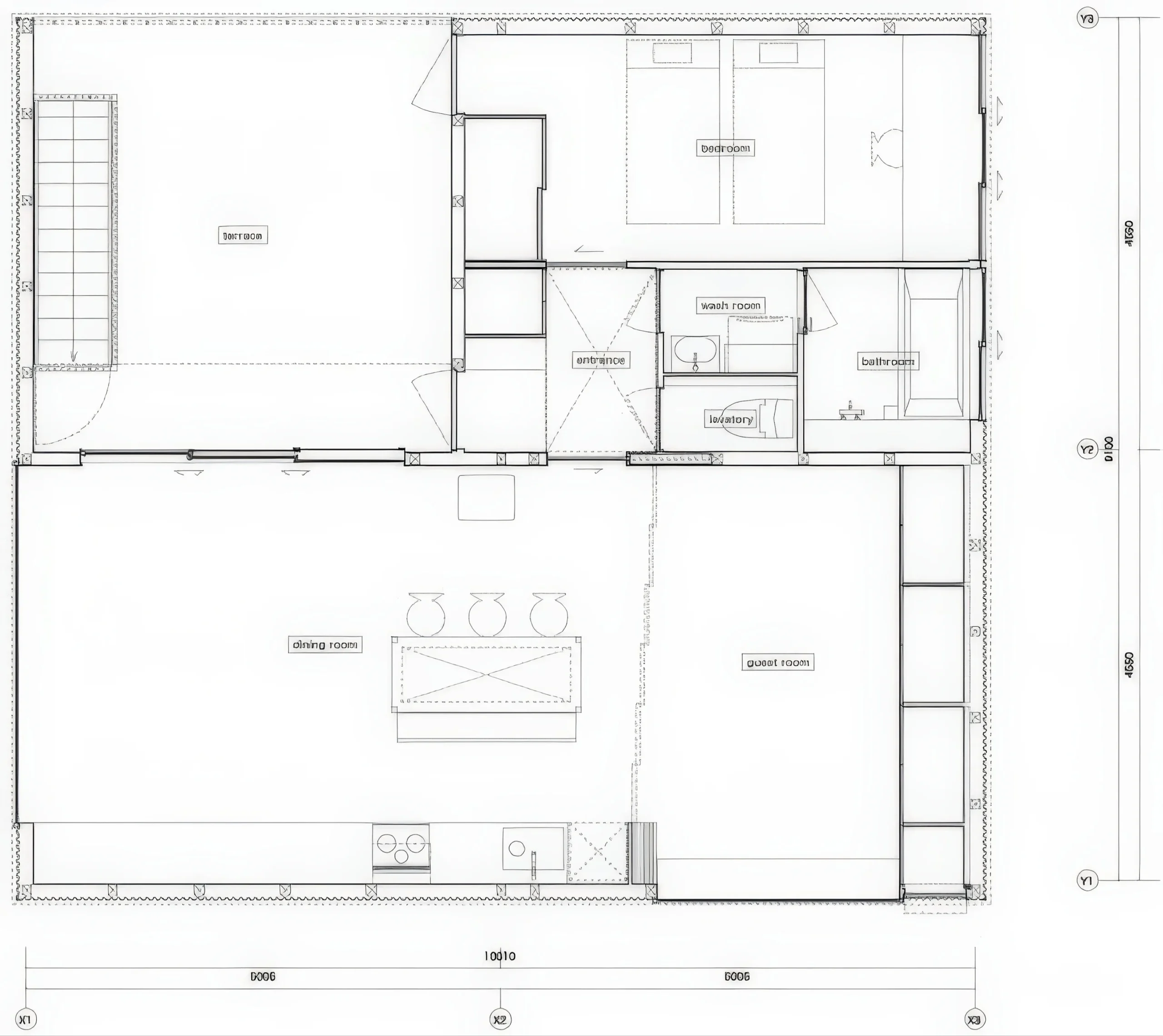
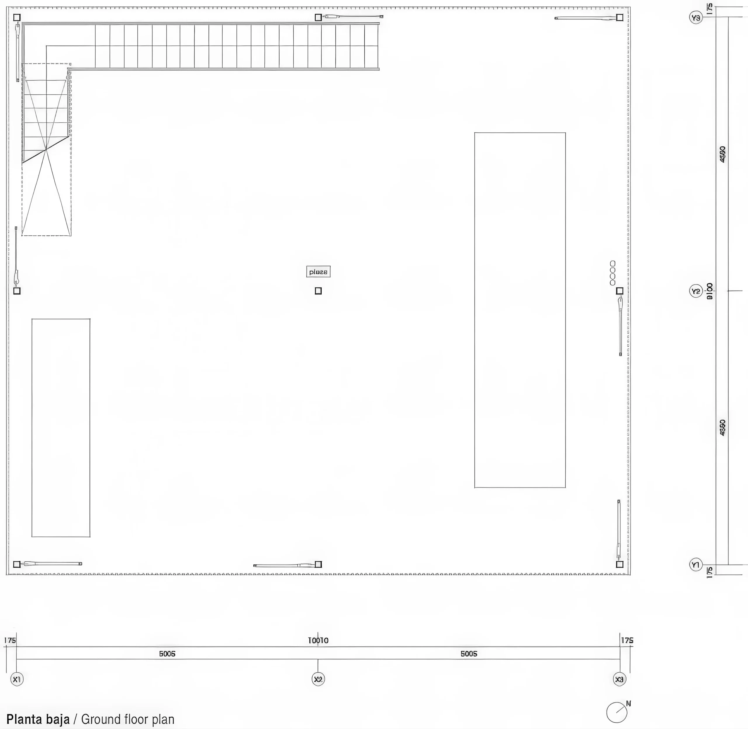
森林里的Pilotis / Pilotis in a Forest | 长谷川豪建筑事务所 长谷川豪建筑事务所|Go Hasegawa • 2025-11-03 上午8:50 • 公共建筑设计, 建筑师设计, 建筑设计, 文化建筑设计 森林里的Pilotis由长谷川豪建筑事务所设计,位于日本北轻井泽的茂密森林中。这座周末住宅通过轻质金属支柱将建筑抬升6.5米,在保护原有树木的同时创造了独特的空中生活空间,实现了建筑与自然的和谐共生。 设计: 长谷川豪建筑事务所|Go Hasegawa 类型: 文化建筑设计 功能: 独立住宅 风格: 现代主义 材料: 钢材 木材 玻璃 尺度: 小型建筑 地点:北轻井泽 时间: 2021年 项目概述 森林里的Pilotis是长谷川豪建筑事务所在日本北轻井泽森林中设计的周末住宅项目。这座小型住宅采用轻质金属支柱结构,将建筑主体抬升至6.5米高度,在保护原有树木的同时创造了独特的空中生活体验。 设计理念 长谷川豪建筑事务所以”最小化干预自然”为核心设计理念,通过将建筑抬升来避免破坏原有树木。设计师将森林本身作为建筑的围合元素,让高大的树干成为建筑的自然边界,创造出建筑与森林相互融合的独特关系。 空间与功能 森林里的Pilotis内部空间紧凑而高效,设有休息区、餐饮区和户外露台。低矮的室内高度(最低处仅1.8米)配合特制的矮家具,营造出亲密的空间尺度感。大型窗户框取浅间山景,餐桌下的玻璃地板强化了高空居住的独特体验。 材料与技术 项目采用轻质金属支柱支撑传统木结构体系,既保证了结构稳定性又实现了对场地的最小干预。建筑材料选择注重轻量化,金属支柱与木材的结合体现了现代建造技术与传统工艺的融合。 项目特色与启发 森林里的Pilotis展示了如何在敏感的自然环境中实现建筑介入的创新方法。长谷川豪建筑事务所的设计为如何在保护生态环境的同时创造舒适居住空间提供了重要参考,对山地建筑和森林住宅设计具有启发意义。 设计团队 长谷川豪建筑事务所由建筑师长谷川豪创立,以细腻的空间处理和与自然环境的和谐对话著称。事务所在住宅设计和小型建筑领域有着丰富的实践经验,擅长通过简洁的设计语言创造富有诗意的建筑空间。 项目概述 森林里的Pilotis是长谷川豪建筑事务所在日本北轻井泽森林中设计的周末住宅项目。这座小型住宅采用轻质金属支柱结构,将建筑主体抬升至6.5米高度,在保护原有树木的同时创造了独特的空中生活体验。 设计理念 长谷川豪建筑事务所以”最小化干预自然”为核心设计理念,通过将建筑抬升来避免破坏原有树木。设计师将森林本身作为建筑的围合元素,让高大的树干成为建筑的自然边界,创造出建筑与森林相互融合的独特关系。 空间与功能 森林里的Pilotis内部空间紧凑而高效,设有休息区、餐饮区和户外露台。低矮的室内高度(最低处仅1.8米)配合特制的矮家具,营造出亲密的空间尺度感。大型窗户框取浅间山景,餐桌下的玻璃地板强化了高空居住的独特体验。 材料与技术 项目采用轻质金属支柱支撑传统木结构体系,既保证了结构稳定性又实现了对场地的最小干预。建筑材料选择注重轻量化,金属支柱与木材的结合体现了现代建造技术与传统工艺的融合。 项目特色与启发 森林里的Pilotis展示了如何在敏感的自然环境中实现建筑介入的创新方法。长谷川豪建筑事务所的设计为如何在保护生态环境的同时创造舒适居住空间提供了重要参考,对山地建筑和森林住宅设计具有启发意义。 设计团队 长谷川豪建筑事务所由建筑师长谷川豪创立,以细腻的空间处理和与自然环境的和谐对话著称。事务所在住宅设计和小型建筑领域有着丰富的实践经验,擅长通过简洁的设计语言创造富有诗意的建筑空间。 本文来自 © 长谷川豪建筑事务所|Go Hasegawa, 发布于 © 建筑学院官方网站。 未经授权,禁止转载或摘编。 编辑版本版权归 © 建筑学院官方网站 所有, 设计、图纸及照片版权归设计方 © 长谷川豪建筑事务所|Go Hasegawa ↗ 所有。 查看作者在建筑学院发布的更多作品: 长谷川豪建筑事务所|Go Hasegawa @ 建筑学院官方网站 Pilotis in a Forest周末住宅设计森林建筑长谷川豪建筑事务所 长谷川豪建筑事务所|Go Hasegawa事务所 & 设计师 下载原图 收藏 0 关于作者 长谷川豪建筑事务所|Go Hasegawa事务所 & 设计师 关注私信 16 文章 0 评论 0 粉丝 长谷川豪建筑事务所(Go Hasegawa)由日本建筑师长谷川豪于2005年创立,以其对空间尺度的独特探索和建筑与自然、城市环境的巧妙融合而闻名。其代表作"樱台之家"以一张巨大桌子重新定义住宅核心,"林中飞屋"则通过架空结构实现与树冠平齐的居住体验。事务所作品强调打破建筑内外界限,营造既亲密又开放的动态空间。 80 社区住宅在萨洛 / 80 Social Dwellings in Salou | 托尼·希罗内斯|Toni Gironès 上一篇 2025-11-03 上午8:50 Mas Salvà 农家小屋 / Mas Salvà Farm House | +RCR 建筑事务所|RCR Arquitectes 下一篇 2025-11-03 下午12:50 猜你喜欢 komazawa之家 / House in Komazawa | 长谷川豪建筑事务所 2025-11-24 公共建筑设计 日本横滨的房子 / House in Yokohama | 长谷川豪建筑事务所 2025-11-04 公共建筑设计 Okachimachi公寓 / Apartments in Okachimachi | 长谷川豪建筑事务所 2025-11-24 公共建筑设计 Ageo的排房 / Row House in Ageo | 长谷川豪建筑事务所|Go Hasegawa 2025-11-12 公共建筑设计 昭谷口之家 / House in Shakujiikouen | 长谷川豪建筑事务所 2025-11-16 公共建筑设计 东京冰咖啡店 / Iced Coffee Shop, Tokyo | 长谷川豪建筑事务所 2025-11-01 公共建筑设计 发表回复 请登录后评论...登录后才能评论 提交