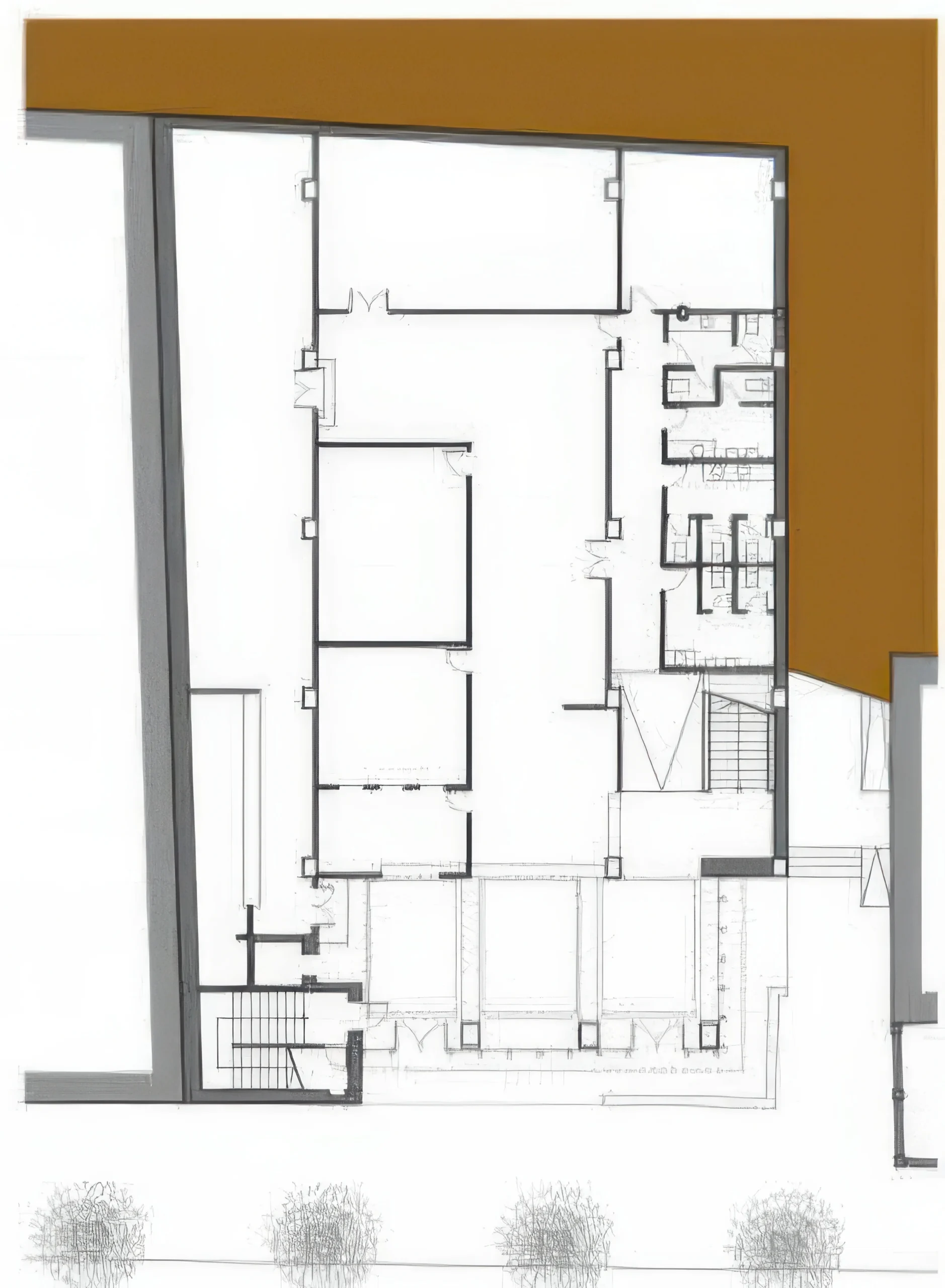
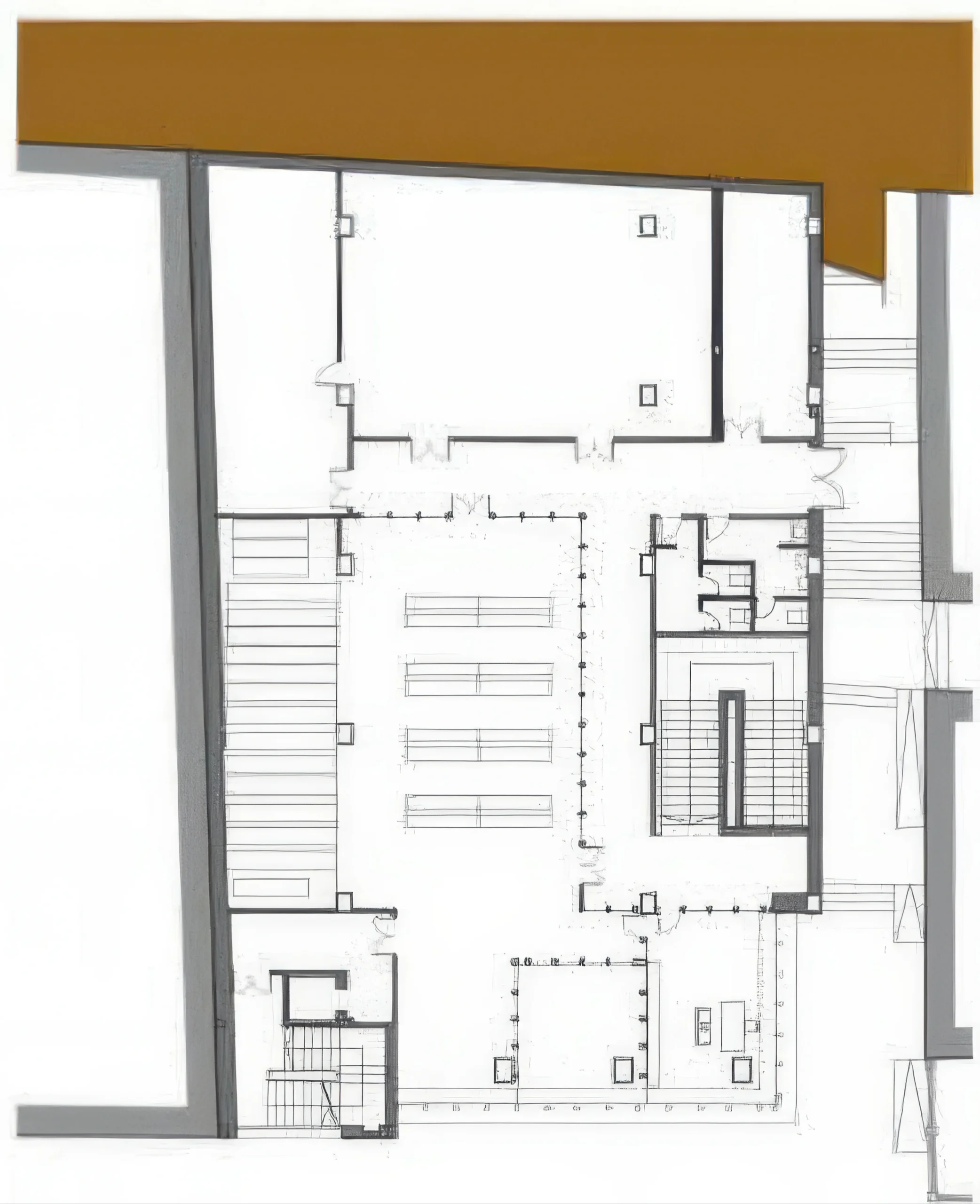
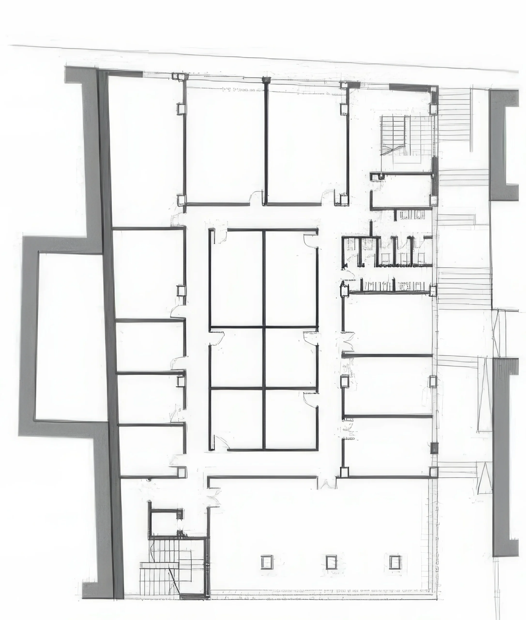
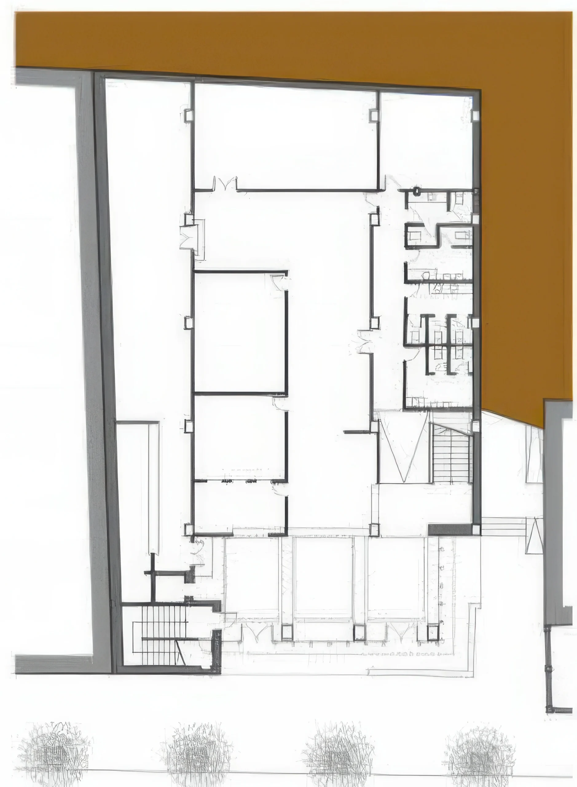
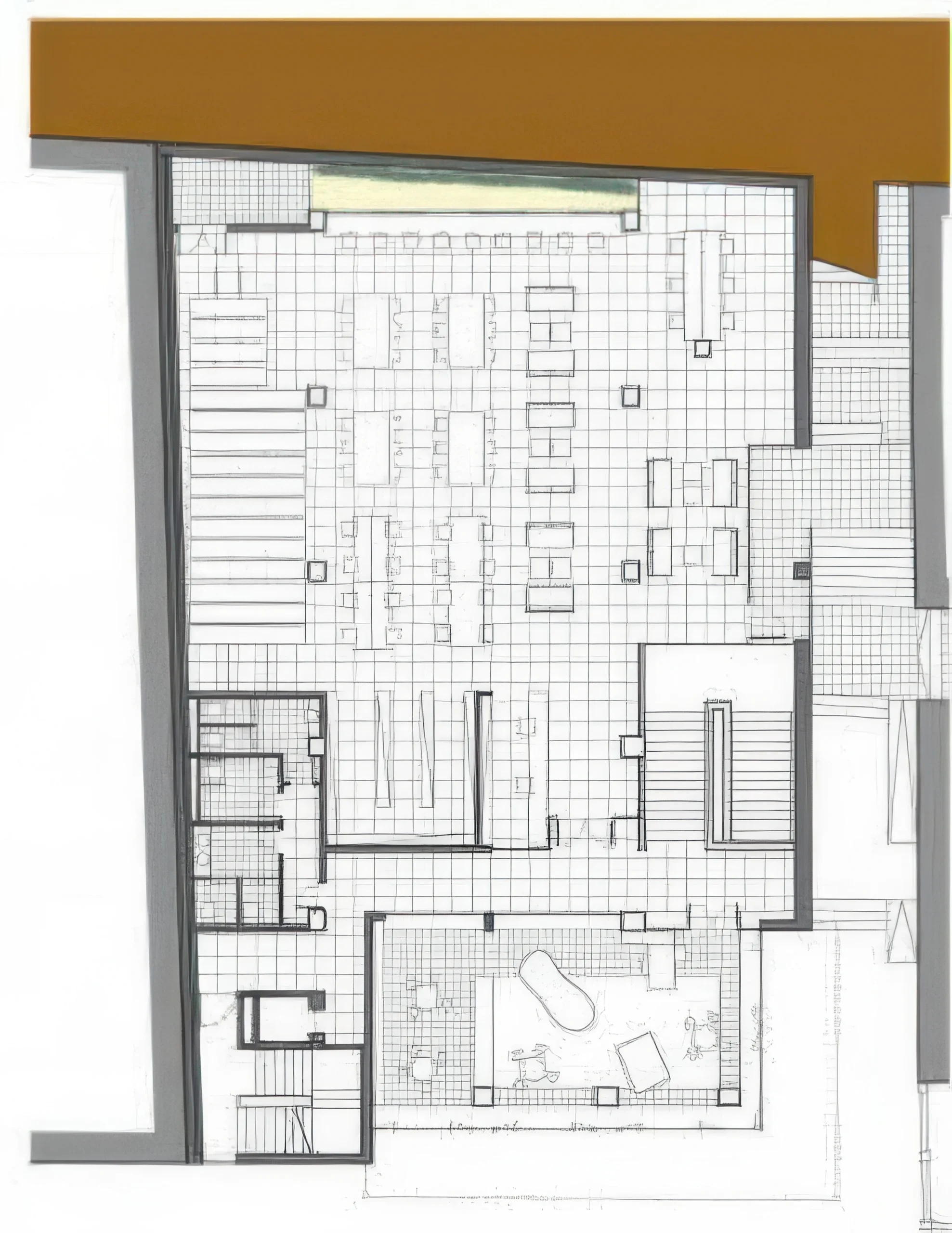
塞维利亚文化中心和教室 / Cultural Centre and Classrooms in Ceuta | 托尼·希罗内斯|Toni Gironès 托尼·希罗内斯|Toni Gironès • 2025-11-07 上午8:50 • 公共建筑设计, 建筑师设计, 建筑设计, 文化建筑设计 塞维利亚文化中心和教室项目由托尼·希罗内斯设计,位于西班牙休达市。该项目将原有UNED大学建筑改造为文化设施,通过庭院空间与创新遮阳系统,实现自然通风与采光优化,展现当代文化建筑的可持续设计理念。 设计: 托尼·希罗内斯|Toni Gironès 类型: 文化建筑设计 功能: 文化中心 风格: 当代建筑 材料: 混凝土 钢材 玻璃 尺度: 中型建筑 地点:西班牙 时间: 2015年 项目概述 塞维利亚文化中心和教室项目位于西班牙休达市,是对原有UNED大学建筑的改造更新。该项目包含多功能厅、图书馆和成人教育教室等功能,设计始于2015年竞赛阶段并获一等奖,体现了文化建筑在城市更新中的重要作用。 设计理念 托尼·希罗内斯的设计理念着重解决原有建筑紧凑封闭、日照不均的问题。通过渗透性设计策略,打破原有建筑的封闭性,建立建筑与城市的对话关系,同时回应地中海气候条件下的环境性能需求。 空间与功能 项目采用分层功能布局:首层作为公共空间延伸设置多功能厅;二层临非洲大道布置图书馆并设独立出入口;上部三层为成人教育教室。两个新建庭院不仅改善通风采光,更为主要功能空间提供自然背景。 材料与技术 建筑采用锌制落水管创新性地作为遮阳与集热装置,配合焓热回收系统实现被动式气候调节。金属网格立面与热断桥铝窗系统结合,在材料表达与技术性能间取得平衡,展现可持续建筑的技术整合。 项目特色与启发 塞维利亚文化中心和教室项目展示了既有建筑改造的生态策略与空间创新。托尼·希罗内斯通过庭院渗透与气候响应设计,为文化教育类建筑的可持续更新提供了重要参考价值。 设计团队 托尼·希罗内斯是西班牙知名建筑师,其作品以对场地文脉的敏锐回应和可持续设计策略著称。在本项目中,团队成功将原有封闭建筑转化为开放的城市文化设施,体现了其建筑实践的核心价值。 项目概述 塞维利亚文化中心和教室项目位于西班牙休达市,是对原有UNED大学建筑的改造更新。该项目包含多功能厅、图书馆和成人教育教室等功能,设计始于2015年竞赛阶段并获一等奖,体现了文化建筑在城市更新中的重要作用。 设计理念 托尼·希罗内斯的设计理念着重解决原有建筑紧凑封闭、日照不均的问题。通过渗透性设计策略,打破原有建筑的封闭性,建立建筑与城市的对话关系,同时回应地中海气候条件下的环境性能需求。 空间与功能 项目采用分层功能布局:首层作为公共空间延伸设置多功能厅;二层临非洲大道布置图书馆并设独立出入口;上部三层为成人教育教室。两个新建庭院不仅改善通风采光,更为主要功能空间提供自然背景。 材料与技术 建筑采用锌制落水管创新性地作为遮阳与集热装置,配合焓热回收系统实现被动式气候调节。金属网格立面与热断桥铝窗系统结合,在材料表达与技术性能间取得平衡,展现可持续建筑的技术整合。 项目特色与启发 塞维利亚文化中心和教室项目展示了既有建筑改造的生态策略与空间创新。托尼·希罗内斯通过庭院渗透与气候响应设计,为文化教育类建筑的可持续更新提供了重要参考价值。 设计团队 托尼·希罗内斯是西班牙知名建筑师,其作品以对场地文脉的敏锐回应和可持续设计策略著称。在本项目中,团队成功将原有封闭建筑转化为开放的城市文化设施,体现了其建筑实践的核心价值。 本文来自 © 托尼·希罗内斯|Toni Gironès, 发布于 © 建筑学院官方网站。 未经授权,禁止转载或摘编。 编辑版本版权归 © 建筑学院官方网站 所有, 设计、图纸及照片版权归设计方 © 托尼·希罗内斯|Toni Gironès ↗ 所有。 查看作者在建筑学院发布的更多作品: 托尼·希罗内斯|Toni Gironès @ 建筑学院官方网站 cultural-centre-ceutaToni Gironès休达文化建筑文化建筑改造 托尼·希罗内斯|Toni Gironès事务所 & 设计师 下载原图 收藏 0 关于作者 托尼·希罗内斯|Toni Gironès事务所 & 设计师 关注私信 8 文章 4 评论 0 粉丝 托尼·希罗内斯是西班牙加泰罗尼亚地区备受瞩目的建筑师与教授。他的作品深深植根于当地环境,擅长运用本土材料与可持续策略,创造性地处理边界、光线与中间空间的过渡,以此提升空间的可居住性。其代表作如塞罗巨石陵墓文化服务空间、巴达洛纳35住宅等,都体现了对场地历史的尊重与现代的转译,展现出一种诗意的、缓慢的建筑叙事。 山上的房子 House on a Hill | 谭姆与维德高德建筑事务所|Tham & Videgård 上一篇 2025-11-07 上午8:50 住宅建筑, 海港城 / Residential Buildings, HafenCity | +6a 建筑事务所|6a architects 下一篇 2025-11-07 上午8:50 猜你喜欢 波格乔·高洛威酒厂 Poggio Golo Winery | MARKLEE 建筑事务所 2025-11-02 公共建筑设计 Art Collection Siedle / COLECCION DE ARTE SIEDLE | 布兰德胡伯建筑事务所|Brandlhuber 2025-12-25 公共建筑设计 Art Collection Siedle / COLECCION DE ARTE SIEDLE | 布兰德胡伯建筑事务所|Brandlhuber 2025-11-08 公共建筑设计 艺术烹饪中心 / La Cuisine Art Centre | RCR 建筑事务所 2025-11-19 公共建筑设计 论坛博物馆岛 Forum Museumsinsel | 大卫·奇珀菲尔德建筑事务所|David Chipperfield 2025-11-04 公共建筑设计 赫斯塔特的 Z33 博物馆 / Z33 Museum, Hasselt | Xaveer de Geyter 2026-02-27 公共建筑设计 发表回复 请登录后评论...登录后才能评论 提交