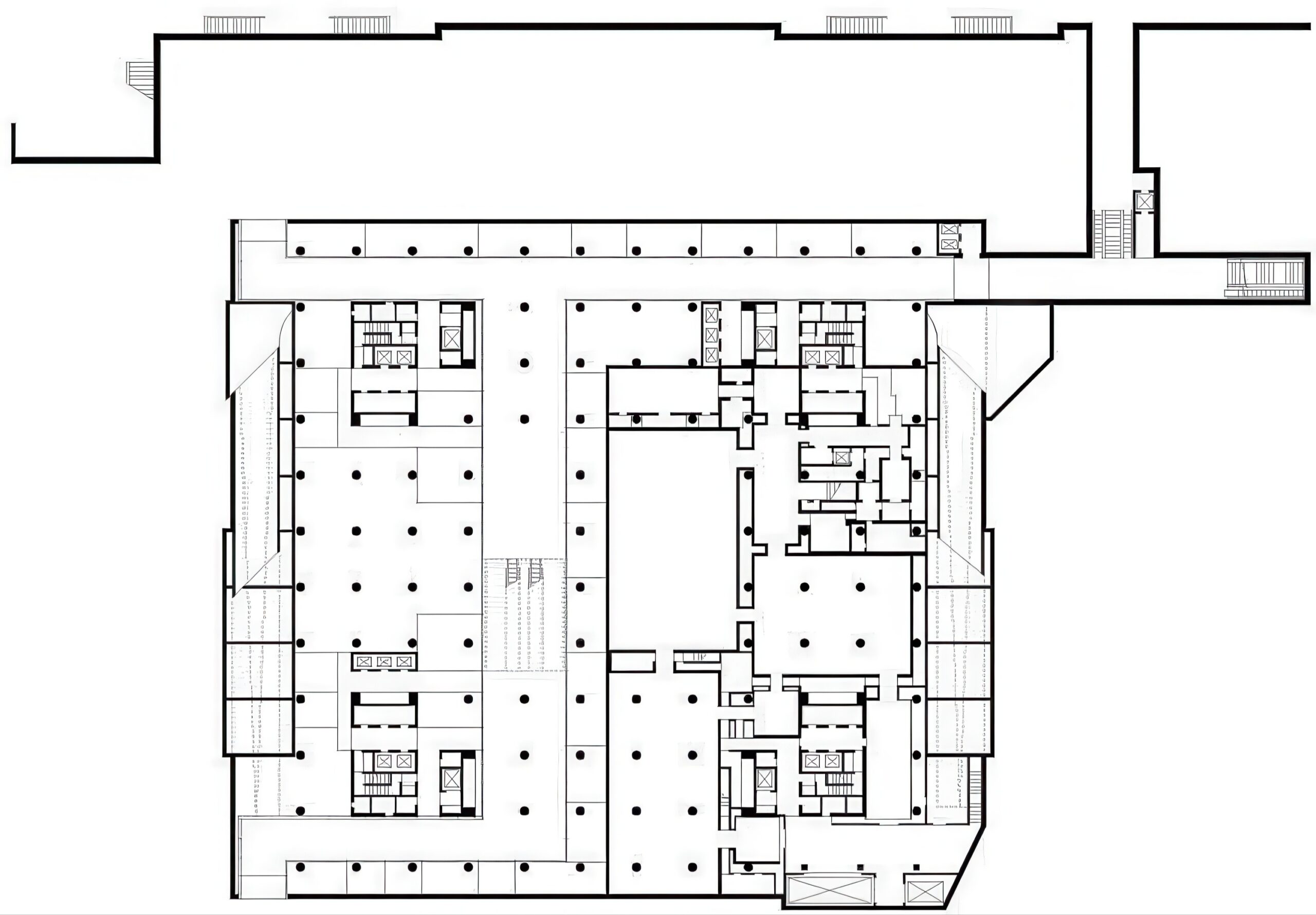
爱茉莉太平洋总部 Amorepacific Headquarters | 大卫·奇珀菲尔德建筑事务所|David Chipperfield 大卫·奇珀菲尔德建筑事务所|David Chipperfield • 2025-11-05 下午12:50 • 公共建筑设计, 建筑师设计, 建筑设计, 文化建筑设计 爱茉莉太平洋总部位于韩国首尔市中心,是一座现代化办公建筑。项目由大卫·奇珀菲尔德建筑事务所设计,采用独特的单体体量设计,通过中央庭院优化自然通风与采光。建筑外立面采用铝制遮阳百叶系统,内部空间融合公共功能与办公区域,设有空中花园连接城市景观。 设计: David Chipperfield Architects 类型: 文化建筑设计 功能: 办公楼 风格: 当代建筑 材料: 混凝土 玻璃 石材 金属板 尺度: 大型建筑 地点:韩国 时间: 2017年 项目简介 爱茉莉太平洋总部位于韩国首尔龙山区,是一座大型企业总部办公建筑,总建筑面积约66,000平方米,2017年建成。 设计理念 设计团队以清晰的单体体量在城市多样化环境中建立独特身份,避免与周边高层建筑的图标化相似性。建筑围绕中央庭院精心设计比例,最大化自然通风和采光效果。 空间与功能 建筑底层设置博物馆、会议区、大型礼堂、餐厅和零售设施等公共功能,围绕中庭大厅布局。上层为非公共办公区域和员工设施,各区域通过三个大型开口连接空中花园,为员工提供休闲空间。 材料与技术 建筑采用现浇混凝土、玻璃、天然石材和纺织品等主要材料,外立面设置固定铝制遮阳百叶系统。通过百叶的微妙变化和随机定位,建筑呈现出轻盈与厚重、纹理与表面的变化质感。 设计团队 大卫·奇珀菲尔德建筑事务所是国际知名建筑事务所,以精致简约的设计语言和对材料、细节的严谨把控著称,在文化建筑、办公建筑和城市更新项目中具有丰富经验。 项目简介 爱茉莉太平洋总部位于韩国首尔龙山区,是一座大型企业总部办公建筑,总建筑面积约66,000平方米,2017年建成。 设计理念 设计团队以清晰的单体体量在城市多样化环境中建立独特身份,避免与周边高层建筑的图标化相似性。建筑围绕中央庭院精心设计比例,最大化自然通风和采光效果。 空间与功能 建筑底层设置博物馆、会议区、大型礼堂、餐厅和零售设施等公共功能,围绕中庭大厅布局。上层为非公共办公区域和员工设施,各区域通过三个大型开口连接空中花园,为员工提供休闲空间。 材料与技术 建筑采用现浇混凝土、玻璃、天然石材和纺织品等主要材料,外立面设置固定铝制遮阳百叶系统。通过百叶的微妙变化和随机定位,建筑呈现出轻盈与厚重、纹理与表面的变化质感。 设计团队 大卫·奇珀菲尔德建筑事务所是国际知名建筑事务所,以精致简约的设计语言和对材料、细节的严谨把控著称,在文化建筑、办公建筑和城市更新项目中具有丰富经验。 本文来自 © 大卫·奇珀菲尔德建筑事务所|David Chipperfield, 发布于 © 建筑学院官方网站。 未经授权,禁止转载或摘编。 编辑版本版权归 © 建筑学院官方网站 所有, 设计、图纸及照片版权归设计方 © 大卫·奇珀菲尔德建筑事务所|David Chipperfield ↗ 所有。 查看作者在建筑学院发布的更多作品: 大卫·奇珀菲尔德建筑事务所|David Chipperfield @ 建筑学院官方网站 办公建筑大卫·奇珀菲尔德爱茉莉太平洋总部铝制百叶首尔 大卫·奇珀菲尔德建筑事务所|David Chipperfield事务所 & 设计师 下载原图 收藏 0 关于作者 大卫·奇珀菲尔德建筑事务所|David Chipperfield事务所 & 设计师 关注私信 22 文章 0 评论 1 粉丝 大卫·奇珀菲尔德建筑事务所由2023年普利兹克奖得主大卫·奇珀菲尔德爵士于1985年创立,在伦敦、柏林、米兰、上海等地设有办公室。事务所以优雅克制、注重永恒感的设计风格闻名,尤其擅长文化建筑与历史建筑改造,代表作包括柏林新博物馆重建、上海西岸美术馆和洛克外滩源项目。 特龙根铁路站 / Trogen Railway Station | 贝尔纳多·巴德尔|Bernardo Bader 上一篇 2025-11-05 下午12:50 尼安德特人博物馆 / Neanderthal Museum | 布兰德胡伯建筑事务所|Brandlhuber 下一篇 2025-11-05 下午12:50 猜你喜欢 欧洲艾莱大道21号办公楼 Office Building ‘Europaallee 21’ | 大卫·奇珀菲尔德建筑事务所|David Chipperfield 2025-11-24 公共建筑设计 巴黎瓦伦汀诺男装店 Valentino Man Store, Paris | 大卫·奇珀菲尔德建筑事务所|David Chipperfield 2025-11-05 室内设计 提供舒适办公环境的出版社总部 2016-01-13 办公建筑设计 ‘和平公园摩天轮’设计方案:重新定义首尔天际线 / UNStudio 2024-02-16 未分类 外方内圆,半遮半掩的透明光影——C&P 公司总部 2020-06-16 办公建筑设计 办公楼里包含“广场”和“街道”——联合利华印度尼西亚总部 / Aedas 2017-08-14 办公建筑设计 发表回复 请登录后评论...登录后才能评论 提交