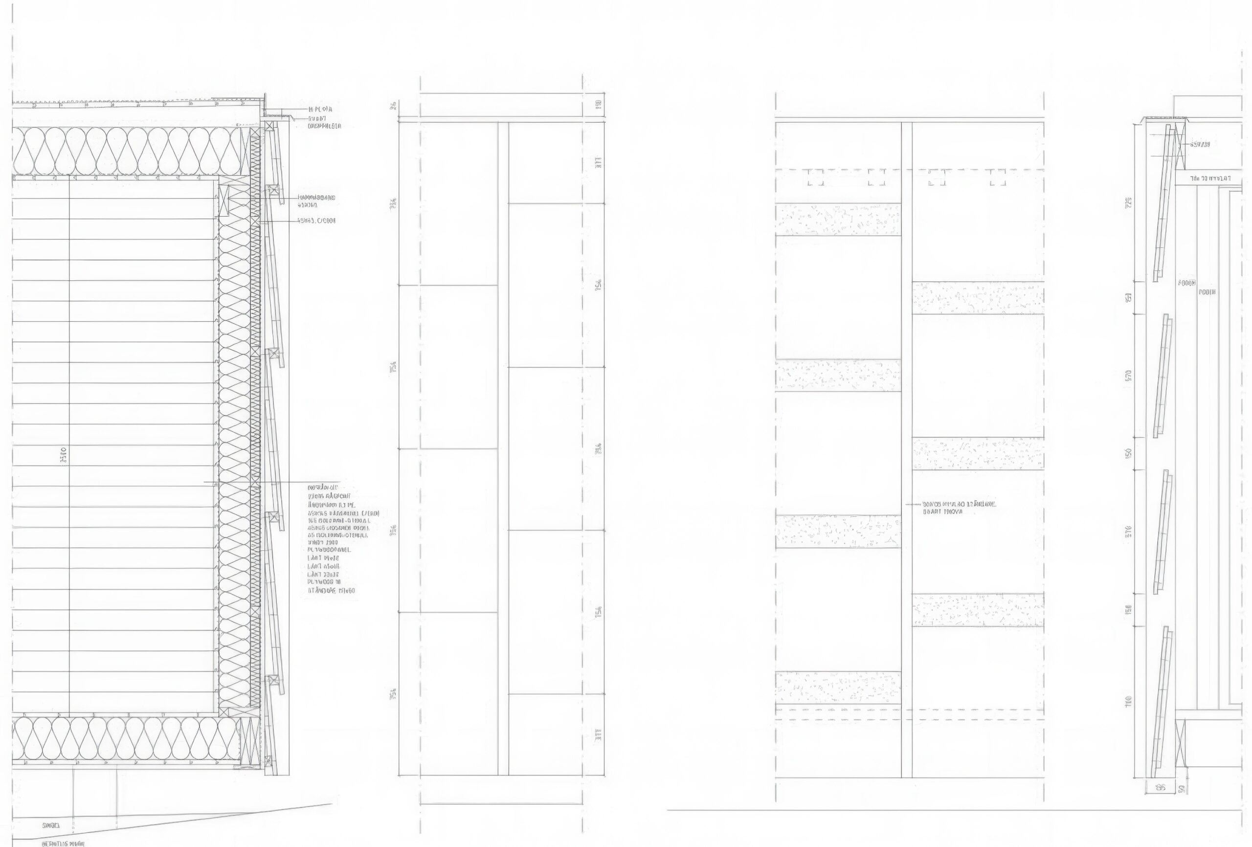
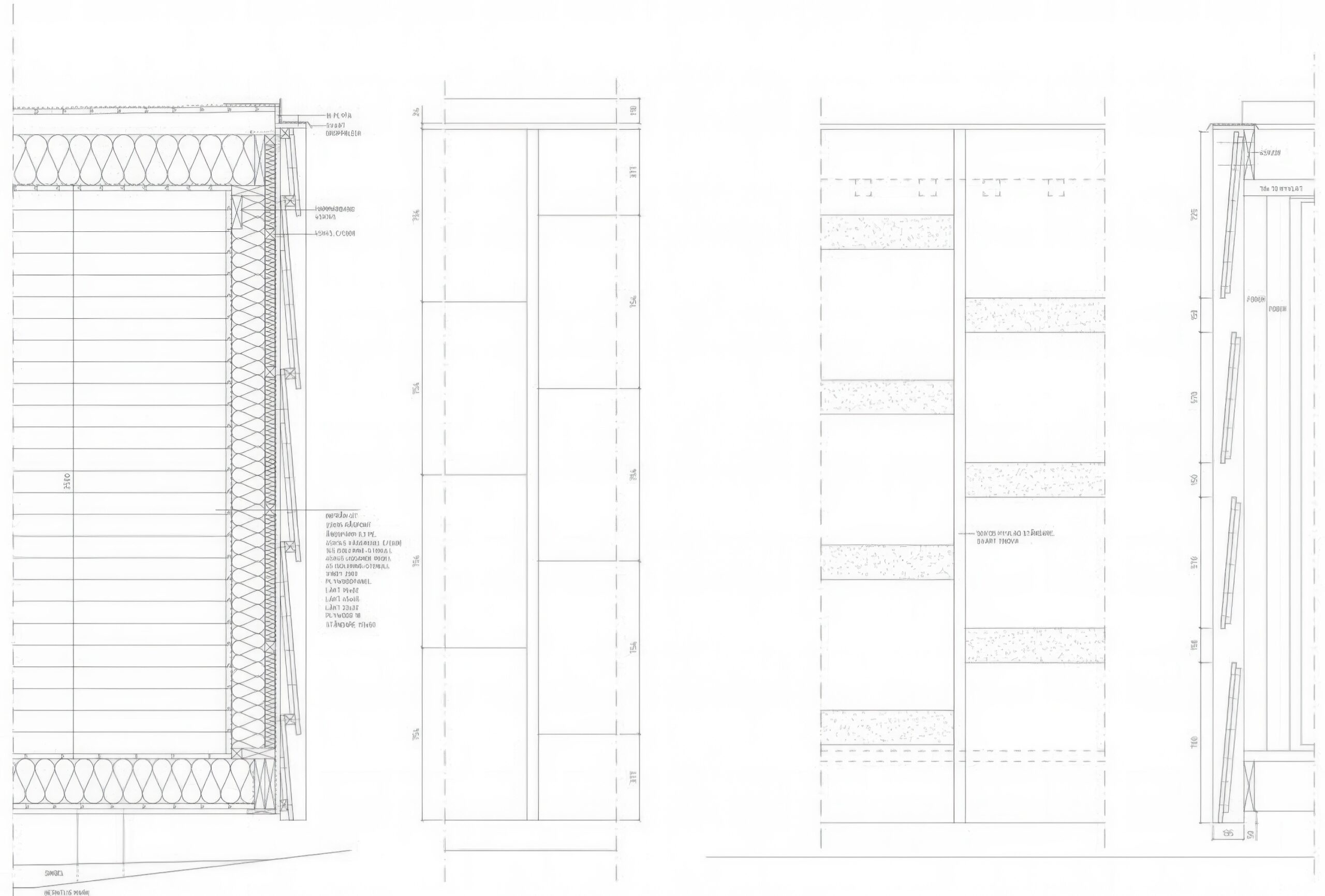
珊瑚岛住宅 Archipelago House | 谭姆与维德高德建筑事务所|Tham & Videgård 谭姆与维德高德建筑事务所|Tham & Videgård • 2025-11-09 下午12:50 • 住宅室内设计, 公共建筑设计, 室内设计, 建筑师设计, 建筑设计, 文化建筑设计 珊瑚岛住宅是谭姆与维德高德建筑事务所在斯德哥尔摩外群岛设计的夏季住宅。这座轻质木结构建筑巧妙融入岛屿环境,采用黑色染色外观与玻璃幕墙,创造室内外连续空间。设计充分利用场地平坦区域,最小化对自然环境的影响,同时提供多样化的海景体验。 设计: 谭姆与维德高德建筑事务所|Tham & Videgård 类型: 文化建筑设计 功能: 独立住宅 风格: 现代主义 材料: 木材 玻璃 尺度: 小型建筑 地点:斯德哥尔摩 时间: 2013年 项目简介 珊瑚岛住宅位于瑞典斯德哥尔摩外群岛,是一座独立住宅项目,建筑面积约150平方米,设计于2010年代初期。 设计理念 设计团队以建立建筑与群岛景观的直接关系为核心,创造了一个简单的平台式结构,探索空间与自然的多元互动。建筑水平线条与岛上垂直松树形成对比,同时呼应波罗的海的反射景观。 空间与功能 住宅采用锯齿形平面布局,三个主要社交区域面向露台开放,形成连续空间。小型房间布置在后方,滑动玻璃门系统创造了灵活的内外过渡。布局还形成了一系列防风室外空间,适应岛屿强风环境。 材料与技术 建筑采用轻质木结构和玻璃幕墙,黑色染色松木框架与交错排列的胶合板构成外墙系统。所有材料通过船只运输至无道路连接的岛屿,体现了对场地条件的敏感响应。 设计团队 谭姆与维德高德建筑事务所是瑞典知名建筑事务所,专注于现代住宅设计,擅长将建筑与自然环境紧密结合,作品以简洁形式和对材料的精心运用著称。 项目简介 珊瑚岛住宅位于瑞典斯德哥尔摩外群岛,是一座独立住宅项目,建筑面积约150平方米,设计于2010年代初期。 设计理念 设计团队以建立建筑与群岛景观的直接关系为核心,创造了一个简单的平台式结构,探索空间与自然的多元互动。建筑水平线条与岛上垂直松树形成对比,同时呼应波罗的海的反射景观。 空间与功能 住宅采用锯齿形平面布局,三个主要社交区域面向露台开放,形成连续空间。小型房间布置在后方,滑动玻璃门系统创造了灵活的内外过渡。布局还形成了一系列防风室外空间,适应岛屿强风环境。 材料与技术 建筑采用轻质木结构和玻璃幕墙,黑色染色松木框架与交错排列的胶合板构成外墙系统。所有材料通过船只运输至无道路连接的岛屿,体现了对场地条件的敏感响应。 设计团队 谭姆与维德高德建筑事务所是瑞典知名建筑事务所,专注于现代住宅设计,擅长将建筑与自然环境紧密结合,作品以简洁形式和对材料的精心运用著称。 本文来自 © 谭姆与维德高德建筑事务所|Tham & Videgård, 发布于 © 建筑学院官方网站。 未经授权,禁止转载或摘编。 编辑版本版权归 © 建筑学院官方网站 所有, 设计、图纸及照片版权归设计方 © 谭姆与维德高德建筑事务所|Tham & Videgård ↗ 所有。 查看作者在建筑学院发布的更多作品: 谭姆与维德高德建筑事务所|Tham & Videgård @ 建筑学院官方网站 斯德哥尔摩木结构独立住宅设计珊瑚岛住宅谭姆与维德高德 谭姆与维德高德建筑事务所|Tham & Videgård事务所 & 设计师 下载原图 收藏 0 关于作者 谭姆与维德高德建筑事务所|Tham & Videgård事务所 & 设计师 关注私信 12 文章 0 评论 0 粉丝 谭姆与维德高德建筑事务所(Tham & Videgård Arkitekter)是成立于瑞典斯德哥尔摩的知名建筑事务所,由波勒·谭姆与马丁·维德高德于1999年创立。他们以其深刻的实践哲学著称,坚信“建筑必须被建造出来”以供体验与评估。其作品涵盖博物馆、学校及住宅,以独特的材料运用、清晰的形体表达以及对文脉的敏锐回应而闻名。代表作包括卡尔马艺术博物馆、镜立方树屋及瑞典皇家理工学院建筑学院等。 科隆壁板公寓和办公楼 / Kölner Brett, Apartment and Office Building | 布兰德胡伯建筑事务所|Brandlhuber 上一篇 2025-11-09 上午8:50 蓬皮奥购物中心修复项目 Renovation of Galeries Lafayette, Pau | 布鲁瑟建筑事务所|Bruther 下一篇 2025-11-10 上午8:50 猜你喜欢 帕拉蒂之家 / House in Paraty | Estúdio Gustavo Utrabo 2025-12-25 住宅建筑设计 伊克塔帕半岛上的房子 House in Punta Ixtapa | 曼努埃尔·塞万提斯|Manuel Cervantes 2025-12-10 公共建筑设计 京都的房子 / House in Kyodo | 长谷川豪建筑事务所 2025-11-01 公共建筑设计 霍加根的房子 / House in Hovgarden | Arrhov Frick 2025-12-25 住宅建筑设计 洛杉矶四座房子 / FOUR HOUSES IN LOS HELECHOS | Taller Héctor Barroso 2026-02-18 住宅建筑设计 奥伊雷斯的房子 / House in Oeiras | 德·莫拉建筑事务所 2025-12-24 住宅建筑设计 发表回复 请登录后评论...登录后才能评论 提交