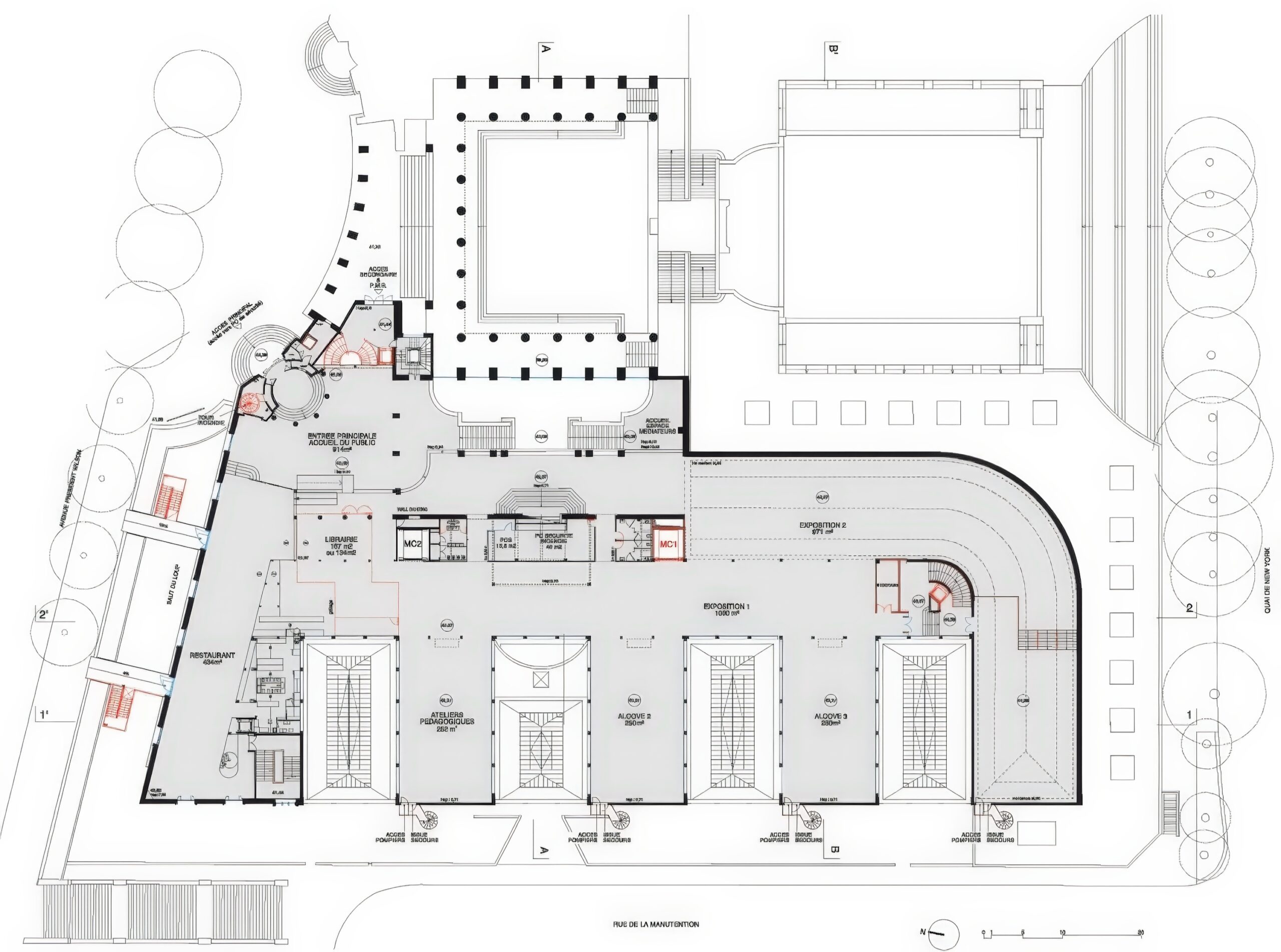
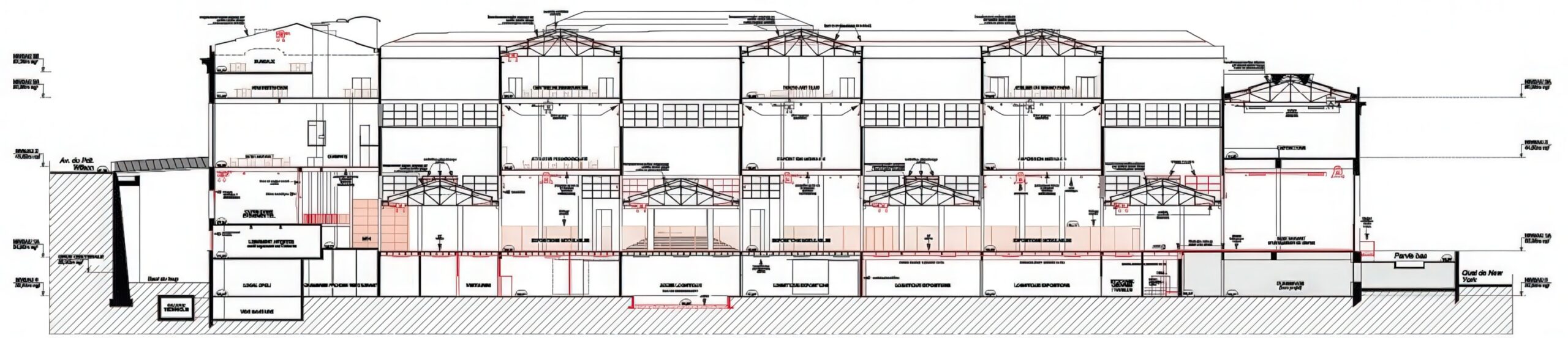
东京宫,巴黎 Palais de Tokyo, Paris | 拉卡东与瓦萨尔建筑师事务所|Lacaton & Vassal 谭姆与维德高德建筑事务所|Tham & Videgård • 2025-11-09 下午12:50 • 公共建筑设计, 建筑师设计, 建筑设计, 文化建筑设计 东京宫是巴黎重要的当代艺术中心,由拉卡东与瓦萨尔建筑师事务所设计改造。项目通过保留工业建筑特征和创造灵活空间,为艺术展示和公共活动提供最大自由度,成为巴黎文化地标。 设计: 拉卡东与瓦萨尔建筑师事务所|Lacaton & Vassal 类型: 文化建筑设计 功能: 独立住宅 风格: 当代建筑 材料: 混凝土 钢材 玻璃 金属板 尺度: 大型建筑 地点:法国 时间: 2001年 项目简介 东京宫位于法国巴黎,是一座当代艺术中心,总建筑面积达22,000平方米。项目最初于2002年完成第一阶段改造,2012年进行扩建,将使用范围扩展至建筑全部四层空间。 设计理念 拉卡东与瓦萨尔建筑师事务所坚持”不做减法”的设计理念,保留建筑原有的工业特征和粗犷质感。设计强调空间的自由度和灵活性,为艺术展示和公共活动创造最大可能性,打破传统美术馆的封闭感。 空间与功能 建筑内部采用开放式布局,四层空间可灵活分隔或合并使用。功能包括展览空间、活动场地、电影院、音乐厅、书店、咖啡餐厅和商店等,形成多元化的文化艺术综合体。空间组织注重流动性和通透感。 材料与技术 设计保留了原有建筑的混凝土结构、金属桁架和砖墙等工业元素,新增部分采用简洁的金属和玻璃材料。施工注重对既有结构的保护和再利用,体现了可持续的建筑理念。 设计团队 拉卡东与瓦萨尔建筑师事务所是法国知名建筑事务所,以城市更新和社会住宅设计著称。他们擅长通过最小干预实现空间转型,关注建筑的社会价值和可持续性。 项目简介 东京宫位于法国巴黎,是一座当代艺术中心,总建筑面积达22,000平方米。项目最初于2002年完成第一阶段改造,2012年进行扩建,将使用范围扩展至建筑全部四层空间。 设计理念 拉卡东与瓦萨尔建筑师事务所坚持”不做减法”的设计理念,保留建筑原有的工业特征和粗犷质感。设计强调空间的自由度和灵活性,为艺术展示和公共活动创造最大可能性,打破传统美术馆的封闭感。 空间与功能 建筑内部采用开放式布局,四层空间可灵活分隔或合并使用。功能包括展览空间、活动场地、电影院、音乐厅、书店、咖啡餐厅和商店等,形成多元化的文化艺术综合体。空间组织注重流动性和通透感。 材料与技术 设计保留了原有建筑的混凝土结构、金属桁架和砖墙等工业元素,新增部分采用简洁的金属和玻璃材料。施工注重对既有结构的保护和再利用,体现了可持续的建筑理念。 设计团队 拉卡东与瓦萨尔建筑师事务所是法国知名建筑事务所,以城市更新和社会住宅设计著称。他们擅长通过最小干预实现空间转型,关注建筑的社会价值和可持续性。 本文来自 © 谭姆与维德高德建筑事务所|Tham & Videgård, 发布于 © 建筑学院官方网站。 未经授权,禁止转载或摘编。 编辑版本版权归 © 建筑学院官方网站 所有, 设计、图纸及照片版权归设计方 © 谭姆与维德高德建筑事务所|Tham & Videgård ↗ 所有。 查看作者在建筑学院发布的更多作品: 谭姆与维德高德建筑事务所|Tham & Videgård @ 建筑学院官方网站 东京宫工业建筑改造巴黎文化建筑当代艺术中心拉卡东与瓦萨尔 谭姆与维德高德建筑事务所|Tham & Videgård事务所 & 设计师 下载原图 收藏 0 关于作者 谭姆与维德高德建筑事务所|Tham & Videgård事务所 & 设计师 关注私信 12 文章 0 评论 0 粉丝 谭姆与维德高德建筑事务所(Tham & Videgård Arkitekter)是成立于瑞典斯德哥尔摩的知名建筑事务所,由波勒·谭姆与马丁·维德高德于1999年创立。他们以其深刻的实践哲学著称,坚信“建筑必须被建造出来”以供体验与评估。其作品涵盖博物馆、学校及住宅,以独特的材料运用、清晰的形体表达以及对文脉的敏锐回应而闻名。代表作包括卡尔马艺术博物馆、镜立方树屋及瑞典皇家理工学院建筑学院等。 SKY VILLAGE RODOVRE MIXED-USE TOWER | MVRDV 建筑事务所皇家咖啡馆酒店 Hotel Café Royal | 大卫·奇珀菲尔德建筑事务所|David Chipperfield 上一篇 2025-11-09 上午8:50 赫尔辛基中央图书馆 Central Library, Helsinki | 布鲁瑟建筑事务所|Bruther 下一篇 2025-11-10 上午8:50 猜你喜欢 收藏家之家 / House for a Collector | 6a 建筑事务所|6a architects 2026-04-20 住宅建筑设计 诺曼底办公室大楼 Office Building, Nantes | 拉卡东与瓦萨尔建筑师事务所|Lacaton & Vassal 2025-11-10 公共建筑设计 23套住宅,特龙卡 23 Housing Units, Trignac | 拉卡东与瓦萨尔建筑师事务所|Lacaton & Vassal 2025-11-12 公共建筑设计 新加伦西美制药公司大楼 / New Galenicum Pharmaceutical Company Building | HArquitectes 2026-04-06 公共建筑设计 收藏家之家 / House for a Collector | +6a 建筑事务所|6a architects 2025-11-04 公共建筑设计 加州大学洛杉矶分校马戈雷文研究生艺术工作室 / UCLA Margo Leavin Graduate Art Studios | MARKLEE 建筑事务所 2025-11-08 公共建筑设计 发表回复 请登录后评论...登录后才能评论 提交