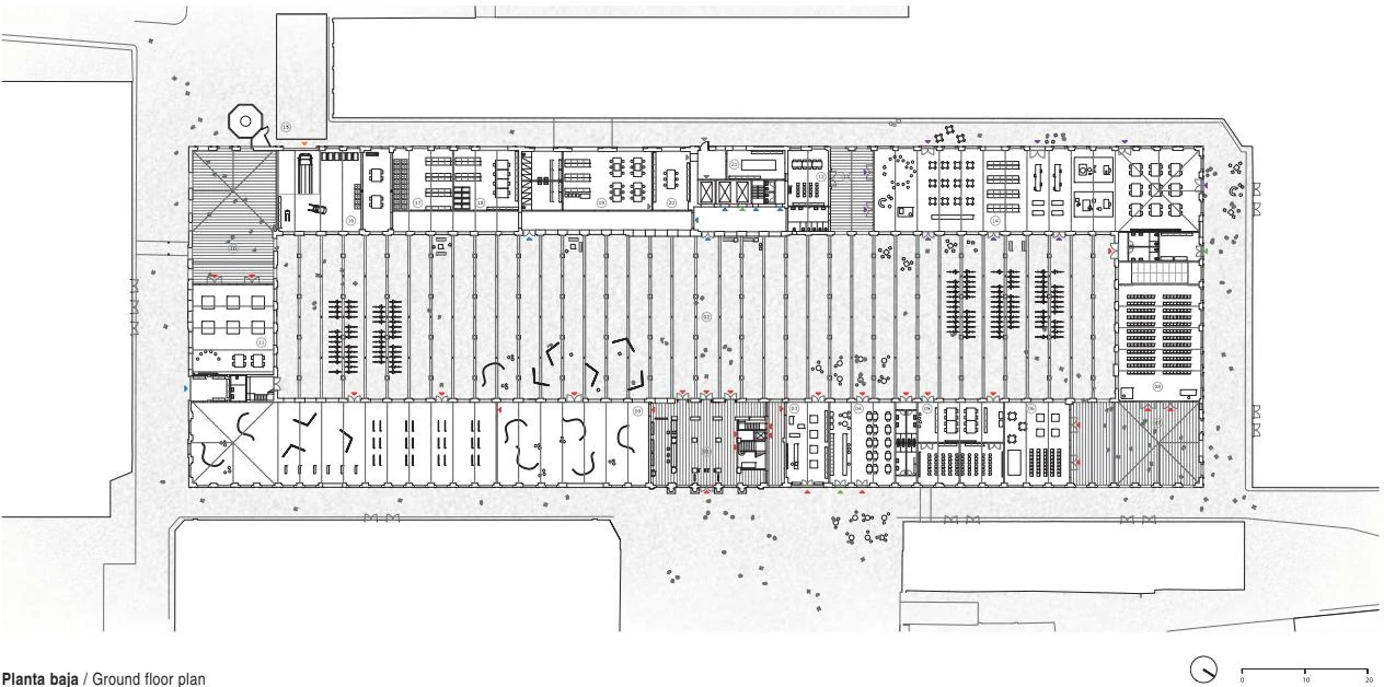
新巴塞罗那中央档案馆 / New Barcelona Central Archives | HArquitectes Harquitectes 建筑师事务所|Harquitectes • 2026-04-06 下午6:39 • 公共建筑设计, 建筑设计, 文化建筑设计 新巴塞罗那中央档案馆由HArquitectes设计,位于西班牙巴塞罗那Sants区,是对Can Batlló工业区的改造更新项目。设计通过将档案库抬升释放底层空间,创造了一个覆盖式柱廊广场,巧妙平衡了历史保护与现代功能需求,展现了文化建筑的创新性。 设计: Harquitectes 建筑师事务所|Harquitectes 类型: 文化建筑设计 功能: 文化中心 风格: 当代建筑 材料: 混凝土 钢材 玻璃 尺度: 大型建筑 地点:巴塞罗那 时间: 2018年 项目概述 新巴塞罗那中央档案馆位于西班牙巴塞罗那Sants区的Can Batlló工业遗址,由HArquitectes事务所设计。该项目是对19世纪末工业建筑的改造更新,将原有160×55米的巨大工业厂房转变为集档案存储与公共空间于一体的文化设施,设计年份为2018年。 设计理念 HArquitectes的设计核心理念是将历史保护与现代功能需求巧妙结合。设计团队选择保留中央大厅的巨大空间和结构特征,通过将档案库抬升释放底层空间,创造了一个面向城市开放的覆盖式柱廊广场,实现了工业遗产的活化再生。 空间与功能 新巴塞罗那中央档案馆采用周边环绕式布局,将开放式社区功能布置在周边区域,与周围街道建立联系。中央大厅被改造为覆盖式柱廊广场,成为城市尺度的公共空间。档案存储功能全部设置在上层,通过新的混凝土承重墙分隔,形成了清晰的功能分区和流线组织。 材料与技术 项目保留了原有工业建筑的结构体系,新增混凝土承重墙支撑上层档案库。设计采用了互补的被动与主动生物气候系统,通过新建开口改善自然采光与通风。材料选择上尊重原有工业建筑特征,同时引入现代技术提升环境性能。 项目特色与启发 新巴塞罗那中央档案馆项目展示了工业遗产改造的创新思路,通过结构创新实现了历史保护与功能更新的平衡。该项目为类似工业建筑改造提供了重要参考,展现了文化建筑如何通过空间重构实现与城市的深度对话。 设计团队 HArquitectes是西班牙知名建筑事务所,以对场地文脉的深入理解和创新性设计策略著称。事务所在历史建筑改造和可持续设计方面具有丰富经验,其作品注重建筑与环境的和谐共生,在尊重历史的同时注入当代价值。 项目概述 新巴塞罗那中央档案馆位于西班牙巴塞罗那Sants区的Can Batlló工业遗址,由HArquitectes事务所设计。该项目是对19世纪末工业建筑的改造更新,将原有160×55米的巨大工业厂房转变为集档案存储与公共空间于一体的文化设施,设计年份为2018年。 设计理念 HArquitectes的设计核心理念是将历史保护与现代功能需求巧妙结合。设计团队选择保留中央大厅的巨大空间和结构特征,通过将档案库抬升释放底层空间,创造了一个面向城市开放的覆盖式柱廊广场,实现了工业遗产的活化再生。 空间与功能 新巴塞罗那中央档案馆采用周边环绕式布局,将开放式社区功能布置在周边区域,与周围街道建立联系。中央大厅被改造为覆盖式柱廊广场,成为城市尺度的公共空间。档案存储功能全部设置在上层,通过新的混凝土承重墙分隔,形成了清晰的功能分区和流线组织。 材料与技术 项目保留了原有工业建筑的结构体系,新增混凝土承重墙支撑上层档案库。设计采用了互补的被动与主动生物气候系统,通过新建开口改善自然采光与通风。材料选择上尊重原有工业建筑特征,同时引入现代技术提升环境性能。 项目特色与启发 新巴塞罗那中央档案馆项目展示了工业遗产改造的创新思路,通过结构创新实现了历史保护与功能更新的平衡。该项目为类似工业建筑改造提供了重要参考,展现了文化建筑如何通过空间重构实现与城市的深度对话。 设计团队 HArquitectes是西班牙知名建筑事务所,以对场地文脉的深入理解和创新性设计策略著称。事务所在历史建筑改造和可持续设计方面具有丰富经验,其作品注重建筑与环境的和谐共生,在尊重历史的同时注入当代价值。 本文来自 © Harquitectes 建筑师事务所|Harquitectes, 发布于 © 建筑学院官方网站。 未经授权,禁止转载或摘编。 编辑版本版权归 © 建筑学院官方网站 所有, 设计、图纸及照片版权归设计方 © Harquitectes 建筑师事务所|Harquitectes ↗ 所有。 查看作者在建筑学院发布的更多作品: Harquitectes 建筑师事务所|Harquitectes @ 建筑学院官方网站 HarquitectesNew Barcelona Central Archives工业建筑改造巴塞罗那文化建筑档案馆设计 Harquitectes 建筑师事务所|Harquitectes事务所 & 设计师 下载原图 收藏 0 关于作者 Harquitectes 建筑师事务所|Harquitectes事务所 & 设计师 关注私信 24 文章 0 评论 0 粉丝 Harquitectes是西班牙备受赞誉的建筑师事务所,以其对环境、材料和建造逻辑的深刻洞察而闻名。其官网harquitectes.com展示了众多获奖作品,涵盖学校、住宅及公共建筑。他们擅长运用本土、可持续的策略,创造舒适、高效且充满诗意的空间。 乌尔斯塔雷之家 / House in Ullastret | HArquitectes 上一篇 2026-04-06 下午6:38 塞塔克戈特-德-瓦利斯区的房屋 / House in Sant Cugat del Vallés | HArquitectes 下一篇 2026-04-07 下午9:47 猜你喜欢 萨尔曼松街住宅改造 / Home Renovation on Salmerón Street | HArquitectes 2026-01-03 住宅建筑设计 ICTA-ICP 研究中心 | Harquitectes 建筑师事务所 2025-10-29 公共建筑设计 罗马窑炉发现空间 / Roman Kiln Discovery Space in Vilassar de Dalt | 托尼·希罗内斯|Toni Gironès 2025-11-12 公共建筑设计 25 DOT Lope de Vega 3 / 25 Temporary Cohousing Units | HARQUITECTES 2026-02-09 住宅建筑设计 S House / S House | HArquitectes 2026-04-11 住宅建筑设计 1014号房屋,格兰多尔斯 House 1014, Granollers | Harquitectes 建筑师事务所|Harquitectes 2025-10-26 公共建筑设计 发表回复 请登录后评论...登录后才能评论 提交