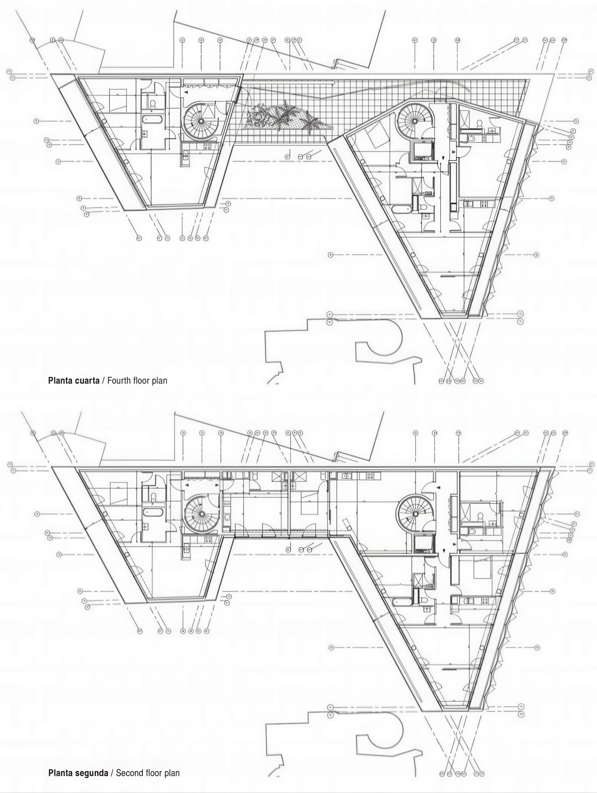
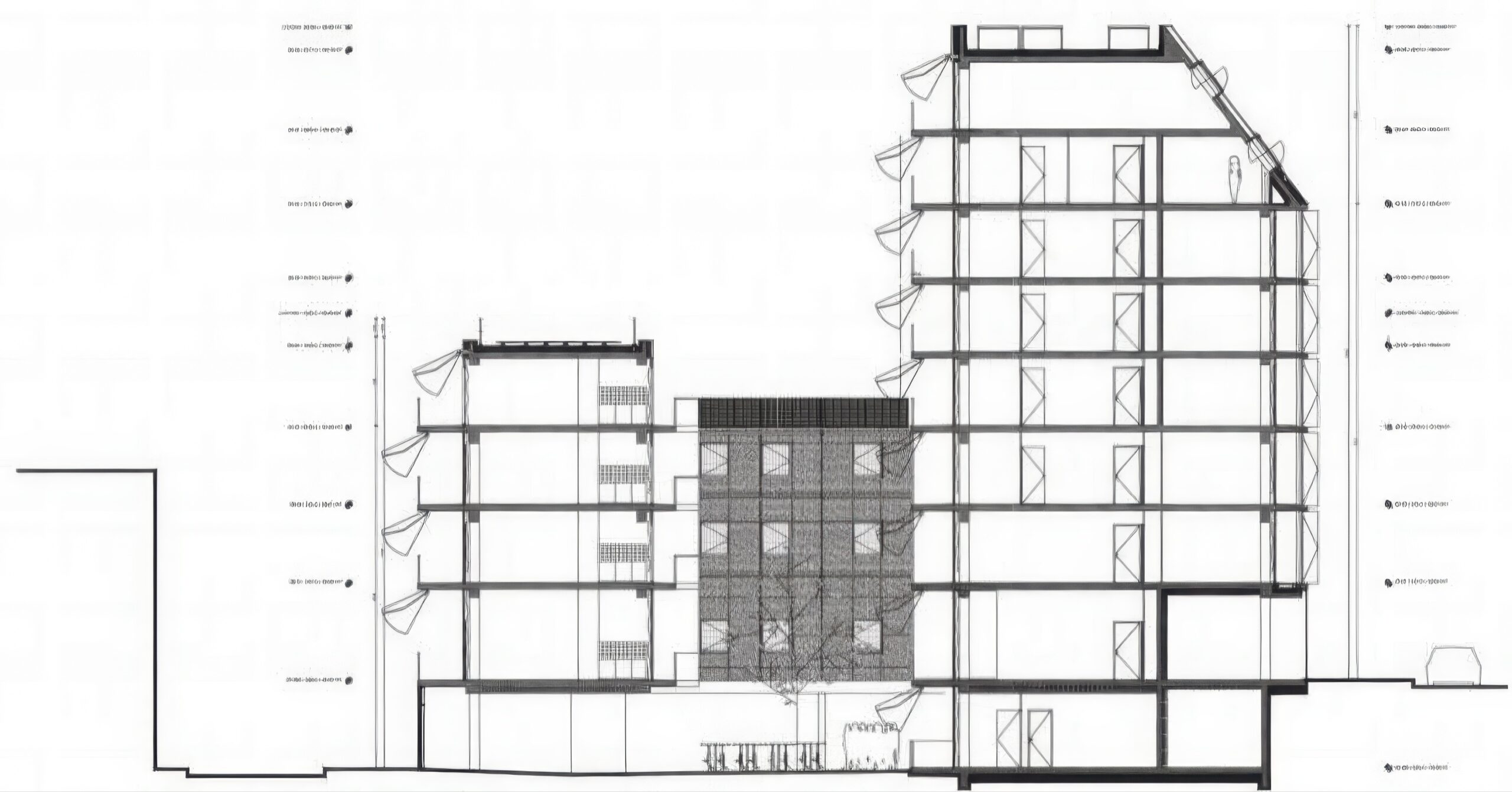
巴黎25户住房项目 25 Housing Units in Paris | 布鲁瑟建筑事务所|Bruther 布鲁瑟建筑事务所|Bruther • 2025-11-11 上午10:30 • 公共建筑设计, 建筑师设计, 建筑设计, 文化建筑设计 巴黎25户住房项目由布鲁瑟建筑事务所设计,位于法国巴黎第20区。该项目巧妙应对复杂城市地形,通过两个不同高度的体量连接Pelleport街和Pavillons街。设计采用玻璃幕墙、清水混凝土和阳极氧化铝板等材料,创造具有丰富朝向和巴黎城市景观视野的穿堂公寓,展现了现代住宅建筑的创新解决方案。 设计: 布鲁瑟建筑事务所|Bruther 类型: 文化建筑设计 功能: 公寓住宅 风格: 当代建筑 材料: 混凝土 玻璃 尺度: 中型建筑 地点:巴黎 时间: 2014年 项目简介 巴黎25户住房项目位于法国巴黎第20区,是一座集合住宅建筑,建筑面积约2500平方米,于2016年设计建成。 设计理念 布鲁瑟建筑事务所针对连接两条街道的复杂地形,采用梯形和三角形体量回应城市退线和对齐要求,创造双重立面表情:面向主街的统一立面与面向次街的宁静花园。 空间与功能 项目由七层和四层两个体量组成,所有公寓均为穿堂式布局,拥有多朝向和开阔视野。东侧双层玻璃立面面向内部花园,西侧线性阳台俯瞰巴黎城市景观,空间组织兼顾采光与隐私。 材料与技术 采用玻璃幕墙、清水混凝土楼板边缘和阳极氧化铝板山墙覆层,通过双层玻璃厚度和阳台阴影提供视觉保护,室内配有色泽窗帘增强居住私密性。 设计团队 布鲁瑟建筑事务所由Stéphanie Bru和Alexandre Theriot创立,以严谨的城市分析和创新的建筑语言著称,专注于公共建筑和住宅项目,擅长在复杂城市环境中创造高质量空间。 项目简介 巴黎25户住房项目位于法国巴黎第20区,是一座集合住宅建筑,建筑面积约2500平方米,于2016年设计建成。 设计理念 布鲁瑟建筑事务所针对连接两条街道的复杂地形,采用梯形和三角形体量回应城市退线和对齐要求,创造双重立面表情:面向主街的统一立面与面向次街的宁静花园。 空间与功能 项目由七层和四层两个体量组成,所有公寓均为穿堂式布局,拥有多朝向和开阔视野。东侧双层玻璃立面面向内部花园,西侧线性阳台俯瞰巴黎城市景观,空间组织兼顾采光与隐私。 材料与技术 采用玻璃幕墙、清水混凝土楼板边缘和阳极氧化铝板山墙覆层,通过双层玻璃厚度和阳台阴影提供视觉保护,室内配有色泽窗帘增强居住私密性。 设计团队 布鲁瑟建筑事务所由Stéphanie Bru和Alexandre Theriot创立,以严谨的城市分析和创新的建筑语言著称,专注于公共建筑和住宅项目,擅长在复杂城市环境中创造高质量空间。 本文来自 © 布鲁瑟建筑事务所|Bruther, 发布于 © 建筑学院官方网站。 未经授权,禁止转载或摘编。 编辑版本版权归 © 建筑学院官方网站 所有, 设计、图纸及照片版权归设计方 © 布鲁瑟建筑事务所|Bruther ↗ 所有。 查看作者在建筑学院发布的更多作品: 布鲁瑟建筑事务所|Bruther @ 建筑学院官方网站 巴黎25户住房巴黎住宅布鲁瑟建筑事务所玻璃幕墙集合住宅 布鲁瑟建筑事务所|Bruther事务所 & 设计师 下载原图 收藏 0 关于作者 布鲁瑟建筑事务所|Bruther事务所 & 设计师 关注私信 20 文章 0 评论 1 粉丝 布鲁瑟建筑事务所(Bruther)由亚历克西斯·博德与斯蒂芬妮·布鲁诺创立于巴黎,是当代极具前瞻性的先锋建筑团队。他们以“动态功能”与“空间灵活性”为核心,作品横跨文化、教育及研究建筑领域,以前瞻性思维与技术精确性,创造出开放、适应性强且充满张力的建筑,持续拓展建筑实践的边界,重新定义当代建筑语言。 圣埃斯特拉山的温泉 / Thermal Baths in Serra da Estrela | 艾雷斯·马特乌斯建筑事务所 上一篇 2025-11-11 上午8:50 “景镇融合”魔鬼城-西部乌镇2025首届艺术装置设计大赛 | 竞赛 下一篇 2025-11-11 下午12:00 猜你喜欢 法国图尔国家舞蹈编导中心 National Choreographic Centre of Tours | 布鲁瑟建筑事务所|Bruther 2025-11-20 公共建筑设计 Blaise Blaise | 布鲁瑟建筑事务所|Bruther 2025-11-20 公共建筑设计 Lormont Housing, Bordeaux | 让·努维尔建筑事务所|Jean Nouvel 2025-12-05 公共建筑设计 勒哈弗多功能社会文化体育设施 Multifunction Sociocultural and Sports Facility, Le Havre | 布鲁瑟建筑事务所|Bruther 2025-11-24 公共建筑设计 蒙彼利埃市政厅 City Hall, Montpellier | 让·努维尔建筑事务所|Jean Nouvel 2025-11-22 公共建筑设计 上海浦东嘉华E18创新住宅 / EID Arch + 上海天华建筑设计 + Aedas 2023-10-16 住宅建筑设计 发表回复 请登录后评论...登录后才能评论 提交