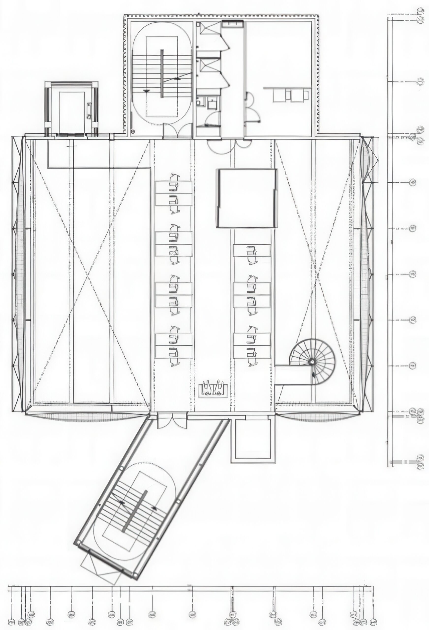
新一代科研中心 New Generation Research Centre | 布鲁瑟建筑事务所|Bruther 布鲁瑟建筑事务所|Bruther • 2025-11-11 上午10:30 • 公共建筑设计, 建筑师设计, 建筑设计, 文化建筑设计 新一代科研中心位于法国卡昂半岛,是一座28米高的紧凑型科研建筑。该项目由布鲁瑟建筑事务所设计,采用三层双高空间结构,配备夹层平台。建筑通过悬挑设计创造半遮蔽的公共广场,立面采用ETFE气枕幕墙系统,提供360度全景视野,实现功能灵活性与空间连续性的完美结合。 设计: 布鲁瑟建筑事务所|Bruther 类型: 文化建筑设计 功能: 研究中心 风格: 当代建筑 材料: 混凝土 钢材 玻璃 尺度: 中型建筑 地点:法国卡昂半岛 时间: 2020年 项目简介 新一代科研中心位于法国卡昂市,是一座科研类建筑,总高度28米,建筑面积约1160平方米,设计于当代城市更新区域。 设计理念 布鲁瑟建筑事务所采用”三维大厅”概念,通过紧凑的立方体量建立与城市的对话。设计强调空间连续性与功能灵活性,悬挑结构创造公共广场,实现建筑与城市空间的有机融合。 空间与功能 建筑包含三层自主平台,每层17.4米净高,配备10米深夹层。空间组织采用服务空间与使用空间分离原则,垂直交通与服务核心置于外围,确保内部空间的完全灵活性与使用多样性。 材料与技术 采用钢混复合结构体系,实现18米大跨度空间。立面系统结合双层玻璃与ETFE气枕幕墙,确保热工性能与视觉通透性。干式施工工艺有效控制建造成本与工期。 设计团队 布鲁瑟建筑事务所是法国知名建筑设计团队,以创新结构解决方案和城市公共空间设计著称,专注于当代建筑与城市更新项目的实践探索。 项目简介 新一代科研中心位于法国卡昂市,是一座科研类建筑,总高度28米,建筑面积约1160平方米,设计于当代城市更新区域。 设计理念 布鲁瑟建筑事务所采用”三维大厅”概念,通过紧凑的立方体量建立与城市的对话。设计强调空间连续性与功能灵活性,悬挑结构创造公共广场,实现建筑与城市空间的有机融合。 空间与功能 建筑包含三层自主平台,每层17.4米净高,配备10米深夹层。空间组织采用服务空间与使用空间分离原则,垂直交通与服务核心置于外围,确保内部空间的完全灵活性与使用多样性。 材料与技术 采用钢混复合结构体系,实现18米大跨度空间。立面系统结合双层玻璃与ETFE气枕幕墙,确保热工性能与视觉通透性。干式施工工艺有效控制建造成本与工期。 设计团队 布鲁瑟建筑事务所是法国知名建筑设计团队,以创新结构解决方案和城市公共空间设计著称,专注于当代建筑与城市更新项目的实践探索。 本文来自 © 布鲁瑟建筑事务所|Bruther, 发布于 © 建筑学院官方网站。 未经授权,禁止转载或摘编。 编辑版本版权归 © 建筑学院官方网站 所有, 设计、图纸及照片版权归设计方 © 布鲁瑟建筑事务所|Bruther ↗ 所有。 查看作者在建筑学院发布的更多作品: 布鲁瑟建筑事务所|Bruther @ 建筑学院官方网站 ETFE幕墙卡昂布鲁瑟建筑事务所新一代科研中心科研建筑 布鲁瑟建筑事务所|Bruther事务所 & 设计师 下载原图 收藏 0 关于作者 布鲁瑟建筑事务所|Bruther事务所 & 设计师 关注私信 20 文章 0 评论 1 粉丝 布鲁瑟建筑事务所(Bruther)由亚历克西斯·博德与斯蒂芬妮·布鲁诺创立于巴黎,是当代极具前瞻性的先锋建筑团队。他们以“动态功能”与“空间灵活性”为核心,作品横跨文化、教育及研究建筑领域,以前瞻性思维与技术精确性,创造出开放、适应性强且充满张力的建筑,持续拓展建筑实践的边界,重新定义当代建筑语言。 弗拉门卡尔海滩中学 / ‘Playa Flamenca’ Secondary School | 阿尔弗雷多·帕亚|Alfredo Payá 上一篇 2025-11-11 上午8:50 “景镇融合”魔鬼城-西部乌镇2025首届艺术装置设计大赛 | 竞赛 下一篇 2025-11-11 下午12:00 猜你喜欢 赫尔辛基中央图书馆 Central Library, Helsinki | 布鲁瑟建筑事务所|Bruther 2025-11-10 公共建筑设计 柏林新二十世纪艺术博物馆 New Museum of the 20th Century, Berlin | 布鲁瑟建筑事务所|Bruther 2025-11-05 公共建筑设计 生命科学大楼 New Life Science Building | 布鲁瑟建筑事务所|Bruther 2025-11-06 公共建筑设计 ICTA-ICP 研究中心 | Harquitectes 建筑师事务所 2025-10-29 公共建筑设计 勒哈弗多功能社会文化体育设施 Multifunction Sociocultural and Sports Facility, Le Havre | 布鲁瑟建筑事务所|Bruther 2025-11-24 公共建筑设计 国家塑料艺术与移动家具中心存储设施 National Centre for the Plastic Arts and Mobilier National Storage Facility | 布鲁瑟建筑事务所|Bruther 2025-11-06 公共建筑设计 发表回复 请登录后评论...登录后才能评论 提交