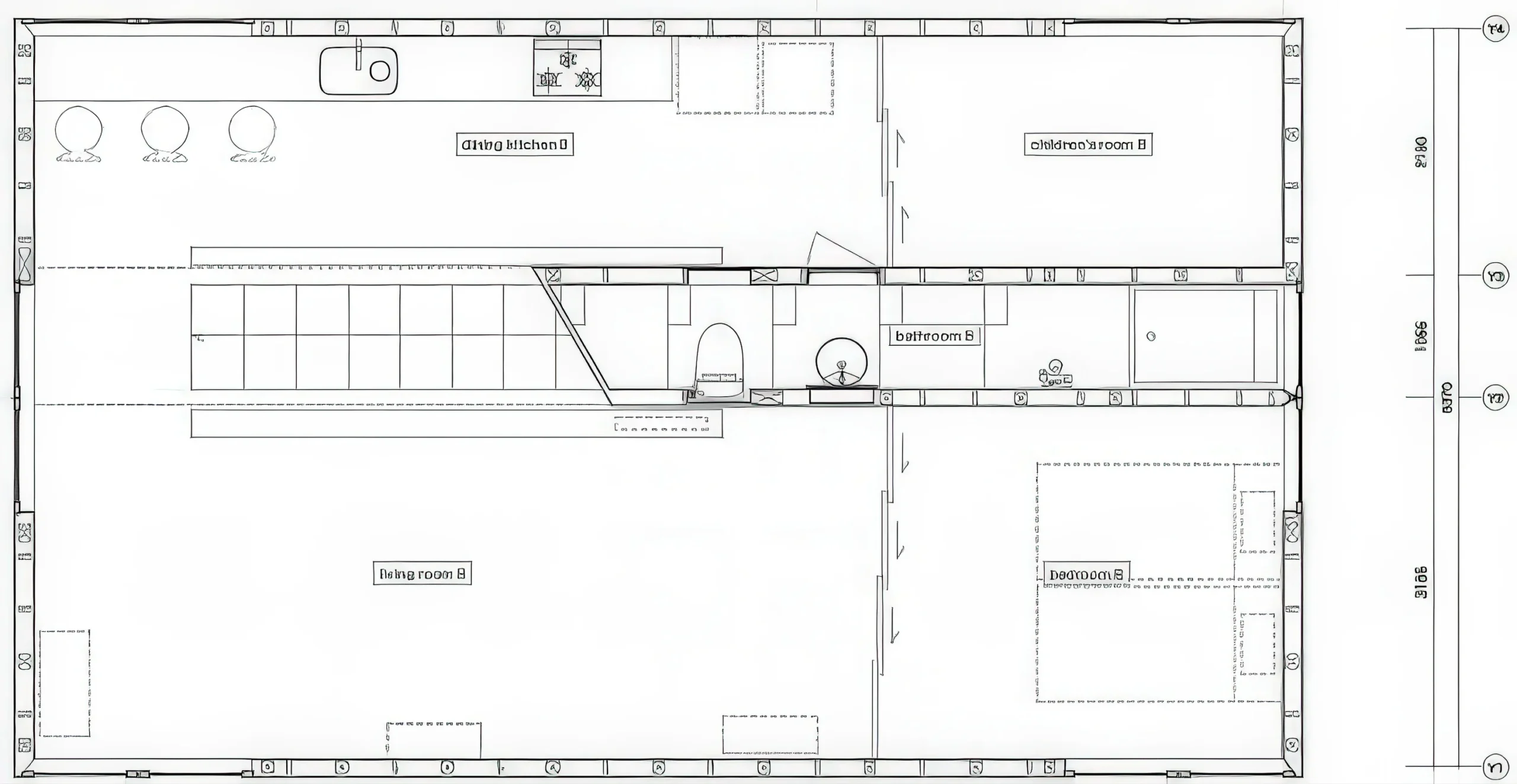
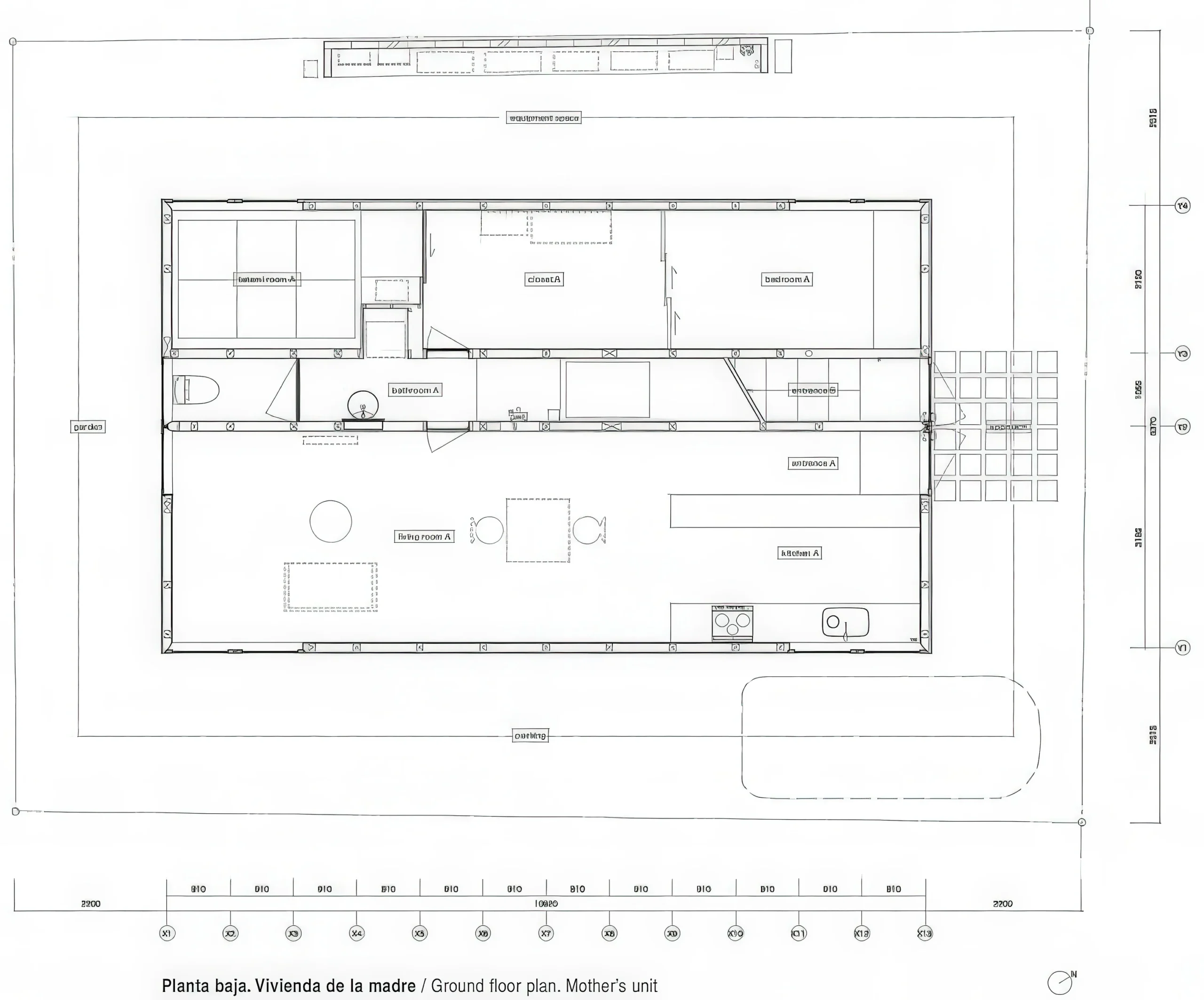
Ageo的排房 / Row House in Ageo | 长谷川豪建筑事务所|Go Hasegawa 长谷川豪建筑事务所|Go Hasegawa • 2025-11-12 上午8:50 • 公共建筑设计, 建筑师设计, 建筑设计, 文化建筑设计 Ageo的排房由长谷川豪建筑事务所设计,位于东京郊区埼玉市,是一座容纳同一家族两代人的双层木结构住宅。建筑置于场地中央,四周留出与底层面积相当的室外空间,通过深屋檐形成庇护。十二个2×2米木窗框对称分布于立面,楼梯系统创造三维空间分支,营造出既开放又模糊的空间体验。 设计: 长谷川豪建筑事务所|Go Hasegawa 类型: 文化建筑设计 功能: 独立住宅 风格: 当代建筑 材料: 木材 玻璃 尺度: 小型建筑 地点:埼玉 时间: 2006年 项目概述 Ageo的排房位于日本埼玉市东京郊区,是一座双层独立住宅,由长谷川豪建筑事务所设计。项目采用木结构体系,建筑面积约200平方米,设计通过中央布局与深屋檐创造独特的室内外关系。 设计理念 长谷川豪建筑事务所以”模糊边界”为核心概念,回应东京郊区住宅的封闭性现状。设计将建筑置于场地中央,四周留出等面积室外空间,通过深屋檐形成过渡区域,打破传统住宅的内外分明界限。 空间与功能 Ageo的排房采用垂直分层布局:底层为母亲居住单元,上层为儿子家庭单元。中央设置两组重叠的缓坡楼梯,形成三维空间分支。十二个对称木窗框可服务于不同房间,创造空间共享与视觉连通性。 材料与技术 项目采用传统木结构体系,使用实木框架与深屋檐构造。2×2米大型木窗框实现灵活开启,三角形楼梯空间巧妙容纳卫浴功能,展现对常规住宅尺度的重新思考。 项目特色与启发 Ageo的排房通过空间模糊性与尺度夸张,挑战郊区住宅的常规认知。长谷川豪建筑事务所的设计为高密度城市住宅提供了新的可能性,展示如何通过建筑手法创造既私密又开放的家庭生活空间。 设计团队 长谷川豪建筑事务所由日本建筑师长谷川豪创立,以住宅设计见长,擅长通过细腻的空间操作回应日常生活需求。事务所在小型住宅领域具有重要影响力,作品常探讨传统与现代的融合。 项目概述 Ageo的排房位于日本埼玉市东京郊区,是一座双层独立住宅,由长谷川豪建筑事务所设计。项目采用木结构体系,建筑面积约200平方米,设计通过中央布局与深屋檐创造独特的室内外关系。 设计理念 长谷川豪建筑事务所以”模糊边界”为核心概念,回应东京郊区住宅的封闭性现状。设计将建筑置于场地中央,四周留出等面积室外空间,通过深屋檐形成过渡区域,打破传统住宅的内外分明界限。 空间与功能 Ageo的排房采用垂直分层布局:底层为母亲居住单元,上层为儿子家庭单元。中央设置两组重叠的缓坡楼梯,形成三维空间分支。十二个对称木窗框可服务于不同房间,创造空间共享与视觉连通性。 材料与技术 项目采用传统木结构体系,使用实木框架与深屋檐构造。2×2米大型木窗框实现灵活开启,三角形楼梯空间巧妙容纳卫浴功能,展现对常规住宅尺度的重新思考。 项目特色与启发 Ageo的排房通过空间模糊性与尺度夸张,挑战郊区住宅的常规认知。长谷川豪建筑事务所的设计为高密度城市住宅提供了新的可能性,展示如何通过建筑手法创造既私密又开放的家庭生活空间。 设计团队 长谷川豪建筑事务所由日本建筑师长谷川豪创立,以住宅设计见长,擅长通过细腻的空间操作回应日常生活需求。事务所在小型住宅领域具有重要影响力,作品常探讨传统与现代的融合。 本文来自 © 长谷川豪建筑事务所|Go Hasegawa, 发布于 © 建筑学院官方网站。 未经授权,禁止转载或摘编。 编辑版本版权归 © 建筑学院官方网站 所有, 设计、图纸及照片版权归设计方 © 长谷川豪建筑事务所|Go Hasegawa ↗ 所有。 查看作者在建筑学院发布的更多作品: 长谷川豪建筑事务所|Go Hasegawa @ 建筑学院官方网站 Row House in Ageo埼玉住宅独立住宅设计长谷川豪建筑事务所 长谷川豪建筑事务所|Go Hasegawa事务所 & 设计师 下载原图 收藏 0 关于作者 长谷川豪建筑事务所|Go Hasegawa事务所 & 设计师 关注私信 16 文章 0 评论 0 粉丝 长谷川豪建筑事务所(Go Hasegawa)由日本建筑师长谷川豪于2005年创立,以其对空间尺度的独特探索和建筑与自然、城市环境的巧妙融合而闻名。其代表作"樱台之家"以一张巨大桌子重新定义住宅核心,"林中飞屋"则通过架空结构实现与树冠平齐的居住体验。事务所作品强调打破建筑内外界限,营造既亲密又开放的动态空间。 南京四方艺术博物馆 / Nanjing Sifang Art Museum | 斯蒂文·霍尔建筑事务所 Steven Holl Architects 上一篇 2025-11-11 下午12:50 皇家工学院建筑学系 School of Architecture,Royal Institute of Technology | 谭姆与维德高德建筑事务所|Tham & Videgård 下一篇 2025-11-12 下午12:50 猜你喜欢 日本横滨的房子 / House in Yokohama | 长谷川豪建筑事务所 2025-11-04 公共建筑设计 圣皮埃德拉帕斯的房屋 / House in San Pedro de la Paz | Pezo Von Ellrichshausen 2026-02-03 住宅建筑设计 Trail House / Trail House | 安妮·霍尔特罗普|Anne Holtrop 2026-01-06 住宅建筑设计 Velamsund 住宅 / House in Velamsund | Arrhov Frick 2026-01-23 建筑设计 克罗地亚兹戈尔单体住宅 / Single Family House in Zagreb | 德·莫拉|de Moura 2026-03-17 住宅建筑设计 弗斯特纳布尔克的库伯尔之家 / Kübler House in Fürstenaubruck | 吉翁·A·卡米纳达|Gion A. Caminada 2025-12-28 住宅建筑设计 发表回复 请登录后评论...登录后才能评论 提交