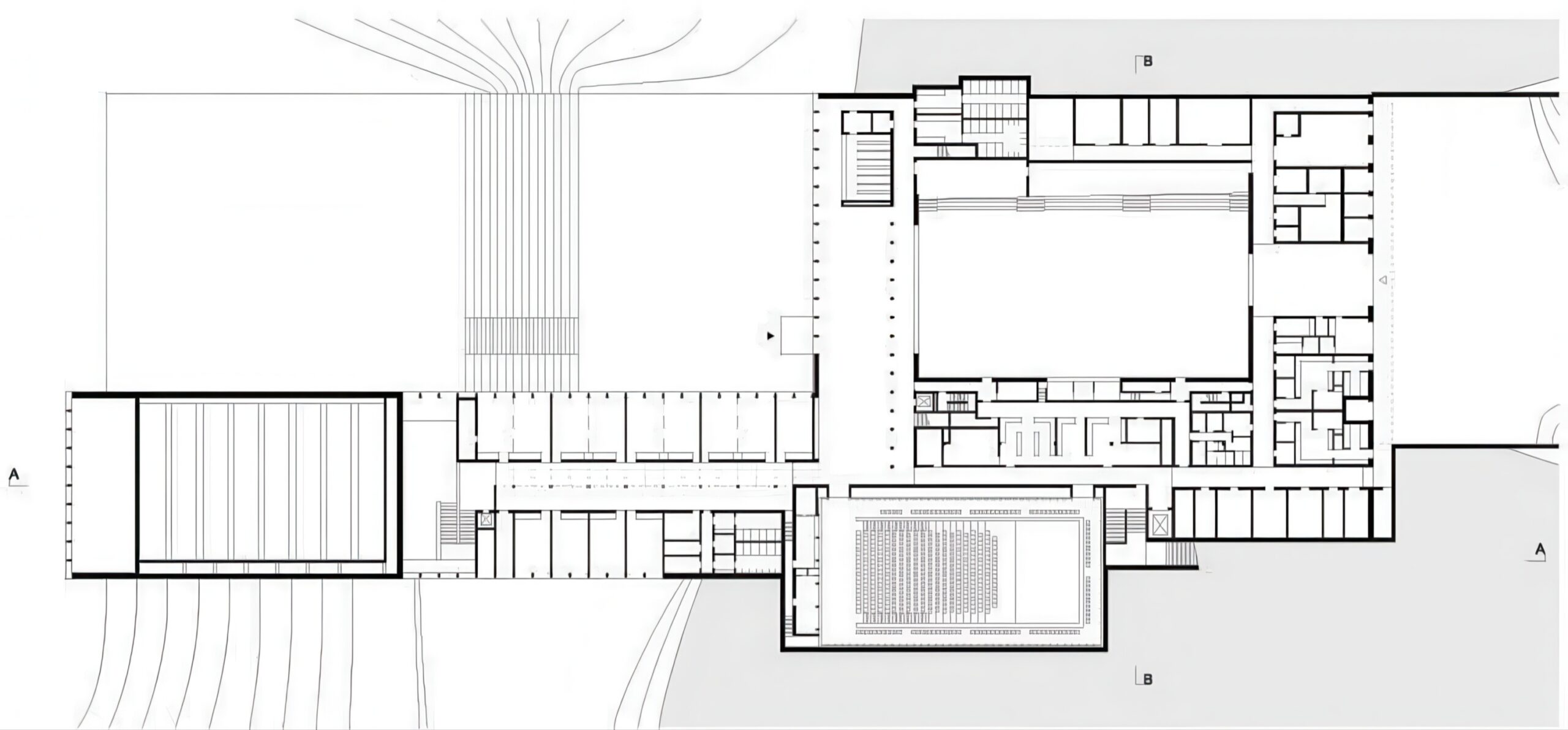
沃尔特会议和文化中心 Würth Conference and Culture Centre | 大卫·奇珀菲尔德建筑事务所|David 建筑学院 • 2025-11-23 上午8:50 • 公共建筑设计, 建筑师, 建筑设计, 文化建筑设计 沃尔特会议和文化中心位于德国昆泽尔绍,是一座集会议、文化、展览功能于一体的综合性建筑。项目由大卫·奇珀菲尔德建筑事务所设计,巧妙地将建筑融入自然地形,采用双层体量设计回应场地特征。建筑包含活动厅、音乐厅、会议中心和博物馆,通过清水混凝土与木材营造独特的空间体验。 设计: 大卫·奇珀菲尔德建筑事务所|David Chipperfield 类型: 文化建筑设计 功能: 文化中心 风格: 当代建筑 材料: 混凝土 木材 玻璃 尺度: 中型建筑 地点:德国 时间: 2000年 项目简介 沃尔特会议和文化中心位于德国昆泽尔绍,是一座综合性文化建筑,建筑面积未公开,设计于2000年代初期。 设计理念 设计团队以”建筑与景观融合”为核心理念,通过双层体量设计巧妙回应场地地形特征。建筑如同从景观中生长而出,既尊重自然环境又创造独特的建筑表达。 空间与功能 建筑包含多功能活动厅、500座音乐厅、会议中心和博物馆四大功能区。活动厅位于场地最高点,音乐厅则嵌入地下,形成丰富的空间层次。各功能区既可独立使用,也可通过连廊形成整体。 材料与技术 建筑采用清水混凝土外墙,结合大面积玻璃开窗引入自然光线。室内运用木材优化声学效果,并通过分离式入口实现功能区的灵活使用。 设计团队 大卫·奇珀菲尔德建筑事务所是国际知名建筑事务所,以严谨的现代主义设计语言、对材料质感的精细把控和对历史文脉的尊重而著称。 项目简介 沃尔特会议和文化中心位于德国昆泽尔绍,是一座综合性文化建筑,建筑面积未公开,设计于2000年代初期。 设计理念 设计团队以”建筑与景观融合”为核心理念,通过双层体量设计巧妙回应场地地形特征。建筑如同从景观中生长而出,既尊重自然环境又创造独特的建筑表达。 空间与功能 建筑包含多功能活动厅、500座音乐厅、会议中心和博物馆四大功能区。活动厅位于场地最高点,音乐厅则嵌入地下,形成丰富的空间层次。各功能区既可独立使用,也可通过连廊形成整体。 材料与技术 建筑采用清水混凝土外墙,结合大面积玻璃开窗引入自然光线。室内运用木材优化声学效果,并通过分离式入口实现功能区的灵活使用。 设计团队 大卫·奇珀菲尔德建筑事务所是国际知名建筑事务所,以严谨的现代主义设计语言、对材料质感的精细把控和对历史文脉的尊重而著称。 本文来自 © 建筑学院, 发布于 © 建筑学院官方网站。 未经授权,禁止转载或摘编。 编辑版本版权归 © 建筑学院官方网站 所有, 设计、图纸及照片版权归设计方 © 建筑学院 ↗ 所有。 查看作者在建筑学院发布的更多作品: 建筑学院 @ 建筑学院官方网站 大卫·奇珀菲尔德文化建筑昆泽尔绍沃尔特会议和文化中心清水混凝土 建筑学院编辑 下载原图 收藏 0 关于作者 建筑学院编辑 关注私信 9.0K 文章 202 评论 6 粉丝 建筑学院(ArchCollege)是中国领先的建筑师移动垂直社区,成立于2012年,超过 70% 的年轻建筑师正在使用我们的产品。我们致力于通过建筑设计新媒体与在线教育平台,连接教育、行业与科技,为建筑师提供灵感与成长支持,陪伴并见证每一位青年建筑师的专业进阶与时代探索。 带植物的房子 House with Plants | 石上纯也建筑事务所|Junya Ishigami 上一篇 2025-11-22 下午8:50 巴黎爱乐乐团 La Philharmonie de Paris | 让·努维尔建筑事务所|Jean Nouvel 下一篇 2025-11-23 上午9:50 猜你喜欢 拉韦雷利城堡中的卡斯特罗索非兹科。 Ravellins of Castello Sforzesco | 大卫·奇珀菲尔德建筑事务所|David Chipperfield 2025-11-26 公共建筑设计 国家博物馆(Qatar National Museum) National Museum of Qatar | 让·努维尔建筑事务所|Jean Nouvel 2天前 公共建筑设计 爱茉莉太平洋总部 Amorepacific Headquarters | 大卫·奇珀菲尔德建筑事务所|David Chipperfield 2025-11-05 公共建筑设计 罗马窑炉发现空间 / Roman Kiln Discovery Space in Vilassar de Dalt | 托尼·希罗内斯|Toni Gironès 2025-11-12 公共建筑设计 Moganshan Road 办公楼 Office Building Moganshan Road | 大卫·奇珀菲尔德建筑事务所|David Chipperfield 2025-11-27 公共建筑设计 多元剧场大南部,里尔 Polyvalent Theater ‘Le Grand Sud’, Lille | 拉卡东与瓦萨尔建筑师事务所|Lacaton & Vassal 2025-11-12 公共建筑设计 发表回复 请登录后评论...登录后才能评论 提交