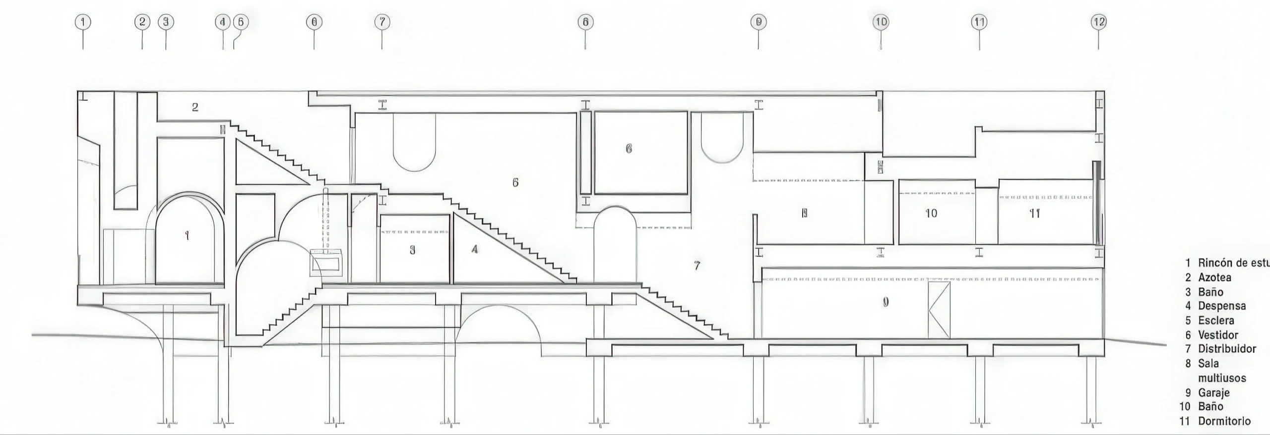
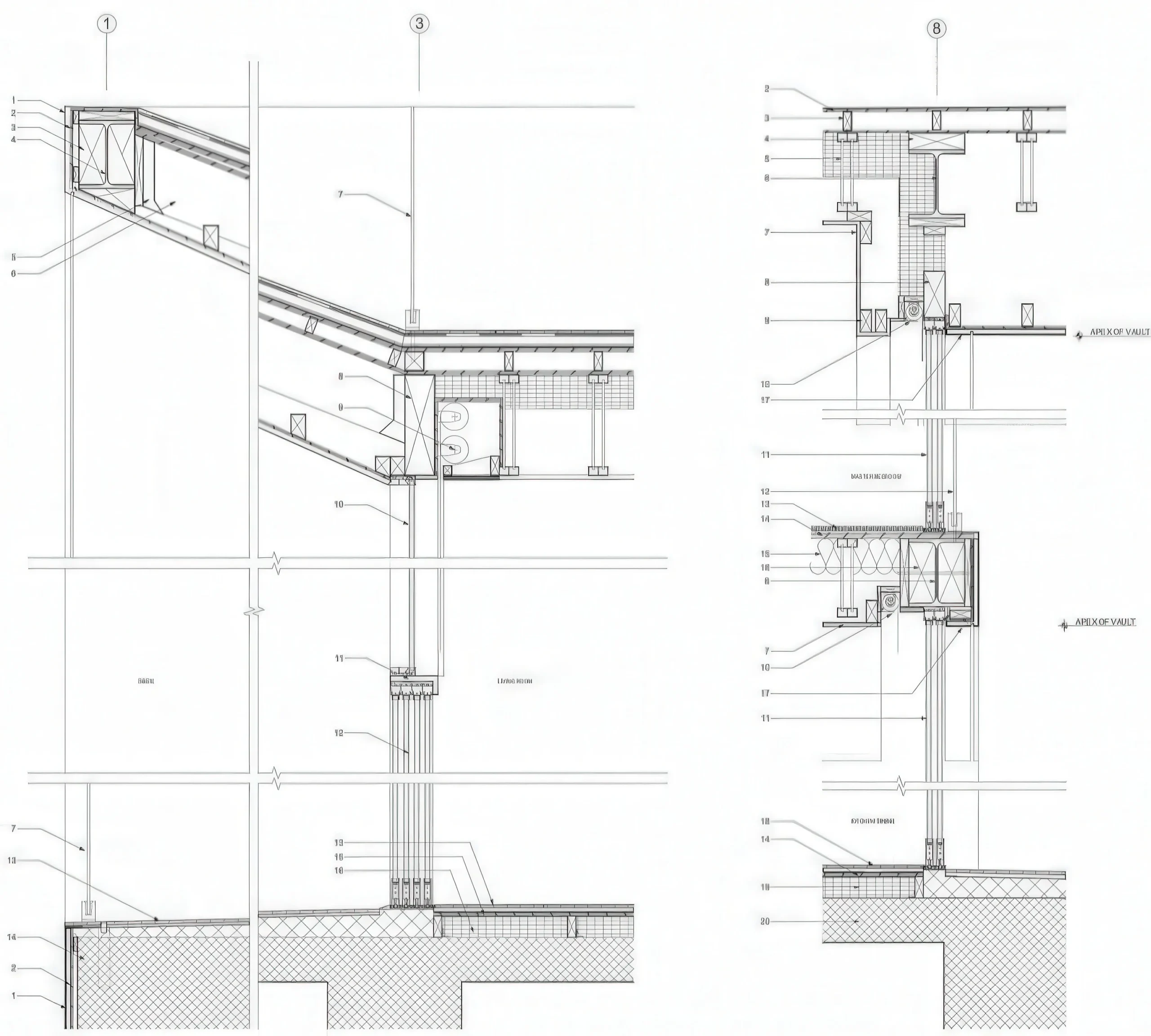
Vault House / Vault House | MARKLEE 建筑事务所 MARKLEE 建筑事务所|MARKLEE • 2025-11-15 下午12:50 • 公共建筑设计, 建筑师设计, 建筑设计, 文化建筑设计 Vault House 由 MARKLEE 建筑事务所设计,位于南加州海滨,是一座应对海岸环境挑战的独立住宅。项目通过单向拱顶空间布局,将光线、视野与通风延伸至建筑深处,同时满足加州海岸委员会对海啸防护的严格规范要求。Vault House 由 MARKLEE 建筑事务所设计,位于南加州海滨,是一座应对海岸环境挑战的独立住宅。项目通过单向拱顶空间布局,将光线、视野与通风延伸至建筑深处,同时满足加州海岸委员会对海啸防护的严格规范要求。 设计: MARKLEE 建筑事务所|MARKLEE 类型: 文化建筑设计 功能: 独立住宅 风格: 当代建筑 材料: 混凝土 木材 玻璃 尺度: 小型建筑 地点:南加州 时间: 2020年 项目概述 Vault House 位于南加州海滨密集开发区域,是一座独立住宅项目。建筑采用独特的拱顶结构设计,主要生活空间抬升2米以应对海啸风险,体现了在严苛海岸环境下的创新建筑解决方案。 设计理念 MARKLEE 建筑事务所旨在打破传统海滨住宅单一朝向的局限,通过平行布置的单向拱顶空间,将海岸氛围从西侧海滩立面延伸至东侧街道边界。设计巧妙回应了场地限制与规范要求,创造了连续的空间体验。 空间与功能 Vault House 采用不对称剖面组织三个楼层,围绕开放式庭院布局。庭院作为核心连接东侧私密卧室与西侧公共生活区,每个拱顶房间定义独立功能区域,消除多余走廊,实现空间的高效整合与视觉通透性。 材料与技术 建筑主要采用混凝土、钢材和木材等材料,拱顶结构延伸至生活空间下方,记录沙丘变化。技术策略包括刚性保温、喷雾泡沫隔热及不锈钢防水细节,确保建筑在海岸环境下的耐久性与性能表现。 项目特色与启发 Vault House 展示了如何在严格规范限制下实现创新设计,其拱顶空间系统为海滨住宅提供了新的范式,对应对气候变化的海岸建筑设计具有重要参考价值。 设计团队 MARKLEE 建筑事务所专注于回应特定场地条件的建筑设计,在住宅与文化建筑领域具有丰富经验。事务所以严谨的材料运用与空间创新著称,Vault House 体现了其将环境挑战转化为设计机遇的专业能力。 项目概述 Vault House 位于南加州海滨密集开发区域,是一座独立住宅项目。建筑采用独特的拱顶结构设计,主要生活空间抬升2米以应对海啸风险,体现了在严苛海岸环境下的创新建筑解决方案。 设计理念 MARKLEE 建筑事务所旨在打破传统海滨住宅单一朝向的局限,通过平行布置的单向拱顶空间,将海岸氛围从西侧海滩立面延伸至东侧街道边界。设计巧妙回应了场地限制与规范要求,创造了连续的空间体验。 空间与功能 Vault House 采用不对称剖面组织三个楼层,围绕开放式庭院布局。庭院作为核心连接东侧私密卧室与西侧公共生活区,每个拱顶房间定义独立功能区域,消除多余走廊,实现空间的高效整合与视觉通透性。 材料与技术 建筑主要采用混凝土、钢材和木材等材料,拱顶结构延伸至生活空间下方,记录沙丘变化。技术策略包括刚性保温、喷雾泡沫隔热及不锈钢防水细节,确保建筑在海岸环境下的耐久性与性能表现。 项目特色与启发 Vault House 展示了如何在严格规范限制下实现创新设计,其拱顶空间系统为海滨住宅提供了新的范式,对应对气候变化的海岸建筑设计具有重要参考价值。 设计团队 MARKLEE 建筑事务所专注于回应特定场地条件的建筑设计,在住宅与文化建筑领域具有丰富经验。事务所以严谨的材料运用与空间创新著称,Vault House 体现了其将环境挑战转化为设计机遇的专业能力。 本文来自 © MARKLEE 建筑事务所|MARKLEE, 发布于 © 建筑学院官方网站。 未经授权,禁止转载或摘编。 编辑版本版权归 © 建筑学院官方网站 所有, 设计、图纸及照片版权归设计方 © MARKLEE 建筑事务所|MARKLEE ↗ 所有。 查看作者在建筑学院发布的更多作品: MARKLEE 建筑事务所|MARKLEE @ 建筑学院官方网站 Vault House拱顶结构住宅海岸建筑海滨住宅设计 MARKLEE 建筑事务所|MARKLEE事务所 & 设计师 下载原图 收藏 0 关于作者 MARKLEE 建筑事务所|MARKLEE事务所 & 设计师 关注私信 17 文章 0 评论 0 粉丝 MARKLEE建筑事务所是一家致力于提供前瞻性建筑与空间解决方案的国际化团队。我们秉持“设计重塑体验”的理念,擅长将客户独特需求与场地文脉相结合,通过严谨的逻辑与创意构思,打造兼具现代美学、实用价值与可持续性的建筑作品。从概念到落地,MARKLEE为您提供专业化、个性化的全程设计服务,共创卓越空间。 克罗洛克图书馆 / De Krook Library | RCR 建筑事务所|RCR Arquitectes 上一篇 2025-11-15 上午8:50 十字架刑教堂 Crucifixion Chapel | 斯米里扬·拉迪奇|Smiljan Radić 下一篇 2025-11-16 上午8:50 发表回复 请登录后评论...登录后才能评论 提交