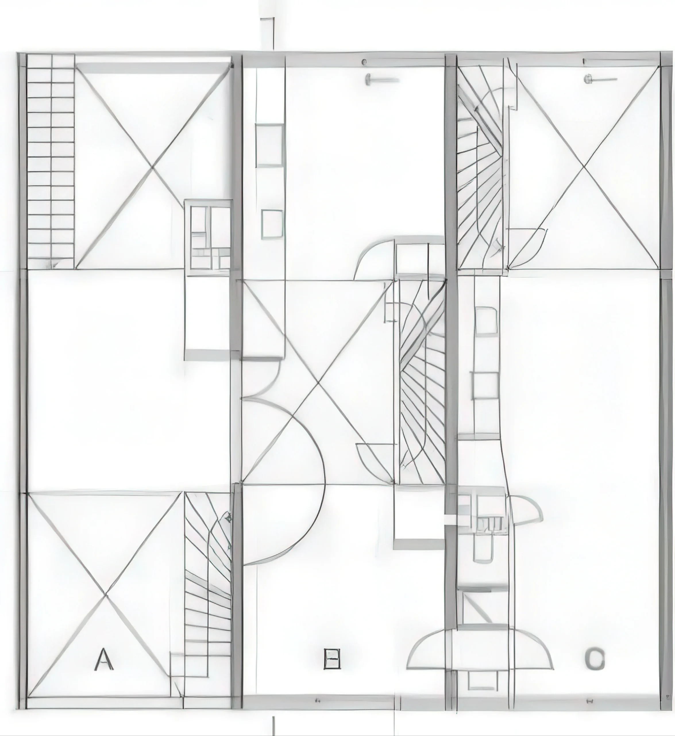
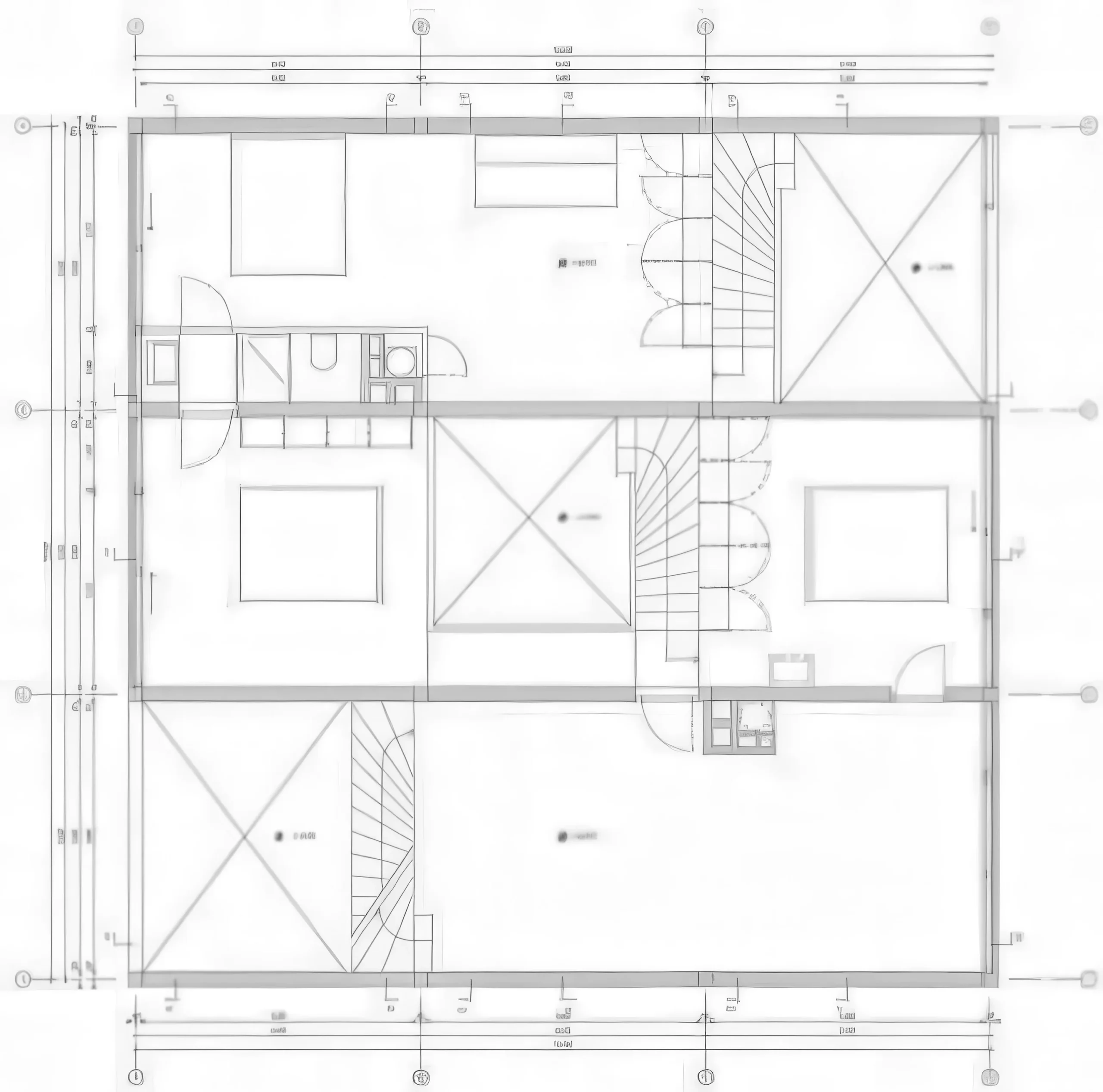
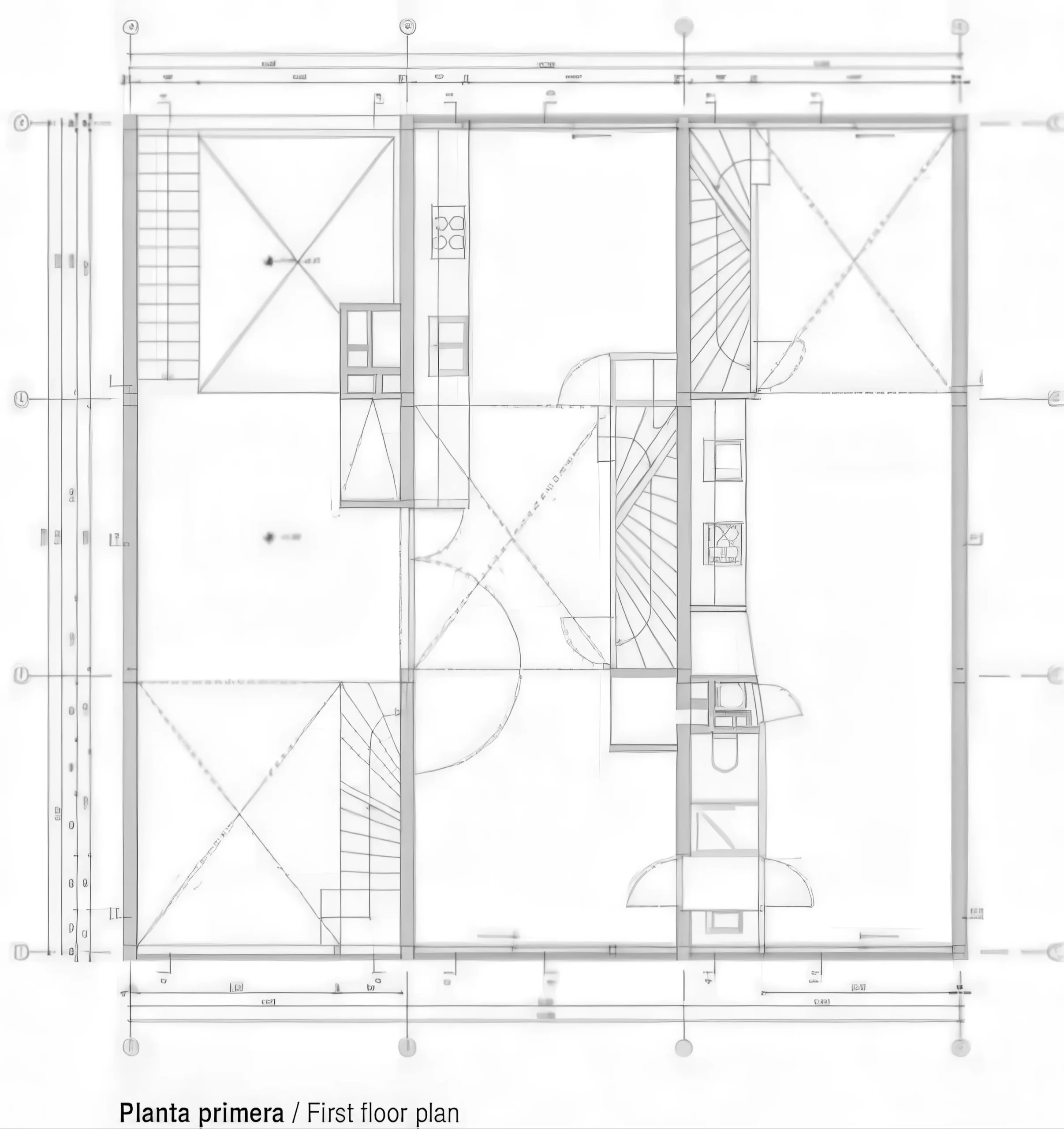
Directional Module Rocha / Directional Module Rocha | 布兰德胡伯建筑事务所|Brandlhuber 布兰德胡伯建筑事务所|Brandlhuber • 2025-11-17 下午12:50 • 公共建筑设计, 建筑师设计, 建筑设计, 文化建筑设计 Directional Module Rocha 海滩住宅位于乌拉圭罗恰,由布兰德胡伯建筑事务所设计。项目采用四向模块概念,通过堆叠复式单元优化阳光与景观朝向。建筑以3.5米×12米为基本模块,旋转组合形成三个独立复式单元,提供灵活居住与工作空间。 设计: 类型: 文化建筑设计 功能: 独立住宅 风格: 现代主义 材料: 混凝土 玻璃 砖材 尺度: 小型建筑 地点:罗恰 时间: 2020年 项目概述 Directional Module Rocha 是位于乌拉圭罗恰的海滩住宅项目,由布兰德胡伯建筑事务所设计。建筑采用3.5米×12米模块化单元,通过旋转堆叠形成三个复式空间,悬挑于泳池上方松林中,展现模块化设计的灵活性与适应性。 设计理念 布兰德胡伯建筑事务所以四向模块概念为核心,通过单元旋转优化建筑朝向。南北向模块提供理想工作光照,东西向模块捕捉晨昏阳光,实现生活与工作空间的完美平衡。Directional Module Rocha 体现了模块化建筑在特定场地中的精准响应。 空间与功能 三个复式单元虽基于相似空间条件,但功能配置各异:一个配备完整厨房,一个仅设简易灶台,另一个仅设户外烧烤区。这种差异化设计支持多种使用模式,既可独立作为公寓使用,也可组合成完整海滩别墅,满足访客接待或单元出租等灵活需求。 材料与技术 建筑采用混凝土框架与砖砌填充墙的经济建造技术,实现四面开窗、双层高空间及独立入口等奢侈体验。采暖通过壁炉解决,窗帘用于划分开放式平面,展现布兰德胡伯建筑事务所在简约构造中创造丰富空间体验的设计能力。 项目特色与启发 Directional Module Rocha 展示了模块化住宅在功能配置与空间组织上的创新可能。布兰德胡伯建筑事务所通过标准化单元的巧妙组合,为建筑师提供了在有限预算下实现高品质居住环境的参考范例,特别适用于度假住宅与多功能居住项目。 设计团队 布兰德胡伯建筑事务所以创新住宅设计与模块化建造技术著称,擅长通过简洁构造逻辑创造灵活多变的空间体验。事务所在住宅建筑领域具有丰富经验,Directional Module Rocha 项目体现了其对居住模式与场地关系的深入思考。 项目概述 Directional Module Rocha 是位于乌拉圭罗恰的海滩住宅项目,由布兰德胡伯建筑事务所设计。建筑采用3.5米×12米模块化单元,通过旋转堆叠形成三个复式空间,悬挑于泳池上方松林中,展现模块化设计的灵活性与适应性。 设计理念 布兰德胡伯建筑事务所以四向模块概念为核心,通过单元旋转优化建筑朝向。南北向模块提供理想工作光照,东西向模块捕捉晨昏阳光,实现生活与工作空间的完美平衡。Directional Module Rocha 体现了模块化建筑在特定场地中的精准响应。 空间与功能 三个复式单元虽基于相似空间条件,但功能配置各异:一个配备完整厨房,一个仅设简易灶台,另一个仅设户外烧烤区。这种差异化设计支持多种使用模式,既可独立作为公寓使用,也可组合成完整海滩别墅,满足访客接待或单元出租等灵活需求。 材料与技术 建筑采用混凝土框架与砖砌填充墙的经济建造技术,实现四面开窗、双层高空间及独立入口等奢侈体验。采暖通过壁炉解决,窗帘用于划分开放式平面,展现布兰德胡伯建筑事务所在简约构造中创造丰富空间体验的设计能力。 项目特色与启发 Directional Module Rocha 展示了模块化住宅在功能配置与空间组织上的创新可能。布兰德胡伯建筑事务所通过标准化单元的巧妙组合,为建筑师提供了在有限预算下实现高品质居住环境的参考范例,特别适用于度假住宅与多功能居住项目。 设计团队 布兰德胡伯建筑事务所以创新住宅设计与模块化建造技术著称,擅长通过简洁构造逻辑创造灵活多变的空间体验。事务所在住宅建筑领域具有丰富经验,Directional Module Rocha 项目体现了其对居住模式与场地关系的深入思考。 本文来自 © 布兰德胡伯建筑事务所|Brandlhuber, 发布于 © 建筑学院官方网站。 未经授权,禁止转载或摘编。 编辑版本版权归 © 建筑学院官方网站 所有, 设计、图纸及照片版权归设计方 © 布兰德胡伯建筑事务所|Brandlhuber ↗ 所有。 查看作者在建筑学院发布的更多作品: 布兰德胡伯建筑事务所|Brandlhuber @ 建筑学院官方网站 Directional Module Rocha复式住宅模块化建筑海滩住宅设计 布兰德胡伯建筑事务所|Brandlhuber事务所 & 设计师 下载原图 收藏 0 关于作者 布兰德胡伯建筑事务所|Brandlhuber事务所 & 设计师 关注私信 8 文章 0 评论 0 粉丝 布兰德胡伯建筑事务所(Brandlhuber+)由阿尔诺·布兰德胡伯(Arno Brandlhuber)于2006年在柏林创立。事务所以其协作性、研究驱动的实践而闻名,工作涵盖建筑、研究项目、展览、出版物及政治介入。其标志性项目“Antivilla”(由废弃内衣工厂改造而成)体现了其对现有建筑改造、可持续性及成本效益的独特探索,并擅长运用混凝土等材料创造灵活、开放的空间。 悬挂花园在洛尔蒙特 / Le Jardin Suspendu in Lormont | RCR 建筑事务所 上一篇 2025-11-17 上午8:50 苏黎世艺术馆扩展项目 Kunsthaus Zurich Extension | 大卫·奇珀菲尔德建筑事务所|David Chipperfield 下一篇 2025-11-18 上午8:50 猜你喜欢 博多库纳儿童村 / Children’s Village in Bodoquena | Estúdio Gustavo Utrabo 2026-03-31 公共建筑设计 凯林眼镜新总部大楼 / Kering Eyewear New Headquarters | SANAA 2026-02-09 公共建筑设计 第五座房子,室外艺术博物馆元素屋 / House No. 5, Museum of Outdoor Arts Element House | MOS 建筑事务所 2025-11-03 公共建筑设计 发表回复 请登录后评论...登录后才能评论 提交