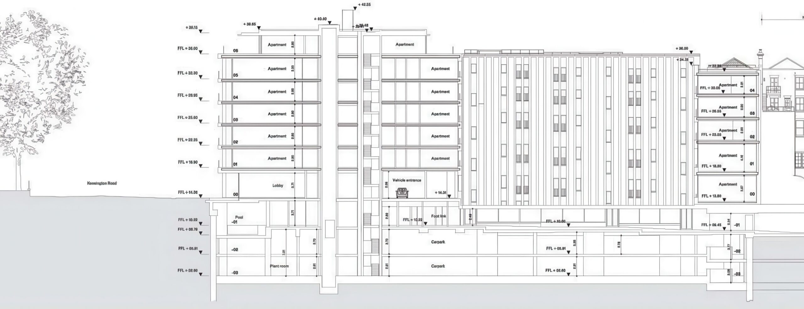
维勒花园住宅区 De Vere Gardens Residential | 大卫·奇珀菲尔德建筑事务所|David Chipperfield 大卫·奇珀菲尔德建筑事务所|David Chipperfield • 2025-11-18 上午8:50 • 公共建筑设计, 建筑师设计, 建筑设计, 文化建筑设计 维勒花园住宅区位于伦敦肯辛顿区,是由大卫·奇珀菲尔德建筑事务所设计的97套高端住宅项目。该项目巧妙融合了维多利亚路和德维尔花园沿线的19世纪联排别墅立面,并新建三座建筑。设计采用波特兰石材和青铜构件,在保护区内实现现代与传统建筑的和谐共生。 设计: 大卫·奇珀菲尔德建筑事务所|David Chipperfield 类型: 文化建筑设计 功能: 独立住宅 风格: 当代建筑 材料: 混凝土 石材 砖材 尺度: 中型建筑 地点:英国 时间: 2010年 项目简介 维勒花园住宅区位于英国伦敦肯辛顿区,毗邻海德公园,是一个包含97套高端住宅的综合开发项目。项目建筑面积未公开,设计时间为2010年代,建成于2018年。 设计理念 大卫·奇珀菲尔德建筑事务所以”新旧融合”为核心设计理念,在保护区内巧妙整合历史建筑立面与新建建筑。设计通过材料延续和比例控制,实现现代建筑与19世纪传统街景的和谐对话。 空间与功能 项目包含29套新建公寓和68套位于保留立面后的住宅单元。中央设有私密庭院,采用白色哑光釉面砖饰面,为周边公寓提供自然采光。住宅布局基于原有窗户和隔墙排列,形成清晰定义、相互关联且比例协调的空间序列。 材料与技术 新建建筑采用后张拉钢筋混凝土结构。肯辛顿路建筑底层手工铺设波特兰石材,上层以薄石材带强调水平线条。立面采用实心青铜栏杆和窗框,维多利亚路建筑使用预制构件,坎宁通道建筑则延续砖砌立面与再造石材带。 设计团队 大卫·奇珀菲尔德建筑事务所成立于1985年,以严谨的现代主义设计闻名,擅长文化建筑、住宅和城市更新项目,注重材料真实性和建筑与环境的对话。 项目简介 维勒花园住宅区位于英国伦敦肯辛顿区,毗邻海德公园,是一个包含97套高端住宅的综合开发项目。项目建筑面积未公开,设计时间为2010年代,建成于2018年。 设计理念 大卫·奇珀菲尔德建筑事务所以”新旧融合”为核心设计理念,在保护区内巧妙整合历史建筑立面与新建建筑。设计通过材料延续和比例控制,实现现代建筑与19世纪传统街景的和谐对话。 空间与功能 项目包含29套新建公寓和68套位于保留立面后的住宅单元。中央设有私密庭院,采用白色哑光釉面砖饰面,为周边公寓提供自然采光。住宅布局基于原有窗户和隔墙排列,形成清晰定义、相互关联且比例协调的空间序列。 材料与技术 新建建筑采用后张拉钢筋混凝土结构。肯辛顿路建筑底层手工铺设波特兰石材,上层以薄石材带强调水平线条。立面采用实心青铜栏杆和窗框,维多利亚路建筑使用预制构件,坎宁通道建筑则延续砖砌立面与再造石材带。 设计团队 大卫·奇珀菲尔德建筑事务所成立于1985年,以严谨的现代主义设计闻名,擅长文化建筑、住宅和城市更新项目,注重材料真实性和建筑与环境的对话。 本文来自 © 大卫·奇珀菲尔德建筑事务所|David Chipperfield, 发布于 © 建筑学院官方网站。 未经授权,禁止转载或摘编。 编辑版本版权归 © 建筑学院官方网站 所有, 设计、图纸及照片版权归设计方 © 大卫·奇珀菲尔德建筑事务所|David Chipperfield ↗ 所有。 查看作者在建筑学院发布的更多作品: 大卫·奇珀菲尔德建筑事务所|David Chipperfield @ 建筑学院官方网站 伦敦肯辛顿大卫·奇珀菲尔德波特兰石材维勒花园住宅区高端住宅 大卫·奇珀菲尔德建筑事务所|David Chipperfield事务所 & 设计师 下载原图 收藏 0 关于作者 大卫·奇珀菲尔德建筑事务所|David Chipperfield事务所 & 设计师 关注私信 22 文章 0 评论 1 粉丝 大卫·奇珀菲尔德建筑事务所由2023年普利兹克奖得主大卫·奇珀菲尔德爵士于1985年创立,在伦敦、柏林、米兰、上海等地设有办公室。事务所以优雅克制、注重永恒感的设计风格闻名,尤其擅长文化建筑与历史建筑改造,代表作包括柏林新博物馆重建、上海西岸美术馆和洛克外滩源项目。 Directional Module Rocha / Directional Module Rocha | 布兰德胡伯建筑事务所|Brandlhuber 上一篇 2025-11-17 下午12:50 梅诺卡的Son Parc住宅 / Son Parc House in Menorca | RCR 建筑事务所|RCR Arquitectes 下一篇 2025-11-19 上午8:50 猜你喜欢 Moganshan Road 办公楼 Office Building Moganshan Road | 大卫·奇珀菲尔德建筑事务所|David Chipperfield 2025-11-27 公共建筑设计 诺贝尔中心 Nobel Center | 大卫·奇珀菲尔德建筑事务所|David Chipperfield 2025-11-13 公共建筑设计 艺术、里昂 Arts, Reims | 大卫·奇珀菲尔德建筑事务所|David Chipperfield 2025-11-18 公共建筑设计 克利斯堡住宅楼 Killesberg Residential Building | 大卫·奇珀菲尔德建筑事务所|David Chipperfield 2025-11-25 公共建筑设计 苏黎世艺术馆扩展项目 Kunsthaus Zurich Extension | 大卫·奇珀菲尔德建筑事务所|David Chipperfield 2025-11-18 公共建筑设计 拉韦雷利城堡中的卡斯特罗索非兹科。 Ravellins of Castello Sforzesco | 大卫·奇珀菲尔德建筑事务所|David Chipperfield 2025-11-26 公共建筑设计 发表回复 请登录后评论...登录后才能评论 提交