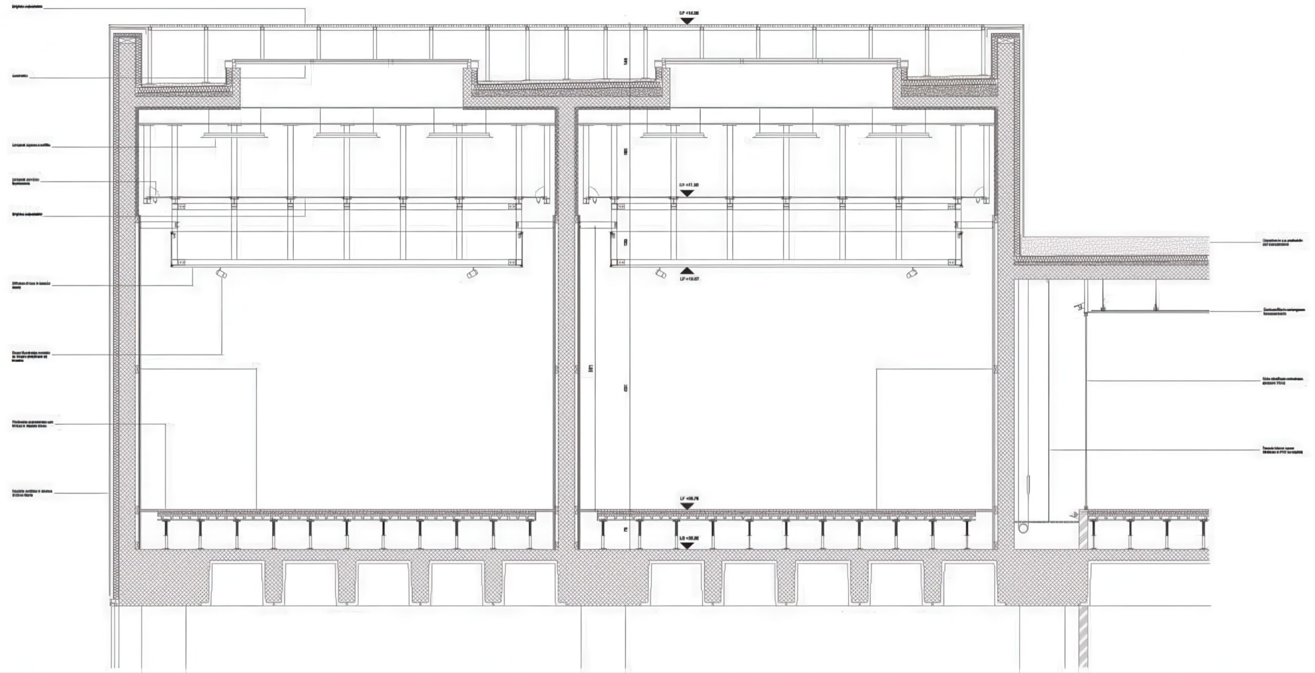
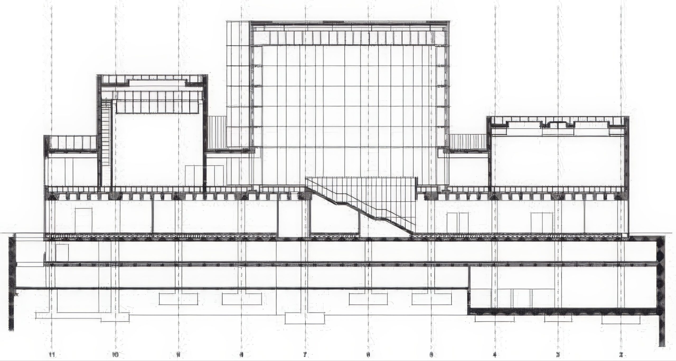
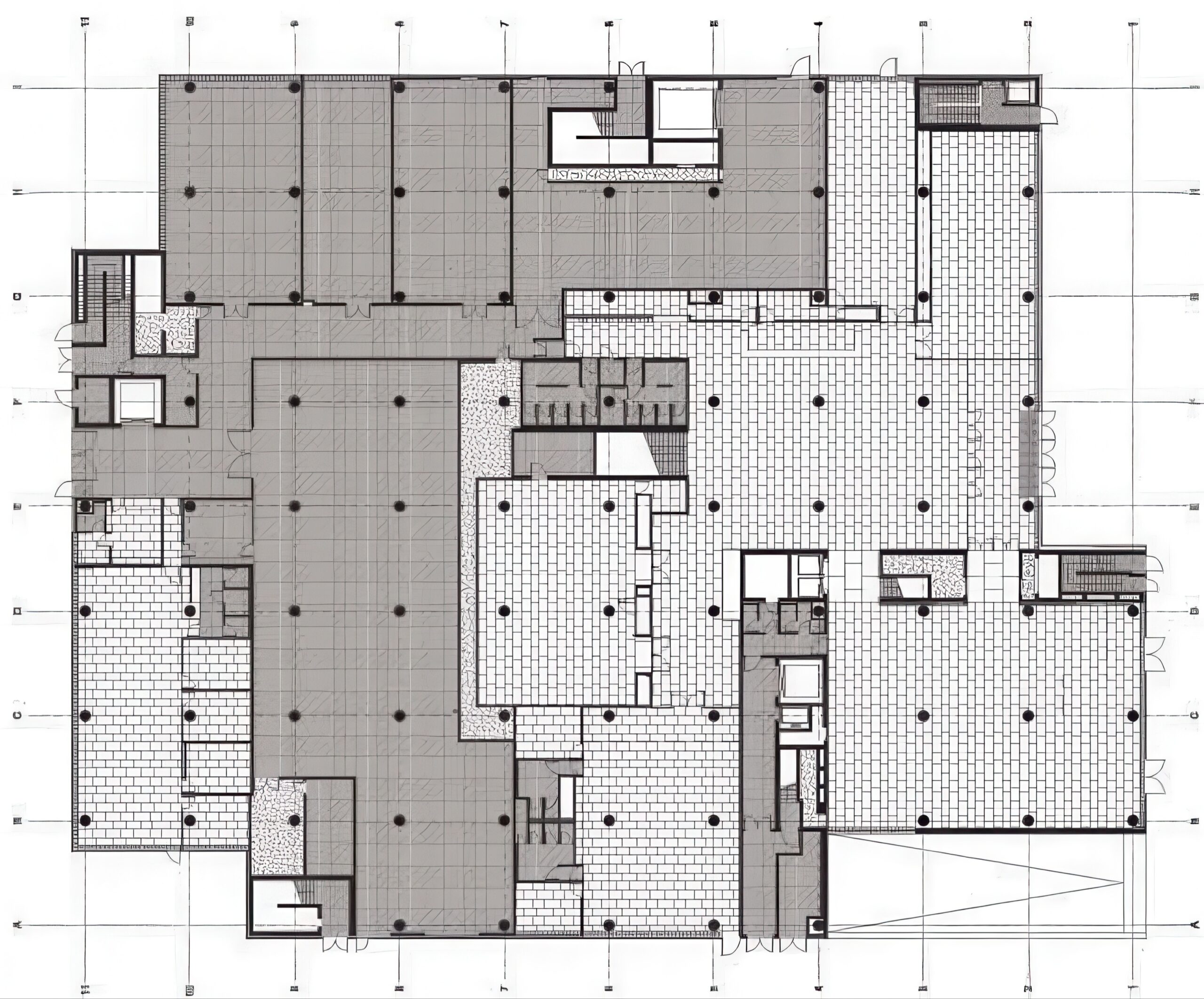
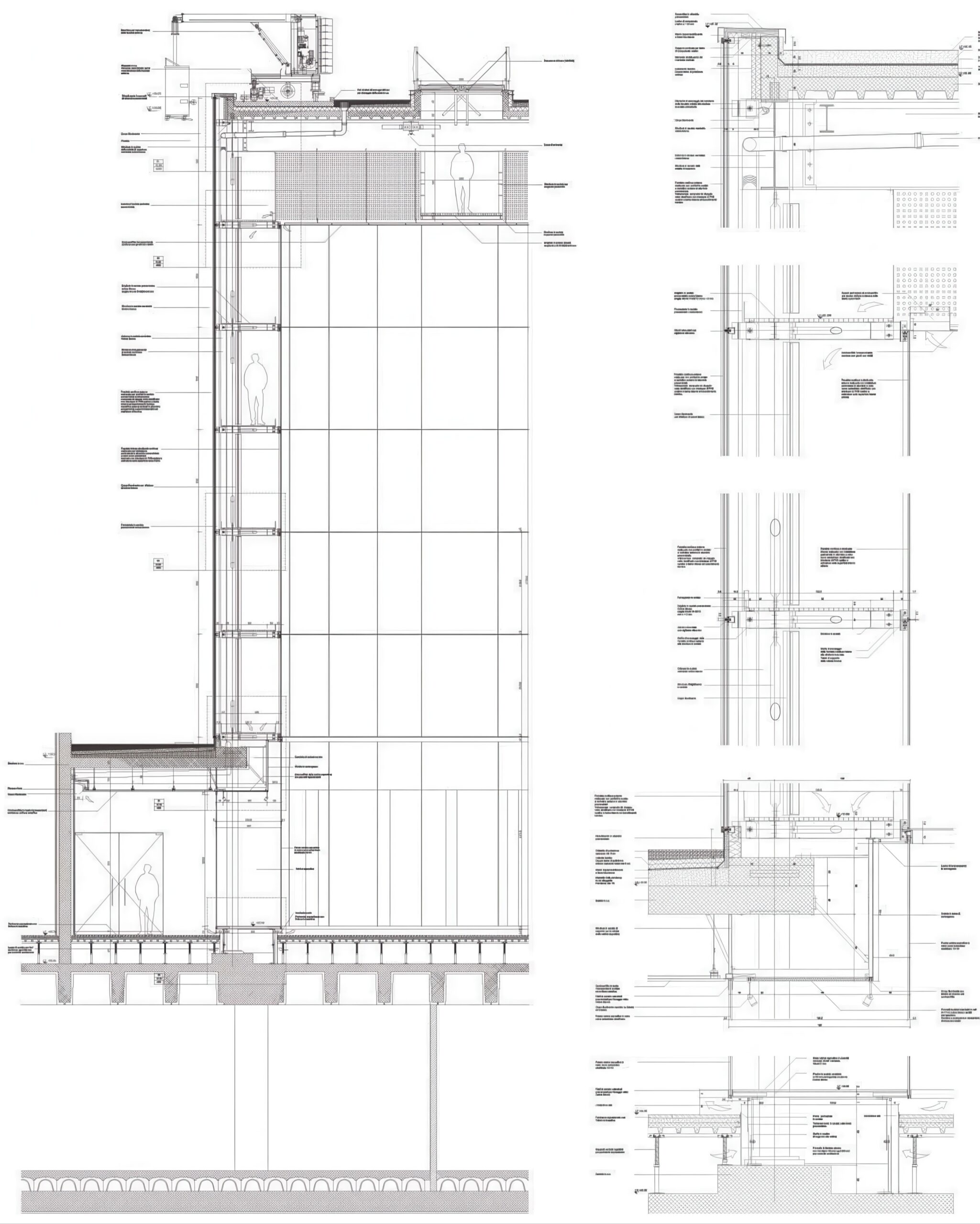
安萨尔多文化博物馆 Ansaldo Museum of Cultures | 大卫·奇珀菲尔德建筑事务所|David Chipperfield 大卫·奇珀菲尔德建筑事务所|David Chipperfield • 2025-11-18 上午8:50 • 公共建筑设计, 建筑师设计, 建筑设计, 文化建筑设计 安萨尔多文化博物馆位于意大利米兰,由大卫·奇珀菲尔德建筑事务所设计。该项目将废弃的安萨尔多工业厂房改造为文化综合体,融合永久民族志收藏、临时展览空间与公共设施。设计以正交几何体量与中央玻璃中庭为核心,通过钛锌板立面与工业遗产对话,创造新旧交融的文化场所。 设计: 大卫·奇珀菲尔德建筑事务所|David Chipperfield 类型: 文化建筑设计 功能: 独立住宅 风格: 当代建筑 材料: 钢材 石材 金属板 尺度: 微型建筑与装置 地点:意大利 时间: 2008年 项目简介 安萨尔多文化博物馆位于意大利米兰,前身为安萨尔多工业厂房改造项目。建筑类型为文化博物馆,总面积约15,000平方米,设计于2000年,2010年建成。 设计理念 设计灵感源自米兰传统建筑秩序与内部复杂空间的对比。通过正交几何体量围绕中央灯笼状结构,形成内向庭院,实现工业遗产与现代功能的有机融合。 空间与功能 首层设置图书馆、书店、咖啡厅、餐厅等公共设施,地下设大型停车场。一层围绕玻璃中庭布置临时展厅、礼堂及永久展览空间,展示非欧洲文化艺术品。 材料与技术 采用钛锌板覆层呼应工业遗产,中央玻璃中庭作为建筑主立面。通过空间内外反转策略,将内部庭院转化为建筑主要展示面,实现新旧结构的无缝衔接。 设计团队 大卫·奇珀菲尔德建筑事务所以精致简约的设计语言著称,擅长历史建筑改造与文化项目,作品强调材料真实性与空间体验。 项目简介 安萨尔多文化博物馆位于意大利米兰,前身为安萨尔多工业厂房改造项目。建筑类型为文化博物馆,总面积约15,000平方米,设计于2000年,2010年建成。 设计理念 设计灵感源自米兰传统建筑秩序与内部复杂空间的对比。通过正交几何体量围绕中央灯笼状结构,形成内向庭院,实现工业遗产与现代功能的有机融合。 空间与功能 首层设置图书馆、书店、咖啡厅、餐厅等公共设施,地下设大型停车场。一层围绕玻璃中庭布置临时展厅、礼堂及永久展览空间,展示非欧洲文化艺术品。 材料与技术 采用钛锌板覆层呼应工业遗产,中央玻璃中庭作为建筑主立面。通过空间内外反转策略,将内部庭院转化为建筑主要展示面,实现新旧结构的无缝衔接。 设计团队 大卫·奇珀菲尔德建筑事务所以精致简约的设计语言著称,擅长历史建筑改造与文化项目,作品强调材料真实性与空间体验。 本文来自 © 大卫·奇珀菲尔德建筑事务所|David Chipperfield, 发布于 © 建筑学院官方网站。 未经授权,禁止转载或摘编。 编辑版本版权归 © 建筑学院官方网站 所有, 设计、图纸及照片版权归设计方 © 大卫·奇珀菲尔德建筑事务所|David Chipperfield ↗ 所有。 查看作者在建筑学院发布的更多作品: 大卫·奇珀菲尔德建筑事务所|David Chipperfield @ 建筑学院官方网站 大卫·奇珀菲尔德安萨尔多文化博物馆文化建筑设计米兰钛锌板 大卫·奇珀菲尔德建筑事务所|David Chipperfield事务所 & 设计师 下载原图 收藏 0 关于作者 大卫·奇珀菲尔德建筑事务所|David Chipperfield事务所 & 设计师 关注私信 22 文章 0 评论 1 粉丝 大卫·奇珀菲尔德建筑事务所由2023年普利兹克奖得主大卫·奇珀菲尔德爵士于1985年创立,在伦敦、柏林、米兰、上海等地设有办公室。事务所以优雅克制、注重永恒感的设计风格闻名,尤其擅长文化建筑与历史建筑改造,代表作包括柏林新博物馆重建、上海西岸美术馆和洛克外滩源项目。 希伯伦清真寺及文化中心 / Mosque and Cultural Centre, Heilbronn | 贝尔纳多·巴德尔|Bernardo Bader 上一篇 2025-11-17 下午12:50 梅诺卡的Son Parc住宅 / Son Parc House in Menorca | RCR 建筑事务所|RCR Arquitectes 下一篇 2025-11-19 上午8:50 猜你喜欢 国际当代雕塑博物馆 MIEC / International Museum of Contemporary Sculpture [MIEC] | 阿尔瓦罗·西扎|Álvaro Siza 2025-12-19 公共建筑设计 欧洲艾莱大道21号办公楼 Office Building ‘Europaallee 21’ | 大卫·奇珀菲尔德建筑事务所|David Chipperfield 2025-11-24 公共建筑设计 希伯伦清真寺及文化中心 / Mosque and Cultural Centre, Heilbronn | 贝尔纳多·巴德尔|Bernardo Bader 2026-01-18 文化建筑设计 特定性和自主性 / Specifity and Autonomy | 巴罗齐与维加建筑事务所 2025-11-11 公共建筑设计 青岛文化艺术中心 / Qingdao Culture and Art Center | 霍尔 Steven Holl 2025-11-11 公共建筑设计 库哈斯为Prada基金会总部设计的白色塔楼——简单体量的不规则变化 2018-04-23 办公建筑设计 发表回复 请登录后评论...登录后才能评论 提交