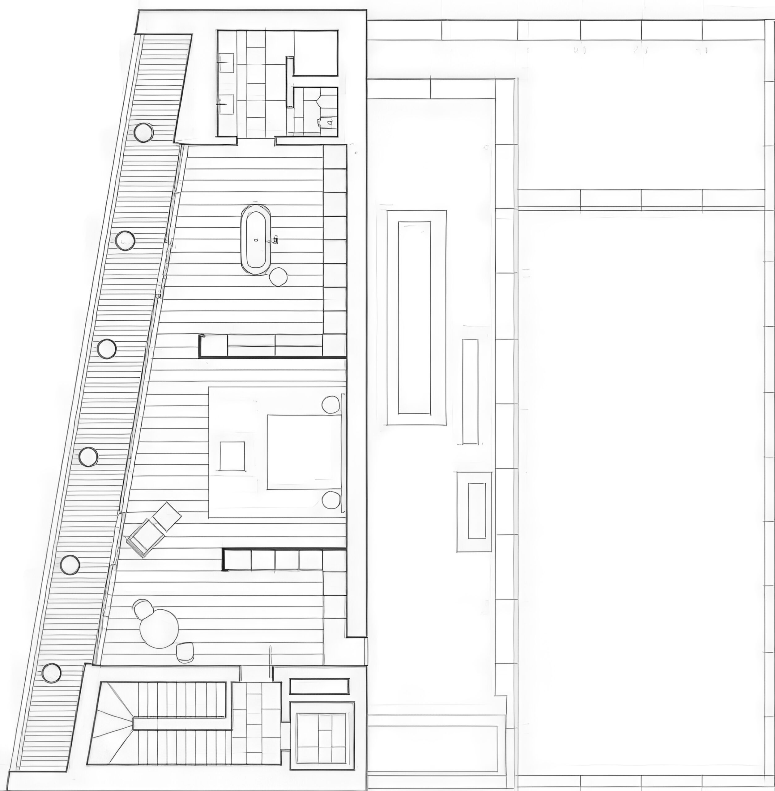
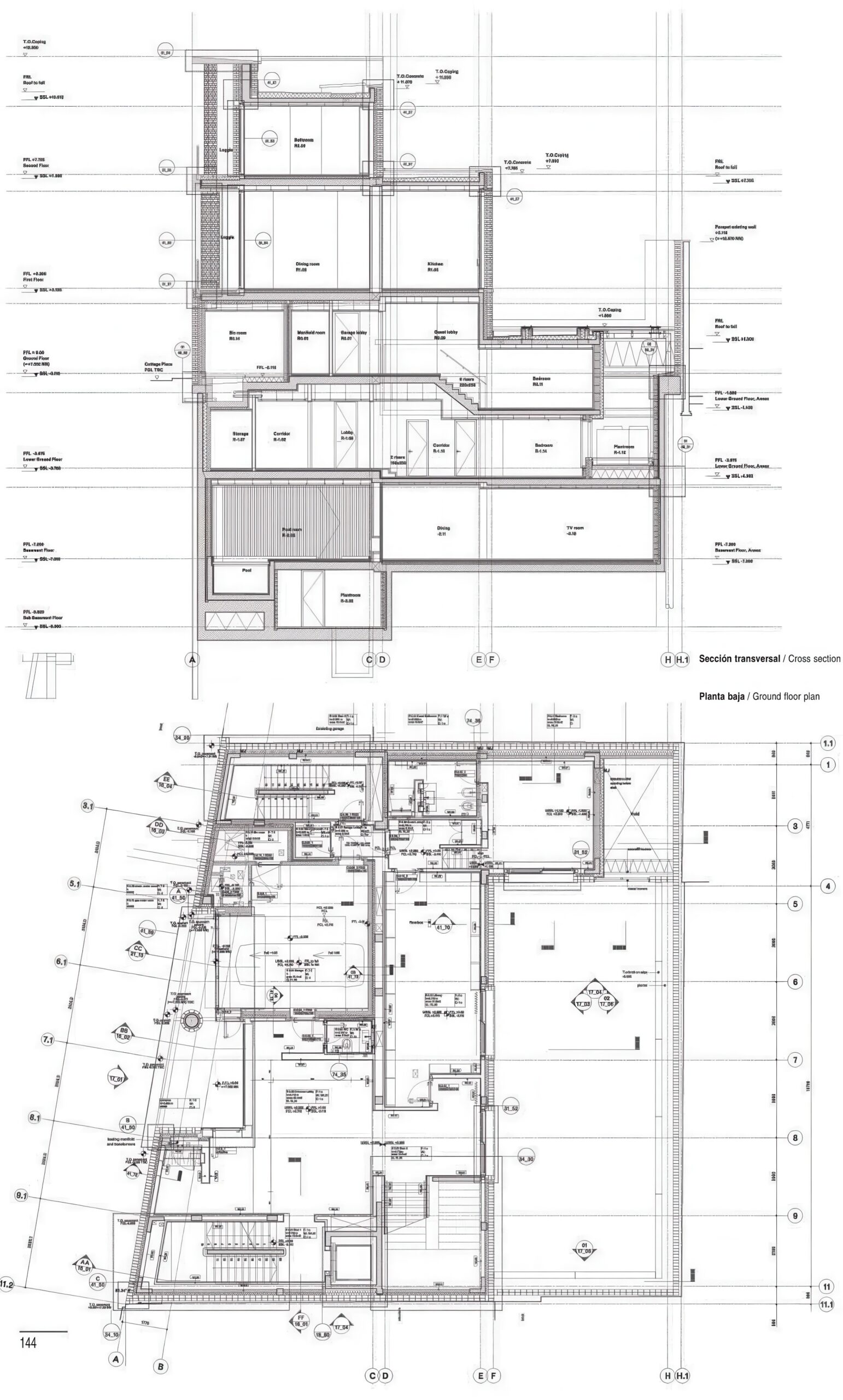
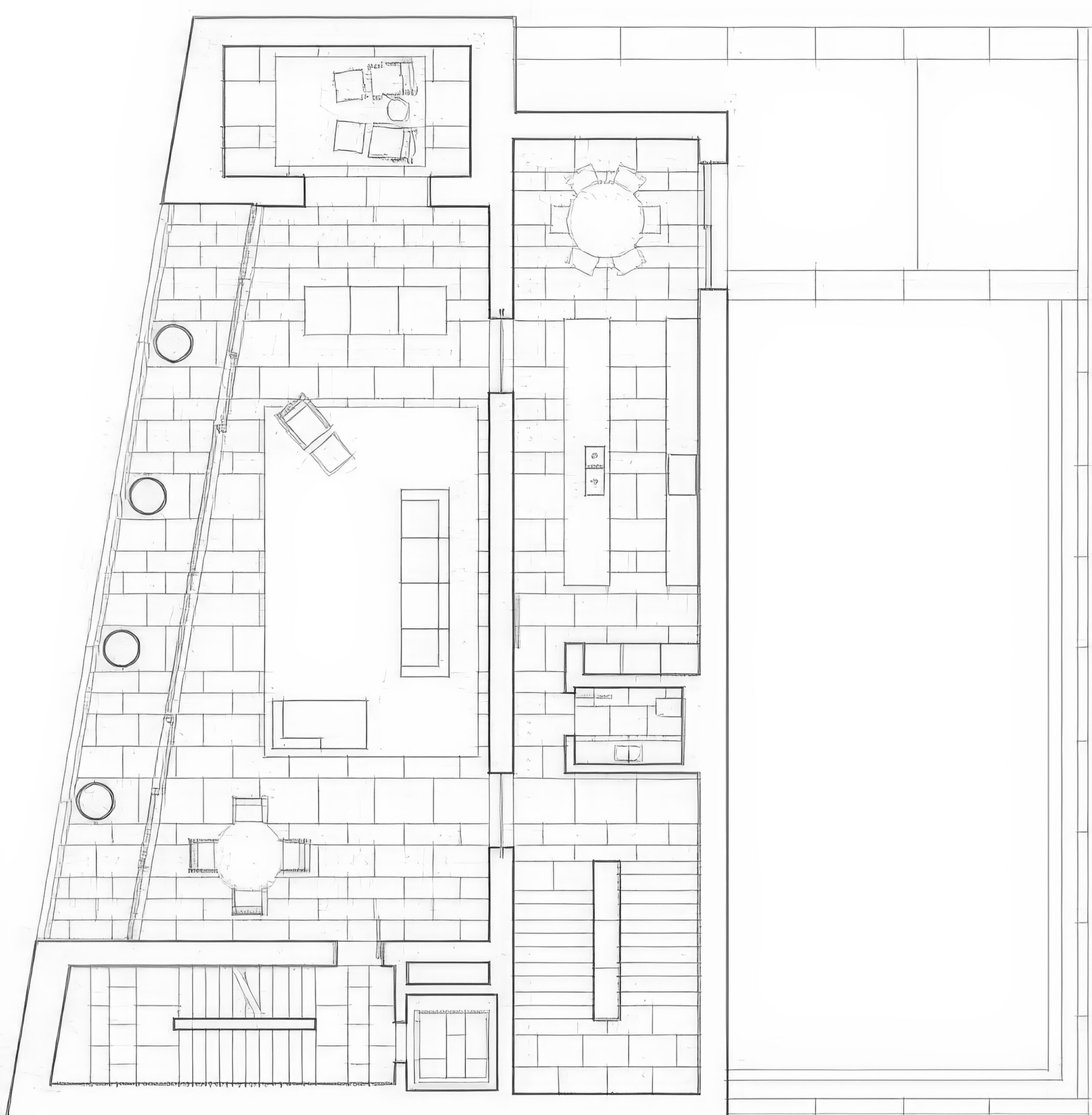
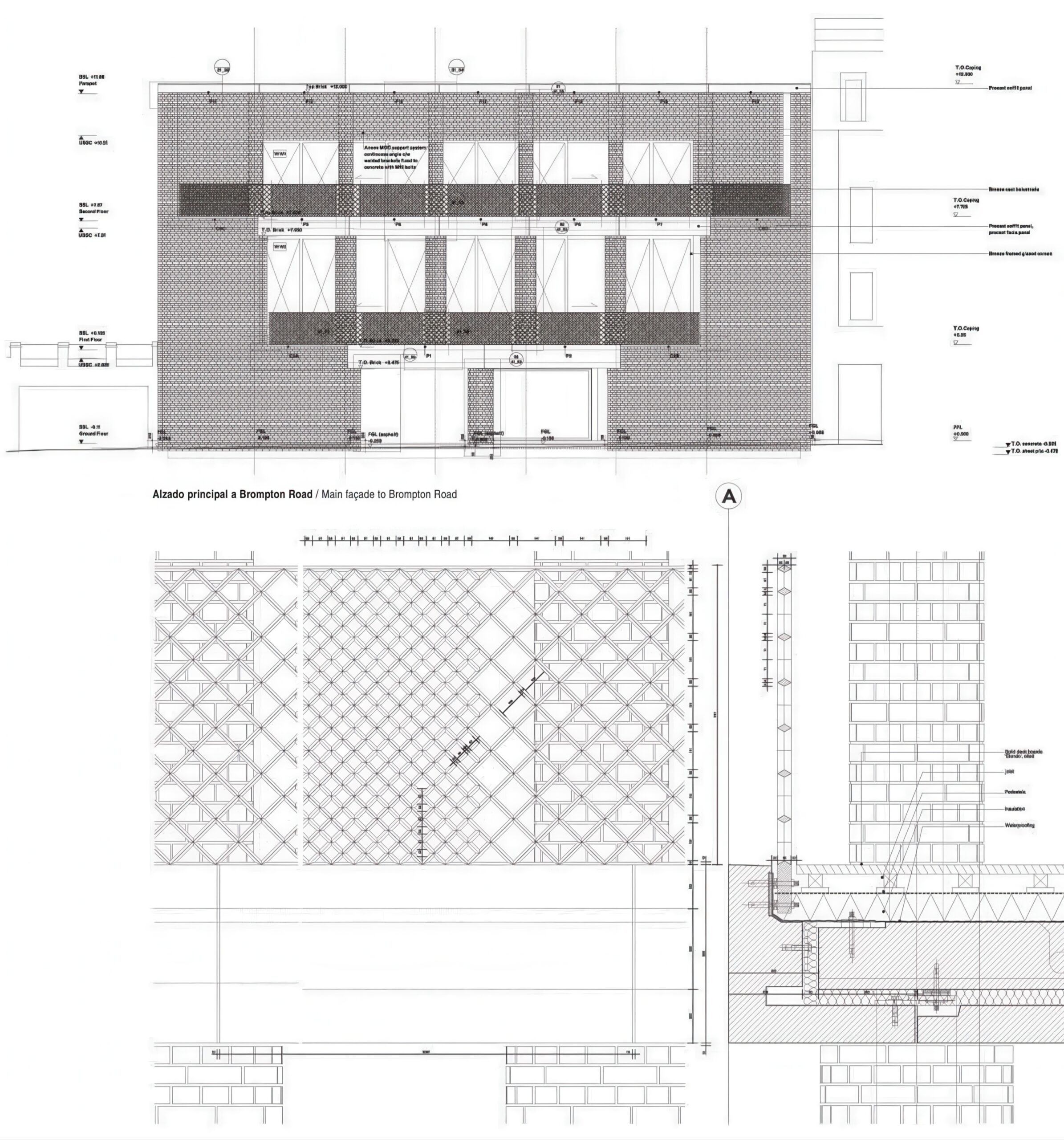
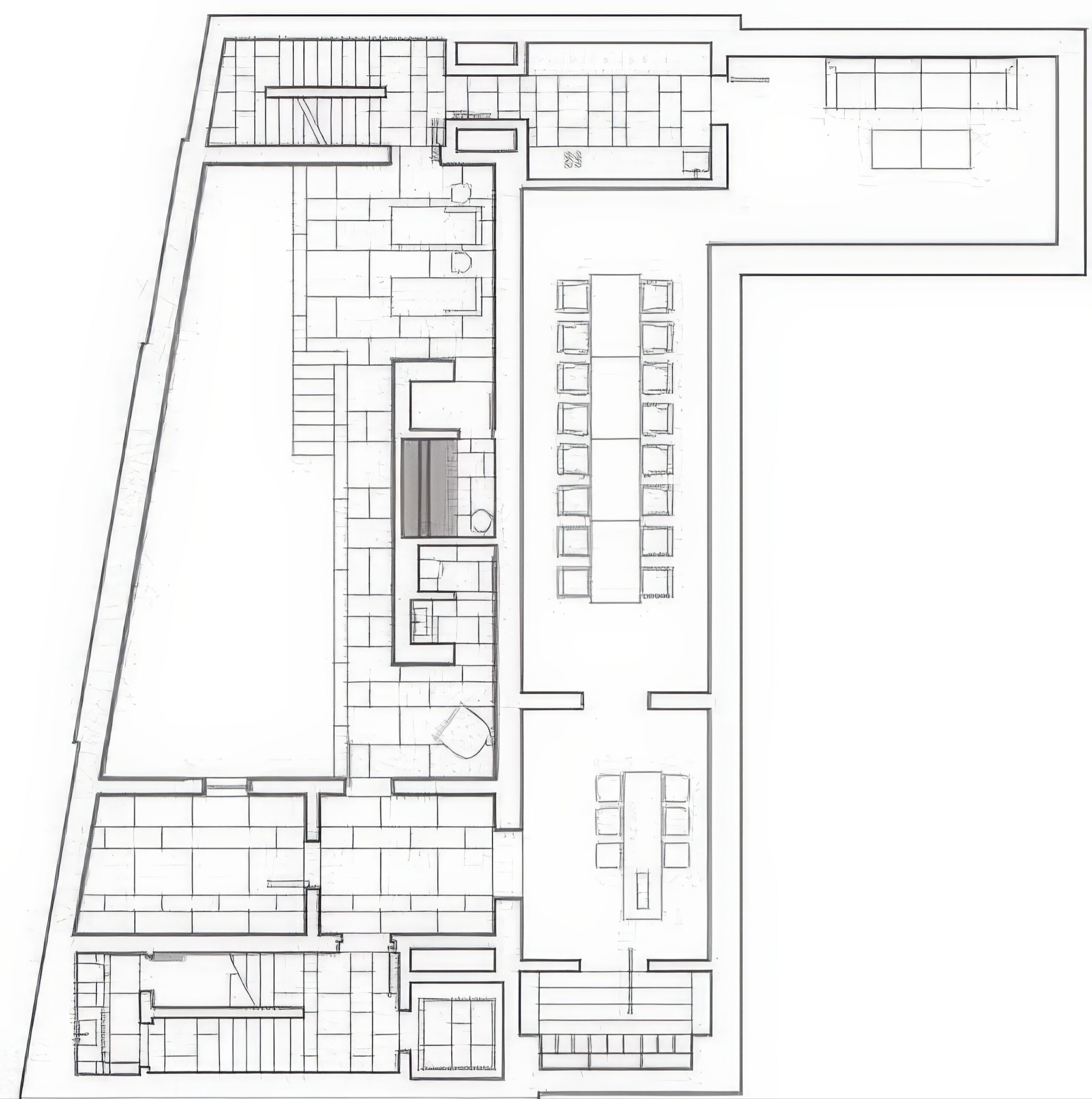
肯辛顿私人住宅 Private House in Kensington | 大卫·奇珀菲尔德建筑事务所|David Chipperfield 大卫·奇珀菲尔德建筑事务所|David Chipperfield • 2025-11-28 上午8:50 • 公共建筑设计, 建筑师, 建筑设计, 文化建筑设计 肯辛顿私人住宅位于伦敦布朗普顿路保护区,由大卫·奇珀菲尔德建筑事务所设计。这座豪华住宅包含五层空间,设有主卧套房、客厅、餐厅、水疗中心和私人影院。设计采用对称砖砌立面、双柱廊和青铜细部,巧妙平衡历史文脉与现代居住需求,展现了精致的材料工艺与空间组织。 设计: 大卫·奇珀菲尔德建筑事务所|David Chipperfield 类型: 文化建筑设计 功能: 独立住宅 风格: 当代建筑 材料: 混凝土 木材 玻璃 砖材 金属板 尺度: 小型建筑 地点:伦敦 时间: 2009年 项目简介 肯辛顿私人住宅位于伦敦布朗普顿路保护区,是一座五层豪华住宅,建筑面积约800平方米,设计于2009年获得规划许可。 设计理念 设计团队以现代手法回应历史文脉,通过对称砖砌立面、双柱廊和精确的体量控制,在紧凑的城市地块中创造高品质居住环境,同时尊重周边二级保护建筑的光照与视线要求。 空间与功能 建筑采用复杂剖面组织,首层设入口大厅、车库和书房,主层布置客厅与餐厨区,上层为主卧套房,地下层包含水疗中心、泳池和私人影院。双动线设计确保公私区域有效分离。 材料与技术 主体结构采用现浇混凝土,外覆215毫米手工砖墙,预制混凝土檐口与窗台。室内运用石灰华地板、橡木门窗框和抛光石膏墙面,青铜门窗框架与定制细部体现精湛工艺。 设计团队 大卫·奇珀菲尔德建筑事务所创立于1985年,以严谨的现代主义设计闻名,擅长在历史环境中创造当代建筑,作品涵盖文化、住宅和城市更新项目。 项目简介 肯辛顿私人住宅位于伦敦布朗普顿路保护区,是一座五层豪华住宅,建筑面积约800平方米,设计于2009年获得规划许可。 设计理念 设计团队以现代手法回应历史文脉,通过对称砖砌立面、双柱廊和精确的体量控制,在紧凑的城市地块中创造高品质居住环境,同时尊重周边二级保护建筑的光照与视线要求。 空间与功能 建筑采用复杂剖面组织,首层设入口大厅、车库和书房,主层布置客厅与餐厨区,上层为主卧套房,地下层包含水疗中心、泳池和私人影院。双动线设计确保公私区域有效分离。 材料与技术 主体结构采用现浇混凝土,外覆215毫米手工砖墙,预制混凝土檐口与窗台。室内运用石灰华地板、橡木门窗框和抛光石膏墙面,青铜门窗框架与定制细部体现精湛工艺。 设计团队 大卫·奇珀菲尔德建筑事务所创立于1985年,以严谨的现代主义设计闻名,擅长在历史环境中创造当代建筑,作品涵盖文化、住宅和城市更新项目。 本文来自 © 大卫·奇珀菲尔德建筑事务所|David Chipperfield, 发布于 © 建筑学院官方网站。 未经授权,禁止转载或摘编。 编辑版本版权归 © 建筑学院官方网站 所有, 设计、图纸及照片版权归设计方 © 大卫·奇珀菲尔德建筑事务所|David Chipperfield ↗ 所有。 查看作者在建筑学院发布的更多作品: 大卫·奇珀菲尔德建筑事务所|David Chipperfield @ 建筑学院官方网站 伦敦建筑大卫·奇珀菲尔德砖砌立面肯辛顿私人住宅豪华住宅设计 大卫·奇珀菲尔德建筑事务所|David Chipperfield事务所 & 设计师 下载原图 收藏 0 关于作者 大卫·奇珀菲尔德建筑事务所|David Chipperfield事务所 & 设计师 关注私信 22 文章 0 评论 1 粉丝 大卫·奇珀菲尔德建筑事务所由2023年普利兹克奖得主大卫·奇珀菲尔德爵士于1985年创立,在伦敦、柏林、米兰、上海等地设有办公室。事务所以优雅克制、注重永恒感的设计风格闻名,尤其擅长文化建筑与历史建筑改造,代表作包括柏林新博物馆重建、上海西岸美术馆和洛克外滩源项目。 乌德米勒喷射塔博物馆 Windermere Jetty Museum | 卡莫迪·格罗克建筑事务所|Carmody Groarke 上一篇 2025-11-28 上午12:50 博卡苏尔公民区 Boca Sur Civic District | 斯米里扬·拉迪奇|Smiljan Radić 下一篇 2025-11-29 上午12:50 猜你喜欢 皇家咖啡馆酒店 Hotel Café Royal | 大卫·奇珀菲尔德建筑事务所|David Chipperfield 2025-11-08 商业与综合建筑 Bötzow啤酒厂的改造 Conversion of Bötzow Brewery | 大卫·奇珀菲尔德建筑事务所|David Chipperfield 2025-11-25 公共建筑设计 圣路易斯艺术博物馆,东楼 Saint Louis Art Museum,East Building | 大卫·奇珀菲尔德建筑事务所|David 2025-11-25 公共建筑设计 纽约街艺术博物馆 Newport Street Gallery | 卡鲁索·圣约翰建筑事务所|Caruso St John 2025-12-02 公共建筑设计 Haddon Baptist Church巴士站 / Bus Stop for Haddon Baptist Church | 安妮·霍尔特罗普|Anne Holtrop 2026-01-04 交通建筑 爱茉莉太平洋总部 Amorepacific Headquarters | 大卫·奇珀菲尔德建筑事务所|David Chipperfield 2025-11-05 公共建筑设计 发表回复 请登录后评论...登录后才能评论 提交