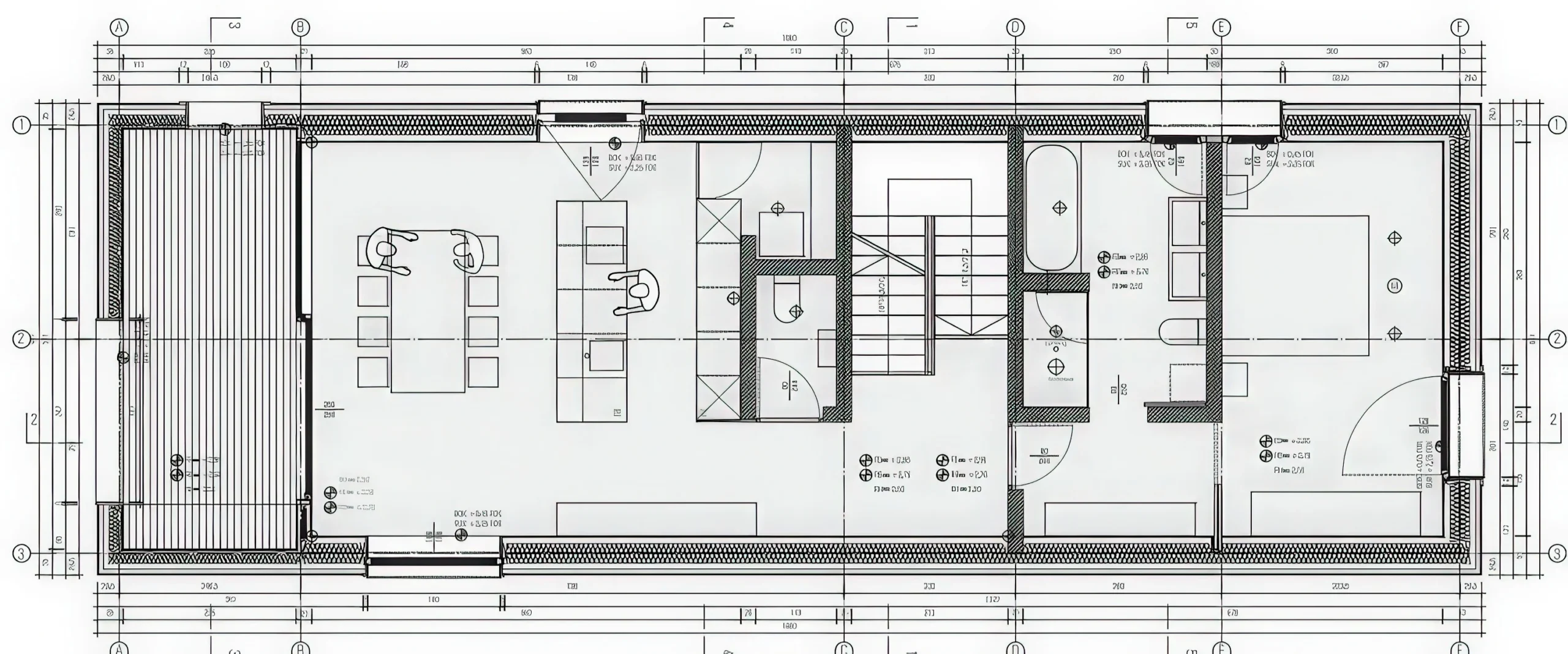
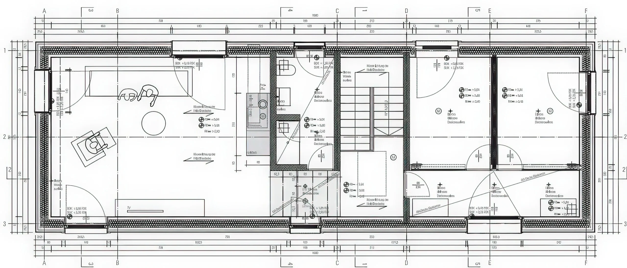
House at the Bäumle / Vertical Living | 贝尔纳多·巴德尔|Bernardo Bader 贝尔纳多·巴德尔|Bernardo Bader • 2025-11-19 下午12:50 • 公共建筑设计, 建筑师, 建筑设计, 文化建筑设计 House at the Bäumle 位于奥地利福拉尔贝格州洛豪,由贝尔纳多·巴德尔设计。这座三层独立住宅巧妙利用狭窄坡地,通过垂直布局回应场地限制,以混凝土核心与木饰面外墙创造与自然景观的紧密对话。 设计: 贝尔纳多·巴德尔|Bernardo Bader 类型: 文化建筑设计 功能: 独立住宅 风格: 地域主义 材料: 混凝土 木材 玻璃 尺度: 小型建筑 地点:洛豪 时间: 2016年 项目概述 House at the Bäumle 位于奥地利福拉尔贝格州洛豪,是一座三层独立住宅。项目建于2015-2016年,建筑面积约200平方米,巧妙利用狭窄坡地,通过垂直布局最大化利用有限场地。 设计理念 贝尔纳多·巴德尔以场地限制为设计出发点,将建筑紧邻南侧道路布置,放弃与邻居保持距离的传统做法。设计灵感源自当地农舍建筑,通过现代手法重新诠释传统形式,在紧凑场地中创造丰富的空间体验。 空间与功能 House at the Bäumle 采用垂直功能分区:首层设小型工作室,二层布置厨房与餐厅,顶层为带壁炉的起居空间。每层均设有精心布置的窗户,分别框取湖泊、溪流和山景,创造多样化的视觉体验。小型凉廊提供户外休憩空间。 材料与技术 建筑采用混凝土核心结构,外墙使用染色木饰面。屋顶采用传统双坡形式,内部使用冷杉木板和灰木地板。建筑注重热工性能,采用多层保温系统,配备地暖系统,体现可持续设计理念。 项目特色与启发 House at the Bäumle 展示了在限制性场地中创造高品质居住空间的潜力。项目对传统建筑语言的现代转译,为小型住宅设计提供了创新思路,体现了建筑与自然环境和谐共生的设计哲学。 设计团队 贝尔纳多·巴德尔建筑事务所位于奥地利福拉尔贝格,以精致细腻的设计手法著称。事务所专注于住宅与文化建筑,善于将地域传统与现代需求相结合,创造具有场所精神的建筑作品。 项目概述 House at the Bäumle 位于奥地利福拉尔贝格州洛豪,是一座三层独立住宅。项目建于2015-2016年,建筑面积约200平方米,巧妙利用狭窄坡地,通过垂直布局最大化利用有限场地。 设计理念 贝尔纳多·巴德尔以场地限制为设计出发点,将建筑紧邻南侧道路布置,放弃与邻居保持距离的传统做法。设计灵感源自当地农舍建筑,通过现代手法重新诠释传统形式,在紧凑场地中创造丰富的空间体验。 空间与功能 House at the Bäumle 采用垂直功能分区:首层设小型工作室,二层布置厨房与餐厅,顶层为带壁炉的起居空间。每层均设有精心布置的窗户,分别框取湖泊、溪流和山景,创造多样化的视觉体验。小型凉廊提供户外休憩空间。 材料与技术 建筑采用混凝土核心结构,外墙使用染色木饰面。屋顶采用传统双坡形式,内部使用冷杉木板和灰木地板。建筑注重热工性能,采用多层保温系统,配备地暖系统,体现可持续设计理念。 项目特色与启发 House at the Bäumle 展示了在限制性场地中创造高品质居住空间的潜力。项目对传统建筑语言的现代转译,为小型住宅设计提供了创新思路,体现了建筑与自然环境和谐共生的设计哲学。 设计团队 贝尔纳多·巴德尔建筑事务所位于奥地利福拉尔贝格,以精致细腻的设计手法著称。事务所专注于住宅与文化建筑,善于将地域传统与现代需求相结合,创造具有场所精神的建筑作品。 本文来自 © 贝尔纳多·巴德尔|Bernardo Bader, 发布于 © 建筑学院官方网站。 未经授权,禁止转载或摘编。 编辑版本版权归 © 建筑学院官方网站 所有, 设计、图纸及照片版权归设计方 © 贝尔纳多·巴德尔|Bernardo Bader ↗ 所有。 查看作者在建筑学院发布的更多作品: 贝尔纳多·巴德尔|Bernardo Bader @ 建筑学院官方网站 house at the baeumle奥地利住宅独立住宅设计贝尔纳多·巴德尔 贝尔纳多·巴德尔|Bernardo Bader事务所 & 设计师 下载原图 收藏 0 关于作者 贝尔纳多·巴德尔|Bernardo Bader事务所 & 设计师 关注私信 21 文章 0 评论 0 粉丝 贝尔纳多·巴德尔(Bernardo Bader)是一位出生于布雷根策瓦尔的奥地利建筑师-2。他于2003年创立自己的事务所,其作品深深植根于地域性,以精巧的细节和对自然与文化关系的独特诠释而闻名。巴德尔曾多次获奖,包括2007年青年建筑Weissenhof奖、2012年及2017年的Piranesi奖,并在2013年荣获著名的阿卡汗建筑奖。 Gemini 住宅 / Gemini Residences | MVRDV 建筑事务所 上一篇 2025-11-19 下午12:50 谜餐厅 Enigma Restaurant | RCR 建筑事务所 下一篇 2025-11-19 下午12:50 猜你喜欢 CASA EN FONTINHA / House in Fontinha | 艾雷斯·马特乌斯建筑事务所|Aires Mateus 2025-11-14 公共建筑设计 弗恩斯住宅,克鲁姆赫希 / House by the Fens, Krumbach | 贝尔纳多·巴德尔|Bernardo Bader 2025-11-14 公共建筑设计 伊斯兰陵墓 / Islamic Cemetery Altach | 贝尔纳多·巴德尔建筑事务所 2025-11-17 公共建筑设计 儿童之家 / Children’s House | 贝尔纳多·巴德尔|Bernardo Bader 2026-01-17 公共建筑设计 苏西韦格尔幼儿园 / Susi Weigel Kindergarten | 贝尔纳多·巴德尔建筑事务所 2025-11-19 公共建筑设计 阿赫玛德巴德住宅 Ahmedabad Residence | 孟买工作室(Studio Mumbai)|Studio Mumbai 2026-01-15 住宅室内设计 发表回复 请登录后评论...登录后才能评论 提交