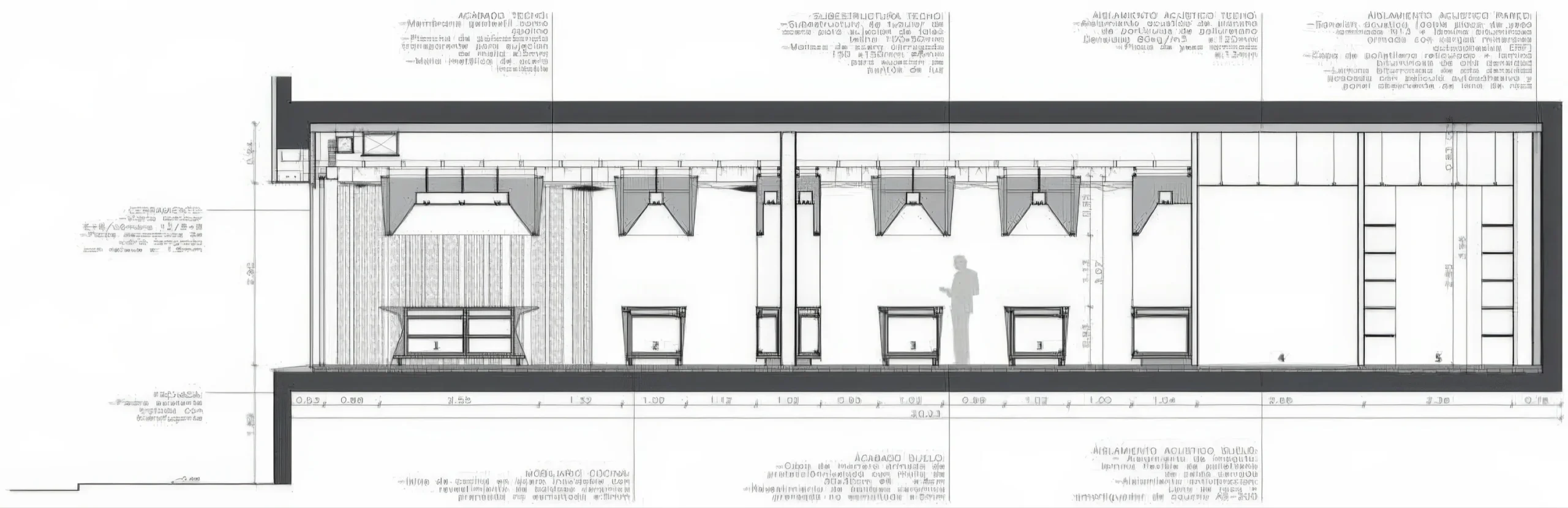
谜餐厅 Enigma Restaurant | RCR 建筑事务所 RCR 建筑事务所|RCR Arquitectes • 2025-11-19 下午12:50 • 室内设计, 建筑设计 谜餐厅 Enigma Restaurant 由 RCR 建筑事务所设计,位于西班牙巴塞罗那扩建区,通过”云朵”概念创造独特的餐饮空间体验,将阿德里亚兄弟的美食理念与建筑空间完美融合。 设计: RCR 建筑事务所|RCR Arquitectes 类型: 建筑设计 功能: 文化中心 风格: 当代建筑 材料: 混凝土 钢材 玻璃 石材 尺度: 中型建筑 地点:纳雅克 时间: 2016年 项目概述 谜餐厅 Enigma Restaurant 位于西班牙巴塞罗那扩建区,是一家高端餐饮空间,由 RCR 建筑事务所设计。项目占据巴塞罗那典型街区建筑的底层空间,拥有大型临街窗户和斜角入口,为顾客提供独特的餐饮体验。 设计理念 RCR 建筑事务所以”云朵”为核心概念,创造了一个梦幻般的室内环境。设计旨在通过空间体验增强阿德里亚兄弟的美食理念,在缺乏自然元素的室内环境中营造出超现实的氛围,让顾客在探索空间的同时享受精致美食。 空间与功能 谜餐厅 Enigma Restaurant 的空间组织围绕”云朵”概念展开,包含入口大厅、接待区、主餐厅、私人包间、铁板烧区、糕点店、厨房和鸡尾酒吧等功能区域。透明材质和巧妙的光线设计创造出流动的空间体验,引导顾客在品味美食的同时感受空间的变幻。 材料与技术 项目采用不锈钢、玻璃、金属板等现代材料,结合精密的构造细节。立面开口和入口门的设计体现了RCR建筑事务所对细节的关注,室内运用透明和半透明材料营造云朵般的轻盈感,展现了建筑技术与艺术表达的完美结合。 项目特色与启发 谜餐厅 Enigma Restaurant 的创新之处在于将餐饮体验与空间感知深度融合,为高端餐饮空间设计提供了新的思路。RCR 建筑事务所通过这个项目展示了如何通过建筑语言增强感官体验,对当代餐饮空间设计具有重要的参考价值。 设计团队 RCR 建筑事务所是西班牙著名建筑设计团队,以其独特的建筑语言和对材料、光线的精准把控而闻名。事务所在文化建筑、餐饮空间等领域有着丰富的设计经验,谜餐厅 Enigma Restaurant 体现了他们对空间体验和建筑表达的深入探索。 项目概述 谜餐厅 Enigma Restaurant 位于西班牙巴塞罗那扩建区,是一家高端餐饮空间,由 RCR 建筑事务所设计。项目占据巴塞罗那典型街区建筑的底层空间,拥有大型临街窗户和斜角入口,为顾客提供独特的餐饮体验。 设计理念 RCR 建筑事务所以”云朵”为核心概念,创造了一个梦幻般的室内环境。设计旨在通过空间体验增强阿德里亚兄弟的美食理念,在缺乏自然元素的室内环境中营造出超现实的氛围,让顾客在探索空间的同时享受精致美食。 空间与功能 谜餐厅 Enigma Restaurant 的空间组织围绕”云朵”概念展开,包含入口大厅、接待区、主餐厅、私人包间、铁板烧区、糕点店、厨房和鸡尾酒吧等功能区域。透明材质和巧妙的光线设计创造出流动的空间体验,引导顾客在品味美食的同时感受空间的变幻。 材料与技术 项目采用不锈钢、玻璃、金属板等现代材料,结合精密的构造细节。立面开口和入口门的设计体现了RCR建筑事务所对细节的关注,室内运用透明和半透明材料营造云朵般的轻盈感,展现了建筑技术与艺术表达的完美结合。 项目特色与启发 谜餐厅 Enigma Restaurant 的创新之处在于将餐饮体验与空间感知深度融合,为高端餐饮空间设计提供了新的思路。RCR 建筑事务所通过这个项目展示了如何通过建筑语言增强感官体验,对当代餐饮空间设计具有重要的参考价值。 设计团队 RCR 建筑事务所是西班牙著名建筑设计团队,以其独特的建筑语言和对材料、光线的精准把控而闻名。事务所在文化建筑、餐饮空间等领域有着丰富的设计经验,谜餐厅 Enigma Restaurant 体现了他们对空间体验和建筑表达的深入探索。 本文来自 © RCR 建筑事务所|RCR Arquitectes, 发布于 © 建筑学院官方网站。 未经授权,禁止转载或摘编。 编辑版本版权归 © 建筑学院官方网站 所有, 设计、图纸及照片版权归设计方 © RCR 建筑事务所|RCR Arquitectes ↗ 所有。 查看作者在建筑学院发布的更多作品: RCR 建筑事务所|RCR Arquitectes @ 建筑学院官方网站 La Cuisine Art CentreRCR Arquitectes城堡修复项目文化建筑改造 RCR 建筑事务所|RCR Arquitectes事务所 & 设计师 下载原图 收藏 0 关于作者 RCR 建筑事务所|RCR Arquitectes事务所 & 设计师 关注私信 14 文章 0 评论 0 粉丝 RCR建筑事务所由拉斐尔·阿兰达、卡莫·皮格姆和拉蒙·比拉尔塔于1988年在西班牙奥洛特创立。他们于2017年共同荣获普利兹克建筑奖,其作品以根植本土、心向世界而闻名。事务所擅长运用耐候钢、玻璃等现代材料,将建筑与自然景观深度融合,创造出充满诗意与永恒感的空间。其代表作包括法国苏拉吉博物馆、里拉剧院户外空间等。 House at the Bäumle / Vertical Living | 贝尔纳多·巴德尔|Bernardo Bader 上一篇 2025-11-19 下午12:50 Klostergasse Studio / Klostergasse Studio | 贝尔纳多·巴德尔|Bernardo Bader 下一篇 2025-11-20 上午7:10 猜你喜欢 灵魂矿工博物馆 / Soulages Museum | RCR 建筑事务所 2025-11-15 公共建筑设计 悬挂花园在洛尔蒙特 / Le Jardin Suspendu in Lormont | RCR 建筑事务所 2025-11-17 公共建筑设计 达阿玛费学校 / Dar al Marefa School | RCR 建筑事务所 2025-11-08 公共建筑设计 男卡泽住宅 / Malecaze House | RCR 建筑事务所 2025-11-17 公共建筑设计 室内游泳池在塔拉德尔 Indoor Pool in Taradell | RCR 建筑事务所|RCR Arquitectes 2025-10-30 公共建筑设计 Art Collection Siedle / COLECCION DE ARTE SIEDLE | 布兰德胡伯建筑事务所|Brandlhuber 2025-12-25 公共建筑设计 发表回复 请登录后评论...登录后才能评论 提交