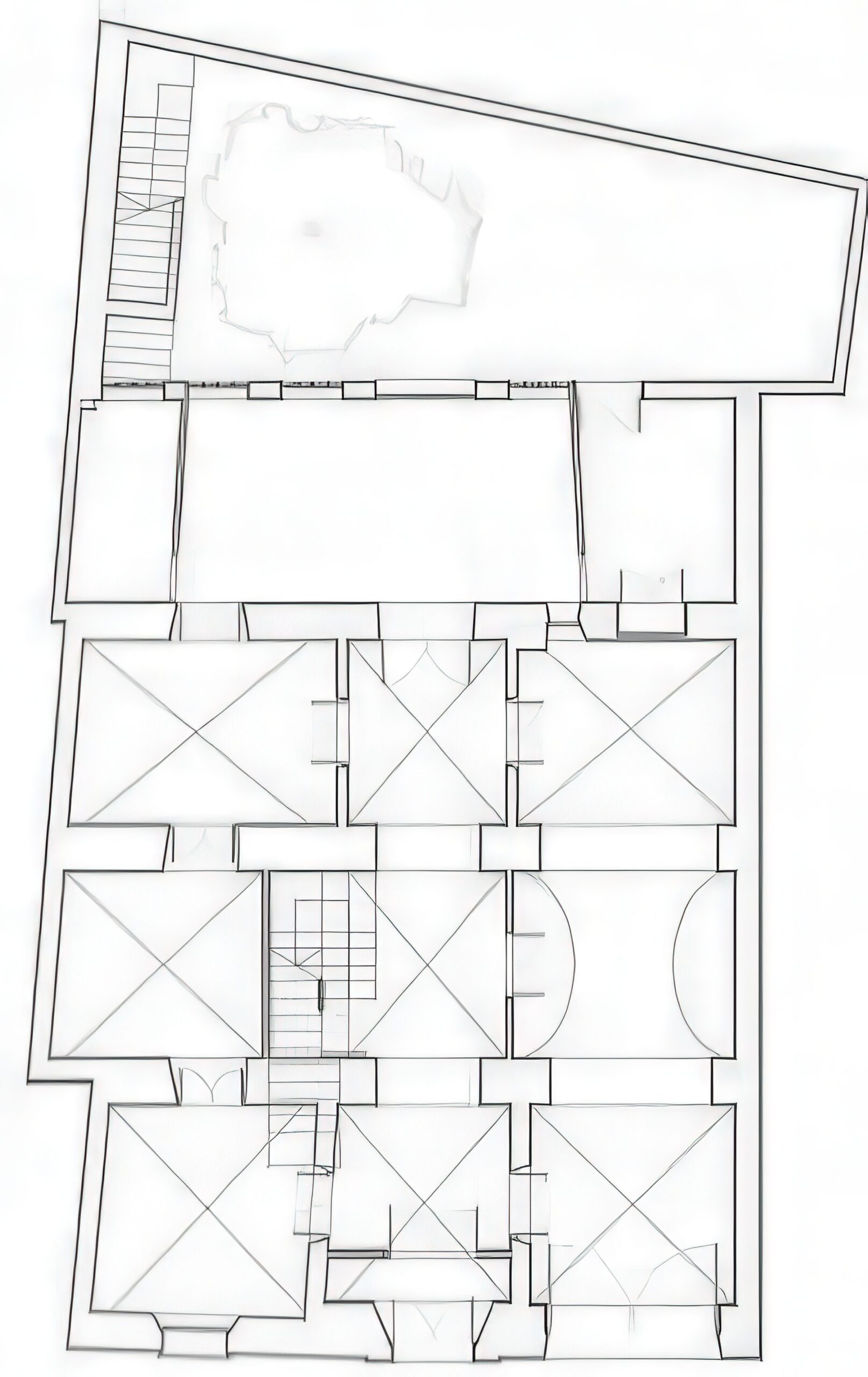
九间屋 9 Vault House | 何塞·玛丽亚·桑切斯·加西亚|José María Sánchez García 何塞·玛丽亚·桑切斯·加西亚|José María Sánchez García • 2025-11-22 下午12:50 • 公共建筑设计, 建筑师, 建筑设计, 文化建筑设计 九间屋是位于西班牙巴达霍斯省比利亚努埃瓦德拉塞雷纳的一座住宅改造项目。设计团队何塞·玛丽亚·桑切斯·加西亚通过插入T型梁结构,将原有复杂的空间秩序反转,创造出开放的地面层空间。项目巧妙结合砖拱与混凝土梁,形成连续拱顶结构,展现了传统与现代建筑技术的融合。 设计: 何塞·玛丽亚·桑切斯·加西亚|José María Sánchez García 类型: 文化建筑设计 功能: 独立住宅 风格: 当代建筑 材料: 混凝土 砖材 尺度: 小型建筑 地点:西班牙 时间: 2016年 项目简介 九间屋位于西班牙巴达霍斯省比利亚努埃瓦德拉塞雷纳,是一座住宅改造项目。建筑为两层紧凑体量,面向卡雷拉街和后花园,两侧与相邻建筑共享墙体。项目于2016年启动设计。 设计理念 设计团队接受原建筑的矛盾性——规整装饰立面与复杂内部空间的组合,通过结构反转策略重新定义空间秩序。核心设计手法是插入高效的T型梁交叉结构,解放中间支撑,创造全新的空间体验。 空间与功能 地面层采用开放式布局,前部保留车库和客房分区,后部客厅水平延伸至花园。二层设置卧室,位于后花园和前廊之间。现有楼梯位置保持不变,垂直方向扭曲空间感知。拱形天花在连续空间中创造虚拟区域划分。 材料与技术 项目结合砖砌拱券与混凝土T型梁,形成梁拱连续的空间网格。T型梁交叉构成不对称十字结构,完全消除中间支撑。这种传统砖工艺与现代混凝土技术的结合,既尊重历史又实现空间解放。 设计团队 何塞·玛丽亚·桑切斯·加西亚建筑事务所专注于建筑改造与空间更新,擅长通过精准的结构干预解决既有建筑矛盾,作品以简洁有力的建筑语言和深刻的空间思考著称。 项目简介 九间屋位于西班牙巴达霍斯省比利亚努埃瓦德拉塞雷纳,是一座住宅改造项目。建筑为两层紧凑体量,面向卡雷拉街和后花园,两侧与相邻建筑共享墙体。项目于2016年启动设计。 设计理念 设计团队接受原建筑的矛盾性——规整装饰立面与复杂内部空间的组合,通过结构反转策略重新定义空间秩序。核心设计手法是插入高效的T型梁交叉结构,解放中间支撑,创造全新的空间体验。 空间与功能 地面层采用开放式布局,前部保留车库和客房分区,后部客厅水平延伸至花园。二层设置卧室,位于后花园和前廊之间。现有楼梯位置保持不变,垂直方向扭曲空间感知。拱形天花在连续空间中创造虚拟区域划分。 材料与技术 项目结合砖砌拱券与混凝土T型梁,形成梁拱连续的空间网格。T型梁交叉构成不对称十字结构,完全消除中间支撑。这种传统砖工艺与现代混凝土技术的结合,既尊重历史又实现空间解放。 设计团队 何塞·玛丽亚·桑切斯·加西亚建筑事务所专注于建筑改造与空间更新,擅长通过精准的结构干预解决既有建筑矛盾,作品以简洁有力的建筑语言和深刻的空间思考著称。 本文来自 © 何塞·玛丽亚·桑切斯·加西亚|José María Sánchez García, 发布于 © 建筑学院官方网站。 未经授权,禁止转载或摘编。 编辑版本版权归 © 建筑学院官方网站 所有, 设计、图纸及照片版权归设计方 © 何塞·玛丽亚·桑切斯·加西亚|José María Sánchez García ↗ 所有。 查看作者在建筑学院发布的更多作品: 何塞·玛丽亚·桑切斯·加西亚|José María Sánchez García @ 建筑学院官方网站 九间屋住宅改造何塞·玛丽亚·桑切斯·加西亚巴达霍斯砖拱结构 何塞·玛丽亚·桑切斯·加西亚|José María Sánchez García事务所 & 设计师 下载原图 收藏 0 关于作者 何塞·玛丽亚·桑切斯·加西亚|José María Sánchez García事务所 & 设计师 关注私信 6 文章 0 评论 0 粉丝 西班牙建筑师何塞·玛丽亚·桑切斯·加西亚,以其极简主义与地形深刻对话的建筑闻名。他的作品擅长运用混凝土等原生材料,创造与景观浑然一体的震撼力。其代表作“梅里达表演艺术工作室”被誉为经典,通过精准的切割与光影塑造,展现了功能、诗意与环境的完美融合。他的事务所持续探索建筑与场所的精神联结,是当代西班牙建筑的重要实践之一。 蒙彼利埃市政厅 City Hall, Montpellier | 让·努维尔建筑事务所|Jean Nouvel 上一篇 2025-11-22 上午8:50 带植物的房子 House with Plants | 石上纯也建筑事务所|Junya Ishigami 下一篇 2025-11-22 下午8:50 猜你喜欢 阿尔盖河划馆 Rowing Pavilion in Alange | 何塞·玛丽亚·桑切斯·加西亚|José María Sánchez García 2025-11-30 公共建筑设计 Ararat住宅 / SJB:澳大利亚阿拉拉特1950年代砖房改造 | 可持续家庭住宅典范 2025-05-20 住宅建筑设计 边界的房子 Boundary House | 何塞·玛丽亚·桑切斯·加西亚|José María Sánchez García 2025-11-22 公共建筑设计 奥利文扎旅店 Tourist Inn in Olivenza | 何塞·玛丽亚·桑切斯·加西亚|José María Sánchez García 2025-12-02 公共建筑设计 阿尔盖河划馆 Rowing Pavilion in Alange | 何塞·玛丽亚·桑切斯·加西亚|José María Sánchez García 2025-11-30 公共建筑设计 山间别墅 House in the Mountains | 卡鲁索·圣约翰建筑事务所|Caruso St John 2025-12-08 公共建筑设计 发表回复 请登录后评论...登录后才能评论 提交