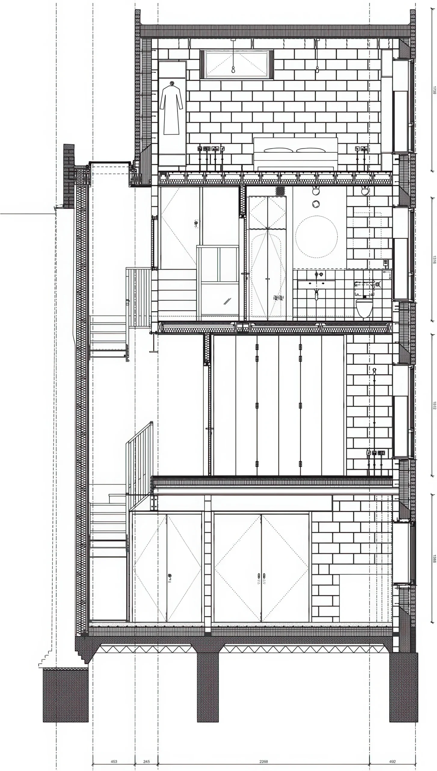
上公园的房子 / House on the Park | 6a 建筑事务所 6a 建筑事务所|6a architects • 2小时前 • 住宅建筑设计, 建筑设计, 独立住宅设计 上公园的房子由 6a 建筑事务所设计,位于伦敦公园边界,将原有工业厂房改造为家庭住宅与工作室。项目保留原有建筑结构,通过砖材再利用与空间重组,创造新旧融合的居住体验,展现工业遗产的当代转化。 设计: 6a 建筑事务所|6a architects 类型: 独立住宅设计 功能: 独立住宅 风格: 当代建筑 材料: 混凝土 钢材 木材 砖材 尺度: 小型建筑 地点:伦敦 时间: 1970年 项目概述 上公园的房子位于伦敦公园东北角,由 6a 建筑事务所设计,将一座二战时期遗留的工业厂房改造为家庭住宅与工作室。项目保留原有建筑结构,通过材料再利用与空间重组,实现新旧建筑的有机融合。 设计理念 设计以保留工业遗产为核心,通过部分拆除与重建,重新定义建筑与公园的关系。原有砖墙与屋顶结构被精心保留,新建筑体量以雕刻般的形式嵌入原有结构,形成历史与当代的对话。 空间与功能 建筑沿长度方向分为三个区域:北端新建砖塔楼包含主要生活空间,中部移除屋顶形成庭院花园,南端保留原有结构并增设天窗。不同楼层高度与屋顶线条创造丰富的室内空间变化,主卧室面向公园与城市天际线,顶层书房通向围合花园。 材料与技术 项目大量使用回收材料,19世纪砖材被重新用于新建墙体。结构采用承重砖墙与混凝土楼板组合,大跨度区域使用外露钢构件。室内材料包括着色混凝土、外露木梁、木地板与砌块墙,保持材料的原始质感。 项目特色与启发 上公园的房子展示了工业建筑改造的创新方法,通过精确的拆除与保留策略,将历史结构转化为高品质居住空间。项目为城市更新中的遗产保护提供了重要参考,体现 6a 建筑事务所在材料运用与空间塑造上的专业能力。 设计团队 6a 建筑事务所是伦敦知名建筑设计团队,以文化建筑与改造项目著称。事务所擅长通过细致的历史研究与材料创新,创造与场地深度对话的建筑作品,在遗产保护与当代设计间建立平衡。 项目概述 上公园的房子位于伦敦公园东北角,由 6a 建筑事务所设计,将一座二战时期遗留的工业厂房改造为家庭住宅与工作室。项目保留原有建筑结构,通过材料再利用与空间重组,实现新旧建筑的有机融合。 设计理念 设计以保留工业遗产为核心,通过部分拆除与重建,重新定义建筑与公园的关系。原有砖墙与屋顶结构被精心保留,新建筑体量以雕刻般的形式嵌入原有结构,形成历史与当代的对话。 空间与功能 建筑沿长度方向分为三个区域:北端新建砖塔楼包含主要生活空间,中部移除屋顶形成庭院花园,南端保留原有结构并增设天窗。不同楼层高度与屋顶线条创造丰富的室内空间变化,主卧室面向公园与城市天际线,顶层书房通向围合花园。 材料与技术 项目大量使用回收材料,19世纪砖材被重新用于新建墙体。结构采用承重砖墙与混凝土楼板组合,大跨度区域使用外露钢构件。室内材料包括着色混凝土、外露木梁、木地板与砌块墙,保持材料的原始质感。 项目特色与启发 上公园的房子展示了工业建筑改造的创新方法,通过精确的拆除与保留策略,将历史结构转化为高品质居住空间。项目为城市更新中的遗产保护提供了重要参考,体现 6a 建筑事务所在材料运用与空间塑造上的专业能力。 设计团队 6a 建筑事务所是伦敦知名建筑设计团队,以文化建筑与改造项目著称。事务所擅长通过细致的历史研究与材料创新,创造与场地深度对话的建筑作品,在遗产保护与当代设计间建立平衡。 本文来自 © 6a 建筑事务所|6a architects, 发布于 © 建筑学院官方网站。 未经授权,禁止转载或摘编。 编辑版本版权归 © 建筑学院官方网站 所有, 设计、图纸及照片版权归设计方 © 6a 建筑事务所|6a architects ↗ 所有。 查看作者在建筑学院发布的更多作品: 6a 建筑事务所|6a architects @ 建筑学院官方网站 6a建筑事务所House on the Park伦敦住宅设计住宅改造工业建筑改造 6a 建筑事务所|6a architects事务所 & 设计师 下载原图 收藏 0 关于作者 6a 建筑事务所|6a architects事务所 & 设计师 关注私信 24 文章 1 评论 0 粉丝 6a architects(6a建筑事务所)是英国知名的建筑设计团队,以其对文化、艺术及教育类建筑的深刻理解而闻名。他们的作品擅长运用精巧的材料与细致的构造,在历史与现代的对话中创造宁静而富有感染力的空间。其代表作包括South London Gallery、MK Gallery改造及剑桥大学校园建筑等。 黑石大厦 / Black Stone Building | 6a 建筑事务所|6a architects 上一篇 2小时前 摄影工作室,Juergen Teller 设计 / Photography Studio for Juergen Teller | 6a 建筑事务所|6a architects 下一篇 2小时前 猜你喜欢 加州大学洛杉矶分校马戈雷文研究生艺术工作室 / UCLA Margo Leavin Graduate Art Studios | MARKLEE 建筑事务所 2025-11-08 公共建筑设计 莫里茨啤酒厂改建项目 Renovation of Moritz Brewery | 让·努维尔建筑事务所|Jean Nouvel 2025-12-05 公共建筑设计 新巴塞罗那中央档案馆 / New Barcelona Central Archives | HArquitectes 2026-04-06 公共建筑设计 南伦敦美术馆 South London Gallery | 6a 建筑事务所|6a architects 2025-10-28 公共建筑设计 Ararat住宅 / SJB:澳大利亚阿拉拉特1950年代砖房改造 | 可持续家庭住宅典范 2025-05-20 住宅建筑设计 新加伦西美制药公司大楼 / New Galenicum Pharmaceutical Company Building | HArquitectes 2026-04-06 公共建筑设计 发表回复 请登录后评论...登录后才能评论 提交