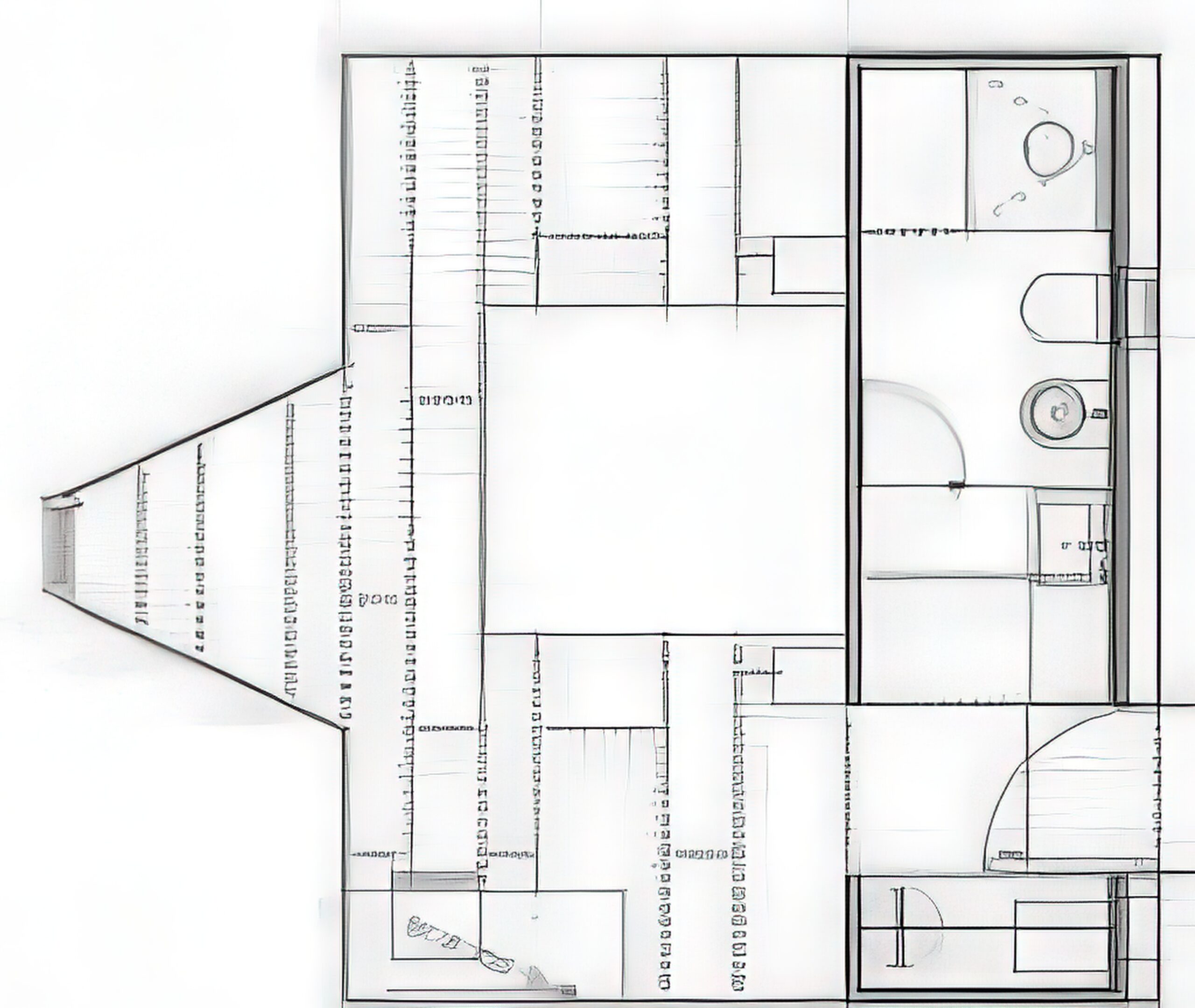
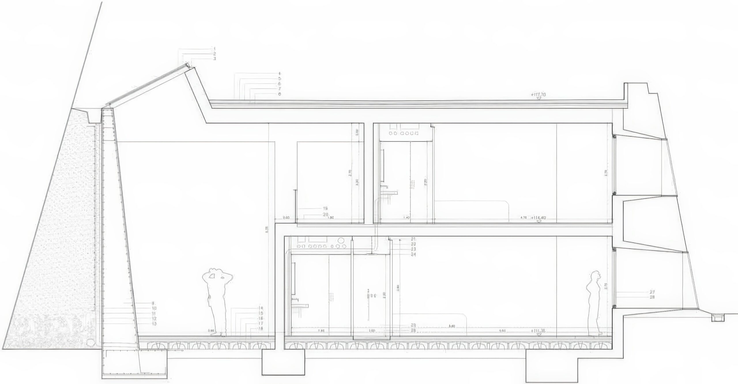
阿尔布雷克的旅店 Tourist Inn in Alburquerque | 何塞·玛丽亚·桑切斯·加西亚|José María Sánchez García 何塞·玛丽亚·桑切斯·加西亚|José María Sánchez García • 2025-11-29 上午12:50 • 公共建筑设计, 建筑师, 建筑设计, 文化建筑设计 设计: 何塞·玛丽亚·桑切斯·加西亚|José María Sánchez García 类型: 文化建筑设计 功能: 文化中心 风格: 地域主义 材料: 混凝土 钢材 玻璃 石材 尺度: 小型建筑 地点:西班牙 时间: 2007年 项目简介 阿尔布雷克的旅店位于西班牙阿尔布开克,是一座改造自历史城堡的旅游旅馆建筑。项目建筑面积约800平方米,设计始于2007年,旨在为历史遗产注入新的功能活力。 设计理念 设计团队采用”减法”策略,通过在堡垒轮廓内挖掘空间,将新建部分完全融入地形。核心思路是让旅客感受到”身处城堡之内”而非”靠近城堡”,实现建筑与历史环境的有机对话。 空间与功能 客房沿古老城墙布置,根据城墙几何形态调整比例尺寸。每个房间被视为独立单元,通过内扩的轻微切口创造城堡特有的柔和光照氛围。双层高中庭空间解决交通流线和公共功能需求。 材料与技术 项目大量使用当地黑色花岗岩、钢筋混凝土和钢材。采用先进的防水隔热构造,钢框架无热桥设计和三重玻璃窗确保能效。施工工艺注重对原有结构的保护和加固。 设计团队 何塞·玛丽亚·桑切斯·加西亚建筑事务所专注于当代建筑与历史环境的对话,以简洁的设计语言和精湛的建造技术著称,在遗产改造领域具有丰富经验。 项目简介 阿尔布雷克的旅店位于西班牙阿尔布开克,是一座改造自历史城堡的旅游旅馆建筑。项目建筑面积约800平方米,设计始于2007年,旨在为历史遗产注入新的功能活力。 设计理念 设计团队采用”减法”策略,通过在堡垒轮廓内挖掘空间,将新建部分完全融入地形。核心思路是让旅客感受到”身处城堡之内”而非”靠近城堡”,实现建筑与历史环境的有机对话。 空间与功能 客房沿古老城墙布置,根据城墙几何形态调整比例尺寸。每个房间被视为独立单元,通过内扩的轻微切口创造城堡特有的柔和光照氛围。双层高中庭空间解决交通流线和公共功能需求。 材料与技术 项目大量使用当地黑色花岗岩、钢筋混凝土和钢材。采用先进的防水隔热构造,钢框架无热桥设计和三重玻璃窗确保能效。施工工艺注重对原有结构的保护和加固。 设计团队 何塞·玛丽亚·桑切斯·加西亚建筑事务所专注于当代建筑与历史环境的对话,以简洁的设计语言和精湛的建造技术著称,在遗产改造领域具有丰富经验。 本文来自 © 何塞·玛丽亚·桑切斯·加西亚|José María Sánchez García, 发布于 © 建筑学院官方网站。 未经授权,禁止转载或摘编。 编辑版本版权归 © 建筑学院官方网站 所有, 设计、图纸及照片版权归设计方 © 何塞·玛丽亚·桑切斯·加西亚|José María Sánchez García ↗ 所有。 查看作者在建筑学院发布的更多作品: 何塞·玛丽亚·桑切斯·加西亚|José María Sánchez García @ 建筑学院官方网站 何塞·玛丽亚·桑切斯·加西亚旅游旅馆设计花岗岩建筑阿尔布开克建筑阿尔布雷克的旅店 何塞·玛丽亚·桑切斯·加西亚|José María Sánchez García事务所 & 设计师 下载原图 收藏 0 关于作者 何塞·玛丽亚·桑切斯·加西亚|José María Sánchez García事务所 & 设计师 关注私信 6 文章 0 评论 0 粉丝 西班牙建筑师何塞·玛丽亚·桑切斯·加西亚,以其极简主义与地形深刻对话的建筑闻名。他的作品擅长运用混凝土等原生材料,创造与景观浑然一体的震撼力。其代表作“梅里达表演艺术工作室”被誉为经典,通过精准的切割与光影塑造,展现了功能、诗意与环境的完美融合。他的事务所持续探索建筑与场所的精神联结,是当代西班牙建筑的重要实践之一。 布列塔尼街14套住宅 14 Housing Units on Rue des Bergers | 布鲁瑟建筑事务所|Bruther 上一篇 2025-11-28 上午8:50 俄罗斯项目 Russo Project | 斯米里扬·拉迪奇|Smiljan Radić 下一篇 2025-11-29 上午8:50 猜你喜欢 阿尔盖河划馆 Rowing Pavilion in Alange | 何塞·玛丽亚·桑切斯·加西亚|José María Sánchez García 2025-11-30 公共建筑设计 边界的房子 Boundary House | 何塞·玛丽亚·桑切斯·加西亚|José María Sánchez García 2025-11-22 公共建筑设计 奥利文扎旅店 Tourist Inn in Olivenza | 何塞·玛丽亚·桑切斯·加西亚|José María Sánchez García 2025-12-02 公共建筑设计 九间屋 9 Vault House | 何塞·玛丽亚·桑切斯·加西亚|José María Sánchez García 2025-11-22 公共建筑设计 阿尔盖河划馆 Rowing Pavilion in Alange | 何塞·玛丽亚·桑切斯·加西亚|José María Sánchez García 2025-11-30 公共建筑设计 发表回复 请登录后评论...登录后才能评论 提交