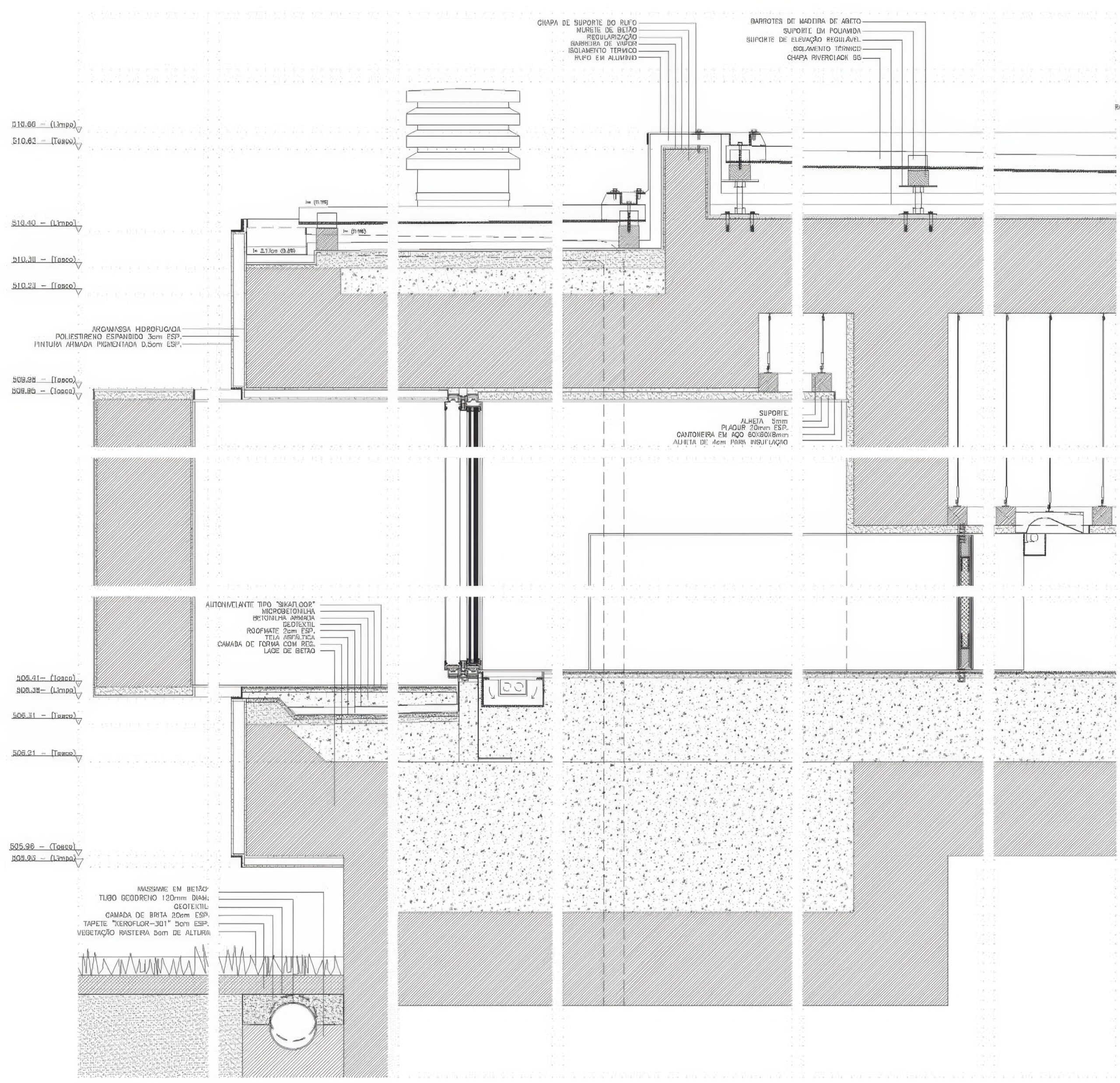
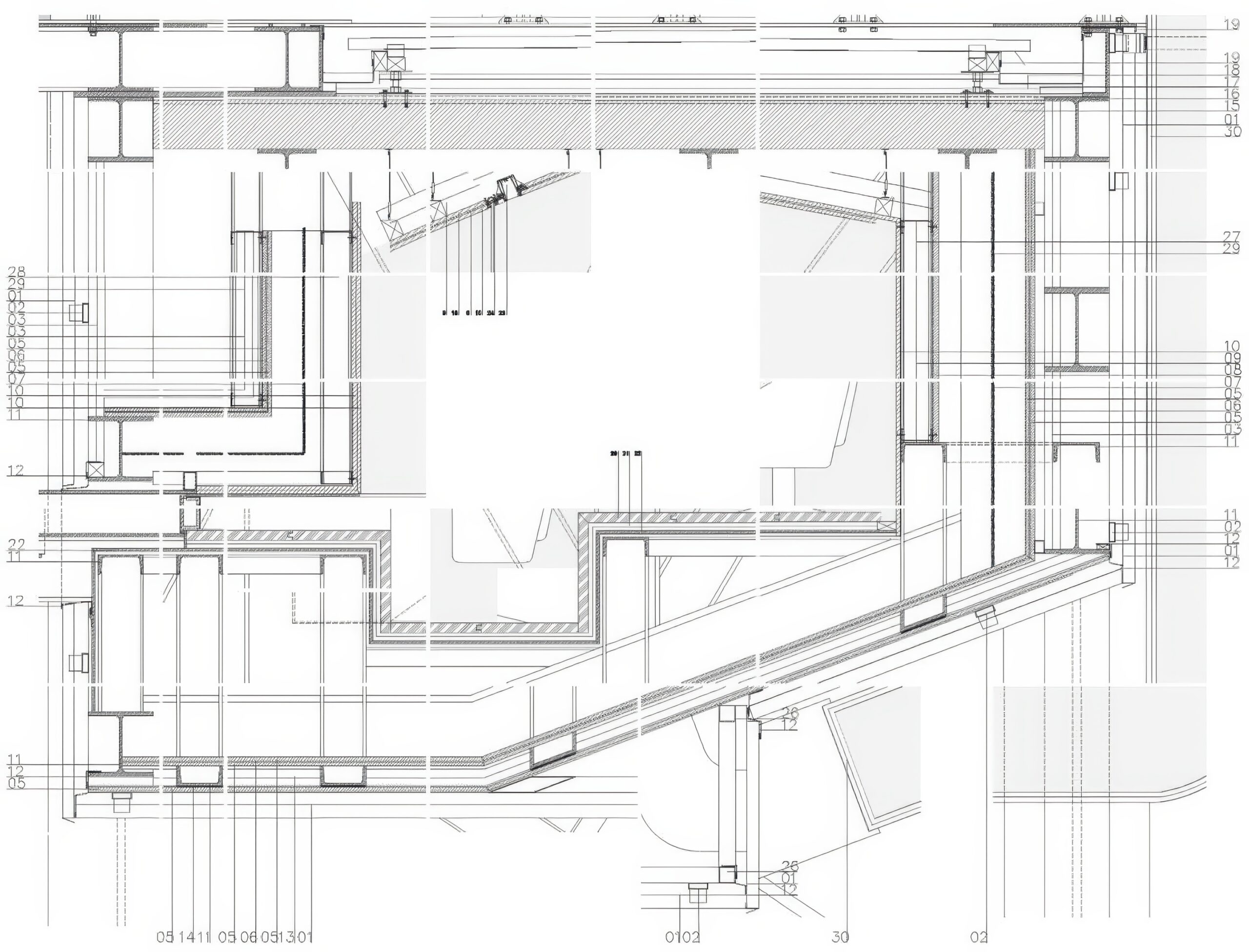
酒店旅游学院 School of Hospitality and Tourism | 德莫拉建筑事务所|De Mora 德莫拉建筑事务所|De Mora • 2025-11-30 上午8:50 • 公共建筑设计, 建筑师, 建筑设计, 文化建筑设计 酒店旅游学院位于葡萄牙波塔莱格雷市,由德莫拉建筑事务所设计。该项目巧妙利用场地自然坡度,打造出悬挂于景观之上的教育建筑。建筑南侧设置大型露台,容纳教室、图书馆、餐厅等功能空间,北侧分为蓝色厨房区与赭石色办公区,形成独特的空间组织与色彩对比。 设计: 德莫拉建筑事务所|De Mora 类型: 文化建筑设计 功能: 学校 风格: 当代建筑 材料: 混凝土 钢材 玻璃 尺度: 中型建筑 地点:葡萄牙 时间: 2000年 项目简介 酒店旅游学院位于葡萄牙波塔莱格雷市,是一座教育建筑,建筑面积未明确,设计于21世纪初,是罗宾逊工厂区域更新计划的重要组成部分。 设计理念 设计团队充分利用场地6米高差,创造性地将建筑”悬挂”于坡地之上,形成面向远方景观的视觉通廊,同时通过体量分割与色彩运用回应功能需求与工业遗产文脉。 空间与功能 建筑南侧布置主要教学与公共空间,包括教室、图书馆、休息室、餐厅和酒吧,均朝向大型露台开放;北侧分为两个封闭体量,分别容纳厨房设施与办公空间,每个办公室均设有独立庭院。 材料与技术 采用钢筋混凝土结构,外墙运用蓝色与赭石色涂料,延续当地工业建筑色彩传统。建筑巧妙结合地形高差,实现自然通风与采光优化。 设计团队 德莫拉建筑事务所是葡萄牙著名建筑设计机构,以简洁的几何形式、对场地文脉的敏锐回应及材料创新运用而闻名,作品涵盖文化、教育、住宅等多个领域。 项目简介 酒店旅游学院位于葡萄牙波塔莱格雷市,是一座教育建筑,建筑面积未明确,设计于21世纪初,是罗宾逊工厂区域更新计划的重要组成部分。 设计理念 设计团队充分利用场地6米高差,创造性地将建筑”悬挂”于坡地之上,形成面向远方景观的视觉通廊,同时通过体量分割与色彩运用回应功能需求与工业遗产文脉。 空间与功能 建筑南侧布置主要教学与公共空间,包括教室、图书馆、休息室、餐厅和酒吧,均朝向大型露台开放;北侧分为两个封闭体量,分别容纳厨房设施与办公空间,每个办公室均设有独立庭院。 材料与技术 采用钢筋混凝土结构,外墙运用蓝色与赭石色涂料,延续当地工业建筑色彩传统。建筑巧妙结合地形高差,实现自然通风与采光优化。 设计团队 德莫拉建筑事务所是葡萄牙著名建筑设计机构,以简洁的几何形式、对场地文脉的敏锐回应及材料创新运用而闻名,作品涵盖文化、教育、住宅等多个领域。 本文来自 © 德莫拉建筑事务所|De Mora, 发布于 © 建筑学院官方网站。 未经授权,禁止转载或摘编。 编辑版本版权归 © 建筑学院官方网站 所有, 设计、图纸及照片版权归设计方 © 德莫拉建筑事务所|De Mora ↗ 所有。 查看作者在建筑学院发布的更多作品: 德莫拉建筑事务所|De Mora @ 建筑学院官方网站 德莫拉建筑事务所教育建筑波塔莱格雷混凝土结构酒店旅游学院 德莫拉建筑事务所|De Mora事务所 & 设计师 下载原图 收藏 0 关于作者 德莫拉建筑事务所|De Mora事务所 & 设计师 关注私信 17 文章 0 评论 0 粉丝 德莫拉建筑事务所是普利兹克奖得主阿尔瓦罗·西扎的事务所,代表葡萄牙现代建筑的巅峰。其作品以极简的几何形态、对光与场所的敏锐感知著称,擅长运用白色墙体与当地材料。从塞拉尔维斯博物馆到住宅改造,西扎的事务所展现了建筑与自然、历史文脉的深刻对话,是全球建筑师与学子研究的典范。 阿尔盖河划馆 Rowing Pavilion in Alange | 何塞·玛丽亚·桑切斯·加西亚|José María Sánchez García 上一篇 2025-11-30 上午12:50 欧洲阿乐街办公大楼 Europaallee Office Building | 克里斯蒂安·凯雷兹|Christian Kerez 下一篇 2025-11-30 下午10:22 猜你喜欢 纯净而原始——葡萄牙桑巴住宅 / spaceworkers 2019-06-25 建筑设计 白井屋酒店 / 藤本壮介建筑事务所 2020-11-13 建筑设计 KAIT工作坊 Kait Workshops (Kait Workshops) KAIT Workshop | 石上纯也建筑事务所|Junya Ishigami 2025-12-03 公共建筑设计 伯吉岛游泳池楼 Burgh Island Pool House | 卡莫迪·格罗克建筑事务所|Carmody Groarke 2025-11-27 公共建筑设计 格塞尔斯特大街,工作室与庭院式住宅 Geisselstrasse, Atelier and Courtyard House | 布兰德胡伯建筑事务所|Brandlhuber 2025-10-30 公共建筑设计 HEC Paris MBA 大楼| 大卫·奇珀菲尔德建筑事务所|David Chipperfield 2025-11-26 公共建筑设计 发表回复 请登录后评论...登录后才能评论 提交