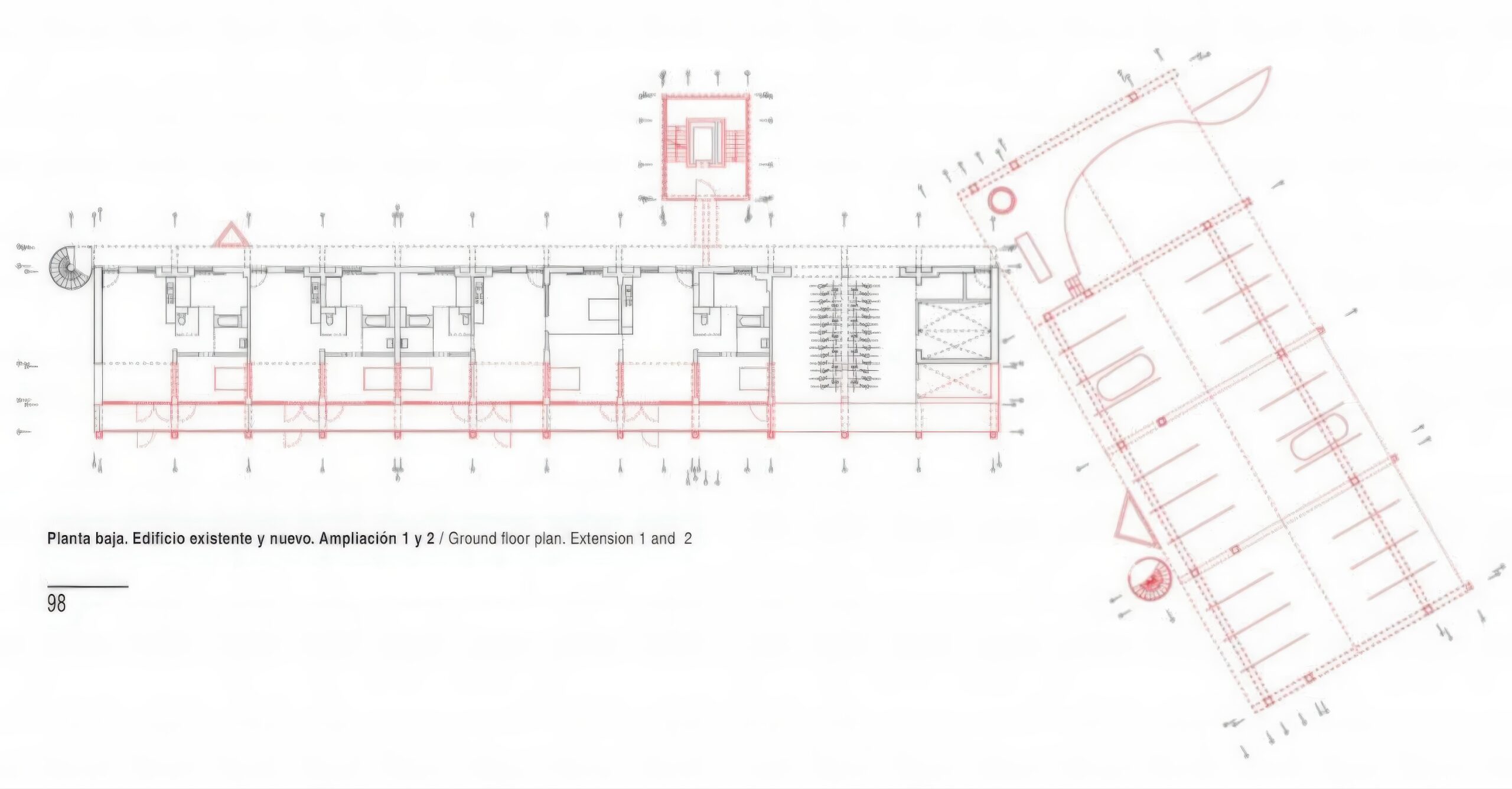
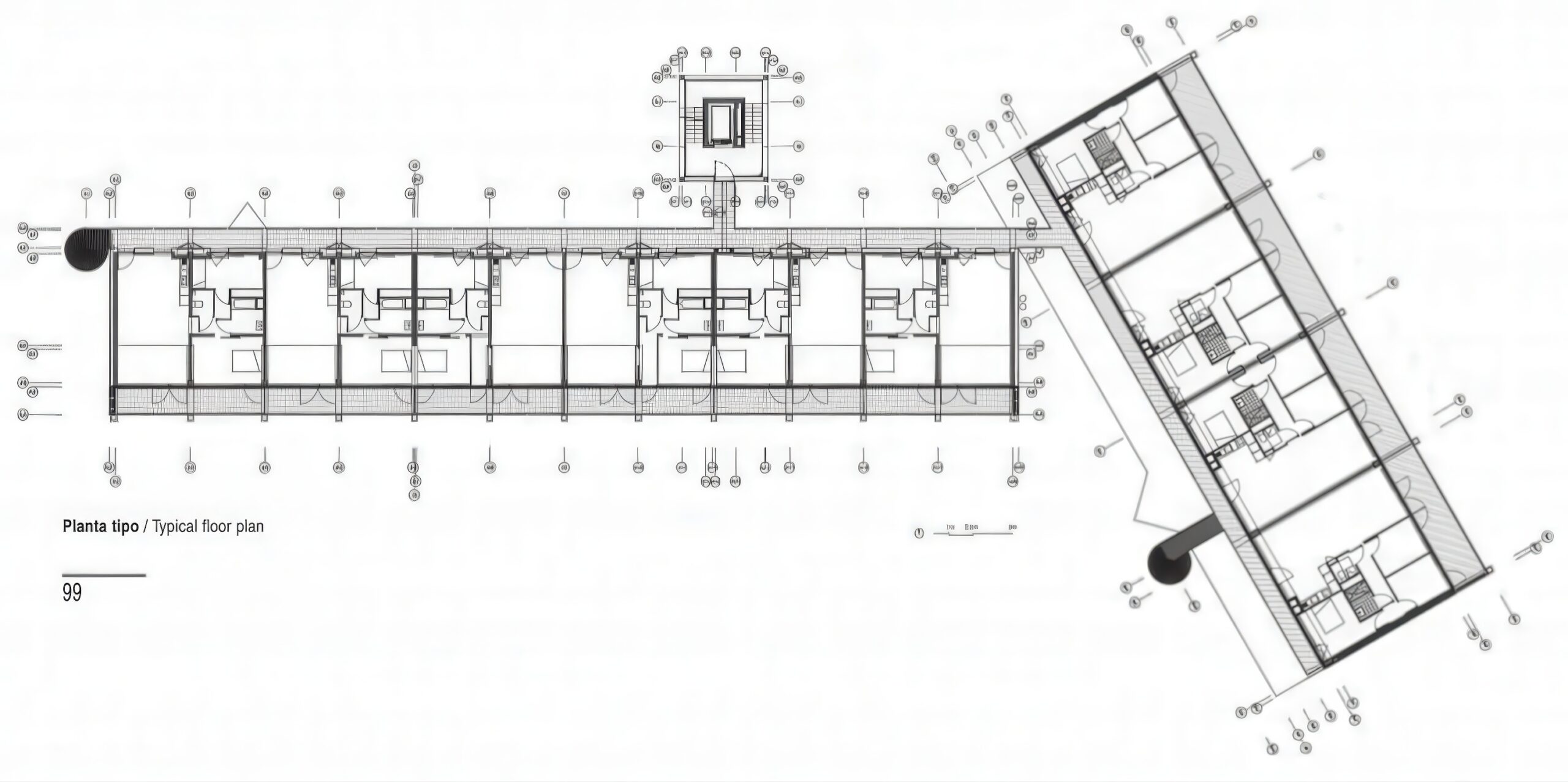
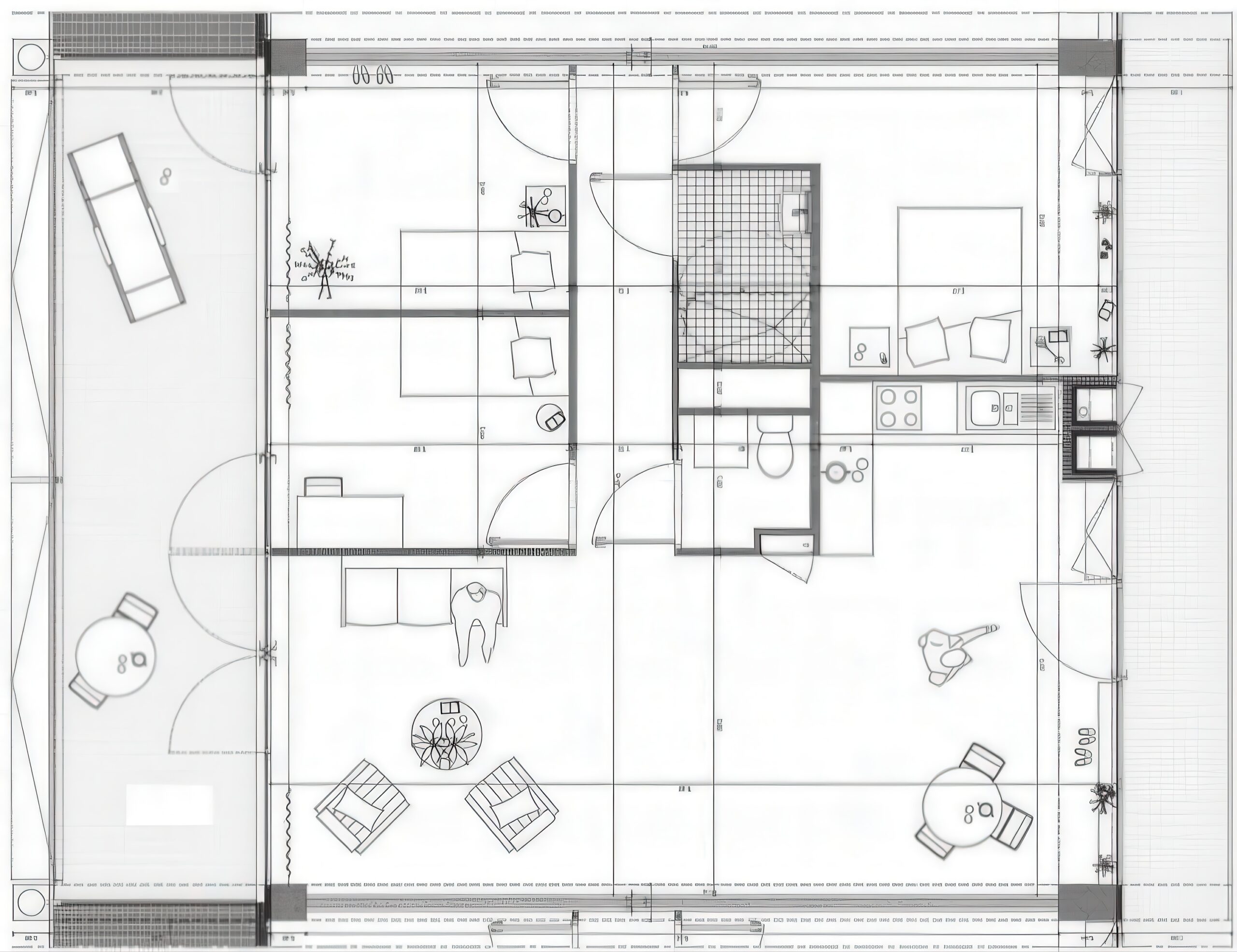
60个社会住宅,梅里纳克 60 Social Dwellings, Merignac | 布鲁瑟建筑事务所|Bruther 布鲁瑟建筑事务所|Bruther • 2025-11-24 上午8:50 • 公共建筑设计, 建筑师, 建筑设计, 文化建筑设计 60个社会住宅项目位于法国波尔多梅里纳克,是对1960年代线性住宅楼的改造更新。布鲁瑟建筑事务所以创新的结构干预策略,通过底层架空、墙体穿孔和建筑剖面扩展,实现了建筑的结构与热工性能提升。项目采用双层玻璃幕墙系统,创造了灵活的空间过渡,同时整合了屋顶休闲设施和扇形布局的新建筑,重塑了社区的城市性。 设计: 布鲁瑟建筑事务所|Bruther 类型: 文化建筑设计 功能: 公寓住宅 风格: 当代建筑 材料: 混凝土 钢材 玻璃 尺度: 中型建筑 地点:法国 时间: 2013年 项目简介 60个社会住宅项目位于法国波尔多梅里纳克,属于社会住宅建筑类型,总建筑面积约5000平方米,设计于2013年并荣获竞赛一等奖。 设计理念 布鲁瑟建筑事务所通过对既有建筑的精准干预,赋予1960年代住宅楼新的建筑意义。设计核心在于结构重组与空间扩展,通过剖面增厚、垂直交通核外置等策略,实现建筑性能与空间品质的双重提升。 空间与功能 项目包含70平方米标准户型,通过剖面扩展增加了室内生活空间和南向阳台。底层架空设置停车场,屋顶改造为配备水池和儿童游乐设施的休闲平台。新建建筑采用扇形布局,包含复式公寓,形成丰富的空间层次。 材料与技术 采用双层玻璃幕墙系统,内层为高性能隔热玻璃,外层为可开启玻璃面板。结构上保留原有混凝土承重墙并进行穿孔处理,新增部分采用工业框架系统,实现热工性能与空间灵活性的统一。 设计团队 布鲁瑟建筑事务所是法国知名建筑设计团队,以严谨的结构逻辑和创新的空间策略著称,专注于社会住宅和公共建筑领域,擅长通过精准的建造技术实现建筑的社会价值。 项目简介 60个社会住宅项目位于法国波尔多梅里纳克,属于社会住宅建筑类型,总建筑面积约5000平方米,设计于2013年并荣获竞赛一等奖。 设计理念 布鲁瑟建筑事务所通过对既有建筑的精准干预,赋予1960年代住宅楼新的建筑意义。设计核心在于结构重组与空间扩展,通过剖面增厚、垂直交通核外置等策略,实现建筑性能与空间品质的双重提升。 空间与功能 项目包含70平方米标准户型,通过剖面扩展增加了室内生活空间和南向阳台。底层架空设置停车场,屋顶改造为配备水池和儿童游乐设施的休闲平台。新建建筑采用扇形布局,包含复式公寓,形成丰富的空间层次。 材料与技术 采用双层玻璃幕墙系统,内层为高性能隔热玻璃,外层为可开启玻璃面板。结构上保留原有混凝土承重墙并进行穿孔处理,新增部分采用工业框架系统,实现热工性能与空间灵活性的统一。 设计团队 布鲁瑟建筑事务所是法国知名建筑设计团队,以严谨的结构逻辑和创新的空间策略著称,专注于社会住宅和公共建筑领域,擅长通过精准的建造技术实现建筑的社会价值。 本文来自 © 布鲁瑟建筑事务所|Bruther, 发布于 © 建筑学院官方网站。 未经授权,禁止转载或摘编。 编辑版本版权归 © 建筑学院官方网站 所有, 设计、图纸及照片版权归设计方 © 布鲁瑟建筑事务所|Bruther ↗ 所有。 查看作者在建筑学院发布的更多作品: 布鲁瑟建筑事务所|Bruther @ 建筑学院官方网站 60个社会住宅双层玻璃幕墙布鲁瑟建筑事务所梅里纳克社会住宅设计 布鲁瑟建筑事务所|Bruther事务所 & 设计师 下载原图 收藏 0 关于作者 布鲁瑟建筑事务所|Bruther事务所 & 设计师 关注私信 20 文章 0 评论 1 粉丝 布鲁瑟建筑事务所(Bruther)由亚历克西斯·博德与斯蒂芬妮·布鲁诺创立于巴黎,是当代极具前瞻性的先锋建筑团队。他们以“动态功能”与“空间灵活性”为核心,作品横跨文化、教育及研究建筑领域,以前瞻性思维与技术精确性,创造出开放、适应性强且充满张力的建筑,持续拓展建筑实践的边界,重新定义当代建筑语言。 卢米埃大学Lyon 2大学校园学习中心 Learning Centre in Lumière Lyon 2 University campus | 布鲁瑟建筑事务所|Bruther 上一篇 2025-11-23 上午10:50 欧洲艾莱大道21号办公楼 Office Building ‘Europaallee 21’ | 大卫·奇珀菲尔德建筑事务所|David Chipperfield 下一篇 2025-11-24 下午12:50 猜你喜欢 32社交住宅于圣维泽德拉斯帕利戈 / 32 Social Dwellings in San Vicente del Raspeig | 阿尔弗雷多·帕亚|Alfredo Payá 2025-11-13 公共建筑设计 安格莱特工程学校伊斯兰建筑大楼 Isalab Building,Engineering School in Anglet | 布鲁瑟建筑事务所 2025-11-20 公共建筑设计 学生宿舍和可逆式停车场,帕拉西斯 Student Residence and Reversible Car Park, Palaiseau | 布鲁瑟建筑事务所|Bruther 2025-11-20 公共建筑设计 巴黎25户住房项目 25 Housing Units in Paris | 布鲁瑟建筑事务所|Bruther 2025-11-11 公共建筑设计 低碳住宅 Low Carbon House | 布鲁瑟建筑事务所|Bruther 2025-11-09 公共建筑设计 框架媒体大厦 Frame, Media House | 布鲁瑟建筑事务所|Bruther 2025-11-20 公共建筑设计 发表回复 请登录后评论...登录后才能评论 提交